Ver­mei­den, ver­min­dern, ver­wer­ten

Die Reduktion der Abfallströme beginnt beim Entwerfen und Konstruieren. Vielfältige und pragmatische Ansätze, wie Wegwerf-Architektur verhindert werden kann, zeigen die folgenden Beispiele.

Data di pubblicazione
24-06-2015
Revision
01-11-2015
Paul Knüsel
Fach- und Wissenschaftsjournalist bei Faktor Journalisten

T-Flaschen, Getränkekartons, Altpapier, Pneus oder Stroh: Die moderne Konsumgesellschaft produziert hochwertiges Wegwerfmaterial, das vielfältig zum Bauen verwendet werden kann. Einige Zivilisationsabfälle könnten dauerhafte Funktionen als selbsttragende Elemente oder schützende Hüllen für kleine und grosse Bauten teilweise mit oder ohne zusätzliche Aufbereitung er­füllen.

Dieser Input für eine nachhaltige Materialwirtschaft stammt aus der Forschungsarbeit am Future Cities Laboratory der ETH Zürich; eine Publikation1 und eine Ausstellung regen kreativ an, wie Abfall als erneuer­barer Rohstoff für Baumaterialien in Architektur, ­Innenraumgestaltung und Produktdesign vermehrt Anwendung finden kann.

Bauen im Stoffkreislauf ist aber nicht nur ein experimentelles Konzept, sondern auch im architektonischen Alltag angekommen. Implizit oder explizit finden Ressourceneffizienz, Gebäuderückbau und der Einsatz von Recyclingbaustoffen Eingang in die Palette der gängigen Entwurfskriterien.

Das Vermeiden, Vermindern und Verwerten der künftigen Bauabfälle beginnt, sobald die Konstruktions- und Materialkonzepte neuer oder umgebauter Gebäude ­festzulegen sind.
Paul Knüsel, Redaktor Umwelt/Energie

Offener Holzbau: Gymnasiumstrakt Strandboden, Biel 

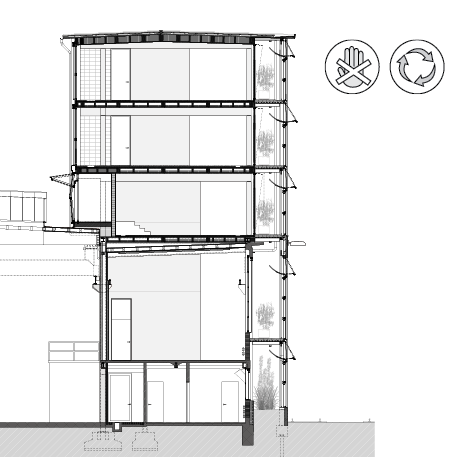
Ökologisch mustergültiges Bauen ist: mit dem Baustoff Holz konstruieren, gehäckseltes Abfallmaterial aus dem Wald zum Heizen verbrennen und zugleich den Betrieb mit sparsamsten Energiemitteln organisieren. Die ­Sanierung und Erweiterung des Gymnasiums Strandboden Biel ist in Architekturkreisen zwar umstritten, die genannten Eigenschaften machen den neuen Natur­wissenschaftstrakt jedoch zu einem nachhaltigen ­Leistungsträger.

Der dreigeschossige Baukörper ist im ­vergangenen Semester eröffnet worden und trägt das offi­zielle Minergie-Gebäudezertifikat «BE-061-P-Eco». Der Kanton Bern hat zusätzlich einen vorbildlichen ­Umgang mit den Kriterien «Baustoffe» und «Systemtrennung» verlangt. Dazu gehören eine effiziente Massenbilanz, gesundheitsschonende Materialien sowie geordnete Gebäudestrukturen, sodass der Lebenszyklus mit möglichst geringem baulichem Aufwand zu be­wältigen respektive verlängerbar ist.

Die nachhaltigen Qualitäten im Siegerentwurf von Brügger Architekten hat die Wettbewerbsjury denn auch herausgestrichen: «Kompaktheit» und «Nutzungsflexibilität» gehören zu den herausragenden Eigenschaften des Lehrtrakts am Gymnasium Biel. Mit ähnlich hohen Vorgaben für den Umbau der benachbarten ­dreiteiligen Schulanlage wäre das Gesamtprojekt allerdings schonender als nun geplant saniert worden. 

Der neue Erweiterungsbau steht auf dem ehemaligen Sportplatz und umfasst drei Obergeschosse sowie eine unterirdische Etage; seine Fläche misst 46 × 26 m. Das Konstruktionsprinzip entspricht einer hybriden, skelettartigen Holzbauweise: UG und Gebäudekern sind massive Betonkonstruktionen; Decken und oberirdische Aussenwände vorgefertigte Holzelemente. Die Hülle besteht aus einer vorergrauten Holzfassade mit Rippen im 2-m-Raster. Der neue Gymnasiumstrakt beherbergt Laborräume mit hohem Technisierungsgrad für den Physik-, Biologie- und Chemieunterricht.

Eine wichtige Anforderung für spätere Anpassungen und zum selektiven Rückbau ist das Ausein­anderhalten der Gebäude- und Ausbaustrukturen. Hülle, tragende Elemente, Trennwände, haustechnische Installa­tionen und festes Mobiliar sind auf eine unterschiedliche Lebensdauer ausgelegt und werden kon­struktiv möglichst getrennt. Problematisch ist es, wenn sich Gebäudetechnik und Gebäudestruktur überschneiden.

Im Erweiterungstrakt hält sich das technische Erschliessungskonzept weitgehend zurück: Die Raumdecken in den Obergeschossen sind frei von horizontalen Verteilungsleitungen. Einzig in der zentralen Korridorzone sind Sanitär- und Elektroinstallationen über die abgehängte Decke gelegt. Die vertikale Steigleitung führt im massiven Betonkern nach oben. In den Chemie- und Physiklabors ist die Systemtrennung nicht überall machbar: Mehrere Lüftungs- und Abzugskanäle durchstossen dezentral die Raumdeckenelemente. Klappen gewähren die Zugänglichkeit. Ergänzende Brandschutzmassnahmen sorgen für zusätzlichen Materialaufwand.

Das Tragwerk ist einfach strukturiert und weist einen Grundraster von 2 × 2 m auf. Darauf ausgerichtet ist ein innerer und äusserer Ring mit in den Wänden versteckten Pendelstützen. Die 8 m tiefen Unterrichtsräume selbst sind stützenfrei, was grundsätzlich ein internes Versetzen der Trennwände erlaubt. Für Schulbauten mit veränderlichen Raumbedürfnissen ist dies kein überflüssiges Flexibilitätskriterium.

Die vollständige Neugliederung ist einzig dort begrenzt, wo der Stützenraster die beiden tragenden Ringschichten miteinander verbindet. Nutzungsänderungen und Erweiterungen sind vorsorglich dimensioniert: Die Nutzlast beträgt 5 kN/m2, was zur Aufstockung auf insgesamt sechs Geschosse genutzt werden kann.

Damit Systemtrennung und Flexibilität bereits frühzeitig mitbedacht werden, verlangte die Bauherrschaft einen separaten Planungsbericht. Dem Holzbau kommt diese Koordination insofern zugute, als
die Detailschnittstellen bereits vor Vorfertigung der Bauelemente zu definieren sind.
Paul Knüsel, Redaktor Umwelt/Energie

Erweiterung Gymnasium Strandboden Biel, 2015


Bauherrschaft
Amt für Grundstücke und Gebäude des Kantons Bern


Architektur
Brügger Architekten, Thun


Tragwerksplanung
Indermühle Bauingenieure, Thun


Energie/Bauphysik
Prona, Biel

Leichter Stahlbau: Wohn- und Gewerbehaus Lindenplatz, Baden

Dass ein nachhaltiges Baukonzept mehr verlangt, als den Einsatz der Materialien zu optimieren, veran­schaulicht das achtstöckige Wohn- und Gewerbehaus am Lindenplatz in Baden. Das Gebäude hat eine kubische Form und steht über einer bereits vorhan­denen zweigeschossigen Parkgarage und über einem Verkehrs­tunnel. Deswegen wurde eine Stahlbaukon­struk­tion gewählt, die etwa 60 % leichter ist als ein konventio­neller Massivbau. Die einzelnen Stahlelemente sind industriell vorgefertigt. 

Das innenliegende Fachwerk, das den Tunnelkorridor überspannt und die Lasten punktuell in den Baugrund abgibt, zeigt die Leistungsfähigkeit von Stahl. Im Gegenzug konnte auf zusätzliche Verstärkungen verzichtet werden, und die Fundationsmassnah­men liessen sich ebenfalls reduzieren. Von der schlanken und leichten Stahlstruktur profitiert zudem die Öko­bilanz: Der Baustoff Stahl ermöglicht eine Gebäu­de­struktur mit grossen Spannweiten und schlanken Träger­profilen, was im Vergleich zu alter­nativen Materialien einen geringeren Ressourcenverbrauch bedeu­ten kann. 

Um die Umweltauswirkungen in einer Evaluation von Materialkonzepten und Bauteilen beurteilen zu können, werden häufig unterschiedliche Materialien und Konstruktionsweisen miteinander verglichen. Aber nur ein Vergleich bei gleicher Funktionalität liefert eine verlässliche und relevante Aussage: Am Beispiel von Hochbaustützen und Biegeträgern zeigt sich, dass die Variante aus Stahl gleich gut und bei grösseren Spannweiten und Lasten sogar besser abschneidet als eine alternative Brettschichtholzkonstruktion.

Grund dafür sind die statischen Eigenschaften sowie der hohe Recyc­linganteil von Stahl. Die im Juli 2014 aktualisierten Ökobilanzwerte der Koordinationskonferenz der Bau- und Liegenschaftsorgane der öffentlichen Bauherren (KBOB) attestieren eine 100-prozentige Recyclingfä­higkeit. Generell gilt zudem: Der in der Schweiz ver­wendete Baustahl ist Recyclingstahl. Für den Baustoff selbst hat sich ein Kreislauf­system etabliert. Stahlschrott ist nicht nur für die Bau­industrie zum kost­­baren Sekundärrohstoff geworden. 

Der Stahlskelettbau in Baden weist neben der schlanken Tragstruktur ein Verbunddeckensystem aus Beton und Stahl auf, das ebenfalls auf maximale Gewichteinsparung getrimmt ist. Zudem sind Haustechnik und Tragkonstruktion stringent getrennt. Die unterschiedliche Lebensdauer von Haustechnik und Tragkonstruktion legt diese Systemtrennung nah, weil dadurch Zugänglichkeit und Auswechselbarkeit der Haustechnikanlagen verbessert werden.

Die Decken sind vorfabrizierte Stahlbetonverbunddecken; sämtliche Installationen sind integriert. Das Deckensystem ist statisch, schall- und brandschutztechnisch optimiert; die industrielle Vorfertigung ermöglicht zudem einen schnellen Baufortschritt. Der Rohbau des achtstöckigen Gebäudes am Lindenplatz in Baden wurde in nur acht Wochen aufgerichtet.  
Patric Fischli-Boson, Stahlbau Zentrum Schweiz SZS, fischli-boson [at] szs.ch

Wohn- und Gewerbehaus Lindenplatz Baden, 2013


Bauherrschaft
Diebold, Baden-Dättwil


Architektur
rgp Rolf Graf & Partner Architekten, Baden


Tragwerksplanung
H. Wetter, Stetten

Hinter einer Gewächshaus­fassade: Halle 181 Winterthur

Das Sulzerareal in Winterthur ist im Umbau begriffen. An der südwestlichen Ecke ist noch ein ursprüngliches Konglomerat aus grossen Werkhallen und kleinen Betriebsgebäuden verblieben. Eine der Industriebauten am Lagerplatz ist die Halle 181 mit Baujahr 1894, die direkt neben dem SBB-Bahntrassee liegt und restau­rierte Dampfmaschinen beherbergt. Der zweistöckige seitliche Anbau diente fast 60 Jahre als Blechwerkstatt; nun haben ihn KilgaPopp Architekten zum Atelier-, Büro- und Unterrichtsgebäude weitergebaut.

Zentrales Anliegen dieser Umnutzung war es, räumliche und funktionale Werte aus der vorhandenen Substanz in den Entwurf zu integrieren und auch ergänzende Elemente daraus abzuleiten. Das 125 m lange Bauwerk ist nicht denkmalgeschützt; die ersten Planungsskizzen ent­hielten mehr Abbruch und Demontage, als schliesslich erforderlich war. Die bestehende Stahl- und Klinker­konstruktion wurde einem subtilen baulichen Wandel unterzogen und gleichzeitig für eine Aufstockung genutzt. Dem Umbau ging es nicht um das Bewahren von industriellem Flair, sondern er will die Geschichte dieses Standorts architektonisch weitererzählen.

Gebäuderecycling im eigentlichen Wortsinn meint «es wieder in den Kreislauf bringen». Dies trifft auf die Halle 181 insofern zu, als der Wandel nicht die Summe materialbezogener Eingriffe und der Wiederverwendung von Abfallprodukten ist, sondern das Ergebnis aus einem gedanklichen Gestaltungsprozess: Weder wird ein Schnitt zwischen Alt und Neu gesucht noch das Bestehende kopiert. Vielmehr sind die Ergänzungsdetails und Materialwechsel fliessend aus dem Bestand weiterentwickelt worden. 

Die Industriehallen überdeckten in ihrem ursprünglichen Zweck die Kranbahnen für die indust­rielle Fertigung. Die Hülle wirkt aber bis heute eingehaust und licht. Mit einem hermetisch abgeriegelten Charakter hat die ursprüngliche Architektur nichts gemein. In dünnhäutiger Art exponiert sich nun auch die teil­weise neu dazugestellte Gewächshausfassade: Ihre horizontal wirkende, feingliedrige Struktur passt bestens zur ­ursprünglichen verglasten Industriefassade – und auch zur benachbarten Bahntechnik. Die bestehende innere und die ergänzte äussere Schicht entlasten sich gegenseitig in ihrem Anforderungsprofil.

Die neue Gewächshausfassade ist einfach verglast und hat einen kleinformatigen Raster, sodass Scheiben mit guter Durchsicht gewählt werden konnten. Die inwendige Schicht wurde mit einer Doppelverglasung und teilweise grösseren Fensterflügeln aufgerüstet. Einzig der Asbestkitt wurde entfernt; ansonsten kamen Bürste und Farbpinsel für das Auffrischen der Metallrahmen zum Einsatz.

Der begrünte Zwischenraum funktioniert zudem als Puffer, der den aktuellen bauphysikalischen Anforderungen, etwa an Wärmeschutz und Schallschutz, gerecht werden kann. Auf das voll­ständige Einpacken der Gebäudehülle mit einer zusätzlichen Dämmschicht konnte daher verzichtet werden.

Ein ­Materialrecycling fand im Innern der ­Werkhalle statt: Boden und Wände blieben inklusive Abnutzungsspur erhalten. Die Decke wurde brandschutztechnisch optimiert, und die über 40-jährigen Mineralfaserplatten wurden wieder montiert. Die massiven Erschliessungskerne vorn und hinten sind aus Recyclingbeton. 

Brandschutz ist ein wichtiger Aspekt für die Weiterentwicklung älterer Bausubstanz: Bei der Aufstockung wurde das Industriegebäude als fünfstöckige Holzkonstruktion taxiert. Daher waren hohe Sicherheitsauflagen mit vielen Verkleidungs- und Verstärkungsmassnahmen respektive massiven Einbauten zu realisieren. Die vorhandene Sprinkleranlage war funktionstüchtig genug, um die neuen Elemente daran anzuhängen.

Auch die Heizungsverteilung blieb bestehen. Von den sechs Wandröhren sind nur zwei neu dazu gekommen, um mehr Niedertemperaturwärme abgeben zu können. Der Bauherrschaft wollte aber keine hoch­technisierte Bürolandschaft; einzig die aufgestockten Büro- und Unterrichtsräume können nach Mieterwunsch dezentral belüftet werden. Die Gewächshausfassade ist allerdings elektronisch gesteuert: Je nach Lux-Wert werden einzelne Fensterflügel für Nachtauskühlung und Wärmeausgleich gekippt.

Weiterbauen auf Ebene Material und Struktur heisst, die bestehende Ordnung und den Raster möglichst weiterzuverwenden. Für die Halle 181 werden Beton und Stahl mit Holz kombiniert. Architektonisch wurde die Aufgabe mit einem räumlichen, konstruktiven Gleichgewicht in der Gesamtwirkung gelöst.
Paul Knüsel, Redaktor Umwelt/Energie

Umbau Halle 181, Winterthur, 2014


Bauherrschaft
Stiftung Abendrot, Basel


Architektur
KilgaPopp Architekten, Winterthur


Tragwerk Holz
Holzbaubüro Reusser, Winterthur

Landschaftsarchitektur
Rotzler Krebs Partner, Winterthur

Recyclingbeton, fast überall: Rheinallee, Ludwigshafen (D)

Der ökologische Vergleich zwischen konventionellem Beton und dem Recyclingprodukt legt den Fokus auf den Energieverbrauch zur Gewinnung des Primär­gesteins respektive zur Aufbereitung und Wäsche von Abbruchmaterial. Die Zementherstellung und die ­Transportwege sind in bisherigen Ökobilanzierungen als Hauptverursacher der Beton-Umweltbelastungen aufgefallen. Fallstudien und theoretische Forschungsarbeiten haben noch zu keinem eindeutigen Vergleichs­ergebnis geführt.

Grundsätzlich gilt, dass die Umwelt­effekte von Recyclingbeton, wenn überhaupt, nur geringfügig kleiner sind als bei der konventionellen Variante; die grössten Differenzen sind auf unterschiedliche Aufbereitungsverfahren und vom Recyclinganteil unabhängige Betonrezepturen zurückzuführen. Diese Befunde bestätigten sich auch im «Impulsprojekt RC-Beton», das Forschungsinstitutionen in Deutschland gemeinsam betrieben haben.

Dabei wurde ein privates Wohnbauprojekt realisiert, um den Einsatz von Recyc­lingbeton konstruktiv möglichst unter Alltagsbedingungen auszutesten. Das Bauvorhaben in Ludwigshafen (Rheinland-Pfalz) erhielt weder staatliche Fördermittel, noch durfte es durch den Einsatz von RC-Beton negativ beeinflusst werden.

Nicht nur die Zeitpläne waren zwingend einzuhalten, auch die uneingeschränkte Eignung des Betons musste sowohl hinsichtlich der Frisch- als auch der Festbetoneigenschaften sicher­gestellt sein. Das viergeschossige Wohngebäude selbst wurde 2010 bezogen. Die Nutzung entspricht einem Boarding House, oben folgen Penthousewohnungen. 

Gesamthaft wurden etwa 500 m3 RC-Beton eingesetzt. Tragende Wände, Stützen und Decken wurden in Ortbeton hergestellt, einzig Treppen und Balkon­decken sind Fertigteile aus konventionellem Beton. Die geforderte Betondruckfestigkeit lag einheitlich bei C 30/37.

Die Tiefgarage liegt im Grundwasser und war als weisse Wanne herzustellen. Weil die Eignungsprüfung für RC-Beton nicht rechtzeitig eingeholt werden konnte, wurde konventioneller Beton vorgezogen. Aus Gründen der Gewährleistungsübernahme sind auch die aufgehenden Wände im Erdgeschoss aus demselben Material gegossen worden.

Die Forschungsanalysen zeigten im Nachhinein, dass die entwickelten RC-Betonrezepturen problemlos hätten eingesetzt werden können. Weil weitgehend Neuland betreten werden musste, ­wurden die zulässigen Anteile RC-Gesteinskörnung nicht maximal ausgeschöpft und die Zementgehalte nicht auf Mindestmengen optimiert.

Für die Herstellung von RC-Beton ist die Qualität der Abbruchgesteine zentral. Wichtige Voraussetzungen sind möglichst reiner Altbeton als Ausgangsmaterial, eine Abtrennung von Fremdbestandteilen und eine kombinierte Zerkleinerung mit Backenbrecher und Prallmühle. Je näher RC-Gestein in seinen Eigenschaften dem Primärgestein kommt, umso geringere Anpassungen sind in der Betonrezeptur erforderlich. Ökonomisch und ökologisch ist relevant, dass keine Bindemittel ergänzt werden müssen. 
Auszug aus: Recycling concrete in practice – a chance for sustainable resource management; in Structural Concrete 15 (2014), No. 4 (Übersetzung: Paul Knüsel, Redaktor Umwelt/Energie).

Wohnsiedlung Rheinallee Ludwigshafen (D), 2010


Bauherrschaft
GAG Ludwigshafen


Architektur
Seepe und Hund Kaisers­lautern; Jourdan Müller PAS Frankfurt


Tragwerk
Bollinger + Grohmann Ingenieure

Mit Ökozement gebaut: Niederösterreich-Haus Krems 

Das Verwaltungszentrum für die Bezirkshauptstadt Krems (Niederösterreich) ist Brückenkopf und Lückenfüller mitten in der Altstadt: Drei Baukörper ergänzen jeweils unabhängig voneinander eine bestehende Gebäudezeile; über die Gassen hinweg verbinden sich die vier- bis sechsgeschossigen Gebäude über eine Brücke. Die massive Betonkonstruktion und die kleinteiligen Lochfassaden nehmen auch städtebaulich den Charakter der umgebenden älteren Wohnhäuser auf.

Im Pflichtenheft der Bauherrschaft, des Lands Niederösterreich, wurde die Begrenzung der Fensterflächen auf 25 % ­verlangt, um den Wärmeschutz zu optimieren. Der Heizwärmebedarf liegt unter 10 kWh/m2. Das Büro- und Verwaltungsgebäude weist ein Gesamtvolumen von rund 36 000 m3 auf und erreicht die Zielwerte des Passivhausstandards. Die kompakte Geometrie sorgt dafür, dass eine 20 cm mächtige Dämmschicht genügt.

Die Bauten sind massive Konstruktionen mit Wänden und Decken aus Ortbeton, wobei die hohe Ressour­ceneffi­zienz auch bei der Erstellung eine wichtige ­Rolle spielte. Zur Reduktion der grauen Energie beigetragen hat vor allem die neuartige Rezeptur des Bindemittels: Der übliche Portlandzement wurde weitgehend durch ein alternatives Produkt ersetzt, das 70 % Hüttensand enthält, ein Abfallprodukt (Schlacke) aus der Stahl­produktion.

Dieser Hochofenzement (CEM III) besitzt in Deutschland bereits einen Marktanteil von über 20 %. Im Niederösterreich-Haus beträgt der objektspezifische Massenanteil sogar vier Fünftel.2 Im Vergleich zur konventionellen Ortbetonvariante (CEM I) wird das Treibhauspotenzial dadurch halbiert. Zu beachten ist: Mehr als 5 % der globalen CO2-Emissionen entstehen bei der Zementherstellung.

Ausserdem kann Hüttensand den primären Abbaubedarf von Kalkstein, Kreide oder Ton reduzieren. Als weitere Sekundärrohstoffe für die Zementherstellung sind Flugasche aus dem Filter von Rauchgasreinigungsanlagen sowie Sulfathüttensand im Gespräch. 

Die Detailbilanzierung des CEM-III-Betons ­ergab, dass Deckenkonstruktionen deutlich weniger Primärenergie verbrauchen als zum Beispiel Holz-Beton-Verbund­decken. Im Vergleich tragender Fassadenkonstruktionen helfen die zugeschlagenen Hüttensande zumindest, den Rückstand von Betonwänden zum Mauerwerk aus Kalksand- oder Backstein aufzuholen. 

Die Eigenschaften des Hochofenzements unterscheiden sich allerdings leicht von jenen des normalen Ortbetons. Die Schalungszeiten und das Abbinden sind an­zupassen, weil sich die Druckfestigkeit deutlich langsamer erhöht. Beim Verwaltungszentrum in Krems wurde insbesondere bei Aussentemperaturen unter 5 °C auf den Einsatz von CEM-III-Beton verzichtet.

Bezüglich Wasserundurchlässigkeit werden dagegen ­leichte Vorteile ausgemacht; und seine weissliche Färbung eignet sich gut für Sichtbetonfassaden.
Paul Knüsel, Redaktor Umwelt/Energie 

Landesamtsgebäude Niederösterreich, Krems, 2011


Bauherrschaft
Landesimmobiliengesellschaft Niederösterreich


Architektur/Planung
AllesWirdGut Architektur, Wien; feld72 architekten, Wien; FCP Fritsch, Chiari & Partner, Wien

Anmerkungen

  1. Hebel/Wisniewska/Heisel: Building from Waste. Recovered Materials in Architecture and Construction; Nachhaltiges Bauen im Materialkreislauf, Birkhäuser 2014
  2. Ökoeffizienter Ressourceneinsatz in der österreichischen Zementindustrie; Österreichisches Institut für Baubiologie 2012

Articoli correlati