Cen­tro spor­ti­vo di Mal­ley, Pril­ly

Pont12 Architectes

La struttura sportiva, la cui facciata in vetro traslucido già anticipa i contenuti evocando l'acqua delle piscine e il ghiaccio delle piste di pattinaggio, riduce il suo impatto energetico grazie a tecniche innovative: nel complesso oltre l’80% dell’energia per il riscaldamento proviene da fonti rinnovabili, mentre il freddo viene prodotto senza emissioni di CO2.

Data di pubblicazione
16-09-2020
Andrea Roscetti
Ingegnere, fisico della costruzione, redattore espazium quaderni

Ad arricchire l’offerta della città olimpica di Losanna, il progetto H2O di Pont12 è il vincitore di un concorso lanciato nel settembre 2014 su incarico dei comuni di Losanna, Prilly e Renens.

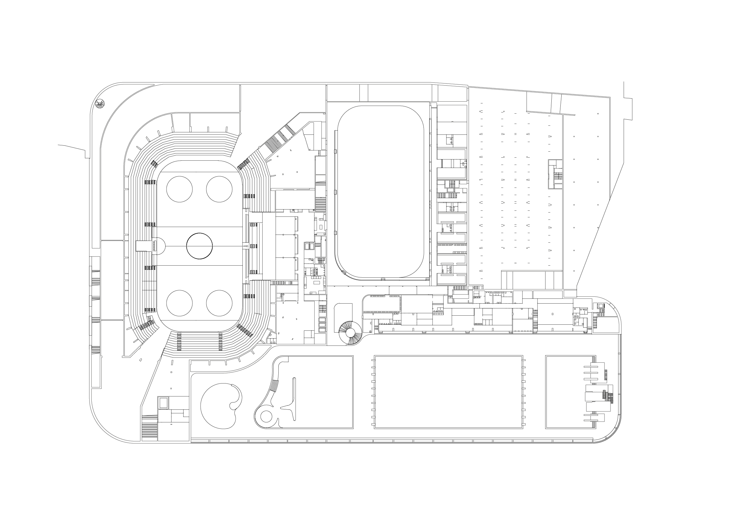
Il nuovo centro sportivo di Malley, di importanza regionale e cantonale, si trova a sud e a ovest del luogo in cui sorgeva la vecchia pista di pattinaggio; crea un insieme urbano coerente nella continuità di Malley Lumières e forma uno spazio pubblico sull’asse del Chemin du Viaduc.

L’edificio a forma di L genera un ampio piazzale racchiuso dai binari ferroviari e offre la massima libertà per ospitare il complesso programma del centro: tre piste di pattinaggio su ghiaccio, le piscine, gli spazi per il ping-pong e la scherma.

La forma organica dell’edificio è definita dai vincoli esterni: i limiti costruttivi del PPA (piano regolatore parziale) e il raggio di sterzata dei veicoli sugli angoli. Le curve sono funzionali alle attività ospitate all’interno. Le rientranze creano terrazze, le cavità segnalano e proteggono gli ingressi.

Il tetto della zona che ospita la pista principale ha una superficie di circa 8’000 mq, ed è sorretto da travi reticolari in acciaio da 65 metri. Le tribune, capaci di quasi 10’000 spettatori per eventi sportivi e altre manifestazioni indoor, sono realizzate in cemento armato con travi prefabbricate e hanno una pendenza piuttosto dolce. La facciata è rivestita in vetro profilato a U traslucido, e crea un’analogia con l’acqua e il ghiaccio durante il giorno, mentre è retroilluminata durante gli eventi serali, creando un forte contrasto con la colorazione scura dell’interno della pista.

Sul prospetto ovest sono state realizzate aperture vetrate, poco frequenti in questo genere di edifici. Gli spazi acquatici, la cui inaugurazione è prevista a inizio 2021, ospitano una piscina olimpionica, una vasca per tuffi, una vasca per il tempo libero e giochi d’acqua. La maggior parte delle funzioni ospitate – in particolare la piscina, la scherma e il ping-pong – beneficia di viste ottimali; il ristorante, le aree VIP e i punti di ristoro dei club sportivi hanno terrazze esposte a sud.

La società LaZur Energie SA, responsabile della progettazione e costruzione dei sistemi energetici, e della gestione e ottimizzazione degli stessi, è stata creata unendo le competenze e le esperienze dei Servizi Industriali di città di Losanna (SiL) e Zurigo (ewz).

Analizzando le funzioni ospitate, la generazione del freddo è tra le componenti principali. Il calore di scarto, prodotto dalle cinque macchine frigorifere per la produzione del ghiaccio e la gestione del clima interno, è riutilizzato direttamente per il riscaldamento degli edifici, piscine incluse, e per la manutenzione del ghiaccio.

Due pompe di calore sfruttano ulteriormente gli scarti termici per generare acqua calda per la piscina e fornire riscaldamento ad alta temperatura e acqua calda per gli spogliatoi. Il rendimento di questi sistemi è molto elevato grazie alla temperatura della fonte (32°C), scarto derivante della produzione di freddo.

L’alimentazione elettrica dei sistemi per la produzione di calore e di freddo è rinnovabile al 100%, grazie ai 2200 pannelli fotovoltaici posati sul tetto, di cui più di 600 sono utilizzati direttamente per l’alimentazione degli impianti di produzione di energia. Per le necessità di punta di calore ad alta temperatura, come ad esempio nel caso di riempimento delle piscine, è inoltre presente una connessione con la rete di teleriscaldamento CADouest, alimentata al 50% da fonti rinnovabili.

Nel complesso oltre l’80% dell’energia per il riscaldamento proviene da fonti rinnovabili, il freddo viene prodotto invece senza emissioni di CO2.

La temperatura omogenea ottimale di -6°C sulle superfici ghiacciate è garantita da una fitta rete di circa 60 km di tubi che si estendono oltre i bordi delle tre piste. Il sistema di posa dei tubi per il raffreddamento della superficie è innovativo per la Svizzera: i circuiti con una lunghezza di 60,4 m convergono nei collettori al centro della pista, con una maggiore efficienza grazie alla riduzione delle perdite di carico, di circa 1 bar, rispetto a un sistema tradizionale che ha una lunghezza doppia.

Qui è possibile acquistare Archi 4/2020. Qui si può invece leggere l'editoriale con l'indice del numero.

Luogo Prilly (VD)
Committenza Centre Sportif de Malley (CSM), Prilly
Architettura Pont 12 Architectes, Chavannes-près-Renens
Architettura del paesaggio Pascal Heyraud, Neuchâtel
Impresa Steiner, Tolochenaz
Ingegneria civile EDMS, Petit-Lancy
Impianti di riscaldamento ECA Engineering, Cossonay-ville
Impianti termici Weinmann-Énergies, Échallens
Progetto impianti elettrici Rapp, Basilea
Progetto sicurezza Tüv Süd, Basilea
Fotografia Vincent Jendly, Losanna
Date concorso 2015, realizzazione 2017-2021
Pianificazione energetica LaZur Energie, Losanna

Etichette

Articoli correlati