2226 Em­men­weid, edi­fi­cio ammi­nis­tra­tivo

Baumschlager Eberle Architekten

2226 Emmenweid è figlio di un concetto adottato per la prima volta in Svizzera: offre un elevato livello di comfort interno senza riscaldamento, raffreddamento o ventilazione meccanica. Lo scopo dei progettisti era la realizzazione di un edificio contemporaneo ed economico che fosse un manifesto in termini di sostenibilità, di efficienza energetica e integrazione urbana.

Publikationsdatum
26-08-2020
Andrea Roscetti
Ingegnere, fisico della costruzione, redattore espazium quaderni

L’edificio Crinolbau di Emmen, che ricorda il passato industriale della zona della città che ospitava Viscosuisse, a causa di problemi strutturali non poteva essere recuperato.

Per la sua importanza storica, i proprietari hanno lavorato al progetto in stretta collaborazione con le autorità cittadine e con l’ufficio della protezione dei beni culturali di Lucerna. Lo scopo dei progettisti era la realizzazione di un edificio contemporaneo ed economico che fosse un manifesto in termini di sostenibilità, di efficienza energetica e integrazione urbana.

Il nuovo edificio, con i suoi cinque piani e la facciata in intonaco di calce grigio screziato allineata al manufatto adiacente, rispetta – pur nell’immagine attuale – il luogo e la sua storia, sia per le dimensioni che per il leggero disallineamento del fronte, elementi ispirati a quanto preesisteva.

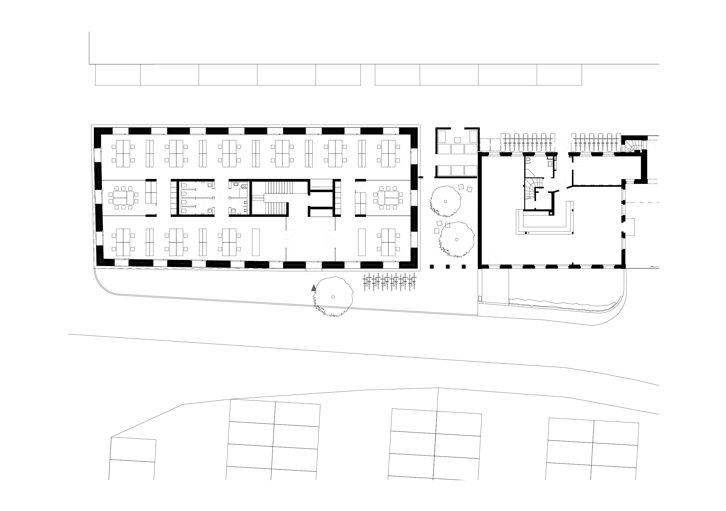
La planimetria degli uffici open-space è caratterizzata da un nucleo fisso, situato in posizione centrale, che contiene i servizi igienici, l’accesso e le cucine. Sui lati corti dell’edificio sono presenti sale riunioni chiuse. L’allestimento interno e l’arredamento sono particolarmente curati.

L’efficienza energetica è spesso ottenuta attraverso soluzioni che integrano l’impiantistica. 2226 Emmenweid è figlio di un concetto adottato per la prima volta in Svizzera: offre un elevato livello di comfort interno senza riscaldamento, raffreddamento o ventilazione meccanica. La cifra iniziale che dà il nome all’edificio e al concetto energetico fa riferimento alla temperatura interna: una costante da 22 a 26°C. Il primo edificio 2226 è stato realizzato a Lustenau nel 2013, e ospita una delle sedi dello studio di architettura.

Il progetto 2226 si basa esclusivamente sui concetti fondamentali della fisica dell’edificio: massa termica e isolamento.

Il calore necessario al fabbricato in inverno deriva dai guadagni interni: calore generato dagli utenti e dalle apparecchiature. Ogni persona ha un’emissione di calore di circa 80 Watt e i computer, le stampanti, le lampade, emettono complessivamente così tanto calore che rendono superflua l’installazione di un sistema di generazione di calore.

I materiali utilizzati hanno notevole capacità termica e quindi permettono di immagazzinare il calore prodotto all’interno dell’edificio. L’involucro è ben isolato e l’utilizzo parsimonioso del vetro riducono al minimo le dispersioni.

La muratura di quasi 80 cm di spessore è costituita da mattoni forati verticalmente, senza isolamento, che forniscono la massa termica che serve a stabilizzare la temperatura interna. La parete a doppio guscio, collegata da tasselli, è realizzata in mattoni portanti all’interno, mentre il guscio esterno è costruito con mattoni più isolanti. Il valore U del mattone interno è di 0,34 W/m²K, quello esterno di 0,24 W/m²K. Le pareti esterne raggiungono un valore U complessivo di circa 0,15 W/m²K.

Il posizionamento delle finestre, a filo interno della solida parete esterna, riduce notevolmente l’ingresso della radiazione solare diretta, in modo da evitare il surriscaldamento degli ambienti in estate. Le ante in rovere per la ventilazione sono poste sul lato delle finestre fisse integrate nei telai di legno massiccio. L’apertura è gestita, per minimizzare le dispersioni termiche in inverno, da sensori che controllano la qualità dell’aria negli uffici (livello di CO2) e le condizioni termo-igrometriche interne ed esterne. Le ante possono anche essere azionate manualmente in qualsiasi momento garantendo l’aria fresca nella stanza e in estate permettono di sfruttare l’aria fresca notturna per la climatizzazione naturale. 

Qui è possibile acquistare Archi 4/2020. Qui si può invece leggere l'editoriale con l'indice del numero.

Luogo Emmenbrücke (LU)
Committenza BRUN Real Estate
Architettura Baumschlager Eberle Architekten, Zurigo
Impresa Estermann, Geuensee
Direzione lavori bhp Baumanagement, Emmenbrücke
Ingegneria civile Kost + Partner, Sursee
Progetto impianti RVCS JOP, Rothenburg
Progetto impianti elettrici Scherler, Lucerna
Paesaggista USUS Landschaftsarchitektur, Zurigo
Fisica della costruzione T.A.U., Lustenau, Austria
Fotografia Roger Frei, Zurigo
Date progetto 2016, realizzazione 2017-2018
Superficie di piano 2815 mq
Superficie utile: 2169 mq

Verwandte Beiträge