Spiel­raum trotz Spiess­ru­ten­lauf

Sanierung mit Dachausbau Altstetterstrasse 189, Zürich

Das Mehrfamilienhaus in Zürich-Altstetten ist eines von abertausenden typengleichen Bestandsgebäuden in der Schweiz, die an der Weggabelung zwischen Erneuerung oder Ersatz stehen. In enger Zusammenarbeit mit der Bauherrschaft hat AMJGS Architektur den Bau aus den 1930er-Jahren saniert und architektonisch sowie energetisch aufgewertet.

Publikationsdatum
18-08-2025

Eigentlich war es ein Glücksfall, dass das Nachbarsgrundstück der gleichen Eigentümerschaft gehörte, denn so konnte dank eines Ausnutzungstransfers das zweite Dachgeschoss des Mehrfamilienhauses zu Wohnraum ausgebaut werden. Eine Mehrnutzung wäre auch mit einem Ersatzneubau nicht möglich gewesen. Diese Voraussetzungen spielten dem Bestand in die Karten - wie auch die Tatsache, dass die engagierte Bauherrschaft das Haus entschieden erhalten wollte. Der Umbau wurde wegen der starken Eingriffe im Leerzustand durchgeführt, wobei allen Mietparteien offenstand nach Fertigstellung zurückzukehren. Ziel war nicht eine maximale Rendite, sondern qualitativ hochwertiger Wohnraum zu bezahl­baren Preisen.

Zugegeben: Solche Ausgangslagen sind selten. Oft sind bestehende Häuser wie dieses ein klassischer Fall für einen Ersatzneubau. Die Rahmenbedingungen in der Schweiz machen den Erhalt von Bausubstanz noch immer zu komplex. Ein Umbau ist eine mit viel Aufwand verknüpfte Entscheidung – getragen von Vertrauen, viel Erfahrung und planerischem Einsatz.

Eine alltägliche Geschichte

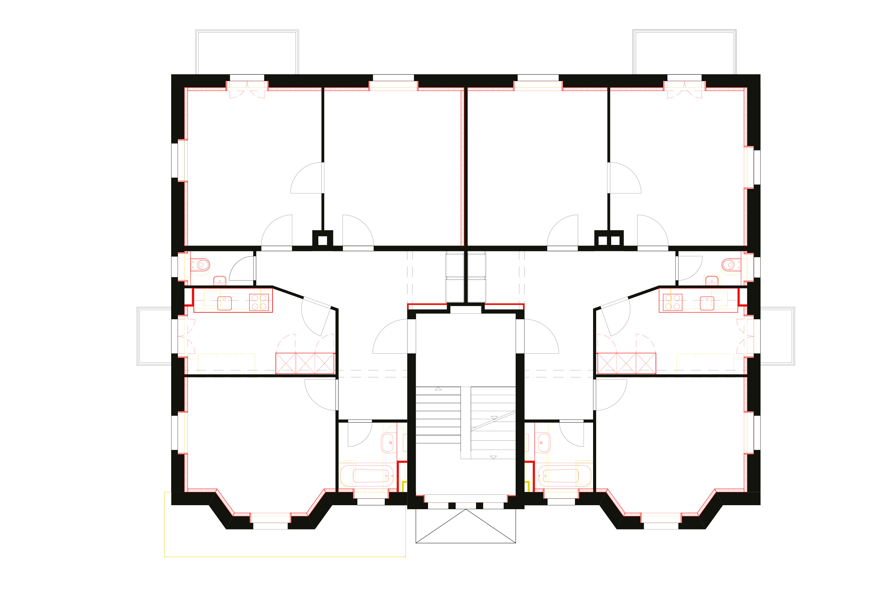
Die Architektinnen und Architekten erkannten das Potenzial des Gebäudes: grosszügige Grundrisse, ein hoher Estrich und eine solide Bausubstanz. Im ersten Dachgeschoss sowie im neu ausgebauten Estrich entsteht über zwei Etagen zusammengeführt eine Wohnung für eine Grosswohngemeinschaft, erschlossen über das bestehende Treppenhaus. Die neue Struktur lässt sich bei Bedarf in zwei separate Wohnungen zurückbauen.

Im E-Dossier Umbau finden Sie alle Artikel zum Thema

Parallel dazu wurde das Gebäude energetisch umfassend saniert: Eine Wärmepumpe mit Erdsonden ersetzt die fossile Heizung, die bestehenden Radiatoren bleiben erhalten. Die Aussenwände, die Kellerdecke und das Dach wurden zusätzlich gedämmt und die Planenden ersetzten die Fenster mit neuen, die sich am historischen Vorbild mit geteilten Oberlichtflügeln orientieren. Auch den Originalmaterialien kam viel Sorgfalt zu: Die Fischgrätböden in den Wohnräumen wurden geschliffen und geölt, die gesprenkelten Plättli im Treppenhaus konnten erhalten bleiben, wie auch die Schachbrettböden in den Küchen. In den Bädern nahm das Architekturbüro den ursprünglichen Bodenbelag auf. 

Der grosse Widerspruch

«Einfaches Bauen» klingt gut, gleicht aber in der Praxis eher einem Spiessrutenlauf. Die gesetzlichen Vorgaben gelten für Umbauten genauso wie für Neubauten – ohne Pardon. In Altstetten mussten die Architektinnen einige widersprüchliche Vorgaben umsetzen: So wurde das Fenster eines Lagerraums im Untergeschoss zugemauert, damit der Raum nicht als wohnlich gilt und damit die Ausnutzung überschreitet. Ein Badezimmer im vierten Stock sollten die Planenden rollstuhlgängig umsetzen, obwohl das Haus über keinen Lift verfügt. Für den Fall eines Besuchs. Die Tür musste deshalb gegen aussen aufschwingen, was den Grundriss durcheinanderbrachte.

Absurde Kleinigkeiten? Vielleicht. Aber faktisch binden solche Vorgaben erheblich Zeit, Geld und Energie und schrecken viele Bauherrschaften wie auch Planende vom Umbauen ab.

Wenig rot, viel schwarz

Die Planung von Sanierungen besteht heute zu einem grossen Teil aus dem Management von Zielkonflikten: zwischen gesetzlichen Vorschriften, Normen, Versicherungsanforderungen und der oft uneinheitlichen Auslegepraxis der bewilligenden Behörden. Die Architekten führen unzählige Gespräche mit Spezialistinnen, Juristen und Bewilligungsstellen – nicht selten mit widersprüchlichen Rückmeldungen.

Das Baugesetz ändert sich auf die Schnelle nicht. (Obwohl es eigentlich höchste Eisenbahn wäre.) Und theoretisch erlauben die SIA-Normen viel Spielraum. In der Praxis aber dominieren Haftungsängste das Vorgehen. 

Hinzu kommt der Planungsaufwand, der sich kaum in Zeichnungen niederschlägt: Schallmessungen, brandschutztechnische Anpassungen, statische Abklärungen, Entrauchungskonzepte und Materialrecherche. Auch deshalb war der Umbau in Altstetten komplex, obwohl die bestehenden Grundrisse nahezu erhalten bleiben konnten. Ein Beleg für die Qualität des Bestands und die Sorgfalt der Architektinnen.

Umbauen erfordert mehr Rückenwind 

Das Projekt konnte nur deshalb erfolgreich umgesetzt werden, weil Expertise, Engagement und Bauherrschaft auf aussergewöhnliche Weise zusammenspielten. Es zeigt exemplarisch, was möglich ist, wenn Bestand ernst genommen und sorgfältig weitergebaut wird: Zusätzlicher Wohnraum entsteht, Strukturen bleiben erhalten und neue Lebensqualität wird geschaffen.

Doch ohne Bauherrschaften, die sich gegen den Abriss entscheiden, und Planende, die bereit sind, durch den Dschungel der Bürokratie zu navigieren, bleiben solche Projekte die ungeliebte Alternative. Wer heute ein Gebäude wie das in Altstetten erhalten will, wird mit denselben Anforderungen konfrontiert wie beim Neubau – hat aber deutlich weniger Freiheiten und muss oft mehr beweisen als jemand, der es ersetzt. Und das, ohne am Ende einen Pritzker-Preis einzuheimsen. 

Standpunkt
 

Im flächendeckenden Um- und Ausbau von bestehenden Bauten liegt ein Hebel mit grosser Wirkung: städte­baulich, ökologisch und sozial. Doch solange Sanierungen kom­plizierter zu realisieren sind als Ersatzneubauten, bleibt die nötige Wende aus. Umbauen braucht Mut – und der ist dringend gefragt: in der Politik, bei Behörden, bei Planenden und in der Gesellschaft. 
 

Aber es braucht mehr als ein paar Idealistinnen und Idealisten mit Durchhaltewillen, die sich dem «einfachen Bauen» mit einer guten Portion Selbstlosigkeit annehmen. Es braucht eine gesetzliche Anpassung für das Bauen im Bestand, bessere Koordination bei den Behörden und mehr politischen Willen. Keine neuen Normen und Richt­linien, sondern mehr Mut, Vertrauen in die Fachleute und ein neues Verständnis von Verantwortung. Und nicht zuletzt eine hohe Anerkennung für unschein­bare Projekte wie dieses – denn das Klima retten wir nicht mit Elbphilharmonien.

Jennifer Bader, Redaktorin Architektur TEC21 

Sanierung mit Dachausbau Altstetterstrasse 189, Zürich
 

Vergabeform
Direktauftrag 
 

Bauherrschaft
Niklaus Leuthold
 

Bauherrenvertretung / Baumanagement
Lentos, Zürich
 

Architektur
AMJGS Architektur, Zürich
 

Tragkonstruktion
Ruggli & Partner Bau­ingenieure Zürich
 

HLKS-Planung
Logus, Dübendorf
 

Elektro-Planung
Christoph Bieri Elektro­anlagen, Zürich
 

Bauphysik / Akustik
BWS Bauphysik, Winterthur
 

Landschaftsarchitektur
Wivena, Ottenbach
 

PV-Planung
Sunconnect, Wädenswil
 

PV-Anlage
27 Module à 395 Wp
 

Energieversorgung
Neue Erdsondenbohrungen mit Wärmepumpe
 

Geschossfläche (SIA 416)
1280 m²
 

Gebäudekosten (BKP 2)
3.2 Mio. Fr. inkl. MwSt.
 

Baukosten (BKP 1–9)
3.5 Mio. Fr. inkl. MwSt.
 

Mietpreise
Erhöhung um 20 %: Etwa von 1600 auf 1850 Fr. für 3.5-Zimmer-Wohnung

Magazine

Verwandte Beiträge