Vi­ce ver­sa

Bei der Sanierung einer Villa aus dem 19. Jahrhundert am Genfersee arbeitete Charles Pictet fast lautlos und interpretierte dabei vieles neu: Die Eingriffe fügen sich in den Bestand und ergeben ein stimmiges Bild.

Data di pubblicazione
14-09-2017
Revision
03-03-2019

Viele Teile habe er kopiert, manche sogar erfunden, ausser der Patina. Diese legt sich nun sacht über das von Charles Pictet rückgebaute und restaurierte Haus aus dem 19. Jahrhundert, dessen früheres Erscheinungsbild er im Verlauf des Umbaus vielerorts frei interpretierte. Wenn sich dann einmal eine weitere Schicht über das Haus an der malerischen Hafenpromenade am Genfersee ­gelegt hat, wird vielleicht niemand mehr feststellen können, aus welchem Jahrhundert die verschiedenen Bauteile stammen – so detailgetreu haben die Architekten das 19. Jahrhundert interpretiert.

Die Logik der Renovation war es, ein neues ­Ganzes aus den verbliebenen Fragmenten aus dem 19. und  verschiedenen Eingriffen aus dem 20. Jahrhundert zu schaffen. Knapp zwei Jahre sind seit dem Abschluss der Bauarbeiten vergangen. Das Haus zählt die Zeit nicht, sondern lässt ihre Konturen verwischen: Was neu und was alt ist, erschliesst sich teilweise erst auf den zweiten Blick und in vielen Fällen gar nicht. Im 19. Jahrhundert waren z. B. die gerundeten, originalen Tür- und Fenstergriffe, die hier wieder eingebaut sind,  auf kleinere Handflächen zugeschnitten, als dies heute üblich ist. Und trotzdem schmiegen sie sich auch im 21. Jahrhundert selbstverständlich in die Berührung – wie das ganze Haus. Die  Messinggriffe waren alle erhalten, vieles andere der originalen Bausubstanz nicht. Auch die Baupläne des ursprünglichen Hauses, das auf dem Waadtländischen Katasterplan mit 1850 datiert ist, sind im Lauf der Zeit verloren gegangen, sodass sich die Architekten beim Umbau nicht darauf beziehen konnten.

Neuorientierung durch 180°-Drehung

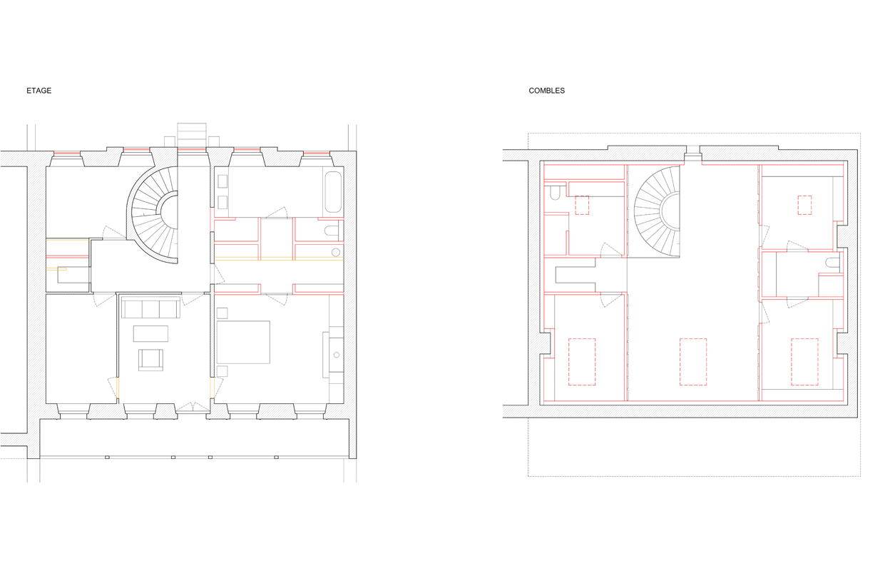
Das stimmige Gebäudeensemble, heute bestehend aus dem sanierten Haupthaus und einem neu interpretierten Gartenhaus, wurde im Zuge dieser Renovation in eine neue Ordnung gebracht. Der grundlegendste Eingriff in die Typologie des Hauses war es, die zum Wasser gelegene Rückseite zur eigentlichen Eingangsseite umzudeuten. Die spiegelsymmetrischen Grundrisse um eine zentrale Treppe ermöglichen diesen raffinierten Schachzug, ohne den Charakter der Villa zu schmälern. Der Eingang liegt nun auf der Gartenseite und – entsprechend dem abfallenden Gelände – eine Etage tiefer als zuvor, im neu freigelegten Gartengeschoss.

Mit der Zuwendung zur Öffentlichkeit erhält auch der Garten eine neue Gestalt. Der See ist inzwischen nicht mehr ein von einzelnen Fischerbooten durchzogenes Landschaftsbild, sondern – durch die touristische Prägung – zu einer lebendigen Umgebung geworden. So spiegelt die neue Ausrichtung auch die neue Bewertung des Seeufers als Erholungszone, in der Fischerei und Gewerbe nur noch eine marginale Rolle spielen. Das macht die Verlegung des Zugangs im Bezug auf die räumliche Einbettung glaubwürdig. An der Hafenseite des Grundstücks, vor 150 Jahren der wenig repräsentative Teil, entstand der neue Eingang. Eine Garage mit Giebeldach, die früher wie ein Pavillon zwischen Haus und See lag, ist einem sichtbar zeitgenössischen Gartenhaus gewichen, das ein Portal bildet. Es beherbergt funktionale Bereiche wie die Eingangstreppe und den Fahrzeugunterstand. Das Garagendach ist gleichzeitig die Aussichtsterrasse, von der sich der Genfersee überblicken lässt.

Ein fast über die gesamte Grundstücksbreite messender Betonbalken markiert die Vorderkante der neuen Terrasse. Er nimmt das Spitzbogenornament der hölzernen Balkonbrüstungen des Haupthauses in einem Relief auf. Dieses Motiv wirkt, obwohl in Beton gegossen, keineswegs modern, sondern unterstreicht im synthetischen Geist des Hauses den Gesamt­eindruck, der ganz dem Erbe des 19. Jahrhunderts verpflichtet ist.

Die Ankommenden durchschreiten das Gartenhaus auf dem Weg zum Haupthaus, dessen Hof­fassade zur neuen Schaufassade geworden ist. Der Zugang in die Villa befindet sich hier in der vorgelagerten transparenten Schicht, der Veranda, mit der sich der ehemalige Keller zum Garten öffnet. Statt der engen Eingangssituation, wie sie von der Strassenseite eine Etage höher gegeben ist, führt jetzt eine grosszügige Halle zur ­Treppe, die zu diesem Zweck hinunter ins neue Zugangsgeschoss verlängert wurde. Sie bildet weiterhin den Dreh- und Angelpunkt des internen Wegnetzes. Im anschliessenden Geschoss belegen Küche, Esszimmer, Salon und Büro unverändert die vier Quadranten. Enthoben von seiner Funktion als Entree stimmt nun die Proportion des schmalen Flurs.  Mit ebensolcher Selbstverständlichkeit gruppieren sich in den Obergeschossen Schlafräume und Bäder um das Halbrund der prominenten Treppe.

Intervention, Integration, Interpretation

Charles Pictet spricht von der Stimmung und nicht von den handwerklichen Techniken, wenn es darum geht, die Interventionen im Sinn eines analogen Eingriffs zu erläutern. So gibt es auch keine Trennung zwischen Rückbau, Restaurierung und Interpretation. Die Ve­randa im Gartengeschoss des Haupthauses, die aussieht, als sei sie schon immer dagewesen, ist mit einer neuen Verglasung geschlossen worden, deren durch die Mundblastechnik unregelmässig dichten ­Zylinderstreckgläser aufs Sorgfältigste in die dunkelgrüne Holzfassung eingekittet sind.1 Die Farbe bildet ein Gegengewicht zum Rot der oberen Geschosse und steht im Dialog mit dem wassergrün getönten Kalkabrieb an der inneren Fassade. Wo 1850 noch Erdreich und 1960 eine weisse Betonkellerwand stand, präsentieren sich heute bis in die Details der Sandkörner und Farbpigmente wohnliche Räume im Sinn des 19. Jahrhunderts.

Die fehlenden Angaben zur originalen Bausubstanz machten das Restaurieren genau wie das Zurückführen in einen angenommenen originalen Zustand  zu einem Prozess der Interpretation dessen, was hier hätte gewesen sein können. Zum Beispiel hätte es bereits ursprünglich die drei Dachgauben geben können, die nun die Transformation des Dachgeschosses in ein Wohngeschoss abbilden. Auch die Vorfenster, wie sie nun auf der ehemaligen Zugangsseite im Norden aufgesetzt sind, wurden nachträglich ergänzt. Mate­rial und Konstruktion sind dem 19. Jahrhundert nachempfunden. So hält die zweischichtige Fassade den Motorenlärm, der heutzutage statt des Kutschengeklappers hereinklingt, ein wenig auf Abstand.

Zwei neue Wohnebenen fügen sich ein

Die jetzige dreigeschossige Erscheinung des Gesamt­volumens verändert die Proportionen des Hauses. Bereits in den 1950er-Jahren wurde der Garten um mehr als ein halbes Geschoss abgegraben und das Haus so unterhöhlt, dass statt des Hohlraums für Leitungen und Unterlüftung auf der Ebene des Gartens neue Räume unter dem zweigeschossigen Holzhaus entstanden. ­Diesen Eingriff haben Charles Pictet Architekten zurückgebaut, um ihn anschliessend  massiv zu erweitern: Dazu wurden im Innern viele Kubikmeter Beton und die Betonfertigelemente der Treppe entfernt. Die Untergrabung wurde zu einem vollwertigen Geschoss auf­gewertet, das nach oben hin mit den belassenen, nur mit einem Anstrich erneuerten Holzbrettern der Deckenverkleidung abgeschliesst.

Das strassenseitige Eingangsgeschoss wurde so auf der Seeseite durch eine neue Treppe mit dem Gartengeschoss verbunden. Im Innern führt das Halb­rund des alten Treppenauges heute bis hinunter zum Gartenniveau. Die Balkonschicht erweitert sich mit einer von den ornamentalen Holzgeländern inspirierten Leichtigkeit in den Garten.

Suffizienz statt Effizienz: ein Haus mit Jahreszeiten

Das klimatische Konzept folgt der Logik des 19. Jahrhunderts: Im Winter müssen die Bewohner einen Pull-over mehr anziehen, im Sommer die Fenster öffnen und querlüften – so entspricht es ihrer Vorstellung vom Umgang mit den Jahreszeiten und von einer dem Haus angemessenen Lebensform. Geheizt wird hier konventionell, als Ersatz für die Kohleheizung, die bis zu dieser umfassenden Renovation in Betrieb war. Saisonale Temperaturunterschiede und eine Geräuschkulisse von aussen nehmen Bauherrschaft wie Architekt auch nach der aufwendigen Renovation gern als Teil der ­Stimmung in Kauf. Das Einfügen eines zukunftsorientierten Energiesystems betrachtet Charles Pictet in diesem Fall als unangemessen. Das Herstellen einer dichten Gebäudehülle hätte so viele Veränderungen mit sich gebracht, dass der luftige Charakter des Hauses darunter erstickt wäre. So hat er das auf niedrigerem Level in sich schlüssige System optimiert und zum ­Status quo erklärt. Da das Haus nicht sehr grossräumig ist, lassen sich einzelne Bereiche dem jeweils gewünschten Klima leicht anpassen.

Insgesamt bildet die Villa ein stimmiges Ganzes – fein geknüpft wie ein Teppich, in dem jeder Faden, egal aus welchem Jahrhundert oder Material er sei, mit der gleichen Liebe ins Geflecht eingefügt ist.

Anmerkung
1 Hans Reiner Meindl: Mundgeblasene Flachgläser (Zylinderglas) – Vielfalt und Anwendung im Denkmalbereich. In: B. Weller, S. Horn (Hrsg.) Denkmal und Energie 2016. Springer Vieweg, Wiesbaden, ISBN: 978-3-658-11983-6_3

Am Bau Beteiligte
 

Architektur
Charles Pictet architecte FAS SIA
Philippe Le Roy Architecte


Tragwerksplanung
ESM Ingénierie SA


Heizung und Sanitär
B&S Halili, Lavigny


Geometer
BS+R Bernard Schenk, Nyon


Maurerarbeiten
Qualibuild, Burtigny


Schreinerarbeiten
Duret, Genf


Dachdeckerarbeiten
Hanhart toiture, Nyon


Steinmetzarbeiten
Mello et Fils, Genf


Elektrik
Dubey, Payerne


Gipser- und Malerarbeiten
Pelosi, Les Acacias


Metallarbeiten
Metallover, Carouge


Fliesenarbeiten
Stoppa Pascal, Carouge


Marmorarbeiten
Lardi marbrerie, Plan-les-Ouates


Kunstschreiner
Petite Menuiserie, Genf


Landschaftsplaner
Alain Wegmann, Genf

Articoli correlati