Una strut­tu­ra mas­sic­cia

Con il Berglodge Goms, Roman Hutter Architektur ha re­inter­pretato la costruzione a tronchi sovrapposti tipica della zona di Münster (VS): una soluzione di certo non economica, ma sicuramente durevole, ecocompatibile e autentica.

Publikationsdatum
09-10-2023

Quando il committente del Berglodge Goms, Patrik Birri, ha chiesto un’ipoteca per realizzare il suo progetto, la banca ha preteso che si optasse per una struttura in legno prefabbricata, una soluzione standard economicamente conveniente rispetto alla proposta di una costruzione a tronchi di legno sovrapposti avanzata dallo studio di architettura di Roman Hutter, ritenuta troppo complessa e costosa. Birri, tuttavia, non ha sentito ragioni: ha investito ulteriori risorse proprie, si è rivolto a un’altra banca, ha convinto l’Aiuto svizzero alla montagna che l’edificio avrebbe rappresentato un valore aggiunto per il territorio, ottenendo così un contributo cui si sono aggiunti il prestito ricevuto dalla Nuova politica regionale (NPR) e un sussidio da parte del Canton Vallese (CCF). È preoccupante che ancora oggi miopi considerazioni economiche risultino decisive nella concessione di prestiti, impedendo in alcuni casi la realizzazione di edifici solidi e durevoli.

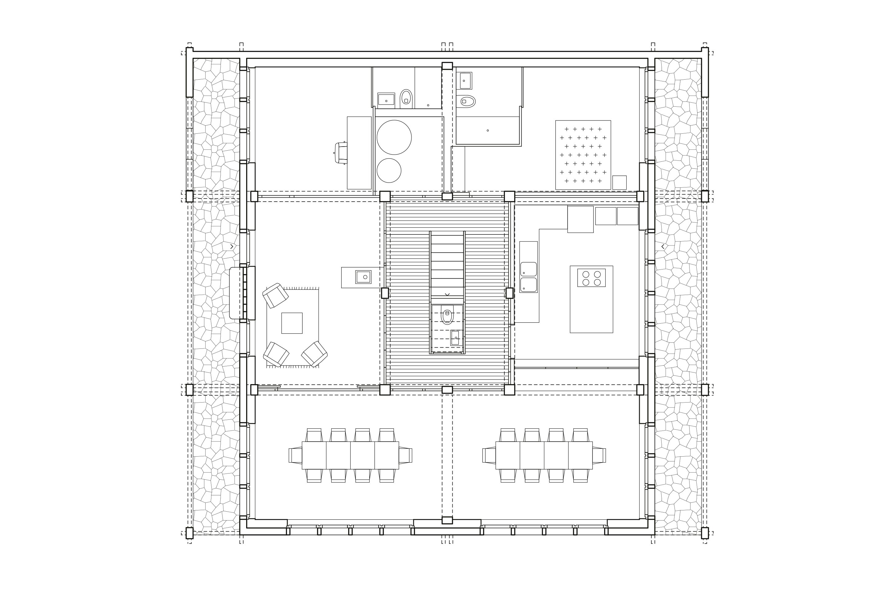
Il piccolo hotel Berglodge sorge ai margini del villaggio di Goms, alla fine di un conoide di deiezione. Tra la ferrovia che porta ad Andermatt e i campi coltivati, lo sguardo spazia sui prati e il Weisshorn. Sei camere indipendenti, uguali, disposte attorno a una scala, compongono l’edificio insieme a due verande longitudinali. La struttura, in tronchi di larice e abete, poggia su uno zoccolo in calcestruzzo. Dietro l’ingresso con la reception, si trova la cucina; sul lato verso la valle si apre la sala da pranzo per venti persone. Le sei stanze si dispongono ai due piani superiori; il sottotetto è uno spazio a disposizione per lezioni di yoga o ­seminari.

Relax nella natura

Per Birri, che conosce da tempo la valle del Rodano, era importante il riferimento alla tradizione locale. Per questo ha scelto di commissionare il progetto a Roman Hutter, originario della zona, che ha saputo reinterpretare sul piano tipologico e architetto­nico l’antico metodo del «blockbau», di cui gli artigiani locali sono conoscitori esperti. La Holzbau Weger, azienda che ha sede in paese e vanta una vasta esperienza nel settore, si è presa del tempo per montare con perizia le solide pareti in legno dei quattro piani del lodge ma, malgrado qui i lavori siano iniziati più tardi rispetto al vicino cantiere di dimensioni simili, alla fine tutto è stato ultimato prima.

I muri sono in abete rosso, le parti esposte alle intemperie in larice, con conseguente ottimizzazione del costo dei materiali e della salvaguardia dei boschi di larice soggetti a un pesante sfruttamento. Le pareti coibentate con pannelli in fibra di vetro si presentano non trattate all’esterno, e saponate all’interno. Il pavimento della sala yoga segue il concetto, ribaltato in orizzontale, delle pareti di travi di legno posate con incastri a pettine. Per gli ospiti in cerca di tranquillità, l’acustica è fondamentale: di qui la scelta di una struttura a doppio guscio.

Questo articolo è apparso nella pubblicazione speciale «Città in legno – Hotel e strutture i in legno per il tempo libero». Altri articoli sul legno sono raccolti nel dossier digitale.

Gli spessi muri in legno garantiscono costi del riscaldamento inferiori alle pre­visioni. L’impianto fotovoltaico sul tetto della dependance copre circa l’85% del fabbisogno annuale di energia, di cui una ­parte viene immessa nella rete e utilizzata per ricaricare le auto elettriche. Molti ­mobili provengono dal mercato dell’usato e alcuni tavoli dall’Ospizio del Sempione, oggi chiuso.

Una storia infinita

Le scelte cromatiche s’ispirano al paesaggio circostante: «Basta guardare verso il bosco di larici, chiudere gli occhi … e il gioco è fatto» racconta Birri. Il pavimento della sala da pranzo è realizzato in legno di testa che mette in evidenza il disegno degli anelli annuali, mentre i muri sono intonacati a calce verde chiaro. Le caratteristiche estetiche, ecologiche e meccaniche del materiale hanno convinto sia l’architetto sia il committente, per i quali la naturalità rappresenta un valore primario. Pressatura e lucidatura delle superfici hanno conferito una maggiore intensità cromatica al materiale che, con la luce radente, rivela una sottile lucentezza.

Se un giorno l’edificio dovesse terminare il suo ciclo di vita, una volta smontate, le parti in legno non essendo trattate, potrebbero essere restituite alla natura o, meglio ancora, riutilizzate. Ma Birri è quasi certo che ciò non accadrà, perché qui in Vallese i villaggi sono molto curati, e gli edifici antichi ben manutenuti. Si spera che anche la politica e l’economia comprendano come quest’approccio al progetto, e non le soluzioni standard a basso ­costo, possa rappresentare una risorsa importante per la valle.

Partecipanti al progetto

 

Committenza
Berglodge Goms, Münster

 

Architettura
Roman Hutter Architektur, Lucerna e Münster

 

Direzione lavori, montaggi strutture in legno e falegnameria
Holzbau Weger, Mustair; Gloor Wunschraum, Briga

 

Specialisti
Bacher + Schmid Elektro, Münster; HGM Service, Mörel; Pirmin Jung Schweiz, Rain; Studio Komplett, Zurich e Muri (cooperazione concetto colori e materiali)

 

Ingegneria civile
Anton Imhof Ingenieurbüro, Grengiols; Egg Holz Kälin, Einsiedeln

 

Finestre in legno
Falegnameria Imwinkelried, Fiesch; Egg Holz Kälin, Einsiedeln

 

Camino
Schnyder Kaminbau, Mörel

 

Intonaci a calce
David Braun, Lucerna

 

Edificio

 

Mandato
Incarico diretto

 

Superficie (SIA 416)
710 m2

 

Volume
2003 m3

 

Superfice utile
526 m2

 

Superficie facciata in legno
275 m2

 

Label
Legno Svizzero

 

Legno e costruzione

 

Costruzione
in tronchi abete rosso e larice (Goms e Oberland bernese)

 

Date e costi

 

Progetto e costruzione
2020-2021

 

Costi (CCC 1-9)
2.6 Mio CHF

Verwandte Beiträge