Un ab­ri so­li­de

Pour le nouveau Berglodge à Goms, Roman Hutter Architectes ont adapté le mode de construction traditionnel en panneaux massifs typique de Münster (VS). Un choix certes plus onéreux que la construction en dérivés du bois, mais plus ­durable, naturel et ­matériellement pur.

Publikationsdatum
06-10-2023

Quand le maître de l’ouvrage Patrik ­Birri a sollicité une hypothèque pour son projet hôtelier, sa banque a exigé une solution standard avantageuse, telle qu’une con­struc­tion bois modulaire, estimant le parti massif envisagé par Roman Hutter Architectes trop coûteux en temps et en argent. Mais une autre option n’entrait pas en ligne de compte pour M. Birri. Il a donc investi davantage de fonds propres, cherché une autre banque et obtenu un soutien financier de l’Aide à la montagne, car l’édifice crée une plus-value locale. Il a en outre bénéficié de prêts au nom de la Nouvelle politique régionale (NPR), ainsi que d’aides publiques du Canton du Valais (CCF). Mais il est préoccupant de constater qu’un tel court-termisme préside encore à l’octroi de crédits, au détriment d’ouvrages solides et durables. Le petit hôtel Berglodge est situé en lisière de Goms, au pied d’un cône d’éboulis. La ligne de train vers Andermatt passe en contrebas et, au-delà du replat adjacent voué à l’agriculture, la vue s’ouvre sur les prairies et le Weisshorn.

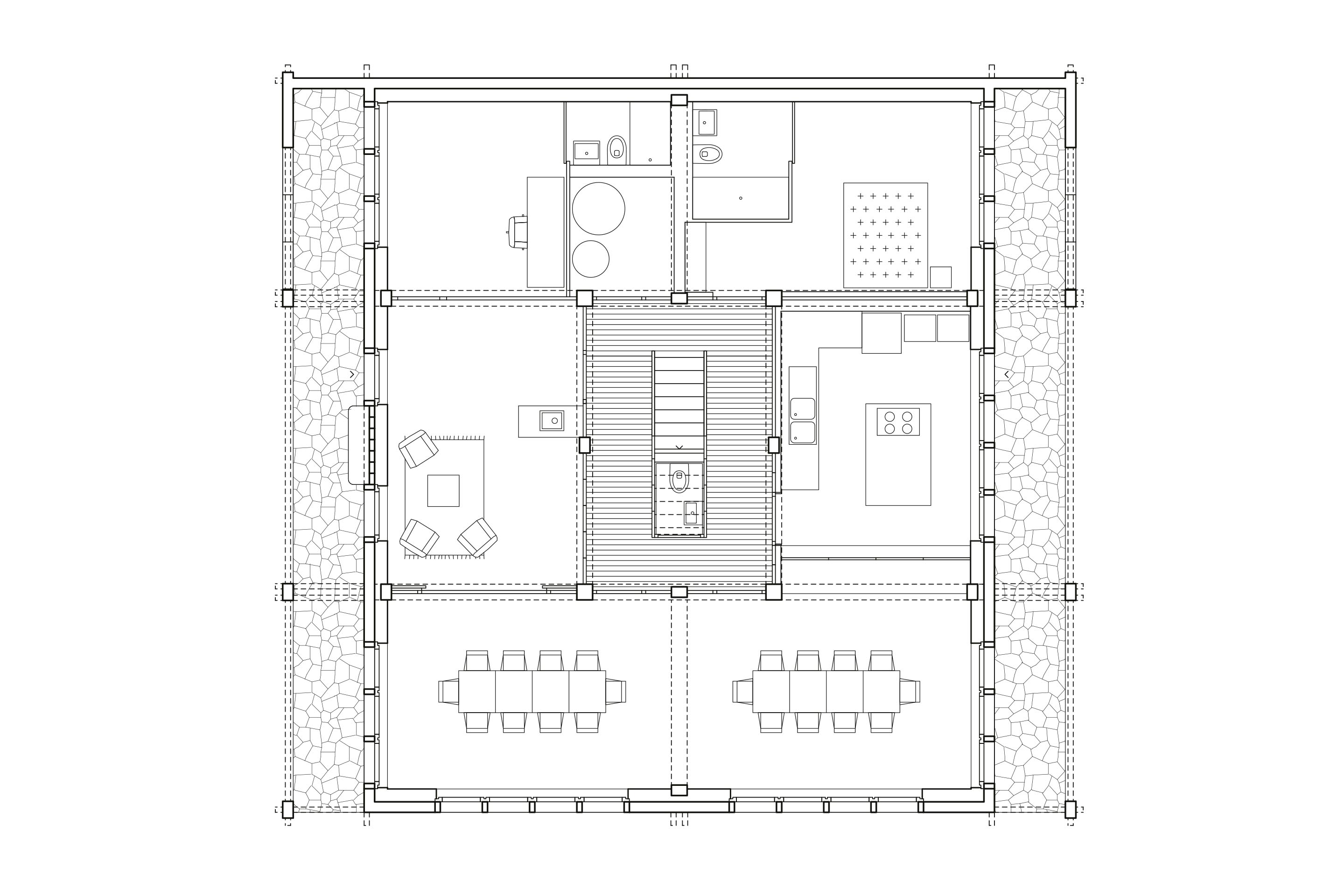
Disposées autour d’une cage d’escalier, six chambres indépendantes semblables constituent la trame du projet avec deux vérandas longitudinales. L’ossature du bâtiment est en épicéa et ­mélèze sur un socle en béton. Derrière l’entrée avec la réception se trouvent la cuisine et, côté vallée, la salle à manger de vingt places. Chacun des deux étages aligne six chambres autour de l’escalier et, sous la toiture, un ­espace peut accueillir cours de yoga ou ­séminaires.

Au calme en pleine nature

Pour Patrik Birri, familier de la vallée du Rhône, la tradition locale est importante, d’où son choix de l’architecte Roman Hutter, natif de la région. Hutter a poursuivi le développement des typologies et du bâti massif traditionnels, que les artisans locaux maîtrisent également. Le savoir-faire de l’en­treprise Weger a assuré le parfait assemblage des parois de bois massif sur les quatre étages du bâtiment. La menuiserie se trouve au village et jouit d’une grande expérience. Bien qu’ayant démarré après le chantier voisin d’une envergure comparable, la réalisation a en l’occurrence été beaucoup plus rapide.

Cet article est paru dans le numéro spécial «Ville en bois – Hôtels et bâtiments en bois pour les loisirs». Vous trouverez d'autres articles sur le thème du bois dans notre dossier numérique.

Les parois sont en épicéa et les parties exposées aux intempéries en mélèze. Cela a permis d’optimiser le coût des matériaux et de ménager les ressources forestières en ­mélèzes, déjà fortement sollicitées. Isolées par des panneaux de fibres, les parois ne sont pas traitées à l’extérieur et saponifiées à l’intérieur. Le sol de la salle de yoga reprend l’encastrement par nervure et rainure des poutres de paroi, ensuite renversées de 90 degrés à l’horizontale. Et pour garantir l’acoustique attendue par les hôtes qui viennent ici pour jouir du calme, la structure déploie une double épaisseur.

Les parois en bois massif font aussi que les frais de chauffage sont plus bas qu’estimés. L’installation photovoltaïque sur le toit du bâtiment voisin couvre quelque 85 % de la consommation électrique annuelle, une part du courant produit étant stockée sur le réseau pour la recharge des voitures électriques. Une bonne partie du mobilier provient de brocantes et plusieurs tables de l’ancien hospice du Simplon, ­aujourd’hui désaffecté.

Pas de fin en vue

Les choix chromatiques s’inspirent de l’environnement: «Tournez-vous vers la forêt de mélèzes, plissez un peu les yeux et vous y êtes», d’après Birri. Le sol de la salle à manger est un parquet de fronts de grumes arborant des cernes annuels et les parois sont enduites de pâte de chaux grasse vert pâle. Les qualités esthétiques, écologiques et mécaniques du matériau con­vain­quent autant l’architecte que son maître de l’ouvrage, tous deux attentifs à sa provenance biosourcée. Après pressage et polissage de la surface, sa couleur s’est intensifiée et il prend un aspect satiné sous une lumière rasante.

Le jour où le bâtiment atteindra la fin de son cycle de vie, les éléments de bois pourraient simplement être désassemblés. Et comme ils ne sont pas traités, ils pourraient retourner au cycle naturel – ou mieux: être réemployés. Birri est pratiquement sûr qu’il ne verra pas cette étape. Il considère que les villages valaisans sont très soignés et les vieux édifices bien pré­servés. C’est là un des atouts majeurs de la vallée – il reste à espérer que le monde politique et l’éco­nomie le comprennent aussi, car les solutions standard bon marché ne parlent pas ce langage.

Participants au projet

 

Maître de l’ouvrage
Berglodge Goms, Münster

 

Architecture
Roman Hutter Architektur, Lucerne et Münster

 

Encadrement, construction en bois et menuiserie
Holzbau Weger, Mustair; Gloor Wunschraum, Brigue

 

Planificateurs
Bacher + Schmid Elektro, Münster; HGM Service, Mörel; Pirmin Jung Schweiz, Rain; Studio Komplett, Zurich et Muri (coopération concept couleurs et matériaux)

 

Statique
Anton Imhof Ingenieurbüro, ­Grengiols; Egg Holz Kälin, Einsiedeln

 

Fenêtres en bois
Menuiserie Imwinkelried, Fiesch; Egg Holz Kälin, Einsiedeln

 

Cheminée
Schnyder Kaminbau, Mörel

 

Crépi à la chaux grasse
David Braun, ­Lucerne

 

Bâtiment

 

Approvisionnement
Commande directe

 

Surface (SIA 416)
710 m2

 

Volume
2003 m3

 

Surface utile
526 m2

 

Surface façade en bois
275 m2

 

Label
Bois Suisse

 

Bois et construction

 

Construction
Construction en panneaux massifs, épicéa et mélèze (Goms et Oberland ­bernois)

 

Dates et coûts

 

Projet et construction
2020-2021

 

Coûts (CFC 1-9)
CHF 2.6 mio

Verwandte Beiträge