Of­fe­ne Wun­den und fei­ne Brü­che

Umbau des Sitzes einer Kunststiftung

Umbauten sind in Warschau heikel. Im Zweiten Weltkrieg haben die deutschen Besatzer die Innenstadt systematisch zerstört; die Rekonstruktion des historischen Erbes und die politische Agenda der UdSSR prägten den Wiederaufbau. Dennoch gelang es Diener & Diener, einen überzeugenden architektonischen Beitrag zum Thema Transformation zu leisten.

Data di pubblicazione
08-07-2015
Revision
01-11-2015

Die Galerie Foksal, 1966 gegründet und nach der gleichnamigen Strasse in der Innenstadt von Warschau benannt, galt als die wichtigste Avantgarde­galerie im sozialistischen Polen. Von Künstlern und Kunstkritikern ins Leben gerufen, behielt sie ein von staatlichen Doktrinen weitgehend unabhängiges Profil. Sie knüpfte – auch personell – an die konstruktivistische Tradition der Vorkriegszeit an, verstand es aber überdies, re­nommierte Vertreter der westlichen Kunstszene einzuladen und damit den internationalen Austausch zu befördern.

Das Ende des Sozialismus führte zur in­haltlichen wie wirtschaftlichen Neuorientierung; die Gründung der Foksal Gallery Foundation FGF im Jahr 1997 war verbunden mit der Hoffnung, das Unternehmen finanziell abzu­sichern. Relativ bald indes trennten sich die Wege: Die Galerie Foksal wird als staatliche Institution weitergeführt, während die FGF als private Stiftung ein eigenes Ausstellungsprogramm umsetzt (vgl. Kasten).

Filigran gegen Stalins Traditionalismus

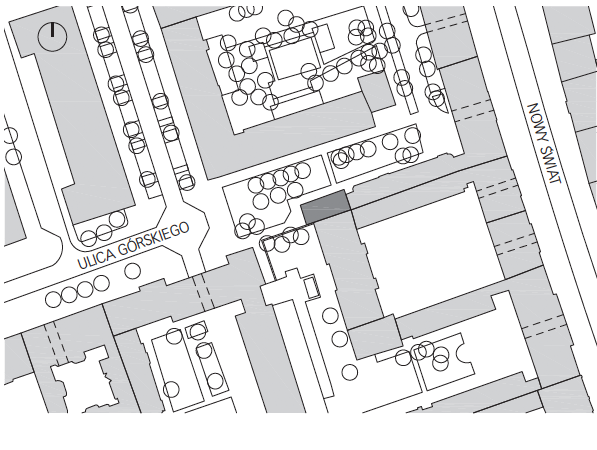
2001 zog die Stiftung aus den angestammten Räumen der Galerie Foksal im Zentrum von Warschau aus und bezog eine Liegenschaft in der unmittelbaren Nach­barschaft an der ulica Górskiego 1a. Das Gebäude, zuvor Domizil des Kunsthandwerkerverbands, stammt aus dem Jahr 1963 und befindet sich auf der Rückseite der Nowy S´wiat, der Neue-Welt-Strasse. Diese zählt zum Königsweg, der historisch bedeutsamen Nord-Süd-Achse, die das Schloss von Warschau mit den ­Park­anlagen von  azienski und Wilanów verbindet. Nach der Zerstörung durch die deutschen Besatzer ­wurden auch die Häuser des Königswegs zu Beginn der 1950er-Jahre wiederaufgebaut, wobei man sich ­allerdings – anders als in der Altstadt – auf die Rekonstruktion des Fassadenbilds beschränkte.

Biegt man von der Nowy S´wiat über eine Tordurchfahrt in die ulica Górskiego ein, prägt der Neotraditionalismus der Stalin-Ära das Bild. Die arkaden­gesäumten Häuser an der Querstrasse Juliana Tuwima sind eine Phantasmagorie Italiens, gesehen durch die sowjetisch gefärbte Brille polnischer Architekten. Sie gehören zur Wohnbebauung Nowy S´wiat West, die von 1949 bis 1956 von Zygmund Ste pinski errichtet wurde, und repräsentieren den sozrealistischen Wiederaufbau der Innenstadt von Warschau, der im stadtbeherrschenden Kulturpalast von 1955 seinen Höhepunkt fand, dem nach Polen verschlagenen Abkömmling der berühmten Moskauer «Sieben Schwestern».

Wenige Jahre später errichtete der Architekt Leszek Klajnert das Haus für den Kunsthandwerkerverband auf einer Eckparzelle. Programmatisch brach es mit dem Traditionalismus der Stalin-Ära: Zwischen dem rahmenden Betonskelett, das die Ecken betonte, waren die Fassaden als filigrane Metall-Glas-Struktur ausgeführt; ein Laubengang erschloss die Ateliers des ersten Obergeschosses, ein Vitrinenvorbau akzentuierte das Erdgeschoss.

Nachdem die Stiftung das Gebäude rund zehn Jahre lang genutzt hatte, sah sie sich wegen der maroden Fassade zum Handeln gezwungen. Eine Sanierung der Curtain Wall schied angesichts des schlechten Zustands aus. So gab es nur zwei Möglichkeiten: eine voll­stän­dige Rekonstruktion der bestehenden Fassade – oder die Umhüllung mit einer neuen. Die Eigentümer entschieden sich für letztere Strategie.

Einerseits wollten sie ein Zeichen setzen gegen den Rekonstruktionswahn, durch den einige Gebäude der Nachkriegsmoderne zu zeitlosen Ikonen stilisiert werden, während andere ­hemmungslos dem Abriss zum Opfer fallen; andererseits waren die Galerieräume mit ihren voll­flächigen Fassadenverglasungen schwer zu nutzen, sodass eine andere Fassadengestaltung Vorteile bot. Aufgrund der guten Kontakte nach Basel entschied man sich, Roger Diener mit dem Umbau zu betrauen, der mit dem Centre Pasquart in Biel (2000) oder der Erweiterung des Museums für Naturkunde in Berlin (2010) bewiesen hatte, wie in einem schwierigen Kontext eine Balance zwischen zeitgenössischer Intervention und historischer Referenz gefunden werden kann.

Neue Curtain Wall mit Betonelementen

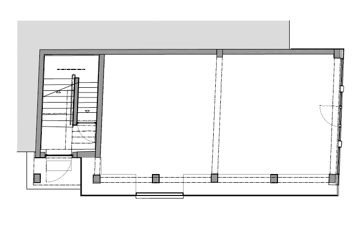
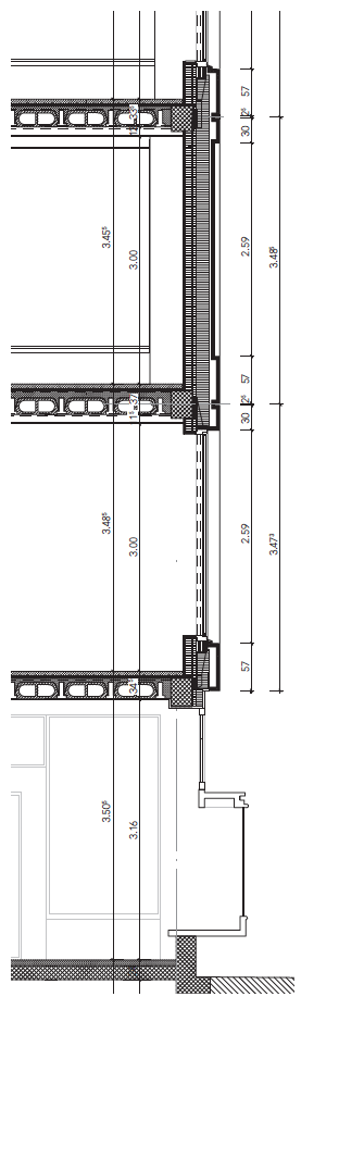
Da sich die Tragstruktur des Hauses als intakt erwies, liess sie sich problemlos für die Installation einer ­neuen Fassade verwenden. Diese besteht aus geschosshohen Betonelementen. Sie übergreift die von der Stiftung genutzten Obergeschosse, während das Erdgeschoss, in dem ein Coiffeur etabliert ist, nicht berührt wurde. Die Abmessungen der einzelnen Elemente reagieren auf die Tragstruktur des Gebäudes: An der Längsseite folgen pro Geschoss auf ein schmales Element vor dem Treppenhaus zwei breite; die Stirnseite weist auf jedem Geschoss lediglich ein breites Element auf. So ergeben sich insgesamt zwölf Elemente: neun breite, die die Galerieräume umgeben, und drei schmale im Bereich des Treppenhauses.

Die Elemente aus grauem ultrahochfestem Beton basieren auf dem Gedanken des Rahmens. In sieben der zwölf Elemente sind Fenster eingelassen: Doppelfenster in den breiten, Einzelfenster in den schmalen. Die übrigen Elemente sind geschlossen, doch wird das Rahmenthema aufgegriffen, wobei die gerahmten Flächen entweder vor- oder zurückspringen. Durch den Wechsel von offenen und geschlossenen Flächen entstehen auf den drei vom Grundriss her identischen Flächen unterschiedlich gerichtete Räume mit unterschiedlicher ­Belichtung und unterschiedlichen Ausblicken.

Die Verwaltungsbereiche im 1. OG werden von Norden her belichtet, die Ausstellungsebene im 2. OG orientiert sich lediglich nach Osten, während die Ausstellungs­ebene im 3. OG mit Fenstern auf der Nord- und Ost­seite maximal geöffnet ist. Darüber ist eine von der abschliessenden Attika eingefasste Dachterrasse entstanden, für die das Treppenhaus aus der Entstehungszeit – samt Terrazzo und Handlauf – bruchlos fortgeführt wurde. Im Innern sind die Räume ertüchtigt worden: Die Heizung ist neu im Anhydritboden verlegt, weisse Wände und Decken samt integrierten, linear angeordneten FL-Röhren wirken unprätentiös und dem Zweck des Gebäudes angemessen.

Individualität, Differenzierung und historisches Bewusstsein

Auch wenn die Eliminierung der historischen Fassade in Warschau kontrovers diskutiert wird: Hier ist ein Umbau entstanden, der einlöst, was Luigi Snozzi in seinem bekannten Diktum gefordert hat: dass, wenn man zerstöre, man es mit Verstand tun solle. In einer städtebaulichen Umgebung, die von Rekonstruktionen historischer Gebäude, vom sozialrealistischen Tradi­tionalismus, von Zeugen des Spätmodernismus der 1960er- und 1970er-Jahre und von neuerer Investorenarchitektur der postsozialistischen Ära bestimmt wird, hat Roger Diener ein kluges Umbauprojekt realisiert. Es nutzt die Struktur des Ursprungsbaus von 1963 und lässt sie kenntlich werden; überdies erweist es mit seinen präfabrizierten Betonelementen dem Plattenbau vergangener Jahrzehnte seine Reverenz. 

Gewiss kann man einwenden, die einstige Leichtigkeit der Fassade sei nun einer gewissen Monu­men­talität gewichen, die durch die Massivität der Betonplatten evoziert wird. Doch diese Veränderung ist plausibel, weil hier bewusst nicht auf Rekonstruktion oder Nachempfindung gesetzt wird, sondern auf eine Weiterentwicklung. Und der Eindruck des Monumentalen relativiert sich, wenn man genauer hinsieht: Zielte der herkömmliche Plattenbau auf Modularität und Typisierung, so zeigt er sich hier individualisiert.

Nicht nur dadurch, dass die Rahmenfüllungen unterschiedlich ausgebildet sind; es zeigt sich auch, dass die Elemente differierende Formate haben. Nicht zuletzt als Resultat des Grundrisses, der kein Rechteck, sondern ein leichtes Parallelogramm bildet, stossen die Ele­mente unterschiedlich aneinander: Fugen sind leicht versetzt, und an der Ecke entsteht ein von Geschoss zu Geschoss sich veränderndes Gefüge. Durch diese Irritation wird die Massivität der Platten subtil ihrer Monumentalität beraubt, wird das Statische optisch dynamisiert.

Die Abweichung von der Regel mag man als Intervention in der Stadt programmatisch verstehen. Kaum eine europäische Stadt ist derart von Gegensätzen urbanistischer Strategien der Nachkriegs­dekaden geprägt wie Warschau. Die Foksal Gallery Foundation bildet ein städtebauliches Scharnier an einer Strassenachse, die zentral auf den Kulturpalast im Westen zuläuft. Im Bewusstsein von Fragment und Bruch ist ein Umbau entstanden, der die Heterogenität der urbanen Textur auf intelligente Weise sichtbar macht. 

Am Bau Beteiligte


Bauherrschaft
Foksal Gallery Foundation, Warschau


Architekt
Diener & Diener Architekten, Basel


Architekt vor Ort
DJiO Sp. z o.o, Warschau, arch. Piotr Jurkiewic


Bauleitung und Projektmanagement
Urbana S.C., Warschau,arch. Mikolaj Mundzik,
mgr inz. Wiktor Kazimierczak


Tragwerksplanung
KiP Sp. z o.o, Warschau, mgr inz. Piotr Kapela


Elektroplanung
mgr inz . Jaroslaw Derlacki, Warschau


Haustechnikplanung
mgr inz . Grzegorz Robakowski, Warschau


Generalunternehmer
Mermaid construction Sp. z o.o., Warschau


Fassadenplaner (beratend)
Emmer Pfenninger Partner AG, Münchenstein

Weitere Informationen


Grundstücksfläche: 108 m2

Bruttogeschossfläche: 487 m2

Volumen: 1642 m3

Planungszeit: 2011–2014

Bauzeit: 2011–2015

Nutzung: Ausstellungsräume, Büro, Lager

Materialien: Vorfabrizierte Fassadenelemente: Ductal. Beton (Ultrahochleistungsbeton mit organischer Faserbewehrung), Dicke: 4 cm

Verputz Fassade: Silikatputz gestrichen

Fenster (Schiebe- und Fix-): Aluminiumfenster pulverbeschichtet, Vitrocsa TH+

Glas: Doppel-Isolierglas, alle Gläser in Weissglas

Bodenbelag Dachterrasse: Naturstein, Basalt Lava

Handlauf Dachterrasse: Massivholz, Western Red Cedar

Spenglerarbeiten Dach und Brüstungsabdeckungen: Vorbewittertes Titanzinkblech

Verputz Treppenhaus: Eingefärbter Silikatputz

Neue Treppe, Deckbelag: Terrazzo

Boden 1., 2., 3. OG: Geschliffener Anhydritestrich(Calciumsulfat-Fliessestrich)

Wände 1., 2., 3. OG: Fermacell Gipsfaserplatten, Variovlies gestrichen

Leuchten Galerie/Treppe: Fluorescent Leuchte für Seamless Leuchtmittel, Hadler Luxsystem SL 20.2, eingebaut


Foksal Gallery Foundation

Die Foksal Gallery Foundation FGF wurde 1997 gegründet. Gründungsdirektoren waren Joanna Mytkowska (seit 2007 Direktorin des Museums für Moderne Kunst Warschau), Adam Szymczyk (2003–2014 Direktor der Kunsthalle Basel und Leiter der documenta 2017 in Kassel und Athen) und Andrzej Przywora, der die Geschicke der FGF weiterhin lenkt. Die Stiftung, die auf der Kunstmesse «Liste» in Basel erste internationale Erfolge erzielte, agiert zwar wie eine kommerzielle Galerie, reinvestiert die Gewinne aber in die Förderung aktueller Kunstprojekte und in die Bewahrung des kulturellen Erbes in Polen. Die Stiftung arbeitet mit etablierten Kunstschaffenden wie Pawe? Althamer (vgl. «Eingepasst, nicht angepasst») zusammen; sie betreibt aber auch Nachwuchsförderung. Mit ihren Ausstellungen versucht sie, dem polnischen Publikum internationale Grössen näherzubringen. Die Stiftung initiierte Forschungsprojekte zur polnischen Kunst der 1960er- und 1970er-Jahre. Dazu zählt etwa das Atelier des Galeriemitbegründers Edward Krasin´ski, der als ­Klassiker der polnischen Neo-Avantgarde gilt und seit Anfang der 1970er-Jahre mit dem eine Generation älteren Henryk Stazewski das Atelier teilte. Im obersten Geschoss eines Wohnhauses aus den 1960er-Jahren gelegen, wirken die Räumlichkeiten noch heute so, als habe der Künstler, der vor allem durch seine in Höhe von 1.30 m an den Wänden angebrachten blauen Klebestreifen bekannt wurde, sie gerade erst verlassen.

Magazine

Articoli correlati