Er­fri­schend ra­di­kal

Neubau Klassentrakt Schulhaus Wallrüti Oberwinterthur

Schneider Studer Primas Architekten gewinnen mit ihrem konsequenten Projekt den Wettbewerb für den Neubau des Klassentrakts im Schulhaus Wallrüti. Ihr unkonventioneller Vorschlag ist eine schlüssige Antwort auf die im Wettbewerb explizit gesuchte Design-to-Cost-Lösung.

Data di pubblicazione
17-02-2017
Revision
17-02-2017

Die Schulanlage Wallrüti des Winterthurer Architekten Heinrich Irion muss nach über vierzig Jahren Betrieb durch einen Neubau ersetzt werden. Die kubisch differenzierte Anlage von 1974 war nicht sehr langlebig. Eine anfänglich vorgesehene Sanierung der Stahlbauten und Cortenstahl­-Fassaden erwies sich als zu aufwendig, und die negativen Folgen für den Schulbetrieb als zu gross. Die Energiebilanz wäre ungünstig geblieben, und die Behindertengerechtigkeit trotz sehr hohen Kosten unerreicht. So wird die gesamte Anlage nun schrittweise durch Neubauten ersetzt: Zunächst ist der Klassentrakt an der Reihe, während die Turnhallen- und Sing­saaltrakte noch bis etwa 2030 in Betrieb bleiben sollen und vorerst nur moderat saniert werden.

Kosten als Entwurfsparameter

Für den Ersatzneubau des Klassentrakts mit 28 Schulzimmern, Gruppenräumen, Nebenräumen, Bibliothek und Lehrpersonenbereich wurde vom Stadtrat ein maximaler Kostenrahmen von 19 Millionen Franken vorgegeben und weitere 11 Millionen für die Instandsetzung der bestehenden Anlage. Mit einem öffentlichen, anonymen, zweistufigen Wettbewerb wurde explizit nach einer Design-to-Cost-Lösung gesucht. Mit diesem Vorgehen möchten die Auslober aufzeigen, dass indi­viduelle, situative und dauerhafte Gebäude durchaus dem Vergleich mit modularen Schulpavillons standhalten können.

Zehn ausgewählte Teams stellten sich der Herausforderung und erarbeiteten Projektvorschläge unter verbindlicher Einhaltung der ehrgeizigen Kostenvorgaben. Aufgrund einer Gestaltungsplanpflicht war im Wettbewerb eine Gesamtidee mit Freiraumentwicklung über den gesamten Perimeter verlangt. Somit beinhaltete die Abgabe neben dem Klassentrakt gleichzeitig einen Vorschlag für den späteren Singsaal- und Turnhallentrakt sowie für eine Wohnüberbauung im Süden des Areals.

Entwerferischer Befreiungsschlag

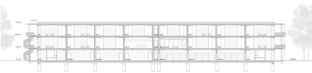
Schneider Studer Primas Architekten aus Zürich führen mit ihrem Siegerprojekt «Grosser Bär» ein neues, bemerkenswertes und radikales Konzept für eine Sekundarschule ein: Grundsätzlich definieren sie die Beziehung vom Klassenzimmer zum Aussenraum neu, indem sie die gesamte Erschliessung von innen nach aussen auslagern. Um einen drei­geschossigen, extrem kompakt organisierten Schulzimmertrakt ohne Untergeschoss ordnen sie sämtliche  Erschliessungen und Gemeinschaftsflächen als breite, witterungsgeschützte Flanierterrassen im Aussenklima an. Diese werden über grosszügige Treppen und ­Rampen zu vertikalen Pausengärten verspielt miteinander verbunden. Dem Verfasserteam gelingt mit dem erfrischenden Vorschlag eine konkurrenzlose Wirtschaftlichkeit; die Verhältniszahlen zwischen Geschossfläche und Hauptnutzfläche, sowie Gebäudevolumen und Geschossflächen liegen markant unter den Vorgaben.

Auf eine mechanische Lüftung wird verzichtet und dank dem deutlich kleineren beheizten Volumen lassen sich die Erstellungskosten und längerfristig durch den reduzierten Energieverbrauch auch die Unterhaltskosten minimieren. Die verblüffend einfache Gebäudestruktur aus einer Stützen-Platten-Konstruktion erlaubt eine hohe Flexibilität in Bezug auf Raumbildung und Nutzung. Die vorgesehene rundumlaufende Faltschiebeverglasung wirft zwar betreffend Ressourcenaufwand und Alltagstauglichkeit noch Fragen auf. Gesamthaft schlagen die Autoren aber ein äusserst wirtschaftliches Projekt und ein zukunftsorientiertes Raumkonzept vor, das für eine Sekundarschule architektonisch und pädagogisch neue Wege eröffnet.

Die Grenzen der Effizienz

Andere Teams haben mit viel Empathie für den Ort städtebaulich-architektonisch interessante Entwürfe erarbeitet, wobei der Kostenrahmen jeweils nur mit eisernen Sparanstrengungen knapp erreicht werden konnte. Der zweitplatzierte Vorschlag, «Rotes Krokodil» von Gigon und Guyer Architekten, reagiert auf die vorhandene räumliche Situation und erweitert diese mit einem respektvollen Konzept. Anstelle der Pavillonbauten schlagen sie einen dreigeschossigen gestaffelten Baukörper vor, der die terrassierten Aussenräume begleitet. Das sorgfältige Projekt, das mit seinem architektonischen Ausdruck mit gleichformatigen Fensteröffnungen und rost­roter Metallplattenverkleidung sehr stark an Wohnungsbau erinnert, löst die Organisation der Grundrisse effizient und funktional. Trotz grosser Sorgfalt und Effizienz werden die Kosten im Vergleich zu den anderen Projekten aber im oberen Mittelfeld erwartet.

Stutz Bolt Partner Architekten auf Rang drei leiten mit «Balthasar» aus ihrer städtebaulichen Idee einen langgezogenen, zweigeschossigen Baukörper für den Klassentrakt ab. Dieser steht mit seiner hohen Ge­bäudehüllzahl und einer aufwendigen Fassade aus Betonfertigteilen und grossen Verglasungen allerdings diametral zu den geforderten tiefen Erstellungskosten. Da helfen auch der serielle Aufbau mit sieben modulartigen Elementen und die grosszügige Halle im Erdgeschoss nur wenig. Andere Teams erreichten zwar  mittels kompakten Gebäudehüllen und /oder flächenreduzierter Erschliessung das ehrgeizige Ziel, scheiterten dafür aber mit wenig anregenden, teilweise fast beengenden Raum- oder Erschlies­sungskonzepten.

Couragierte Jury

Die für das Siegerprojekt begeisterte Jury trifft einen konsequenten, aber auch mutigen Entscheid. Sie empfiehlt der Bauherrschaft, ein wegweisendes Schulhaus zu bauen, einen gemäss Jurybericht «Döschwo des Schulhausbaus», ein «Centre Pompidou» für Wallrüti. Mit ihrem Entscheid kommt die Jury zwar dem geforderten Sparzwang nach, möchte aber mit dem Projekt «Grosser Bär» die einmalige Chance wahrnehmen, bei der das Sparen nicht als Verzicht, sondern als Einladung für neue Ideen verstanden wird. Dafür nimmt sie Projektdefizite, wie beispielsweise die unmittelbaren und undefinierten Schulzimmereingänge, die Einsichts- und Belichtungsproblematik oder gewisse organisatorische Fragen grosszügig in Kauf und geht davon aus, dass diese im Laufe der Weiterbearbeitung im Sinn des Projekts geklärt werden können. Im Wissen, dass sowohl die Stadt als auch die Schule grosses Potenzial in diesem Siegerprojekt sehen, könnte hier die Rechnung aufgehen und einer erfolgreichen Weiterbearbeitung und Realisierung kaum etwas im Weg stehen.

Der Zielkonflikt zwischen einer wertigen und grosszügigen Schulanlage einerseits und den engen Kostenzielen andererseits bleibt aber weiterhin bestehen. Vor diesem Hintergrund kann man gespannt sein, ob ähnliche oder verwandte Typologien zukünftig bei anderen Wettbewerben Schule machen werden.

Weitere Informationen über das Schulhaus Wallrüti finden Sie unter der Rubrik Wettbewerbe.

Auszeichnungen
 

1. Rang / 1. Preis «Grosser Bär»
Schneider Studer Primas, Zürich; Kolb Landschaftsarchitektur, Zürich; BGS & Partner Architekten, Rapperswil; Schnetzer Puskas Bauingenieure, Zürich; Waldhauser und Hermann, Basel

2. Rang / 2. Preis «Rotes Krokodil»
Gigon Guyer Architekten, Zürich; Bassinet Turquin Paysage, Paris

3. Rang / 3. Preis «Balthasar»
Stutz Bolt Partner Architekten, Winterthur; Heinrich Landschaftsarchitektur, Winterthur; Dürsteler Bauplaner, Winterthur

4. Rang / 4. Preis «Perilun»
Guinard & Saner Architekten, Zürich; ASP Landschaftsarchitekten, Zürich; Steiner Hutmacher Bauleitung, Rapperswil

 

Jury


Michael Hauser, Stadtbaumeister Winterthur (Moderation)
Marie-Noëlle Adolph, Landschaftsarchitektin, Meilen
Philipp Brunnschweiler, Architekt, Winterthur
Sibylle Bucher, Architektin, Zürich
Adrian Streich, Architekt, Zürich

Articoli correlati