Pas­sa­ge zur Stadt­oa­se

Bibliothek, Seniorenzentrum und Garten, Barcelona 2007

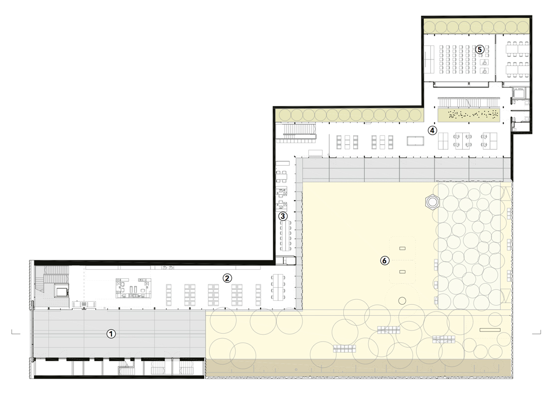
Öffentlich zugängliche Innenhöfe sind in Barcelona nicht üblich. Im Stadtteil Eixample haben RCR Arquitectes 2007 einen solchen Hof geöffnet, mit neuen Nutzungen belebt und zu einem idyllischen Lebensmittelpunkt im Quartier aufgewertet.

Publikationsdatum
05-05-2017
Revision
05-05-2017

Das 2007 fertiggestellte Ensemble von Joan-Oliver-Bibliothek, Seniorenzentrum und Cándida-Pérez-Garten liegt an der Carrer del Comte Borrell im dichten Viertel Sant Antoni in Barcelona. Es zählt zu den gelungensten Eingriffen in die historische Stadterweiterung, die der katalanische Ingenieur Ildefons Cerdà nach dem Niederreissen der Stadtmauer 1854 in einem regelmässigen, streng quadratischen Blockrandraster angelegt hatte.

RCR Arquitectes orientierten sich an Cerdàs ursprünglicher Absicht, die Innenhöfe der Wohnblöcke nicht für gewerbliche Zwecke, sondern für öffentliche Anlagen und Einrichtungen zu nutzen. Nachdem die Fabrik, die früher im Hof gestanden war, abgebrochen worden war, erstellten die Architekten ein Nutzungs­programm, das sich vornehmlich an den Bedürfnissen der Anwohnerinnen und Anwohner orientierte. Das Raumprogramm umfasst nicht nur die Joan-Oliver-Bibliothek – eine von Barcelonas insgesamt 40 Stadtteilbibliotheken –, sondern auch ein Seniorenzentrum und einen Garten samt Kinderspielplatz.

Rafael Aranda, Carme Pigem und Ramón Vilalta gelang es, die unterschiedlichen Nutzungen zu einem harmonischen Gefüge zu ordnen und den Eindruck zu erwecken, das Ensemble, aus dessen Mitte ein Industrieschlot als Relikt der industriellen Vergangenheit ragt, sei immer schon hier gewesen. Eine neu geschaffene Passage verbindet die Strasse mit den Lesesälen der Bibliothek und dem Innenhof. Wer sie durchschreitet, taucht überrascht in eine lebendige, von Wohnbauten gefasste Oase ein.  

Das sowohl zur Strasse als auch zum Hof orien­tierte Torgebäude, das die Bibliothek beherbergt, ist ­ als Stahlgerippe konstruiert. Hinter der verglasten ­Strassenfront sind die Lesesäle sichtbar. Die drei Obergeschosse bilden zueinander versetzte Ebenen. Nahezu eingerahmt von Lesesälen und Galerien entstand ein offen gestaltetes Auditorium. Über diesem bühnenarti­gen Raum befindet sich ein weiterer Lesesaal. Die Mate­rialisierung verstärkt das kontrastreiche Raumkonzept: Hinter dem verglasten Stahlgerippe der Fassade steht der Bibliothekskorpus, dessen Treppe von einer massiven, stählernen Brüstung flankiert ist. Es scheint, als habe die herbe, spröde Ästhetik der vulkanischen Landschaft der Garrotxa die Architekten inspiriert. 

Hinter dem Bibliotheksquader, direkt daran anschliessend, erstrecken sich die eingeschossigen Gebäude mit dem Seniorenzentrum. Sie öffnen sich zu einem Karree und umschliessen dabei einen kleinen, schattigen Park, in dem Kinder spielen. Äusserlich verbunden wird die Stahl-Glas-Konstruktion von Bibliothek und Seniorenzentrum durch eigens konstruierte Stahllamellen, die als Sonnenschutz, Raumteiler, Geräusch- und Intimitätspuffer zwischen innen und ­aus­sen funktionieren.

Das friedliche Neben- und Ineinander von ­Bi­bliothek, Seniorenzentrum, Park und Spielplatz ge­neriert im Innenhof eine heile Welt im Kleinen: Alte und Kinder, Besucher und Anwohner kommen zusammen, teilen ein gemeinsames Areal und wechseln wohlwollende Blicke. Wie auch die Pritzker-Jury hervorhebt, ist das Ensemble ein herausragendes Beispiel für den dialogischen Charakter, der viele Projekte von RCR Arquitectes auszeichnet.

Am Bau Beteiligte


Bauherrschaft
Proeixample, Barcelona


Architektur
RCR Aranda Pigem Vilalta Arquitectes, Olot (ES)


Tragwerksplanung
Blázquez Guanter SLP, Girona (ES)

Verwandte Beiträge