Fas­sa­den-Te­tris

Büro- und Wohnhaus Schwabinger Tor, München

Im Schwabinger Tor haben Hild und K Architekten von 2013 bis 2017 ein Wohn- und Geschäftshaus mit eigenwilliger Klinkerfassade realisiert. Den neuen Stadtteil im Münchner Norden ergänzen sie damit um einen Baustein, der zur Identitätsbildung des entstehenden Quartiers beiträgt.

Publikationsdatum
09-01-2019
Revision
10-01-2019

München wächst. Seit Jahren gehört die süddeutsche Grossstadt in internatio­nalen Rankings zu den Standorten mit der höchsten Lebensqualität. Die Attraktivität schlägt sich in einer moderaten Bautätigkeit und einem weniger moderaten Ansteigen der Immobilienpreise nieder. Gebaut wird auch im ehemaligen Trendquartier Schwabing, westlich des Englischen Gartens: Wer sich einst auf der ­Leopoldstrasse von der Münchner Freiheit aus nach Norden begab, passierte rechter Hand eine Gross­markthalle und den Hotelkomplex Holiday Inn aus den 1970er-­Jahren (vgl. Kasten unten).

Heute befindet sich auf dem schmalen, jedoch 500 Meter langen Grundstück das neue Wohn-, Arbeits- und Geschäftsviertel Schwabinger Tor. Den Masterplan hierfür entwickelte das Münchner Büro 03 Architekten, das 2007 als Sieger aus einem städtebaulichen Wettbewerb hervorging. Das Konzept sah eine dichte Bebauung mit neun Solitären vor, die in zwei Reihen versetzt zueinander angeordnet sind. Die dadurch entstehenden Gassen und Plätze stellen eine Verbindung zum östlich davon gelegenen Wohnquartier an der Berliner Strasse her, das vormals von der Leopoldstrasse abgeschnitten war.

Durch diese geschickte Setzung und dank gewerblichen Nutzungen in den Erdgeschossen besteht grosses Potenzial für einen neuen, belebten Stadtteil nördlich der ­Münchner Freiheit. Für die Realisierung der einzelnen Bauten, die in zwei Abschnitten zwischen 2013 und 2017 stattfand, zeichneten neben Hild und K die Büros Max Dudler, Hilmer Sattler und 03 Architekten ver­ant­wortlich.

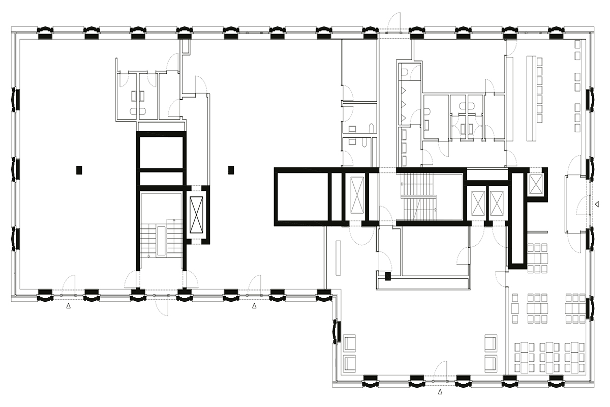
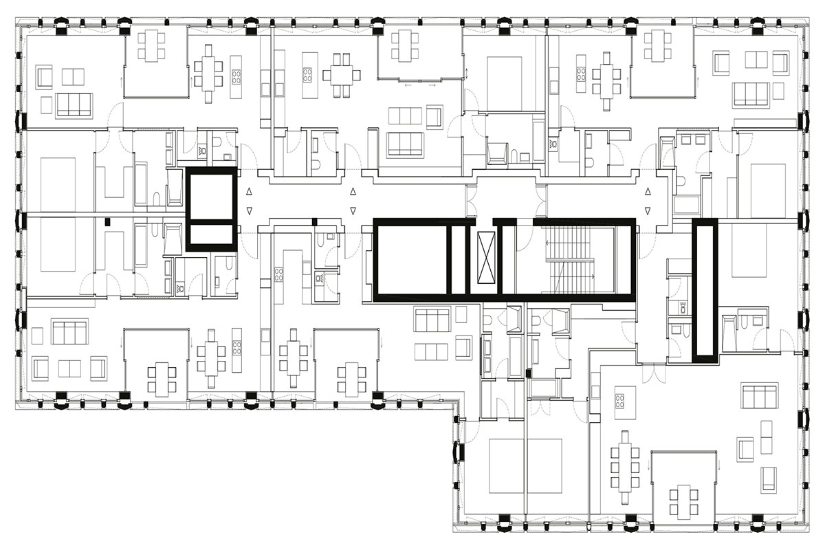
Drei Hochhäuser mit 14 Geschossen setzen am Nord- und Südende des neuen Quartiers sowie am mittig gelegenen Platz einen Akzent. Die anderen Häuser übernehmen mit sechs Geschossen die üblichen Höhen der Schwabinger Blockränder. Vorgegeben war zudem ein dreiteiliger Aufbau: öffentliche Nutzungen im Sockelgeschoss, darüber drei Büroetagen und zuoberst zwei Wohngeschosse. Im Rahmen dieser Vorgaben sticht der Bau von Hild und K durch seine detailreiche Fassade hervor, einer zeitgenössischen Variation eines Klinkerbaus.

Klinker trifft Beton

In den Projekten von Hild und K Architekten finden sich oftmals Neuinterpretationen bzw. Weiterentwicklungen von vorgefundenen Themen, Bautechniken oder Materialien. Beim Neubau für das Schwabinger Tor konnten die Architekten auf keine unmittelbaren ­Bezüge zurückgreifen. Sie zogen daher historische ­Klinkerbauten, wie sie vereinzelt an der Ludwig- und Leopoldstrasse zu finden sind – zum Beispiel die Staatsbibliothek (1843) und die ehemalige Salinenadmini­stration (1838–1843) von Friedrich von Gärtner – als Inspirationsquelle her­an. Aus den traditionellen Klinkern entwickelten sie, und darin lag der besondere Reiz, eine neue Gestaltungsform.

Wie schon beim Umbau des Gebäudes 0505 der TU München, dem Hild und K eine vor- und zurückschwingende Hülle aus titangrauen Klinkern verpassten (vgl. TEC21 26/2012), suchten sie auch für das Schwabinger Tor nach einer neuen Verwendungsart des Fassadenmaterials. Das Ergebnis ist eine vor­gehängte, hinterlüftete Fassade aus klinkerverklei­deten Stahl­betonfertigteilen, die sich über alle Stockwerke legt. An den Kreuzungspunkten treten die 240 × 115 × 40 mm grossen Klinker (Römerformat RömF) reliefartig hervor und verleihen der Fassade dadurch eine ausgeprägte Plastizität. Die sternförmige Anordnung der Riemchen lässt auf subtile Weise erahnen, dass die Fassade nicht tragend ausgeführt wurde.

Die Fugen überhöhten Hild und K zum Gestaltungsobjekt, das klassische Architekturelemente referenziert. So sitzen zwischen den sich teils heraus­wölbenden Klinkerflächen Passstücke aus hellem, gesäuertem Beton. In der Horizontalen lassen sich diese als kleine Kapitelle lesen, in der Vertikalen hingegen bilden sie Lisenen, die zueinander versetzt zwischen den Fenstern fortgeführt sind. Auch der schmale Sockel und die Fensterbrüstungen sowie -bretter wurden in hellem, gesäuertem Beton ausgeführt.

Das Fassadenthema ziehen Hild und K über alle Geschosse, ohne zwischen den Nutzungen zu differenzieren. Ablesbar werden diese über die unterschiedlich dimensionierten Fensteröffnungen. Während sich im Erdgeschoss – mit Foyer, Gastronomie und Gewerbe –  grosse Fensterflächen zwischen den Betonstützen ­aufspannen, besitzen die Öffnungen der Bürogeschosse einen engeren Raster. Hier laufen die Lisenen über zwei Geschosse durch, um sich dann im vierten und fünften Obergeschoss aufzulösen. Loggien und grossflächige Fenster öffnen hier die Fassade der beiden Wohn­geschosse.

Eigenwilliges Kleid

Die Herstellung der Fassadenelemente erfolgte komplett im Werk. Dazu wurden kreuzförmige Schalungsmatrizen mit Latexeinlagen zur Platzierung der Riemchen erstellt. Vorgeformte Fugen verhinderten das Verrutschen der einzeln eingelegten Klinker beim abschlies­senden Auffüllen mit Beton. Die Beschränkung auf zwei Materialien – heller Beton und Klinker –  verleiht der Fassade trotz ihrer Plastizität die notwendige Ruhe.

Dazu trägt auch der beige-graue Farbton des Klinkers bei, der sich harmonisch in die umgebenden Natursteinfassaden einfügt und von den Architekten in einem sechsmonatigen Prozess zusammen mit der Firma Hagemeister entwickelt wurde. Die auf dem Klinker «Kanada» basierende Sonderanfertigung in der Sortierung «Leopoldstrasse» weist durch die Zugabe von Mineralien (die genaue Rezeptur ist geheim) einen leicht erhöhten Grünanteil auf. Mit dem Wechsel des Lichts tritt dieser unterschiedlich stark hervor und korrespondiert mit dem Baumbestand an der Berliner Strasse.

Das individuelle «Kleid des Hauses» spielt in den Entwürfen von Hild und K immer wieder eine wichtige Rolle. Oft beziehen sie sich dabei auf textile Strukturen und Materialien. So erinnert z. B. die gelb geschlämmte Ziegelfassade des Wohnhauses in Aggstall (2000) an ein Häkelmuster oder die Hülle des Agfa-Hochhauses in München (2009–2010) an einen Webstoff.

Für das Büro- und Wohnhaus Schwabinger Tor zogen die Architekten das Bild eines «Brokatüberwurfs» heran, der sich über das gesamte Volumen legt. Die aus der Fassadenebene hervortretenden einzelnen Steine vergleichen sie mit einer Reliefstickerei. Je nach Blickwinkel tritt dieses Fassadenrelief unterschiedlich stark hervor und erzeugt damit ein Irritationsmoment: Bei trübem Wetter ist das Relief in der Frontalansicht kaum wahrzunehmen, erst der Blick von der Seite zeigt die Bewegung in der Fassade. Bei Sonnenlicht dagegen verstärken die Schatten der vorstehenden Ziegel die Plastizität der Fassade.

Wertvoller Bruch

Zu Beginn des Projekts Schwabinger Tor waren noch weitere Gebäude mit einer Klinkerfassade vorgesehen. Zwar gab es keine bindenden Gestaltungsvorgaben, jedoch versuchten die verschiedenen Architektenteams, ihre Entwürfe in der frühen Planung aufeinander abzustimmen. Im weiteren Prozess verblieb letztlich nur das Haus von Hild und K mit einem Klinkerkleid. Zwischen den übrigen vorwiegenden Natursteinfassaden in Hell- bis Dunkelgrau bildet das eigenwillige Ziegelrelief nun einen besonderen Blickfang, der auch aus der zweiten Reihe – von der Leopoldstrasse aus gesehen – einen identifikationsstiftenden Beitrag zum neuen ­Quartier Schwabinger Tor leistet.

Am Bau Beteiligte

Bauherrschaft
Jost Hurler Beteiligungs-  und Verwaltungs-GmbH & Co. KG, München

Architektur
Leistungsphase (LPH) 1-4, künstlerische Oberleitung und künstle­rische Begleitung Fassade: Hild und K Architekten, München;
LPH 5 und künstlerische Begleitung: Max Dudler, Berlin

Tragwerk
Sailer Stepan und Partner, München

Fassadenklinker
Hagemeister, Nottuln (D)

Fassadenplanung Ausführung
DS-Plan, München

Fassadenplanung Entwurf
R + R Fuchs, Ingenieurbüro für Fassadentechnik, München

Fassadenelemente
Hemmerlein Ingenieurbau, Bodenwöhr (D)

Fenster
Schüco International, Bielefeld (D)

Sonnenschutz
Warema Renkhoff SE, Marktheidenfeld (D)


Architektonische Götterdämmerung

Architekturaficionados kennen die Gegend um das Schwabinger Tor möglicherweise auch als Standort des Einkaufszentrums «Schwabylon», eines Projekts des Schweizer Architekten Justus Da­hinden (*1925). Das im Auftrag des Augsburger Landmaschinenhändlers Otto Schnitzenbaumer für rund 180 Mio. D-Mark erbaute Zentrum befand sich – wenn auch nur kurz – an der Leopoldstrasse 202, direkt nördlich des Areals «Schwabinger Tor», auf dem heute der Neubau von Hild und K Architekten steht.

Im November 1973 eröffnet, beeindruckte der abgestufte Bau nach aussen mit seiner Fassadengrafik, einer über alle Geschosse reichenden Sonne in Gelb-, Orange- und Rottönen. Im Innern gab es neben Ladengeschäften, Restaurants und einem Kino auch ein Schwimmbad und eine Eislaufbahn. Südlich schloss sich neben dem Holiday-Inn-Hotel – dem ersten der Stadt – der legendäre dreistöckige Nachtclub «Yellow Submarine» an, inklusive 600 000-Liter-Aquarium für die karibischen Haifische.

Doch schon nach einem Jahr in Betrieb folgte die wirtschaftliche Ernüchterung: Ende 1974 stand das Einkaufszentrum bereits leer, 1979 wurde die Investitionsruine abgerissen. Als Nachmieter für das Grundstück folgte der grosstmögliche Kontrast: eine Schweizer Versicherung. Damit war die gestalterische Ruhe wiederhergestellt. Der Nachtclub war noch bis in die 1980er-Jahre in Betrieb, das Hotel bis Ende 2011. 2013 mussten die Bauten dem 400-Millionen-Euro-Investorenprojekt «Schwabinger Tor» weichen. Business statt Party: In diesem Umfeld wirkt die gewölbte Ziegelfassade des Hild-und-K-Baus fast schon frivol.
(Tina Cieslik; Quelle Text: Wikipedia > Schwabylon; Wikipedia > Schwabinger_Tor_[Stadtquartier])

Magazine

Verwandte Beiträge