Mu­sik an­statt An­dacht

Versteckt in einem Hinterhof liegt eine Architekturikone von Otto Rudolf Salvisberg: die Kirche der «First Church of Christ, Scientist». Der Kanton Basel-Stadt erwarb das denkmalgeschützte, inzwischen oft leer stehende Gebäude. Den Umbau zu einem Proberaum für Musiker führten Beer Merz Architekten mit grosser Leidenschaft und Sorgfalt aus.

Publikationsdatum
07-10-2021
Katharina Marchal
Architektin Dipl. Arch. SIA, Fachjournalistin SFJ BR. Sie schreibt als Kriti­kerin für die Fachpresse und betreut Architekturbüros in der PR- und  Medienarbeit.

Die Religionsgemeinschaft «Christian Science» wurde Ende des 19. Jahrhunderts in New England, USA, gegründet und fand kurz darauf auch Anhänger in Europa. In Basel baute der Schweizer Architekt Otto Rudolf Salvisberg die erste Kirche, «First Church of Christ, Scientist» im Jahr 1936. Zur gleichen Zeit und nur wenige Meter vom Grundstück der Kirche entfernt errichteten Paul Bonatz und Rudolf Christ das Basler Kunstmuseum.

Anders als seine Kollegen setzte Salvisberg als Vertreter des Neuen Bauens minimalistische Stilmittel ein, die den Sakralbau beinahe profan erscheinen lassen. Dieser Ansatz entsprach den Vorstellungen der Bauherrschaft, die grossen Wert auf Nüchternheit und die Konzentration auf das Wort legten. Fast zeitgleich zum Sakralbau baute Salvisberg eines seiner wohl bekanntesten Gebäude: den Verwaltungsbau für Basler Hoffmann-La Roche in Kleinbasel. Dieser ähnelt der Kirche vor allem durch die hellen Natursteinfassaden und die hohen Fenster mit den feinen Bronzeprofilen.

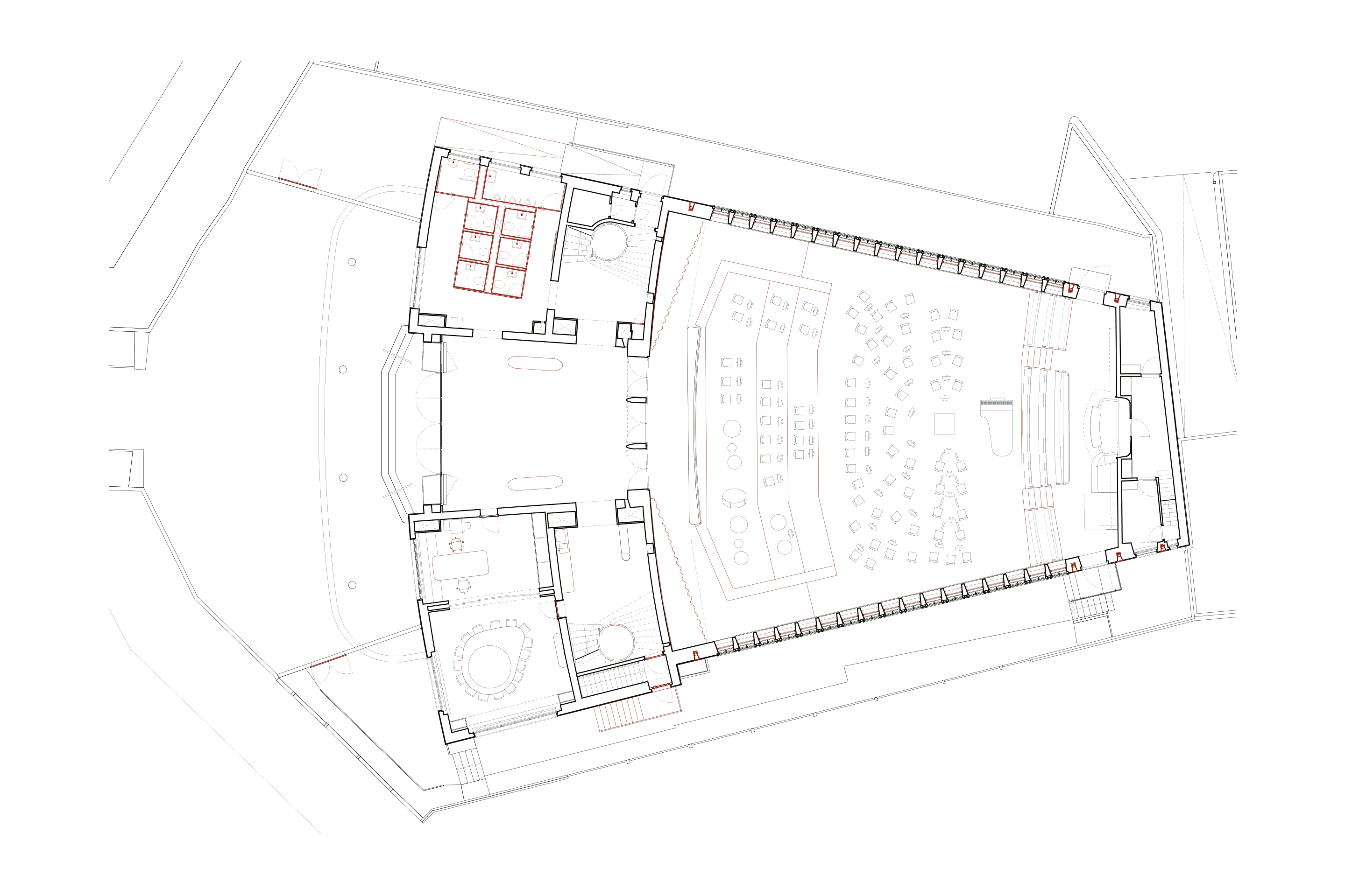
Doch während der Verwaltungsbau an bester Lage entlang des Rheins errichtet wurde, liegt das Grundstück der Kirche von der Strasse zurückversetzt, in einem Innenhof versteckt. Vom Picassoplatz späht man durch einen schmalen Zugang, der von einer Gartenmauer aus Kalkstein gefasst wird, in den kleinen Vorhof. Erst hier wird die breite zweigeschossige Front des Gebäudes komplett sichtbar. Da Salvisberg die Parzelle maximal ausnutzen wollte, bildet der Grundriss der Kirche eine fast symmetrische Trapezform. An der Eingangsseite tragen vier schlanke Betonstützen den regelrecht schwebenden Kopfbau mit der abgerundeten Fassade; in diesem war über dem Foyer die Sonntagsschule untergebracht.

Im dahinter liegenden Saal mit einer lichten Raumhöhe von 8.5 m fällt der Boden und parallel dazu die abgehängte Decke in Richtung Kanzel ab, was sich auch in der Fassade durch die abgetreppten Bandfenster widerspiegelt. Der klare, sehr reduzierte Aufbau der Kirche strahlt eine grosse Eleganz aus. Dazu gehören die feinen Profile der hohen, schmalen Fenster, die helle Rippendecke im grosszügigen Foyer, von dem aus je ein Seitenflügel zu den Nebennutzungen und zu den Treppenhäusern mit den geschwungenen Treppenläufen führt.

Neu entdeckt

Anlässlich des Europäischen Tags des Denkmals 2012 fand in der «First Church of Chirst, Scientist» ein Mittagskonzert des Sinfonieorchesters Basel statt. Von der Akustik des seit geraumer Zeit kaum genutzten Kirchensaals waren alle Beteiligten derart begeistert, dass die Idee für eine Umnutzung entstand. 2016 erwarb der Kanton Basel-Stadt das unter Denkmalschutz stehende Kirchengebäude, um es in einen Proberaum für das Sinfonieorchester Basel und andere Nutzer aus dem Musikbereich umzunutzen.

Beer Merz Architekten aus Basel, die für diese herausfordernde Bauaufgabe ausgewählt wurden, setzten alle durch die Nutzungsänderung notwendigen Arbeiten in enger Abstimmung mit der Denkmalpflege um. Dafür mussten grundsätzliche Entscheide getroffen werden, wie etwa die Frage, wie die neue Nutzung integriert werden kann, gleichzeitig die Bauteile ertüchtigt und die heutigen technischen und funktionalen Anforderungen erfüllt werden können. Wegen des annähernd original erhaltenen Zustands wurden während der Projektierung und Ausführung verschiedene Untersuchungen im Bestand vorgenommen.

Der Proberaum

Für den Umbau des ehemaligen Kirchensaals in den Orchesterproberaum mussten die Kirchenbänke grösstenteils entfernt und eine horizontale Ebene über den leicht abfallenden Boden eingezogen werden. Direkt am Eingang des Saals bildet eine bestehende Bankreihe heute eine Art Brüstung zum dahinter liegenden neuen Podium für das Orchester. Vor der Kanzel blieben drei Reihen mit Sitzbänken erhalten.

Der helle Ton des neuen Eschenparketts, das der ursprünglichen Kirchenbestuhlung entspricht, harmoniert mit den Farben des originalen strukturierten Wandputzes und der bestehenden abgehängten Holzlattendecke, die sich fächerartig dem trapezförmigen Raum anpasst. Aus der Kombination der beiden Materialien ergibt sich bereits eine ideale Raumakustik für die probenden Musiker. Salvisberg beschrieb dies in seinen Vorlesungen an der ETH: «Durch einfaches Übereinanderlegen der Hölzer, ohne jeden Einschnitt, ergibt sich in Verbindung mit der Betonwand eine gute Raumakustik ohne weitere Absorptionskorrektur.»1

Die geringen Holzstärken genügen, um Resonanzdecken zu schaffen. Um die Nachhallzeiten zu verkürzen und damit die Akustik an die Bedürfnisse der probenden Musiker anzupassen, wurden zusätzlich Akustikpaneele neben der Orgel montiert. Ausserdem ermöglichen mobile Absorptionsvorhänge auf der Empore und am Eingang, die Raumakustik zu variieren.

Für den Lärmschutz zogen die Architekten im Innenraum zweigeteilte Schallschutzfenster zwischen den sich verjüngenden Pfeilern und vor den tief liegenden, sehr hohen Fenstern ein. Damit wurde das Bild im Innenraum nicht gestört. Und das Licht kann weiterhin durch das farbige Antikglas in den Innenraum leuchten. Nach wie vor lassen sich die oberen Fensterflügel zur Nachtauskühlung manuell öffnen. Über Zuluftschlitze in den Fensterlaibungen wird der Saal beheizt und belüftet. Die bestehenden Abluftöffnungen unter der Sitzbank am Eingang und bei der Kanzel wurden durch eine unsichtbare Abluftstelle in der abgehängten Decke ergänzt.

Die Geschäftsstelle

In den Räumen der ehemaligen Sonntagsschule im Obergeschoss richtete sich die Geschäftsstelle des Sinfonieorchesters Basel ihre Büros mit massgefertigten Möbeln ein. Zur bauphysikalischen Verbesserung mussten hier die originalen, gezogenen Glasscheiben ausgebaut und zu neuen Zweifach-Isoliergläsern mit Sonnenschutzfolie und VSG-Gläsern umgebaut werden. Aufgrund des zusätzlichen Gewichts sind die bestehenden (unsichtbaren) Stahlkonsolen unter der Kalksteinbrüstung durch Chromstahlkonsolen verstärkt. Nach der Ertüchtigung der Fensterprofile aus Baubronze wurden die Scheiben wieder eingesetzt und mit neuen brünierten Messing-Glasleisten befestigt.

Im Foyer wurde der Kautschukboden mit dem siebenzackigen roten Stern im Zentrum instandgesetzt und die Wände gestrichen. Die prägnante, quer gespannte Betonrippendecke betont weiterhin die drei Zugänge in den Hauptraum. Nach der Sanierung der originalen Leuchten wählte man neue LED-Leuchtmittel. Damit konnte der ursprüngliche Zustand weitgehend erhalten bleiben.

Um das Gebäude jedoch den heutigen Anforderungen an Sicherheit, Brandschutz, Gebäudetechnik und Erdbebensicherheit anzupassen, mussten Ein- und Umbauten vorgenommen werden. In der ehemaligen Garderobe im Erdgeschoss ersetzt eine neue, hindernisfreie Toilettenanlage die ursprüngliche WC-Anlage im Untergeschoss. Die beiden Treppengeländer wurden am Stück um 18 cm angehoben und mittels neuer Konsolen an der Treppenwange befestigt. Das neue Hexagonal-Lochblech als Durchstutzsicherung ist von innen an die Profile montiert und bildet eine sichtbare, aber elegante Ergänzung zum Bestand.

Zeitlose Ikone

Beer Merz Architekten haben es verstanden, die zeitlose Architektursprache von Otto Rudolf Salvisberg in ihrer Schönheit zu erhalten, indem die Eingriffe mehrheitlich ablesbar oder sogar reversibel bleiben. Damit kann diese Ikone des Neuen Bauens mit ihrer neuen Funktion auch in Zukunft erhalten bleiben. Gleichzeitig gewinnt der Saal an Ausdruck, durch den neuen Fokus auf die Musik und die Reduktion auf das Wesentliche. Die schweren, fix eingebauten Kirchenbänke weichen der einfachen, flexiblen Bestuhlung für die Musiker sowie der kaum wahrnehmbaren, eingeschobenen Bühne. Das Gebäude scheint prädestiniert für diese Nutzung. In diesem Sinn folgen Beer Merz Architekten den Vorstellungen Salvisbergs, «seiner Verpflichtung zur äussersten Sparsamkeit der Mittel bei gleichzeitiger Verfeinerung und Rhythmisierung dieser Mittel». Damals forderte die Bauherrschaft nach Nüchternheit und Konzentration auf das Wort, heute ist es der Fokus auf die Musik.

Anmerkung

1 Otto Rudolf Salvisberg, Holz Vorlesung Typoskript, in: Tobias Büchi, Otto Rudolf Salvisbergs Vorlesungen an der ETH Zürich (1940), mit Otto Rudolf Salvisbergs Vorlesung «Konstruktion und Formenausdruck» im Anhang, Diplomwahlfacharbeit Lehrstuhl Prof. Dr. Werner Oechslin, Zürich 2000, ETH Zürich online, S. 40.

Umbau First Church of Christ, Scientist, Basel

 

Bauherrschaft: Bau- und Verkehrsde­partement Basel-Stadt, Städtebau & Architektur, Hochbauamt

 

Nutzer: Sinfonieorchester Basel

 

Architektur: Beer Merz Architekten, Basel

 

Bauleitung: Bauteam 05, Ettingen

 

Tragkonstruktion: Schmidt + Partner Bauingenieure, Basel

 

Elektroplanung: Eplan, Reinach

 

HL-/GA-Planung: Waldhauser + Hermann, Münchenstein

 

Sanitärplanung: SwissPlan Gebäude­technik, Basel

 

Bauphysik: Gartenmann Engineering, Basel

 

Akustik: Büro für Bau- und Raum­akustik, Lärmschutz, Langenbruck

 

Lichtplanung: Mailicht, Münchenstein

 

Möblierungskonzept: Beer Merz Architekten in Zusammenarbeit mit Möbelwerkstatt b4-moebel, Basel

Verwandte Beiträge