Des Um­baus sprö­der Charme

Die Römisch-Katholische Kirche muss in Basel mehrere Standorte aufgeben, weil sie laufend Mitglieder verliert. Verschiedene Sakralbauten werden umgenutzt oder durch Neubauten ersetzt. Aus der denkmalgeschützten Kirche Don Bosco von Hermann Baur wurde ein Musik- und Kulturzentrum.

Publikationsdatum
07-10-2021

Die Kirche Don Bosco liegt im Breitequartier in Grossbasel am St.-Alban-Teich in der Nähe des Rheins. Die Kirche wurde zwischen 1934 und 1937 gebaut und war die erste Kirche, die Hermann Baur realisieren konnte.

Dabei musste der damals 40-jährige Architekt etliche Kompromisse machen. Baur wollte die Kirche von der Strasse zurücksetzen, um einen grosszügigen, begrünten Vorplatz gegen Süden zu schaffen. Der Kirchenraum sollte ein Einheitsraum ohne Nebenschiffe werden, und die Konstruktion hatte er sich als Betonständerkonstruktion mit Tonnendach vorgestellt.

 Mehr zum Thema: Weitere Beispiele umgebauter Kirchen

Das ausgeführte Projekt wurde dann aber um 180 Grad gedreht und an die Strasse gesetzt, mit dem Eingang direkt an der Strassenkreuzung von Weidengasse und Waldenburgerstrasse. Der Glockenturm blieb an der ursprünglich vorgesehenen Stelle, musste aber wegen des Trottoirs auf Stützen gestellt werden. Aus dem Tonnendach wurde ein Satteldach, und die Konstruktion wurde als ausgemauerter Stahlskelettbau ausgeführt. Volksraum und Chor bilden wie geplant im Mittelschiff eine Einheit, doch wurden die Fenster symmetrisch angeordnet und auf beiden Seiten niedrige Seitenschiffe angefügt.

Umbau und Erweiterung

Im Jahr 2016 gab die Römisch-Katholische Kirche (RKK) die Kirche weitgehend auf und überliess die Nutzung dem Verein Kulturzentrum Don Bosco Basel. Nur die Kapelle im Souterrain, der Kirchturm und das Pfarrhaus an der Waldenburgerstrasse blieben davon ausgenommen.

Der gemeinnützige Verein bietet verschiedenen Kulturinstitutionen in Basel hochwertige und bezahlbare Konzert- und Proberäume an. Dabei wurde insbesondere Wert auf eine professionelle Ausstattung und eine spezifisch auf die Bedürfnisse des Kulturzentrums ausgelegte Akustik gelegt.

Der Verein vermietet drei Räume: den Paul-Sacher-Saal im ehemaligen Kirchenraum, das Heinz-Hollinger-Auditorium sowie ein multifunktionales Studio. Die Hauptnutzer sind das Kammerorchester Basel, die Basel Sinfonietta, die Mädchenkantorei Basel und die Orchester der Musik-Akademie.

Martin Pfister Architekten erarbeiteten den Entwurf zur Umnutzung der Liegenschaft. Sie waren für das Projekt des neuen Schauspielhauses in Basel verantwortlich, das 2002 eröffnet wurde. Dank der Unterstützung von wenigen, aber grosszügigen Mäzenen konnten sie das rund 11 Mio. Fr. teure Projekt umsetzen.

Das Gebäudeensemble aus Kirche, Sakristei und Pfarrhaus blieb erhalten. Die an die Kirche angebaute Sakristei konnte im Einvernehmen mit der Denkmalpflege um drei Fensterachsen erweitert werden. Die Erweiterung hatte Hermann Baur bereits in seinem ursprünglichen Entwurf so vorgesehen, sie wurde aber damals aus finanziellen Gründen nicht realisiert.

In dieser Erweiterung sind die Büros für die Basel Sinfonietta und das Kammerorchester Basel untergebracht. In der ehemaligen Sakristei befinden sich ein Tonstudio, ein Stimmzimmer und Garderoben. Gegenüber im Untergeschoss des ehemaligen Pfarrhauses hat der Verein des Kulturzentrums seine Büroräume.

Vom Sakralbau zum Profanbau

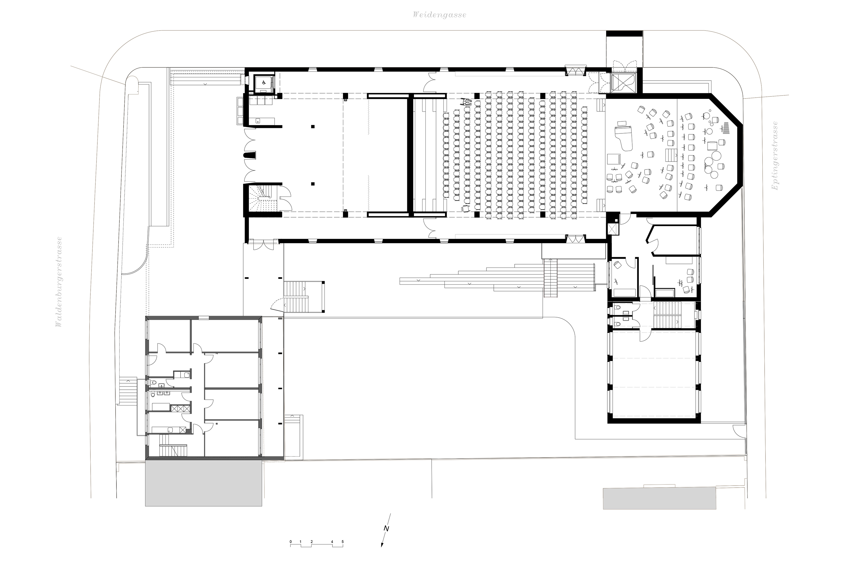
Das Herz des Projekts ist der Umbau des ehemaligen Kirchenraums zum Paul-Sacher-Saal. Der Probe- und Konzertsaal bietet Platz für 500 Personen. Die grösste Veränderung besteht im Einbau einer neuen Tribüne aus Holz. Damit konnte die Sicht auf die Bühne verbessert und das darunter liegende Foyer vergrössert werden. Der neue Saal kann auf vielseitige Arten bespielt werden: Von der traditionellen Guckkastenbühne über eine mittig angeordnete Bühne bis zum Orgelkonzert sind viele Settings möglich.

Die Materialisierung des neuen Saals ist schlicht und zurückhaltend. Die Bodenbeläge aus Tonplatten wurden durch sägerohe, mit grauem Öl behandelte Weisstannenriemen ersetzt. Der helle Kratzputz an den Wänden kontrastiert wie bisher mit der dunklen Holzdecke.

Die Raumakustik wurde mit verschiedenen Massnahmen entscheidend verbessert. Die je fünf hohen Fenster auf beiden Seiten wurden innen mit Fensterläden ausgestattet, mit denen die Akustik verändert werden kann. Sie lassen sich einfach von Hand umklappen.

Im offenen Zustand reflektieren die Läden, sind sie geschlossen, absorbieren sie den Schall. Eingebaute QR-Diffusoren verhindern die Entstehung von Schallnestern. Die Holzbalkendecke des Mittelschiffs ist mit Mehrschichtplatten aus Holz- und Schafwolle verkleidet, um die Nachhallzeit zu reduzieren. Die bestehende Orgel aus dem Jahr 1988 wurde überholt und restauriert.

Die Bodenheizung wurde durch eine Radiatorenheizung in den Seitenschiffen ersetzt. Die Kanäle der neuen Lüftung sind unsichtbar verlegt und die Zuluftöffnungen diskret an verschiedenen Stellen eingebaut. Die Abluft wird über der Orgel abgezogen. Die Luft kann sowohl befeuchtet als auch gekühlt werden.

Zur technischen Ausstattung gehören auch zwei höhenverstellbare Traversen für Scheinwerfer und Lautsprecherboxen. Zur Erdbebenertüchtigung mussten verschiedene Massnahmen umgesetzt werden, die vor allem den Glockenturm betrafen. Die Stahlkonstruktion erwies sich als erdbebentauglich, sodass nur einzelne Bauteile gezielt verstärkt oder mit der Stahlkonstruktion verbunden werden mussten.

Unter dem Paul-Sacher-Saal entstand im Souterrain das Heinz-Holliger-Auditorium. Der Proberaum ist ganz von der übrigen Bausubstanz abgekoppelt, damit keine Schallübertragungen zum darüber liegenden Konzert- und Proberaum stattfinden können.

Das «Studio 1» vervollständigt das Angebot. Es lässt sich auf unterschiedliche Arten nutzen, etwa für Ballett, Yoga oder Tanz. Verbunden sind die beiden Räume durch ein einladendes Foyer, zu dem auch eine Regenerationsküche gehört. Für die Aufbewahrung der Noten konnte ein Archivraum mit Rollregalen und für die Musikinstrumente ein geräumiges Lager geschaffen werden.

Inspirierende Werkstätte

Das neue Musik- und Kulturzentrum wurde am 17. Oktober 2020 eröffnet. Das Angebot spricht viele junge Menschen an, was auch dem Anliegen des Schutzpatrons der Kirche, Don Bosco, entspricht. Neben der profanen Nutzung bleibt den Gläubigen die Kapelle unter der Apsis als Andachts- und Gebetsraum erhalten.

Die Kirche aus dem Frühwerk von Hermann Baur war stark beeinflusst vom Aachener Vorbild, der Kirche St. Fronleichnam, der ersten, 1930 erbauten Kirche von Rudolf Schwarz. Mit einer kaum sichtbaren Gebäudetechnik und neuen Einbauten für die Raumakustik sowie einem zurückhaltenden Material- und Farbkonzept gelingt es Martin Pfister Architekten, dieser kargen Architektur zu einem spröden Charme zu verhelfen.

Die sägerohen Bodenriemen und die Holzkonstruktion für die Tribüne haben etwas Provisorisches und erinnern an die spontanen Arbeiten des japanischen Künstlers Tadashi Kawamata, der für Basel die provisorische «Wooden Terrace Beach» geschreinert hat. Die Eingriffe sind weitgehend reversibel und transformieren den Sakralraum in eine inspirierende Werkstätte.

Umbau Kirche Don Bosco, Basel

 

Bauherrschaft: Kulturzentrum Don Bosco (Saal/Anbau), Röm.-Kath. Kirche des Kantons Basel-Stadt (Fassade, Kapelle, Anbau)

 

Architektur: Martin Pfister Architekten, Basel

 

Tragkonstruktion: Schnetzer Puskas Ingenieure, Basel

 

Tragkonstruktion Holzbau: Winter + Walther, Gelterkinden

 

Akustik: applied acoustics, Gelterkinden; Kahle Acoustics. Ixelles (B)

 

Elektroplanung: Selmoni Ingenieur und COCRtech, Allschwil

 

HLKK-Planung: enersign, Basel

 

Sanitärplanung: Hummel & Meyer, Aesch

 

Brandschutz: Bammerlin Consulting, Riehen

 

Schadstoffberatung: Gebäudediagnostik Siegwart, Pratteln

 

Audio-/Videoplanung: Kilchenmann, Pratteln

 

Restauratorin, Beraterin Gemälde Kapelle: Andrea Amrein, Allschwil

 

Beratung Verputz: Urban Spirig Verputz- und Steinarbeiten, Allschwil, BWS Labor, Winterthur

Verwandte Beiträge