Aus zwei mach eins

Das historische Morellhaus in der Berner Altstadt wurde umgebaut und instand gesetzt. Um darin zeitgemässe Wohnungen unterzubringen, mussten die Berner Co. Architekten einige Kunstgriffe anwenden.

Data di pubblicazione
18-12-2019

Bern tickt in mancher Hinsicht ungewöhnlich: Am Bärenplatz hat es keine Bären, beim Hirschengraben keine Hirsche, das Theater liegt nicht am Theaterplatz – und an der Postgasse findet sich demnach auch keine Post. Zudem ist es für Berner klar, dass sich die noblen Häuser und Wohnungen in der Innenstadt an den edlen Gassen der Südseite befinden, an der Herren- und an der Junkerngasse, und nicht im Norden.

Nicht so das Morellhaus. Dieses Patrizierhaus steht am Ende der nördlich gelegenen Postgasse mit ihren eher schmalbrüstigen Hauszeilen. Das denkmalgeschützte Gebäude mit der Hausnummer 14 ist im Besitz der Stadt Bern. Seit dem Erwerb 1836 diente es unterschiedlichen öffentlichen Nutzungen, so als Speiseanstalt der unteren Stadt, «Mushafen» genannt, als Dienstenspital (ein Altersheim für Mägde) und als Schule. Zuletzt war hier das Ratssekretariat des Stadtparlaments untergebracht.1 Nach dessen Umzug 2016 an die Predigergasse entschied der städtische Fonds für Boden- und Wohnbaupolitik 2, das Haus einer Gesamtinstandsetzung zu unterziehen. Eine ursprüngliche Variante mit Business-Studios machte der nun verwirklichten Lösung mit sieben Zwei- bis Dreizimmerwohnungen Platz.

Verdichtung avant la lettre

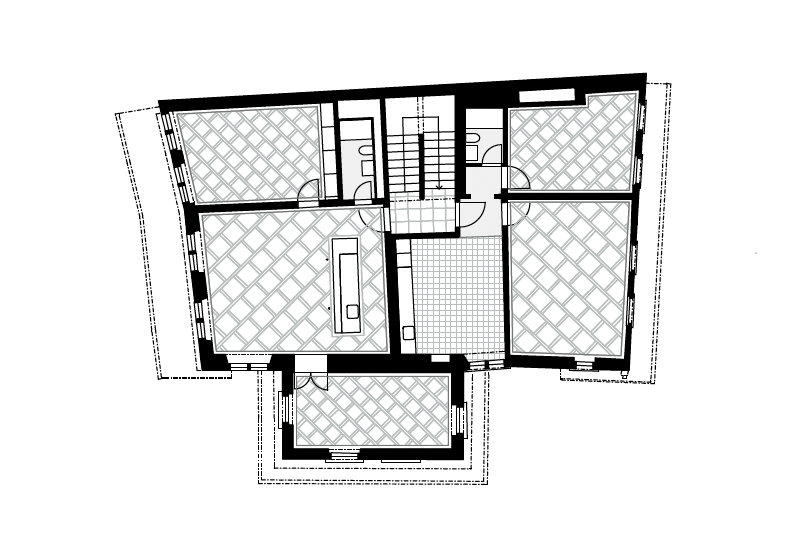
Die Liegenschaft setzt sich aus zwei ehedem unabhängigen Häusern zusammen. 1724 liessen die Besitzer die beiden unterschiedlich breiten Bauten zusammenlegen und zu einem herrschaftlichen Wohnhaus mit grossem Treppenhaus umbauen. Damals erhielten die Räume ihre barocke Ausstattung mit edlem Täfer, farbigen Deckenmalereien und passenden Bodenbelägen. Der Namensgeber Bernhard Niklaus Morell erwarb die Liegenschaft 1805, nach seinem Tod kaufte die Stadt Bern das Gebäude. Das östliche Haus wurde im letzten Viertel des 17. Jahr­hunderts weitgehend neu gebaut und erhielt die beiden 7 m tiefen gassenseitigen Stuben im 1. und 2. Obergeschoss. 1865 entstand anstelle eines älteren Anbaus der klassizistische Anbau im Osten, ganz aus glatt behauenen Sandsteinquadern.3

Wohnen statt Büros

Der obere Teil der Berner Innenstadt, vom Bahnhof bis zum Zytglogge, war seit je stark vom Gewerbe geprägt. Vom Zytglogge Richtung Nydegg aber ist die Stadt weitgehend Wohngebiet. Das Quartier hat eine Nutzungsregelung, die für alle Gebäude ab dem 2. Stockwerk Wohnraum vor­schreibt.4 Sie besagt zudem, dass «bei grösseren, in die Gebäudestruktur eingreifenden Umbauten im umgebauten Gebäudeteil die Wohnnutzung herzustellen ist».

Im Juni 2015 diskutierte der Gemeinderat der Stadt Bern die Rückführung der Stadtbauten Bern in die Verwaltung und dabei auch die Umnutzung des Morellhauses. Eine Nutzungsanalyse ergab, dass es als zeitgemässes Verwaltungsgebäude nicht geeignet sei und künftig nicht optimal betrieben werden könne. Das Ratssekretariat sei an die Predigergasse zu verlegen, das Morellhaus solle instandgesetzt und umgenutzt werden. Es seien bis 2019 insgesamt sieben Zwei- und Dreizimmerwohnungen zu erstellen und im Erdgeschoss Büro- oder Geschäftsfläche. Der bislang ungenutzte Dachraum solle komplett ausgebaut und energetisch gedämmt werden, die gesamte Gebäudetechnik bedürfe dabei einer Erneuerung, so der Beschluss. Geplant war eine sanfte Instandsetzung, die auf die bestehende Bausubstanz Rücksicht nimmt. Auch die Mietzinse sollten sich im für die Altstadt eher modera­ten Bereich von 1000 bis 1800 Franken monatlich bewegen.

Schichten aus Bausünden

Das Team Co. Architekten aus Bern erhielt aufgrund eines Auswahlverfahrens mit Präqualifikation 2016 den Auftrag für das Bauvorhaben. Nach der Planung erfolgte das, was bei solchen Sanierungen fast immer der Fall ist: Schicht um Schicht früherer Bemühungen zur Modernisierung war abzutragen. Verkleidungen aus Gips-, Pavatex- und OSB-Platten mussten weichen, unpassende Bodenbeläge verschwanden, und zum Vorschein kam, was dieses Haus charakterisiert und wertvoll macht: historische Funde, etwa frühbarocke Deckenmalereien, Sandsteinböden oder elegante Täfer aus dem frühen 18. Jahrhundert. Die städtische Denkmalpflege begleitete den Umbau, Restauratoren legten die ursprüngliche farbliche Gestaltung wieder frei. Alle diese Funde wurden mit grosser Sorgfalt in das Umbauprojekt integriert.

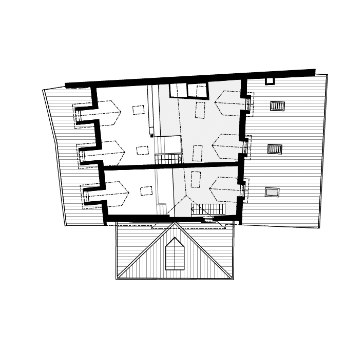
Dabei war aber auch pragmatisches Vorgehen gefragt. So etwa beim grossen Wohnraum der Dreizimmerwohnung im 1. Obergeschoss, dessen historische Balkendecke über 7 m frei überspannt. Das könnte zu unerwünschten Durchbiegungen und Schwingungen führen, und so beschloss man, im Bereich der offenen Küche auf 6.30 m Breite einen Unterzug aus Stahl (Doppel-­T-Träger HEB100 / 100 × 100 mm) anzubringen und diesen mit runden Stahlrohren (Ø 50 mm) an einem im Boden des Dachgeschosses neu ­eingebauten Träger aus Brettschichtholz (18 × 70 cm / BSG GL 28h) aufzuhängen. Dieses Prinzip ermöglichte in den Zwischengeschossen eine filigranere Tragwerkkonstruktion, und der Raum im 1. OG konnte originalgetreu stützenfrei bleiben. Die schwarz eingefärbte Hilfskonstruktion aus Stahl bleibt sichtbar belassen. Der Brettschicht­holzträger bedingte im Dachboden wiederum zwei um 70 cm versetzte Geschossniveaus. Historisches trifft auf Zeitgemässes, Sicherheit geht vor Nostalgie.

Auch die sanitären Anlagen und die Küchen sind mit Sorgfalt in die Baustruktur eingefügt, wirken indes mit ihrer auf Zweckmässigkeit ausgerichteten Einrichtung und den modernen Apparaturen selbstverständlich. Die Räume sind via Radiatoren beheizt (derzeit durch eine Gasheizung), und die Fenster haben zwar Sprossen, aber Dreifachverglasung. Aussenseitig sind für Sonnen- und Sichtschutz elektrisch gesteuerte Stoffstoren angebracht. Die Räume selbst verfügen über eine diskret in die Täfer eingelassene, kontrollierte Belüftung.

Brand mit Folgen

Am Abend des 9. Juli  2018 brach auf der Baustelle ein Brand im Dachstock aus, der den historischen Dachstuhl sowie die Deckentäfelungen im 2. Stockwerk zur Gänze zerstörte. Die Feuerwehr war rasch vor Ort, der Brand wurde gelöscht, aber die so entstandenen Wasserschäden führten dazu, dass demontierbare historische Teile ausgelagert und fachgerecht getrocknet werden mussten. Ein Notdach deckte die Baustelle, der Dachstock musste vollständig neu konstruiert werden. Der ursprünglich auf Anfang 2019 geplante Bezug der Wohnungen wurde auf Ende November verschoben.

Beim Besuch der Baustelle Ende Oktober zeigten sich die Täfer und historischen Decken als weit­gehend intakt, ebenso führt das bestehende Treppenhaus aus Sand­stein weiterhin bis zum Dachboden. Dort aber ist alles neu und doch so gestaltet, dass der Massstab der Raumteilung, geprägt auch von den Lukarnen, dem Gebäude gerecht wird. Dass im Haus nun Brandmelder eingebaut sind, hat mit diesem Ereignis nicht direkt zu tun. Seit 2017 sind unter der blumigen Bezeichnung «Casa Segura» in der Innen­stadt etwa 80 Gebäude mit Funk­rauchmeldern ausgerüstet, eine Massnahme, die auf Freiwilligkeit beruht und sich gemäss Feuerwehr bereits mehrfach bewährt hat – für das Morellhaus kam der Einbau leider etwas zu spät.

Anmerkungen
1 Berchtold Weber, Historisch Topographisches Lexikon der Stadt Bern, Bern 2016.
2 Die Liegenschaften des Finanz­vermögens der Stadt Bern befinden sich grösstenteils im Fonds für Boden- und Wohnbaupolitik. Der städtische Fonds ist eine Gemeindeunternehmung mit Sonderrechnung.
Er soll bestmöglich Voraussetzungen für eine zeitgemässe, soziale, wirtschaftliche und baulich optimierte Wohnbaupolitik schaffen.
3 Bern, Postgasse 14, Bauhistorische Analyse. Büro ABD, Siegfried Moeri, Burgdorf, 2017/2018.
4 Bauordnung der Stadt Bern, Art. 80, Absatz 5.

Bauherrschaft
Fonds für Boden- und Wohn­bau­politik, Bern

Architektur
Co. Architekten, Bern

Tragkonstruktion
WAM Planer und Ingenieure, Bern

Elektroplanung
fux & sarbach Engineering, Gümligen

HLK-Planung
Matter + Ammann, Bern

Sanitärplanung
Rober Inäbnit Ingenieurbüro Sanitär­technik, Bern­

Bauphysik
Marc Rüfenacht Bauphysik + Energie, Bern

Schadstoffberatung
Gartenmann Engineering, Bern

Etichette

Articoli correlati