Ler­nen in Pa­stell

Schulzentrum Chavully, Granges-Paccot

Im Herbst 2017 konnte die freiburgische Gemeinde Granges-Paccot ihre neue Primarschule eröffnen, im Frühling 2018 folgte die dazugehörige Doppelturnhalle. Die Bauten von Oeschger Schermesser Architekten schaffen einen attraktiven Ort an komplexer Lage. Im Innern überzeugt die Schule mit einer überraschenden Farbgebung.

Data di pubblicazione
24-01-2019
Revision
24-01-2019
Tina Cieslik
Head of Multimedia | espazium digital lab; Korrespondentin Architektur/Innenarchitektur TEC21

Als die Verkehrsplaner in den 1960er-­Jahren die Autobahn A12 Vevey–Bern projektierten, wählten sie im Raum Freiburg eine Linienführung entlang des nordwestlich der Stadt gelegenen Lava­pesson-Tals, mitten durch den Weiler Granges-Paccot (der Name leitet sich ab vom spätlateinischen «grangia» = Scheune). Rund 50 Jahre später ist nicht nur die benachbarte Kantonshaupt­stadt gewachsen, auch das Gebiet zwischen den «Scheunen» wurde durch Wohnquartiere ergänzt.

Granges-Paccot ist inzwischen mit der Gemeinde Givisiez und Freiburg zu einem Siedlungsgebiet zusammengewachsen – durch das eben eine Autobahn führt. Die Bevölkerungszahl der Gemeinde hat sich in den vergangenen 20 Jahren verdoppelt. Vor allem Familien sind zugezogen, die Zahl der Schulkinder hat sich gar verdreifacht. Das bestehende Primarschulhaus von Chantemerle von 1977 wurde zu eng. Ende 2013 schrieb die Gemeinde einen offenen Wettbewerb für einen Neubau mit Doppel­turnhalle aus, den Oeschger Schermesser Architekten aus Zürich für sich entscheiden konnten.

Das dreieckige, rund 20 000 m2 grosse Grundstück illustriert die Folgen der einstigen Verkehrs­planung: Zwar liegt es zentral inmitten der drei Haupt­einzugsgebiete der Schule, aber auch direkt neben der A12, die die Gemeinde von Ost nach West durchschneidet. Die Schülerinnen und Schüler von ennet der Autobahn überwinden das Hindernis via Route de Chavully, die die Fahrbahn als Brücke überquert und dem neuen Schulzentrum auch den Namen gab. An der Süd- und Ostseite des Perimeters hingegen liegt ein kleines Wäldchen, durch das ein Fussweg zum heutigen Schulgebäude führt. Durch die Setzung der Bauten, die Erschliessung und die Fassadengestaltung gelang es den Architekten, die Stimmung des Walds einzufangen und jene der hochfrequentierten Autobahn für die Nutzerinnen und Nutzer auszublenden.

Verfeinerte Weiterentwicklung

Das im September 2017 fertiggestellte Schulzentrum Chavully ist der zweite realisierte Bau des Büros. Schon der erste, die Primarschule Avry, lag im Kanton Freiburg (vgl. TEC21 26–27/2017), und auch die folgenden – alles Siegerprojekte aus Wettbewerben – sind Schulhäuser in der Romandie: das Collège de La Sarraz VD (Fertigstellung Sommer 2019), die Primarschule Praroman der Gemeinde Le Mouret FR (Wettbewerb Herbst 2018) und die Primarschule Champsec in Sion VS (Wettbewerb Herbst 2018). Die Zürcher scheinen mit ihren Ideen die lokalen Bedürfnisse und Erwartungen an ein Schulhaus besonders gut zu erfüllen.

Tatsächlich weisen die beiden Bauten in Avry und Granges-Paccot Gemeinsamkeiten auf, allen voran die expressive Farbgebung und die Volumetrie, zwei in Lage und Höhe leicht versetzte Kuben, die sich aus dem in zwei Richtungen geneigten Hang ergibt. Auch die Erschliessung ist verwandt: Statt Korridoren gibt es eine Abfolge ineinander verschränkter Hallen, die auch für Gruppenarbeiten genutzt werden können. Zusammen mit der identitätsstiftenden Holzfassade und der Setzung der Volumen war diese Aufsplittung des Raumprogramms in einen kindgerechten Massstab einer der Gründe für den Wettbewerbsgewinn.

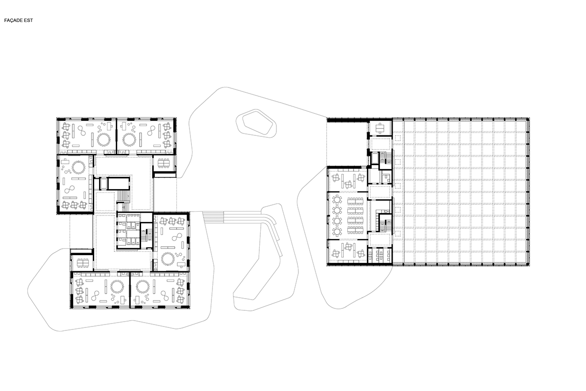
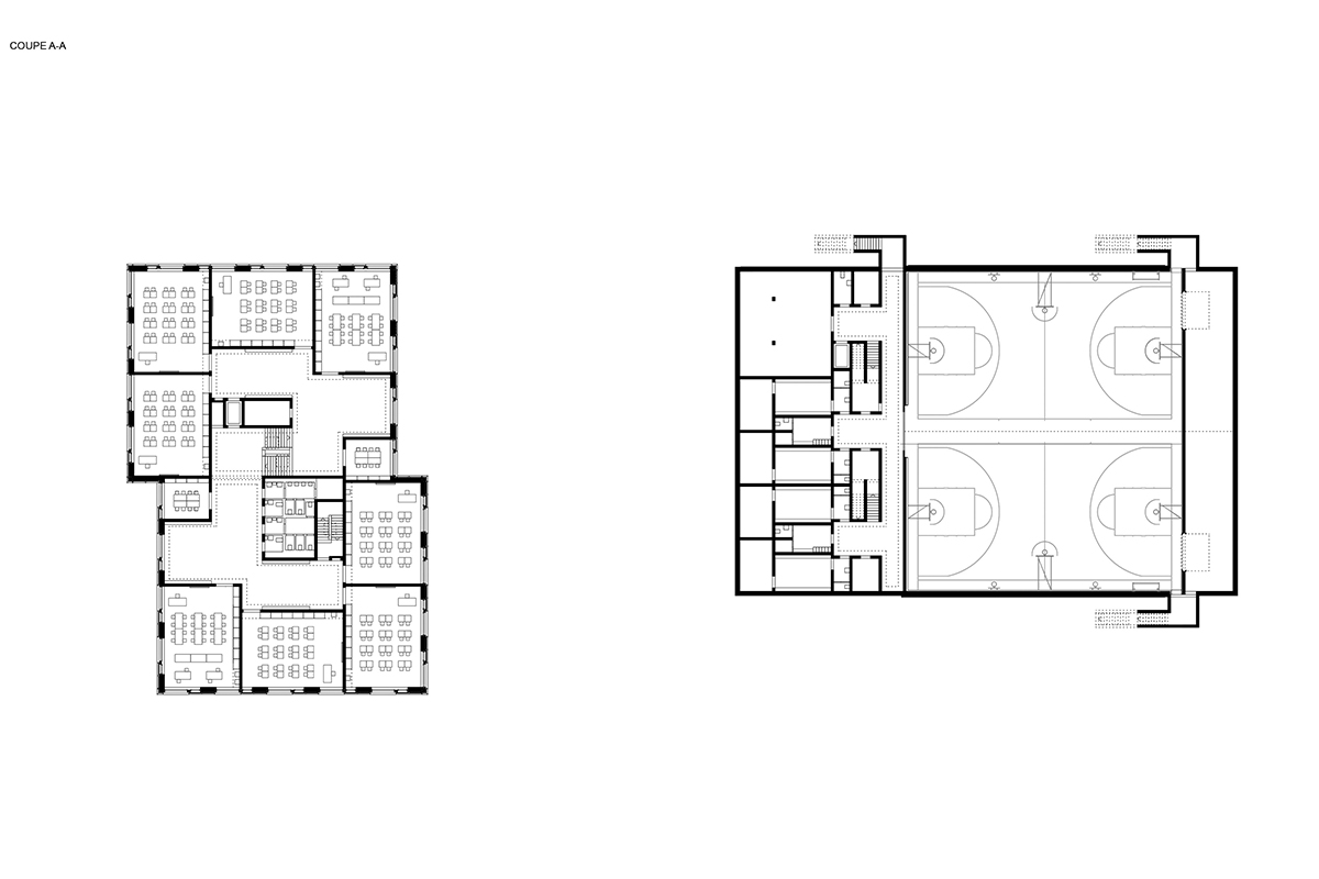
Der östliche, der Stadt Freiburg zugewandte Bau beherbergt die Schule mit Klassen für rund 250 Kin­der inklusive Spezialräumen und sechs Kinder­gärten. Im westlichen, zur Autobahn hin gelegenen Bau ist die auch für ausserschulische Aktivitäten genutzte Doppelturnhalle untergebracht (vgl. «Tragwerk-Spezial», Kasten unten). Sie wirkt als Lärm- und Sichtschutz für das Areal und begrenzt den zwischen beiden Gebäuden liegenden Aussen­bereich, der sich so atmosphärisch zum Wald hin orientiert.

Jeweils ein Zugang an der Südost- und an der höher gelegenen Nordwestfassade führen in die Eingangshalle, die sich als mäandrierender Raum durch die beiden Kuben zieht und so Durch- und Ausblicke ermöglicht. Entlang der Nordwest- und Nordostfassade sind drei je 101 m2 grosse Kindergärten aufgereiht, im Zentrum liegt der Kern mit Sanitärräumen und Fluchttreppenhaus. Eine zentrale Treppe führt in den um ein halbes Geschoss nach oben versetzten Quadranten, der das identische Raumprogramm gespiegelt enthält und zum Aussenbereich vis-à-vis der Turnhalle führt.

Die beiden Obergeschosse sind analog angelegt, allerdings reihen sich hier jeweils vier 81 m2 grosse Klassenzimmer entlang der Fassaden. Die versetzte Anordnung der beiden Gebäudeteile erlaubt es, dass die Mehrheit der Klassenzimmer übereck belichtet wird, was besonders zum benachbarten Wäldchen hin eine spezielle Lichtstimmung ergibt.

Holz, Beton, Farbe

Die Fassadengestaltung verstärkt diese Assoziation. Die Architekten entschieden sich für eine Fassade aus druckimprägnierten, pigmentierten und mit einem doppelten Anstrich versehenen Weisstannenholz, das Tragwerk des Baus hingegen ist aus Beton. Die Holzelemente gliedern die Aussenhaut sowohl horizontal als Sturzbänder als auch vertikal. Dabei wechseln sich je ein bodenbündiges grosses Fenster, ein durch Öffnungen in der vertikalen Lattung semitransparentes und ein geschlossenes Holzelement ab. Gesimse betonen die ­einzelnen Geschosse. Im Innern wirken die semitransparenten Elemente wie ein Blick zwischen Baumstämmen hindurch auf eine Lichtung – eine Waldschule inmitten der Agglomeration.

Im Innern schufen die Architekten zwei Welten: jene des Materials und jene der Farbe. Die Erschlies­sungszonen aus hellem Sichtbeton ergänzt ein elfenbeinfarbener Terrazzoboden und eine durch ein Beton­fries von der Wand abgesetzte Akustikdecke aus Eichenholz. Die breiten Fensterrahmen, die Türen, Handläufe und Sitzbänke vervollständigen die Holz­palette, matt vernickelte Kleiderhaken dienen als Garderobe oder als Aufhängung für Selbstgebasteltes.

Die Unterrichts­räume kontrastieren dieses aufgeräumte Ambiente mit einer expressiven, aber ruhigen Farb­gebung. Sie sind jeweils monochrom in Pastellblau – in den Kinder­gärten – oder Pastellgelb bzw. -grün in den Klassenzimmern ausgeführt. Die Farbigkeit erinnert an den in Blau und Grün gehaltenen Vorgänger in Avry, wirkt durch den hohen Weissanteil aber deutlich unaufgeregter. Die farbigen Flächen – gestrichene Weissputzwände, eine ebenfalls gestrichene Akustikdecke und ein gegossener PU-Boden – bilden den Hintergrund für die schulischen Aktivitäten.

Trotz oder mit

Mit dem Schulzentrum Chavully werten die Architekten einen schwierigen, vom Verkehr geprägten Ort auf. Durch einfache architektonische Mittel wie den räumlichen Versatz, die Halbgeschosse und die durchaus mutige Farbgebung gelingt es ihnen, einen architektonischen Reichtum zu schaffen, der Kinder und Erwachsene ­gleichermassen anregt und die Anforderungen an ein zeitgenössisches Schulhaus erfüllt.

Mit der Autobahn durchs Dorf haben sich die Bewohnerinnen und Bewohner von Granges-Paccot längst arrangiert. Bauten wie das neue Schulzentrum zeigen, wie an solch extremen Lagen städtebaulicher Mehrwert entstehen kann – sogar für die Kleinsten.

Termine
2013 / 2014 offener Projekt­wettbewerb; 2015 Baukreditabstimmung; 2015–2018 Ausführung; August 2017 Bezug Schulhaus; April 2018 Eröffnung Turnhalle

Raumprogramm
12 Primarklassen à 81 m2, 6 Kindergärten à 101 m2, 4 Gruppenräume à 20 m2, 3 Räume für Handarbeit und Werken à 81 m2, Lehrerzimmer à 81 m2

Energetische Anforderung
Minergie-P

Kennwerte
Baukosten (inkl. 8 % MwSt.): 25 718 000 Fr. (BKP 1– 9); 21 991 000 Fr. (BKP 2); Geschossflächen SIA 416: 7185 m2; Volumen SIA 416: 34 753 m3


Tragwerk-Spezial: Doppelturnhalle Schulzentrum Chavully

Mit den Abmessungen 31 × 34 m besitzt die Turnhalle einen fast quadratischen Grundriss. Die Planenden entschieden sich daher für eine Tragstruktur, die in zwei Richtungen trägt, was auch die statische Höhe des erforderlichen Tragwerks reduzierte. Das Besondere war, dass der Trägerrost für die Überdachung aus Holz gefertigt wurde. Der Holzbalkenrost weist ein Schlankheitsverhältnis l/h von 1/25 auf, wobei die Höhe der jeweils elf senkrecht zueinander angeordneten Holzbalken variiert – von 130 cm am Rand zunehmend bis zur Mitte auf 150 cm. Die rund 6 t schweren Balken sind im Achsabstand von 2.7 m angeordnet und lagern an den Enden jeweils in Nischen des umringenden Betonrand­trägers.

Jeder einzelne Rostträger wurde als Kamm vorfabriziert, auf der Baustelle gegengleich ineinander versetzt und so zu einem räumlich stabilen Tragsystem verzahnt. Allein bildet der Holzrost allerdings noch kein tragfähiges System: Erst durch den kraftschlüssigen Verbund mit der 10 cm dünnen, aussteifenden Betondecke an der Oberseite der 25 cm breiten Träger – materialgerecht als Druckzone wirkend – und den aufgeklebten Carbonbändern auf deren Unterseite – ebenso materialgerecht als Zugband wirkend – entfaltet sich die statische Tragfähigkeit des Rosts. Solange der Verbund des gesamten Dachtrag­systems noch fehlte, war der Trägerrost unterspriesst.

(Clementine Hegner-van Rooden, Dipl. Bauing. ETH, Fachjournalistin BR und Korrespondentin TEC21)

Am Bau Beteiligte


Bauherrschaft
Commune de Granges-Paccot


Architektur
Oeschger Schermesser Architekten, os.arch, Zürich


Bauleitung
Chappuis Architectes, Fribourg


Tragkonstruktion
Gex & Dorthe Consultants, Bulle


Elektroplanung
BMS, Avry


HLK-Planung
AZ Ingénieurs Bulle


Sanitärplanung
Duchein, Villars-sur-Glâne


Bauphysik
Estia, Lausanne


Landschaftsarchitektur
L’Atelier du Paysage Jean-Yves Le Baron, Lausanne

Magazine

Articoli correlati