No­stal­gi­scher Land­gang

Umbau Bootshaus des Polytechniker Ruderclubs Zürich

Joos & Mathys Architekten modernisierten das Bootshaus, das der Architekt Jacques Gros vor über 100 Jahren errichtet hatte, mit angemessenen ­Mitteln.

Data di pubblicazione
22-11-2018
Revision
22-11-2018

Das Bootshaus des Polytechniker Ruderclubs in Zürich ist ein Juwel. Geborgen unter hohen Bäumen und eingeklemmt zwischen Hafen und Wasserschutzpolizei versteckt es sich allerdings so gut, dass es sogar vom Inventar der neueren Schweizer Architektur INSA übersehen wurde. Dabei ist es als Denkmal von doppeltem In­teresse. Historisch als ältestes Beispiel seiner Gattung in der Schweiz, 1902 erbaut für den zweitältesten Ruderclub des Landes. Architektonisch als gut erhaltener, charakteristischer Bau von Jacques Gros, einem der erfolgreichsten Architekten der Jahrhundertwende, der auf dem Höhepunkt seines Schaffens stand. Drei Jahre zuvor hatte er das Zürcher Grandhotel Dolder fertig­gestellt, die Waldschloss-Brauerei in Waldshut war im Bau. Vor allem aber war Gros als Entwerfer von Privat­häusern erfolgreich.

Schmuck und farbig

Unter seinen Bauherren waren Professoren des Polytechnikums: der Geologe Albert Heim, der Historiker Wilhelm Oechsli und der Physiker Gustav Tobler. Das ist kein Zufall. Auf den Schultern von Ernst Gladbach, der als Professor für Baukonstruktion und Civilbau mit seinen Publikationen die einheimische ­Bautradition systematisch erschlossen hatte, entwickelte Gros eine Ar­chitektur, die sich dezidiert von der klas­si­schen Tradition absetzte. Das entsprach polytechnischem Geist, zu­­mal sich Gros auch als Unternehmer sah, der seine Entwürfe katalogartig veröffentlichte und zur wiederholten Realisierung anbot.

Entsprechende Erfahrungen hatte er als Mitarbeiter der Parkett- und Chaletfabrik Sarnen gewonnen, 1903 wurde er gar für kurze Zeit ­Direktor der Parkett- und Chalet­fabrik Interlaken. Beim Bootshaus für die Polytechniker verzichtete Gros auf die malerischen Türmchen und Erker, mit denen er seine Entwürfe üblicherweise ausstattete. Seine «Schweizer Architekturen» entfernten sich oft recht weit von der Rationalität des traditionellen Bauens1, hier jedoch entwarf er eine einfache, zweischiffige Halle mit Blockbauwänden auf gemauertem Sockel, mit einem abgewalmten Dach, das über ein Oberlicht eine rückwärtige Galerie belichtet. Eingestrickte Pfeiler, die in kräftig profilierten Konsolen münden, stabilisie­ren und gliedern die Wände.

Diese tektonische Ordnung wird durch eine farbige Fassung von Schwellen, Rahmen, Fasen und Hirn­­­holzpartien überhöht, die sich kontrastreich vom Schwarz der Wände abhebt. Die Fassade zum See wird durch zwei Tore mit ausgeprägter Überdachung und durch eine ­Achsverschiebung zwischen Wand und Dach ausgezeichnet. Der Balken, der die mittlere Wandkonsole abschliesst, ist mit blauer Färbung und einem geschnitzten Kopf als Vogel Zürich ausgebildet. Die Segmente des halbkreisförmigen Fensters darüber werden so zu seinen gesträubten Schwanzfedern: ein im besten Sinn naives Schmuckelement.

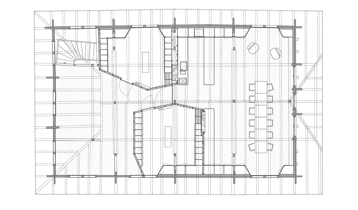
Im Verlauf der über hundertjährigen Geschichte wurde die Galerie in der Bootshalle zu einem vollen Geschoss ausgebaut, überdies kamen Einbauten für Garderoben und Klubaktivitäten hinzu. Als Ergebnis waren die Räume dunkel und weder attraktiv noch zweckmässig. Eine Erneuerung tat not.

Vorbildliche Erneuerung

Joos & Mathys räumten die Einbauten bis auf den Zwischen­boden aus und gliederten das Obergeschoss durch zwei Garderoben in einen ­seeseitigen Klubraum und einen strassenseitigen Trainingsbereich. Der Entscheid, die bestehenden Duschen nicht anzutasten und die Nassbereiche im Erdgeschoss zu belassen, entlastete den Umbau von aufwendigen bauphysikalischen Massnahmen.

Durch ihre zueinander versetzte Anordnung und die polygo­nale Form wirken die Garderoben zunächst als selbstständige, in den offenen Dachraum hineingestellte Körper. Steht die bis in den Giebel reichende Tür offen, behält das Geschoss deshalb seine Grosszügigkeit und kann, zum Beispiel bei den gar nicht so seltenen Festen, als Ganzes genutzt werden. Im Klubraum ergibt sich eine Nische für die offene Küche, wobei durch Theke und Büfett eine ruhige, im Grundriss orthogo­na­le und annähernd symmetrische Raumform etabliert wird. Diese wird allerdings durch Spiegel in kreisrunden, gleichsam perspek­ti­visch angeordneten Vitrinen wie­der­um kokett aufgebrochen.

Lichtspiele auf dem Holz

Im Trainingsbereich stehen in Reih und Glied die Ergometer. Hier bleibt die Wand- und Dachkonstruktion offen sichtbar, die anderen Räume dagegen erhielten eine Bekleidung in hellem Fichtenholz. Die glatten Flächen dieses Futterals lassen die dunklen Stäbe des primären Tragwerks als gliedernden Schmuck hervortreten. Schränke im Kniestock verbessern die Raumproportionen und formen tiefe Laibungen, die das Licht der bodenbündigen Fenster in den Raum begleiten und dabei zu verstärken scheinen. Kunstlicht, hinter den Pfetten versteckt, bestreicht ergänzend den unteren Bereich der Decke. Dazu gibt es zwei Leuchter, stabförmig im Trainingsbereich und kreisrund im Klubraum, die auf der Grundlage eines Entwurfs von Jonathan Roider von den Architekten selber gebaut wurden.

Raumprägendes Dach

Jeder Bereich hat seinen eigenen Charakter. In den Garderoben schaffen die konkave Raumform und der grüne Linoleumboden Intimität, der Trainingsbereich wirkt roh und elementar, der Clubraum dagegen elegant und gediegen einfach. Dabei gelang Joos & Mathys das Kunststück, in den beengten Verhältnissen gleichzeitig den Eindruck eines einzigen, grossen und grosszügigen Raums zu schaffen. Der Entwurf profitiert dabei von der zusammenfassenden Kraft des Dachs, das mit dem Gebälk, vor allem aber mit seiner bergenden Form überall raumprägend bleibt. Vereinheitlichend wirken auch die Einfachheit und die Reduktion der Mittel. Helle, glatte Holzflächen ergänzen den dunklen, aus Balken und Brettern gefügten Bestand.

Der Eingriff hebt sich damit deutlich vom Ursprünglichen ab, passt aber bestens dazu. Die neue Schicht schmiegt sich an den ­Bestand an wie der Ausbau eines Schiffs. Den Anschluss findet er nicht über formale Ähnlichkeiten, sondern über den Respekt vor den Eigenheiten des Gegebenen, über eine vergleichbare Sorgfalt in ­Gestaltung und Ausführung und nicht zuletzt über das Material Holz, das in beiden Bau­etappen mit ­Lust  und Können jeweils zeit­gemäss eingesetzt wurde.

Anmerkung

  1. Vgl. «Holzbauten, Chalets und verschiedene Architekturen – Entwürfe und Zeichnungen von Jacques Gros», Stuttgart 1901.

Am Umbau Beteiligte
 

Bauherrschaft
Polytechniker Ruderclub, Zürich
 

Vertretung Bauherrschaft
Baukommission PRC, Stephan Grosch, Claudia Schwalfenberg, Christine Wilkening-Aumann
 

Architektur
Joos & Mathys Architekten, Zürich
 

Bauphysik
BAKUS Bauphysik & Akustik, Zürich
 

Tragkonstruktion
Schnetzer Puskas Ingenieure, Zürich
 

Holzbau
Graf Holzbautechnik, Affoltern a. A.
 

Schreinerarbeiten
Schreinerei Schäfer, Dielsdorf
 

Elektroinstallation
EKZ Eltop, Birmensdorf
 

Sanitärinstallationen
Debrunner, Zürich
 

Bodenbeläge    
Parkett Mayer, Zürich
 

Malerarbeiten    
Gigamaler, Uster

Magazine

Articoli correlati