Un por­ti­co per tes­se­re re­la­zio­ni

baubüro in situ I JägerPartner

Il progetto Einfaches Wohnen reinterpreta l’accoglienza dei rifugiati come abitare dignitoso. Moduli in legno, spazi condivisi e flessibili, corte centrale e ballatoi trasformano il temporaneo in una casa, affermando cura, giustizia e integrazione come principi architettonici.

Data di pubblicazione
14-10-2025
Hind Al-Shoubaki
Architektin, Stadtplanerin und wissenschaftliche Mitarbeiterin an der Fachhochschule Nordwestschweiz

A porch to weave relations, english version 

Einfaches Wohnen, Bubikon ZH

Einfaches Wohnen (vivere semplicemente) a Furtwis Bubikon ripensa l’accoglienza dei rifugiati come abitare, non come limitazione. In opposizione al paradigma dei campi container e degli alloggi provvisori, il progetto afferma che anche l’abitare temporaneo deve essere concepito come una casa. Questo principio di «integrazione attraverso un abitare dignitoso» si concretizza nell’impianto, nella costruzione e nell’atmosfera, trasformando l’accoglienza in un atto architettonico di cura e di giustizia.

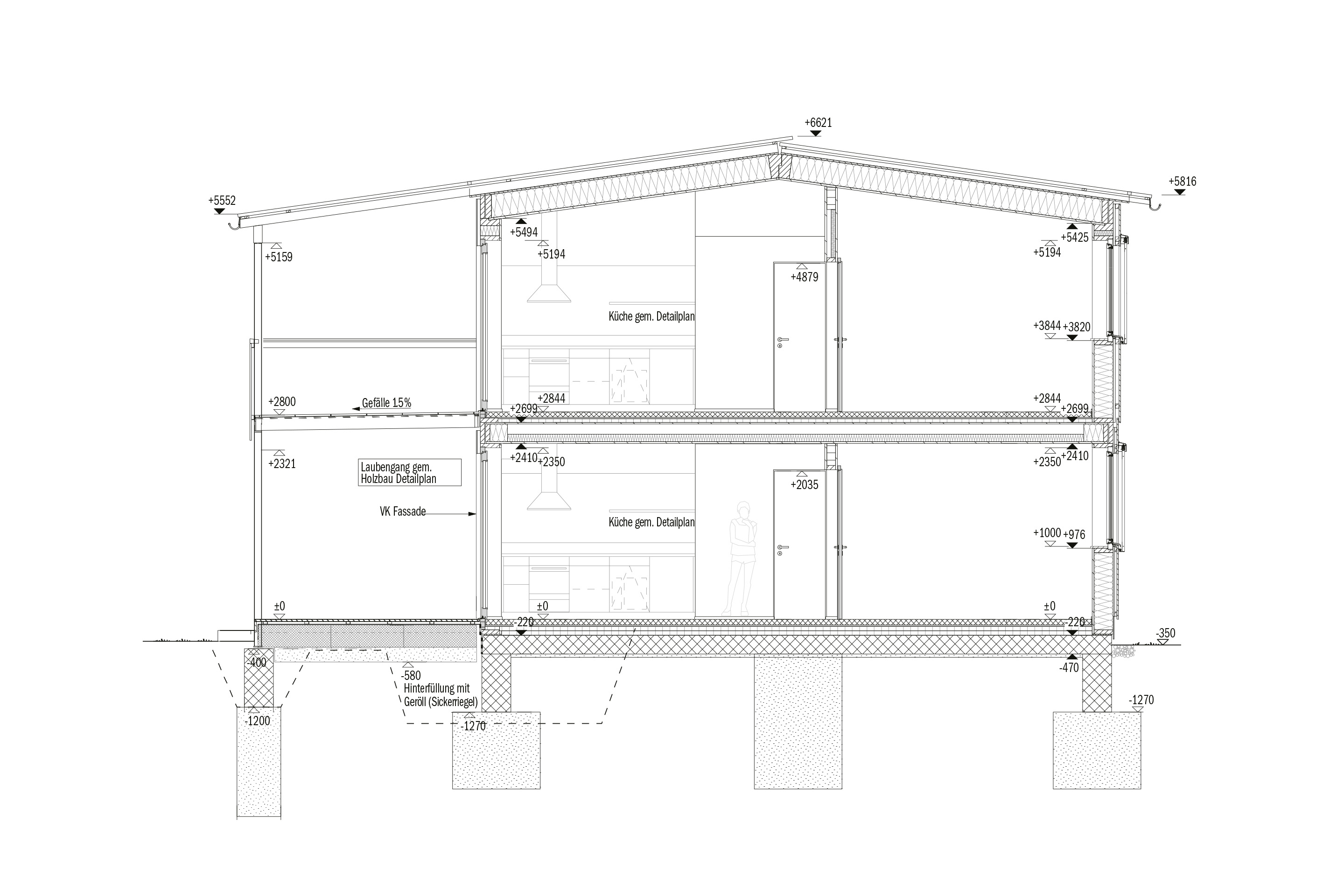
Sviluppato sotto vincoli finanziari e temporali stringenti, il progetto ha utilizzato moduli prefabbricati in legno per una realizzazione rapida. Ma l’esito resiste al minimalismo dell’emergenza, perseguendo un’architettura ridotta che resta generosa. Due volumi allungati, disposti con un leggero scarto, racchiudono una corte protetta al centro dell’insieme. Questo accorgimento evita il parallelismo rigido e genera un’apertura che rafforza il dialogo con il villaggio circostante. Il piano d’impianto mostra come l’insediamento negozi i propri margini: da un lato si schermano il cimitero, dall’altro ci si apre verso la casa comunitaria e i percorsi del villaggio. Un albero preservato diventa punto focale della corte, radicando l’insediamento nella vita civica di Bubikon e sottraendolo a una condizione marginale.

La corte funziona come catalizzatore sociale del progetto. Le sue proporzioni permettono sia attività collettive che momenti di ritiro: i bambini vi giocano sotto lo sguardo dei genitori, i vicini si incontrano di passaggio, i residenti condividono i ritmi quotidiani. Protetta dal cimitero e al contempo aperta verso il villaggio, la corte bilancia sfera privata e visibilità, affermando il diritto degli abitanti alla presenza e al riconoscimento. La circolazione si organizza lungo ballatoi esterni sulle facciate. Come mostrano piante e sezioni, queste soglie sono più di corridoi: ospitano incontri, consentono appropriazioni personali, mediano tra interno ed esterno. Sedie, biciclette o oggetti lasciati dai residenti trasformano la circolazione in un margine vissuto che alimenta la socialità quotidiana. Le scelte materiche traducono l’etica di cura del progetto. Il legno grezzo, utilizzato ovunque, ha garantito velocità ed economia, introducendo al tempo stesso calore, comfort acustico e familiarità tattile. Gli interni resistono allo stigma istituzionale e coltivano domesticità. Luce e viste sono distribuite equamente, con ogni alloggio orientato verso la corte o il paesaggio, assicurando giustizia spaziale nell’accesso all’illuminazione naturale e alla visuale. In questo modo i dettagli architettonici diventano strumenti di dignità.

L’adattabilità distingue ulteriormente il progetto. Porte di connessione tra unità consentono configurazioni flessibili da 1,5 a 4,5 locali, accogliendo strutture familiari diverse e bisogni mutevoli, evitando la rigidità tipologica tipica dell’edilizia per rifugiati. Il sistema modulare in legno sostiene inoltre future conversioni in appartamenti a prezzi accessibili per studenti, anziani o famiglie a basso reddito. Integrando l’adattabilità, il progetto assicura che l’investimento di oggi in accoglienza diventi infrastruttura civica per domani.

L’insieme di queste strategie colloca Einfaches Wohnen nel discorso più ampio di un’architettura dell’accoglienza intesa come cura. Gli interni coltivano atmosfere di guarigione, dove il calore del legno, la luce naturale e la giusta proporzione contrastano l’anonimato dell’abitare provvisorio. Le soglie dei ballatoi e la corte articolano margini porosi che invitano alla socializzazione senza imporla. In definitiva, il progetto esemplifica un passaggio dall’infrastruttura all’abitare: oltre la mera funzionalità, istituisce condizioni per la vita quotidiana, l’appropriazione e il riconoscimento. Bubikon ridefinisce così l’accoglienza come diritto all’abitare con dignità, mostrando come l’architettura possa trasformare la necessità in cura e il rifugio in relazione.

  • Luogo Rutschbergstrasse 22 / 24, Bubikon 
  • Committenza Gemeinde Bubikon 
  • Architettura baubüro in situ, Zürich 
  • collaboratori M. Hodel, P. Angehrn 
  • Impresa totale Schaerholzbau AG , Altbüron 
  • Ingegneria civile JägerPartner AG, Zürich 
  • Progetto impianti RVCS OLOS AG, Baar 
  • Progetto impianti elettrici eik engineering, Winterthur 
  • Progetto serramenti Setz Fensterbau AG, Schötz 
  • Fotografia Martin Zeller 
  • Date realizzazione | realisation 2019

Articoli correlati