Platz für In­no­va­ti­on

Projektwettbewerb Neubau des Switzerland Innovation Parks, Biel

Die «Switzerland Innovation», eine Plattform der schweizerischen Forschungs- und Innovationsförderungspolitik, wächst rasant. In Biel ist hinter dem Bahnhof ein Neubau projektiert, der Start-ups, KMU und Forschungsbetrieben Arbeitsfläche bietet und Synergien entstehen lässt.

Publikationsdatum
31-03-2017
Revision
31-03-2017

Es ist knapp zwei Jahre her, da wurde der Schweizerische Innovationspark «Switzerland Innovation» gestartet. Die fünf Standorte Park Basel Area, Park innovaare, Park Zürich, Park Network West EPFL und Park Biel sollen die Schweiz im Bereich Forschung und Wirtschaft vernetzen.

Der seit 2013 aktive Pilotbetrieb des Bieler Innovationsparks wurde 2015 in das Netzwerk «Switzerland Innovation» integriert. Um die stetig wachsende Menge der bei  Start-ups und KMU Beschäftigten unterbringen zu können, wird ein Neubau mit rund 15 500 m² Geschossfläche im Gebiet Bahnhof-See realisiert. Damit sollen optimale räumliche und betriebliche Voraussetzungen für den Innovationspark Biel entstehen. Zum ausgeschriebenen Wettbewerb des Switzerland Innovation Parks wurden 45 Arbeiten eingereicht. Aus dem Portfolio platzierte die Jury vier Projekte.

Aushängeschild Architektur

Die von den Initianten gewünschte Architektur soll Innovation repräsentieren. Im Jurybericht heisst es zur Zielsetzung: «Für die Authentizität des Neubaus ist es unabdingbar, dass die Unternehmensmission (Innovation, Anziehungspunkt für Talente, Orte des Austauschs) im äusseren Erscheinungsbild sichtbar und im Inneren des Gebäudes erlebbar ist.» Und weiter: «Der Neubau soll Innovation repräsentieren und ausstrahlen. Im Inneren sind Räume zu schaffen, die Innovation generieren, den Austausch fördern und damit einen Anziehungspunkt für Talente schaffen.»

Ein schwieriges Unterfangen, denn wie viel der geforderten sichtbaren Innovation durch die Architektur zum Ausdruck kommt, bleibt fraglich. Bei allen eingereichten Arbeiten gleicht die Aussengestaltung einer mehr oder weniger gelungenen Bürofassade. Wie viel Innovation am Standort entsteht, hängt wohl mehr davon ab, ob die richtigen Köpfe mit dem benötigten Innovationsgeist hier einziehen.

Die Räumlichkeiten sollen eine «hohe Nutzungsflexibilität» für den stetigen Wandel in der Arbeits- und Forschungslandschaft aufweisen. Wichtig ist vor allem eine freie Gestaltungsmöglichkeit für neue Technologien und ein dazu passendes Tragwerk. Eine modulare Raumeinteilung und Gebäudetechnik sowie eine flexible Erschliessung der Medien sollen gewährleistet werden. Und das alles unter Beachtung der energetischen Optimierung des Gesamtsystems.

Ein neues Stadtquartier

Das Areal des neuen Innovationsparks liegt im Quartier südlich des Bahnhofs Biel. Dieses befindet sich bereits seit einigen Jahren im Umbruch, es wurden schon mehrere Neubauten realisiert. Es sollen ein neuer Quartierteil mit hoher städtebaulicher Qualität sowie räumliche und funktionelle Bezüge in Richtung Nidau und See geschaffen werden. Auch der Neubau der «Switzerland Innovation» soll sich in diesen Masterplan einfügen, obwohl oder gerade weil ursprünglich im Masterplan kein Gebäude mit Mischnutzungen vorgesehen war. «Die Höhenbeschränkung, wie auch die Vorgaben für das Erd- und das Dachgeschoss, sind äusserst einschränkend», erklärt die Jury. Aufgrund des Masterplans und der Nutzungsanforderungen von «Switzerland Innovation» konnte keines der Projekte das Kostenziel der Bauherrschaft erreichen.

Am nächsten kommt den Voraussetzungen das Projekt «Flow» von Waldrap. «Da das Siegerprojekt trotz überragender Qualitäten entscheidende Fragen offen liess, setzte die Jury mit grosser Mehrheit eine Überarbeitung des Beitrags fest», so der Bericht. Die Jury empfielt den Initianten zudem, das Konzept an einigen Punkten zu überdenken. Sie schlägt vor, die Parkmöglichkeiten um 25 % zu reduzieren. Des Weiteren sollen Raumprogramm, Raumhöhe und Nutzflächen überprüft werden. Auch die Anforderungen an das Energiekonzept sind durch die Auftraggeber zu klären.

Arbeit steht im Zentrum

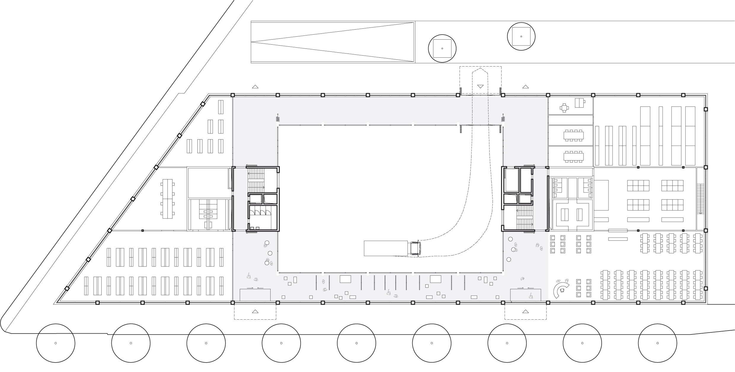
Das Siegerprojekt «Flow» besetzt das gesamte Baufeld zwischen der Aarberg-, der Marcelin-Chipot- und der Johann-Aberli-Strasse. Die Fassade des fünfgeschossigen Baukörpers ist klar gegliedert und spiegelt die Tragstruktur des Gebäudes. Diesen strukturellen Elementen liegt auch die mögliche Gliederung der Innenräume zugrunde. Die Dimensionen des Entwurfs orientieren sich an den bereits vorhandenen Neubauten der direkten Umgebung.

Ein besonderes Augenmerk gilt der zweigeschossigen Werkhalle. Sie ist im Zentrum des Erdgeschosses positioniert und bildet durch die fast vollständige Verglasung und die sie umgebenden halb öffentlichen Bereiche wie Foyer, Empfang, Mensa, Auditorium und Ausstellungsflächen auch funktional den Mittelpunkt des Entwurfs. Durch das anpassbare Deckenelement kann sie mit Lastwagen in der geforderten Durchfahrtshöhe von der Rückseite her erschlossen werden. Die Tragstruktur, ein dreischiffiger Skelettbau, gewährleistet die gewünschte Flexibilität der Nutzflächen. Das Tragwerk bleibt bei dem Entwurf sichtbar und verleiht dem Bau einen industriellen Charakter. Die Trennwände sind transparent, um Austausch und Synergien zwischen den einzelnen Bereichen zu fördern. Sie ermöglichen aber auch, dass das Tageslicht in die im Zentrum liegenden Räume vordringen kann.

Klare Architektursprache

Beim zweitplatzierte Projekt «Lifespan» lobt die Jury die architektonische Umsetzung des einfachen und klaren Volumens sowie die konsequente gestalterische Sprache und Materialwahl. Die langgezogenen, liegenden Fenster betonen den industriellen Charakter. Dieses Konzept scheint nicht zu Ende gedacht zu sein, da sich im Entwurf funk­tionale, konstruktive, architekto­nische und betriebliche Mängel abzeichnen, zum Beispiel bei der Raumaufteilung und Zonierung. Weitere Abstriche merkt die Jury bei der Umsetzung des Tragwerks in Zusammenhang mit der Werkhalle und den lichten Raumhöhen an.

Ein Tor zum Mond

Beim dritten Projekt «Reiseziel Mond» sticht vor allem die starke Verbindung zwischen Aussen- und Innenraum heraus. Dieses hohe Mass an Transparenz wirft bei der Jury jedoch Fragen auf. So werden zum Beispiel die im Bereich der Werkhalle und des Bistros vorgeschlagenen torartigen Öffnungen aus Glas als unverhältnismässig und kostspielig empfunden, zumal die damit verbundenen Fragen zum Thema Sicherheit ungeklärt bleiben. Auch bei der Organisation der Innenräume, der Erschliessung und der Gebäudetechnik ist das Konzept nicht konsequent genug.

Abgekappt

Das Projekt «Rue intérieure» besetzt als einziges der ausgezeichneten Projekte nicht das ganze Baufeld, sondern schneidet die Spitze zur Arbergstrasse ab. Die Jury hebt hervor, dass die Setzung dieses rechten Winkels einen interessanten Ansatz im städtebaulichen Umgang darstellt. Dennoch ist die Fassadengestaltung insgesamt nicht stringent genug und strahlt einen zu starken Bürocharakter aus, wo industrieller Charme gewünscht ist.

Konsequent durchdacht

Optisch scheinen die zweit-, dritt- und viertplatzierten Projekte spannendere Lösungen für das Stadtbild von Biel darzustellen als das Siegerprojekt. Beim zweiten Blick wird jedoch die kon­sequent durchdachte Gebäudeorganisation, Tragwerkplanung und Nutzungsflexibilität des Projekts «Flow» offensichtlich. Zurecht hat die Jury das Projekt zur weiteren Überarbeitung empfohlen. Diese schliesst eine Umgestaltung der Fassade nicht aus.

Weitere Informationen über den Neubau des Switzerland Innovation Parks

Auszeichnungen
 

1. Rang «Flow»: Waldrap, Zürich; Lüchinger+Meyer Bauingenieure, Zürich; Zuend, Zürich

2. Rang «Lifespan»: ARGE Pedro Peña Architekten + Wulf Architekten, Basel

3. Rang «Reiseziel Mond»: NYX architectes, Zürich; Basler & Hofmann, Zürich; tp, Biel; Prona, Biel, ARO Plan, Oberägeri

4. Rang «rue intérieure»: ARGE Schwab Architecte + Rausser & Zulauf Architekten, Biel; Laurent Chablais, Estavayer-le-Lac

 

Jury
 

Fritz Schär (Vorsitz), Architekt, Bern
Daniel Kündig, Architekt, Zürich
Valérie Ortlieb, Architektin, La Tour-de-Peilz
Jürg Saager, Architekt, Leiter Abteilung Hochbau, Stadt Biel
Florence Schmoll, Raumplanerin, Leiterin Abteilung Stadtplanung, Stadt Biel

Verwandte Beiträge