Mehr Was­ser für Bern

Projektwettbewerb 50-m-Schwimmhalle Neufeld, Bern

Die Bundesstadt bekommt ein neues Hallenbad. Nach langjähriger ­Standortsuche konnten nun Armon Semadeni Architekten den Wettbewerb für eine
50-m-Schwimmhalle für sich entscheiden. Ihr Entwurf bringt unaufgeregte Funktionalität im Innern unter ein expressives Dach.

Publikationsdatum
23-08-2018
Revision
23-08-2018
Tina Cieslik
Head of Multimedia | espazium digital lab; Korrespondentin Architektur/Innenarchitektur TEC21

Bern – obwohl keine Kur­stadt – hat eine vergleichsweise weit zurückreichende Bädertradition: Bereits 1782 öffnete das legendäre Marzilibad seine Tore, damals noch gegen Bezahlung. Heute ist die Nutzung der fünf Stadtberner Freibäder gratis. Doch bei der Versorgung mit «überdecktem Wasser», so der aquatische Fachausdruck, hapert es. Mit den Hallenbädern Wyler, Weyermannshaus und Hirschengraben sind die Einrichtungen zwar gut über das Stadtgebiet verteilt, aber die Kapazitäten reichen bei Weitem nicht aus, und die Bäder von 1971 bzw. sogar 1927 sind in teilweise marodem Zustand. Das war einmal anders gedacht: ­Anfang der 1960er- Jahre plante die Stadt in ihrer Bäderstrategie ein Bad für jedes Quartier, die Kennzahl lag bei einem Schwimmbad pro 8000 Einwohnern. Die ambitiöse Vision scheiterte an den Finanzen, und heute rechnet man bescheidener mit einem Bad für je 20 000 Einwohner und Einwohnerinnen.

Doch auch dieses Verhältnis ist nicht abgedeckt. Schon lang war die Stadt daher auf der Suche nach einem Grundstück für eine 50-m-Schwimmhalle – bisher gibt es im ganzen Kanton kein Bad dieser Grösse. Die Suche bewegte sich quer durch die Stadt, ein Standort beim Gaswerkareal stand ebenso zur Diskussion wie der Bau im zukünftigen Wohngebiet Mittel-/Viererfeld.

Die jetzt gewählte Lage ist bemerkenswert logisch: Im Neufeld, als Teil der Anlage für Sport und Sportwissenschaften der Universität Bern, soll der Bau realisiert werden. Zwar liegt das Quartier heute noch am nordwestlichen Rand von Bern, aber mit der ab 2023 projektierten Überbauung des Mittel- und des Viererfelds als Wohnquartier für rund 3000 Menschen wird sich das bald ändern.

Innere Verdichtung

Auf dem vorgesehenen Perimeter befinden sich heute die Tennisplätze der Sportanlage. Die Spielflächen selbst werden nach Westen auf die benachbarte Wiese verschoben. Der Neubau wird das Gebiet also verdichten, allerdings ist der zur Verfügung stehende Platz zwischen den Bestandbauten auch eher knapp bemessen. Mit dem öV ist das zukünftige Bad gut erreichbar, liegt es doch direkt bei der Bushaltestelle Brückfeld. Bei den Parkplätzen setzt die Stadt auf die Nutzung des rund 300 m entfernten Park + Ride Neufeld – für Familien oder für in ihrer Mobilität eingeschränkte Menschen ist das allerdings definitiv zu weit weg.

Zwar plant man eine 50-m-­Schwimmhalle, das Bad wird aber kein nationales Leistungs­zentrum sein und soll keine Olympia-Abmessungen aufweisen. Zielpublikum sind die Breitensportler, deshalb musste auch keine Tribüne eingeplant werden. Zum Raumprogramm gehörte hingegen auch die Integration des Tennisclubs. Und natürlich soll der Neubau höchsten Anprüchen an Energieeffizienz und Ökologie entsprechen, als Grundlage dazu diente im Wettbewerb der «Effi­zienzpfad Energie» des SIA. Nach einer Präqualifikationsrunde mit 59 Teilnehmern verblieben 15 Generalplanerteams. Als Sieger ging Ende Juni der Entwurf «goccia» vom Team um Armon Semadeni Architekten aus der Konkurrenz hervor.

Mehr als nur ein Tropfen

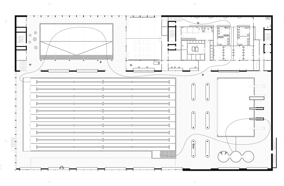
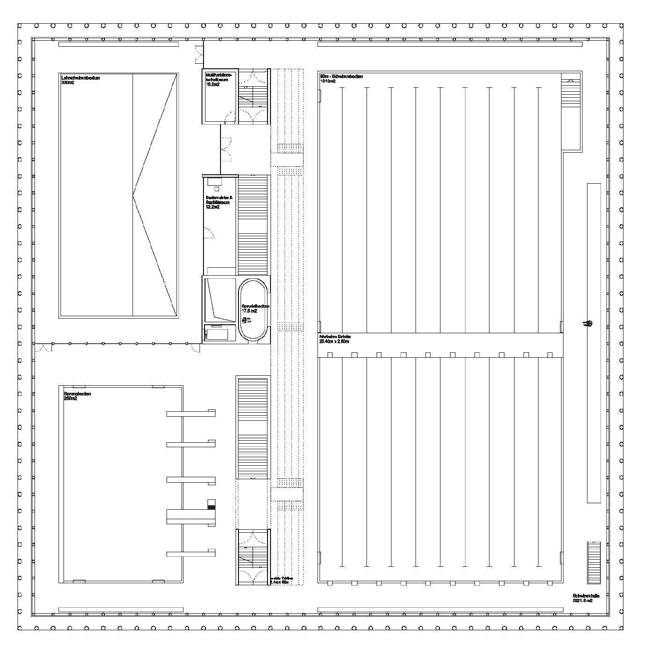
«Goccia», italienisch für «Tropfen», besticht auf den ersten Blick durch die Zweiteilung der Dachstruktur, die zum einen die städtebauliche Situation, zum anderen die internen Funktionsverteilung abbildet. Der östliche Teil über den Schwimmbecken ist als Aneinanderreihung von Tonnen ausgebildet, der rückwärtige Teil als Faltwerk. Der Haupteingang des Bads befindet sich bei der Neubrückstrasse, der Zugang im Bad selber erfolgt über eine verglaste Brücke über den Becken. Von dort gelangen die Besucher in den Garderobenbereich. Die Räume des Tennisclubs sind in der nordwestlichen Gebäudeecke ebenfalls auf dieser Ebene angeordnet. Schwimm-, Lehr- und Sprungbecken befinden sich ein Geschoss tiefer.

Die Anordnung der Funktionen ist logisch gelöst, und durch die vielen unterschiedlichen Oberlichter und verglasten Dachflächen ergibt sich eine abwechslungsreiche Tageslichtstimmung. Die ausdrucksstarke Konstruktion von Dach und Fassade ist logisch begründet und verleiht dem Bau eine starke Präsenz, gestalterisch iat sie aber noch etwas gewöhnungsbedürftig.

Glas geht nicht

Mit je einem Ankauf honorierte die Jury zudem die dritt- und sechst­rangierten Entwürfe «Reigen» vom Team um BS + EMI Architektenpartner und «Kano» vom Team um Markus Schietsch Architekten.

Was beim Siegerprojekt leicht irritiert, lösen diese Entwürfe elegant: Beide Vorschläge präsentieren Glasfassaden, die dem Gebäude vor allem im Kontext der bestehenden Bebauung Transparenz und eine gewisse Leichtigkeit verleihen. Beim drittrangierten «Reigen» überzeugte neben der Gestaltung – Vollglasfassade auf steinernem Sockelgeschoss – und der räumlichen Disposition vor allem die Form, ein leichtes Trapez, das parallel zur Neubrückstrasse verläuft und so einen Hinweis auf die zukünftige  Bebauung des gegenüberliegenden Mittelfelds geben könnte.

Was ästhetisch überzeugt, gefiel im Hinblick auf die Energieeffizienz leider weniger. Vollglasfassaden hatten beim von der Stadt gewünschten ökologischen Leuchtturmprojekt in puncto winterlicher Wärmeschutz keine Chance.

Ein grosser kleiner Meilenstein

Obwohl die Vorgaben zu Programm, Kosten und Energieeffizienz bereits eng gesteckt waren, wünscht die Stadt in dieser Hinsicht eine weitere Optimierung. Die nächste Hürde ist anschliessend die für Herbst 2019 vorgesehene Abstimmung über den Baukredit von ca. 70 Mio Franken. Läuft alles nach Plan, kann das neue Schwimmbad 2023 in Betrieb genommen werden. Dann geht es aber erst richtig los, denn dann beginnt die Instandsetzung der bestehenden Hallen- und Freibäder. Dafür sind noch einmal 230 Mio. Franken vorgesehen, die letzten Arbeiten sollen 2026 abgeschlossen sein.

Weitere Pläne und Bilder finden Sie in der Rubrik Wettbewerbe.

Auszeichnungen
 

1. Rang, 1. Preis: «goccia»
Armon Semadeni Architekten, Zürich; Hoffmann & Müller Landschaftsarchitektur, Zürich; dsp Ingenieure & Planer, Zürich; Meierhans + Partner, Schwerzenbach; IBG B. Graf Engineering, Winterthur; Gemperle Kussmann, Basel; Aqua Transform Ingenieurbüro, Gossau

2. Rang, 2. Preis: «Promenade»
mischa badertscher architekten, Zürich; Klötzli Friedli Landschaftsarchitekten, Bern; APT Ingenieure, Zürich; Matter + Ammann, Bern; Bering, Bern; Pirmin Jung Ingenieure, Thun; Aqua Transform Ingenieurbüro, Gossau; edelmann energie, Zürich; Michael Josef Heusi, Zürich

3. Rang, 1. Ankauf: «Reigen»
BS + EMI Architektenpartner, Zürich; Vetschpartner Landschaftsarchitekten, Zürich; Dr. Lüchinger + Meyer Bauingenieure, Zürich; Harald Kannewischer & Team, Cham; Hefti Hess Martignoni Bern

4. Rang, 3. Preis: «nemo»
Raumbureau, Zürich; Haag Landschaftsarchitektur, Zürich; Ulaga Partner, Basel; Amstein + Walthert, Zürich; b + p baurealisation, Zürich; Beck Schwimmbadbau, Winterthur; Studio David Klemmer, Zürich

5. Rang, 4. Preis: «Stiller»
Boltshauser Architekten, Zürich; Andreas Geser Landschaftsarchitekten, Zürich; Conzett Bronzini Partner, Chur; Balzer Ingenieure, Chur; IBG B. Graf Engineering, Winterthur; Basler & Hofmann, Zürich; JOP Josef Ottiger + Partner, Rothenburg; Schneider Aquatec Consulting, St. Gallen

6. Rang, 2. Ankauf: «Kano»
Markus Schietsch Architekten, Zürich; Studio Vulkan Landschaftsarchitektur, Zürich; WaltGalmarini, Zürich; Kannewischer Ingenieurbüro, Cham; ­Schmidiger + Rosasco, Zürich: Archobau, Zürich
 

Fachjury
 

Thomas Pfluger, Stadtbaumeister, Hochbau Stadt Bern (Vorsitz)


Raphael Frei, Architekt, Zürich


Rolf Mühle­thaler, Architekt, Bern


Bettina Neumann, Architektin, Zürich


Ursula Stücheli, Architektin, Bern und Zürich


Martin Keller, Landschaftsarchitekt, Zürich


Heinrich Sauter, Architekt, Hochbau Stadt Bern (Ersatz)

Verwandte Beiträge