In­ter pa­res

Projektwettbewerb Stiftung Brüttelenbad BE

Für die Erweiterung und Instandsetzung ihres historischen Gebäudebestands schrieb die Stiftung Brüttelenbad einen Projektwettbewerb aus. Die Bieler spaceshop Architekten bereichern das Ensemble mit einem präzisen Neubau.

Publikationsdatum
26-04-2018
Revision
26-04-2018
Tina Cieslik
Head of Multimedia | espazium digital lab; Korrespondentin Architektur/Innenarchitektur TEC21

Vom «Hôtel des Bains de Bretiège» (1825–1870) über die kantonale «Rettungsanstalt für Mädchen» (1895–1973) zur Stiftung Brüttelenbad für geistig be­einträchtigte Menschen (seit 1989): Die historischen Mauern des Brüttelenbads im Bieler Seeland haben eine reichhaltige und wechselvolle Geschichte hinter sich. Geblieben sind die prachtvollen und heute denkmalgeschützten Bauten, namentlich das 1737 erstellte Hauptgebäude und die mächtige Scheune von 1903. Die heute als Mehrzweckhalle genutzte Turnhalle ergänzte das Ensemble 1967, war aber nie ein gleichwertiger Teil der Anlage, weder architektonisch noch städtebaulich.

Heute leben auf dem Gelände westlich der Gemeinde Brüttelen Menschen mit geistiger Beeinträchtigung in verschiedenen Wohngruppen, handwerkliche Ateliers bieten eine Tagesstruktur vor Ort. Das über die Jahre mehrfach erweiterte und umgebaute Hauptgebäude bedarf nun einer Erneuerung, zudem sollen die darin untergebrachten Wohngruppen sowie einige Werkstätten ausgegliedert werden. Dazu führte die Stiftung einen Projektwettbewerb auf Einladung mit 13 Architekturbüros durch, die dafür ein Team mit Landschaftsarchitekten bilden mussten. Zur Disposition stand neben dem Abbruch der Turnhalle – bei hochwertigem Ersatz – auch jener der erhaltenswerten, aktuell weitgehend als Lager genutzten Scheune.

Turnhalle muss weichen

Alle fünf rangierten Projekte schlagen einen Neubau anstelle der heutigen Turnhalle vor. Dessen Setzung variiert allerdings zwischen einer parallelen Position als Verlängerung des Hauptgebäudes und einer orthogonalen Platzierung. Nahezu un­bestritten ist hingegen der Umgang mit der identitätsbildenden Scheune: Nur der Entwurf «Brüttelenhof» sieht einen Abbruch und einen Ersatzneubau am gleichen Ort vor.

Bestand klug genutzt, Neubau sauber platziert

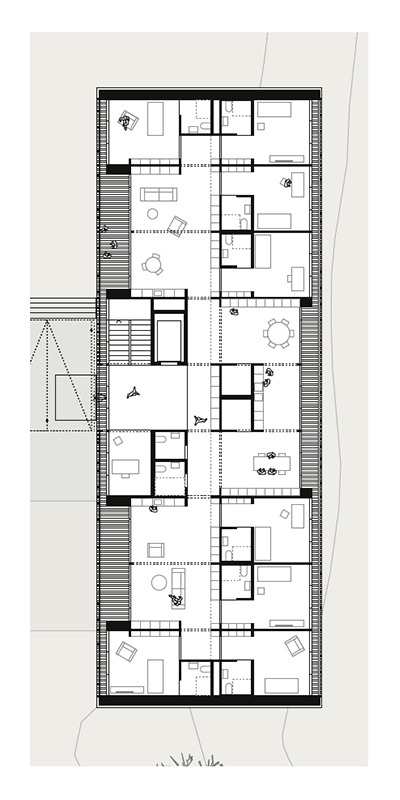
Am überzeugendsten gelingt die Umsetzung dem Projekt «Mis Huus dis Huus» von spaceshop Architekten aus Biel. Sie platzieren den langen schmalen Neubau weit östlich des Hauptgebäudes an der Hang­kante, was dem dreigeschossigen Volumen talseitig noch ein Sockel­geschoss hinzufügt. Hier sind technische und Betriebsräume sowie ein Dienstzimmer und das Pflegebad untergebracht. Darüber, auf der Zugangs­ebene der Spielwiese, liegen drei identische Wohnetagen für jeweils acht Bewohnerinnen und Bewohner. Die individuellen Zimmer sind grösstenteils nach Osten mit Blick ins Tal orientiert, auf der gegenüber­liegenden Seite befinden sich Erschliessung und Wohnräume.

Bei der Fassadengestaltung mit hölzernen Lauben liessen sich die Architekten von der Baugeschichte der Anlage inspirieren: Historische Fotos zeigen diverse Wandelgän­ge – eine Referenz, die in der vorgeschlagenen Form auch auf die landwirtschaftlichen Gebäude der Re­gion verweist. Die Verbindung zum Bestand stellt eine grosszügige Trep­pen­­anlage her.

Der Platz zwischen Hauptgebäude und Scheune findet ganz selbstverständlich seine Fortsetzung, die barrierefreie Erschliessung des Neubaus über einen südlich im Hang verlaufenden Weg ist jedoch gemäss Jury in diesem Kontext zu wenig funktional. Den ehemals in der Turnhalle untergebrachten Mehrzweckraum platzieren die Architekten im Untergeschoss des Querflügels im Hauptgebäude, darüber liegt die Beschäftigungsstätte mit Tagesstruktur. Die Werkstätten werden in die Scheune verlagert – und passen dort so gut, dass der Dachraum frei bleibt und als Raumreserve für einen allfälligen späteren Ausbau zur Ver­fügung steht.
 

Hinweis: Zu diesem Wettbewerb ist bereits ein Bericht mit ausführlichen Planunterlagen auf www.espazium.ch erschienen.

Auszeichnungen
 

1. Rang, 1. Preis: «Mis Huus dis Huus»
spaceshop Architekten, Biel; Weber & Brönnimann, Bern
 

2. Rang, 2. Preis: «dimitri»
Leimer Tschanz Architekten, Biel; Klötzli Friedli Landschaftsarchitekten, Bern
 

3. Rang, 3. Preis: «Brüttelenhof»
brügger architekten, Thun; extra Landschaftsarchitekten, Bern; Ingenieurbüro IEM, Thun
 

4. Rang, 4. Preis: «Les petites fugues»
Kistler Vogt Partner, Biel; w + s Landschaftsarchitekten, Solothurn
 

5. Rang, 5. Preis: «zu Hause»
Sollberger Bögli Architekten, Biel
 

Fachjury
 

Pascale Akkerman, Landschaftsarchitektin, Bern; Fritz Schär, Architekt, Bern; Rolf Peter, Architekt, Erlach; Oliver Schmid, Architekt, Bern; Christine Odermatt, Architektin, Bern (Ersatz)

Verwandte Beiträge