Mehr Klöt­ze für Büm­pliz

Projektwettbewerb Bern Bümpliz Nord

Armon Semadeni Architekten gewinnen den anspruchsvollen Wettbewerb für die Entwicklung des Bahnhofs Bümpliz Nord im Westen von Bern. Ihr Projekt «Cerniera» überzeugt durch die kluge Anordnung der Erdgeschossnutzungen und entschädigt das Quartier für den verlorenen Freiraum mit einer ansprechenden Platzgestaltung.

Publikationsdatum
15-11-2018
Revision
15-11-2018
Tina Cieslik
Head of Multimedia | espazium digital lab; Korrespondentin Architektur/Innenarchitektur TEC21

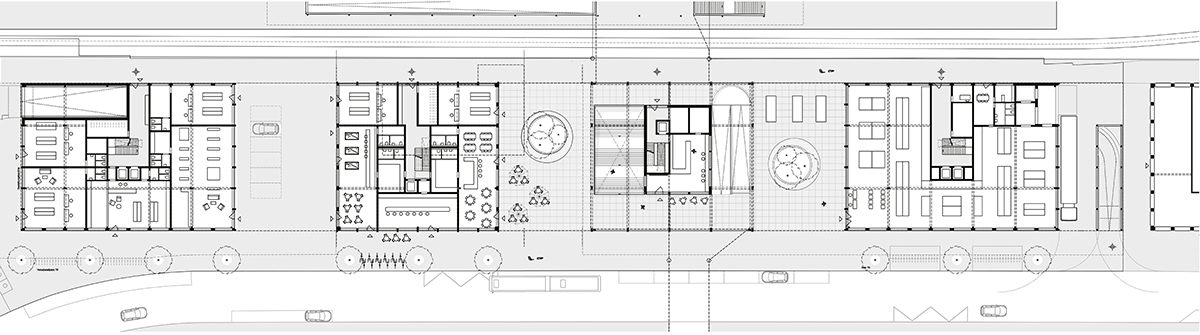
So dicht wie dieses Layout wird dereinst auch die Umgebung des Bahnhofs Bümpliz Nord im Westen von Bern aussehen. Die BLS (Bern-Lötschberg-Simplon-Bahn), Betreiberin der Linie Bern–Neuenburg, möchte den bestehenden Bahnhof ab 2021 hindernisfrei ausbauen. Im Zuge dieser Arbeiten soll auch das heute noch weitgehend offene, 5300 m2 grosse Areal um den Bahnhof in mehreren  Etappen verdichtet werden: 160 ­bis 170 Wohnungen sowie Laden­geschäfte sind vorgesehen, dazu kommt die Neugestaltung der bestehenden Unterführung zwischen den Stadtteilen Bümpliz und Bethlehem. Um die Aufgabe noch etwas kom­plexer zu gestalten, verlangte die BLS, für einige der Volumen eine Variante mit Büronutzung vorzu­legen. Zudem soll das Areal den Kriterien der 2000-Watt-Gesellschaft ent­sprechen.

Zwischen den Grossüberbauungen Tscharner- und Fellergut  (Hans und Gret Reinhard, 1958–1967 / 1969–1974) gelegen, erlaubte das Gelände rund um den Bahnhof bisher etwas Weitblick zwischen den Hochhäusern. Und die Hochschule der Künste auf der anderen Seite der Gleise bespielt die von der Expo02 am Murtensee nach Bümpliz gezügelte CabaneB von Jean Nouvel (Abb. S. 9) mit Ausstellungen und Kunstaktionen. Letzteres soll auch weiterhin der Fall sein, obwohl die ädaquate Platzierung des Baus – er muss wohl erneut umziehen – bei der angestrebten hohen Verdichtung ein ehrgeiziges Ziel ist.

Angesichts der einschränkenden Rahmenbedingungen und des anspruchsvollen Raumprogramms blieb den sechs eingeladenen Teams nicht viel Spielraum. Alle schlagen kompakte kubische Volumen vor, teilweise aufgelockert durch Erkerlösungen oder Innenhöfe.

Gewonnen hat die Konkurrenz das Büro Armon Semadeni Architekten aus Zürich. Ihr Vorschlag aus zwei kurzen, etwas niedrigeren Kuben im Zentrum sowie zwei länglichen am Rand für die ersten beiden Bauetappen überzeugt vor allem städtebaulich: Die anvisierten Erd­geschoss­nutzungen lassen sich gut unterbringen, der Bahnhof wird mit einem Platz betont und auf­gewertet. Die Gebäudedächer sind als gemeinschaftlicher Aussenraum angelegt. Für etwas Weitblick – wenigstens für die Bewohner – ist also nach wie vor gesorgt.

Weitere Pläne und Bilder finden Sie in der Rubrik Wettbewerbe.

Auszeichnungen
 

1. Rang, 1. Preis: «Cerniera»
Armon Semadeni Architekten, Zürich; Mettler Landschaftsarchitektur, Gossau; Gartenmann Engineering, Zürich; Gruner, St. Gallen


2. Rang, 2. Preis: «Bümpliz-Bethlehem»
Architekt Rolf Mühlethaler; extra Landschaftsarchitekten; B + S; Christoph Schläppi, alle Bern; Schnetzer Puskas Ingenieure, Basel


3. Rang, 3. Preis: «Abba»
Luca Selva, Basel; Westpol Landschafts­architektur, Basel; brücker + ernst, Luzern


4. Rang, 4. Preis: «Venus»
Rykart Architekten, Liebefeld; Klötzli Friedli Landschaftsarchitekten, Bern, B + S, Bern, Grolimund + Partner, Bern

FachJury
 

Peter Berger, Architekt, Zürich (Vorsitz)
 

Christian Salewski, Architekt, Zürich
 

Anna Suter, Architektin, Bern
 

Marianne Dutli Derron, Immobilien- und Bau­prozessberatung für Wohnbaugenossen­schaften, Zürich

Magazine

Verwandte Beiträge