Net­wor­ker mit Kunst­sinn

Neufert Junior

Peter Neufert verstand es, namhafte Künstler und Fachleute für seine Arbeit zu gewinnen. So hat er in Zusammenarbeit mit dem Ingenieur Stefan Polónyi das spektakuläre Wohnhaus X1 und das Keramikmuseum Keramion realisiert.

Publikationsdatum
28-01-2015
Revision
05-10-2015

Den Entwurf für sein eigenes Wohnhaus X1 trug Peter Neufert (zur Biografie: vgl. Kasten unten) bereits einige Zeit mit sich herum. Das Haus war ursprünglich 1956 für seine Mutter Alice Spies-Neufert in München geplant worden. Bei der Begegnung mit seiner zukünftigen Frau Marys Stüssgen 1958 erzählte er begeistert von seinem Projekt und zog eine Skizze aus seiner Hemdtasche. Nachdem die Mutter die gewölbte Dachform im Umfeld der Münchner Architektur als zu gewagt beurteilt hatte, setzte er das Projekt in Köln um. Neufert wollte eigentlich nur ein grosses Dach, eine Haube für Kunst und Mensch bauen. Das Haus wurde zum aufsehenerregendsten Gebäude seiner Zeit in Köln. Zeitungsartikel berichten von dem Ufo, das in Hahnwald, einem gehobeneren Wohnviertel von Köln, gelandet war.

Ermöglicht hat die extravagante Gebäudeform der Tragwerksplaner Stefan Polónyi. Er entwickelte die Dachform, die die darunterliegenden Wohnräume stützenfrei überwölbte, aus einer Zeichnung von Neufert, der die Dachkonstruktion als freien, gekrümmten Linien­verlauf ­aufgezeichnet hatte und nicht als geo­me­tri­schen Kurvenverlauf. Polónyi musste dann, wie er später in einem Gespräch erläuterte, die entsprechende ingenieurtechnische Lösung dazu finden.1

Die Krümmung der Dachform folgte einer Klothoide. Die Betonschale ist an den Aussenrändern aufgefaltet und ruht auf sechs Punkten (Abb.). Die Aufkantung dient der Aussteifung der Schale zwischen den Fundamenten.«Die Dicke der Dachschale beträgt im Scheitel 12 cm, am Auflager 35 cm, und sie besteht aus relativ wenig bewehrtem Schwerbeton mit einem oberseitigen PCI-Estrich und einfachem Farbanstrich. Eine in einem belüfteten ­Abstand von 2.5 cm unterseitig angebrachte Herak­lithschicht gewährleistet die Wärmedämmung. Der Gewölbeschalleffekt wird dadurch vermindert, dass auf den Holzwolle-Akustikplatten eine Glaswolleschicht angebracht ist, die mit geschlitzten Gips­kartonplatten abgedeckt wurde.»2

Verrücktheit Nr. 1

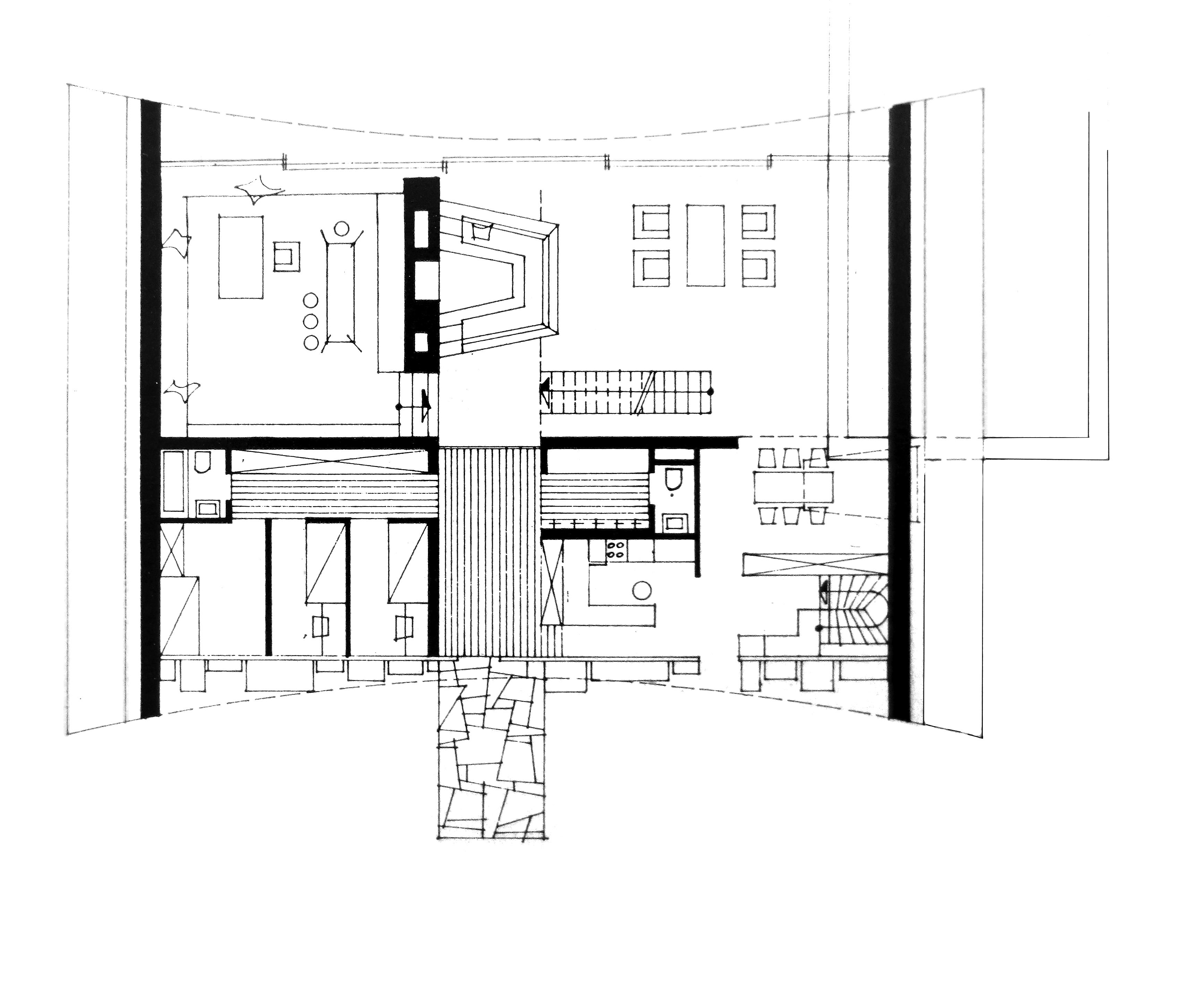
Im Zentrum des Hauses ist ein Kamin mit einer tiefer in den Boden gelegten Sitzgruppe vor einer Wand aus Basaltsteinen platziert. Dahinter befindet sich der ­Gesellschaftsraum mit einer mit grünem Teppich ausgelegten Hausbar. Eine Schiebetür aus blauem Glas trennt den Eingangsbereich mit dem Zugang zur Küche, der Garderobe und dem Gäste-WC vom Wohnraum ab. Ein Swimmingpool ragt bis ins Innere des Hauses und lässt Innen- und Aussenraum miteinander verschmelzen.

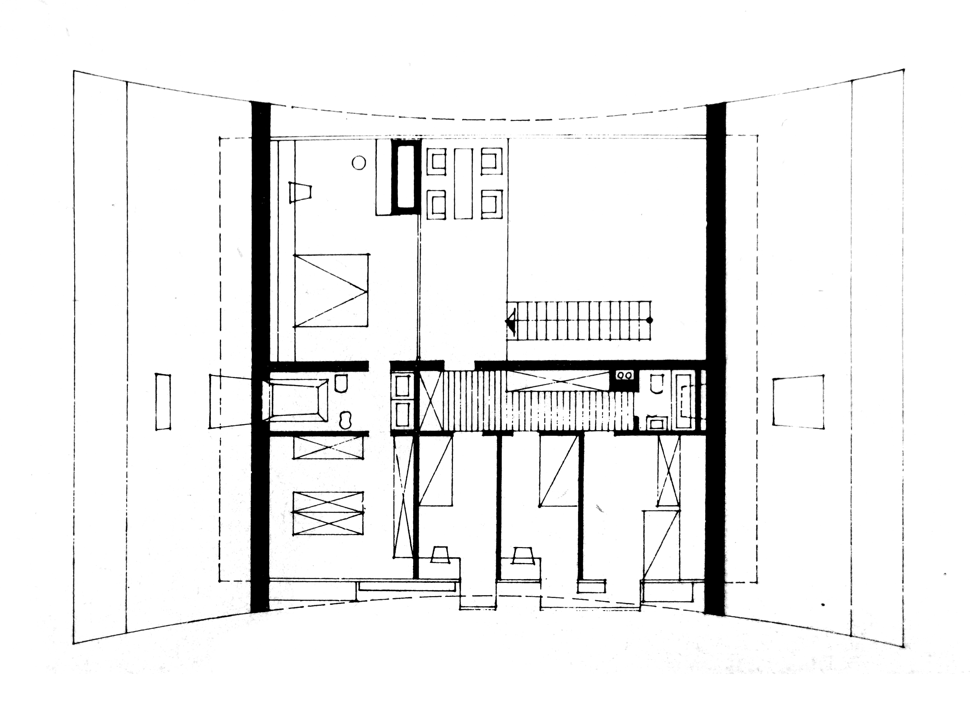
Der anschliessende Essbereich ist durch eine Tür mit der Küche verbunden; ein Wandschrank ist von beiden Räumen her zugänglich. Entlang einer von ­unten nach oben durchgehend schwarzen Wand, die bestückt ist mit übereinander ge­hängten Bildern befreundeter Künstler, verläuft eine Treppe nach oben; sie erschliesst den Schlafbereich im zweiten Geschoss. Das Elternschlafzimmer sitzt direkt an der Glasfassade. Drei kleine Kinderzimmer, entlang der Eingangsfassade, zugänglich über einen Gang, der im Badezimmer endet, befinden sich in einem intimen geschlossenen Bereich.

Während die Eingangsfassade als ein rotes ­kubisches Relief erscheint, dessen Ausstülpungen im Innern Wandschränke, Balkone und Heizkörper ent­halten, ist die Gartenfassade vollkommen verglast. Sie zeigt die Zweigeschossigkeit des Gebäudes und dient gleichzeitig als Vitrine oder als Rahmen für die Bilderwand. Im Garten legte Neufert einen Grillplatz aus zwei blauen, halbrund überkragenden ­Dachscheiben an, ­dessen Verwandtschaft mit dem Wohnhaus durch die Verwendung desselben Basalt­steins unterstrichen wird. 

Der Name X1 ergibt sich laut Neufert aus «X» für Verrücktheiten und «1» für den Beginn einer Reihe mit weiteren, ähnlichen Bauten.

Eine Töpferscheibe zum Vorbild

Der Bauherr des als Keramion bezeichneten Gebäudes war Dr. Gottfried Cremer, ein Sammler von historischen Keramiken und gleichzeitig Inhaber einiger keramischer Zuliefererbetriebe. Er gründete in Frechen ein Museum zur Förderung der zeitgenössischen Keramik und machte damit seine eigene Sammlung öffentlich zugänglich. «Die Grundidee des Entwurfs war es, thematisch den Formungsprozess des Töpferns aufzuzeigen, ohne dabei eine aufdringliche Assoziation hervorzurufen.»3 

Das Keramion steht auf dem Gelände seines Steinzeug­konzerns Cremer & Breuer, heute inmitten des Industriegebiets zwischen Autobahnzubringern im Westen von Köln. Die erste Skizze zeigte einen markanten Trichter in der Mitte, der auf fünf schrägen Stützen ruhte. Form und Funktion des Hauses sollten sich in der Architektur widerspiegeln. Entstanden ist zwischen 1970 und 1971 eine doppelt gekrümmte Schalenkonstruktion, die das Drehen einer Töpferscheibe und eines daraus entstehenden Gefässes symbolisieren soll. Mit Stefan Polónyi, der schon beim Haus X1 mitgewirkt hatte, konnte Transparenz mit grösstmöglicher Flexibilität in der Ausstellungsgestaltung erreicht werden.

Die mit 8 cm äusserst dünne Schale mit einem Durchmesser von 32 m, deren Rand vorgespannt wurde, um Risse zu verhindern, liegt auf fünf Fundamentpfählen auf. Diese sich zum Fusspunkt stark verjüngenden Stützen setzen sich im Untergeschoss als Säulen fort. Aus der Schale stülpt sich ein Hyperboloid nach oben (Abb. und Abb.). Durch seinen auskragenden Aufsatz fällt Tageslicht bis in die untersten Räume. Die kreisförmige Anlage wird durch vier mit farbigen Keramikplatten verkleidete Wände, die von aussen bis ins Haus reichen, von den Strasse abgeschirmt.

Im Erdgeschoss hinterfangen zwei dieser Wände den Ausstellungsraum, der sich zum Garten hin vollkommen über eine 5 m hohe fugenlos verglaste Fassade mit einem vorgelagerten Wasserbecken öffnet. Dadurch scheint die Dachschale über der Landschaft zu schweben. Vom Erdgeschoss gelangt man über eine Treppe mit einer Lichtkuppel ins Untergeschoss, das mit Vitrinen an den Rändern des Grundrisses bestückt ist.

Schnell wie ein Flieger

Interessanterweise hatte Stefan Polónyi schon zuvor einen Flugzeughangar mit einer hautartigen Schale mit einem Durchmesser von 120 m entworfen, bei der die Spannung unter dominanter Belastung in jedem Punkt gleich ist.4 Weil er Düsenflugzeuge beherbergen sollte, war eine radiale Anordnung der Stellplätze vorgesehen, sodass die Stützen weit herausgeschoben werden ­konnten. Aus­serdem kann die Halle von einer zentralen Stelle aus überwacht werden.

Die Schale ist auf trichter­förmigen Schalenstützen an sechs Punkten bzw. Kreisen aufgelagert. Hautartige Schalen ermöglichen es dem Architekten besonders gut, Räume mit homogener oder ständig wechselnder Funktion zu konzipieren. Die raumbegrenzende Fläche kann so ausgebildet werden, dass sie den Inhalt des Gebäudes verdeutlicht oder an der Fassade sichtbar macht. Diesen Entwurf zeigte der Ingenieur Peter Neufert. Sie erkannten Ähnlichkeiten und Übereinstimmungen des Hangars mit dem Museum, sodass sich die Konstruktion des Keramions letztlich von der Flugzeughalle ableitete. Bedenkt man, dass Neufert selbst Flieger war, so ist die Verbindung zwischen Flugzeughangar und dem Keramikmuseum naheliegend. 

Polónyi beschreibt die Zusammenarbeit mit Neufert als ungewöhnlich, denn der Architekt habe alle Angaben von vornherein bestimmt, und die «Geometrie der Fläche wurde nun aus diesen Vorgaben mithilfe der Spannungsbedingungen rechnerisch ermittelt.»Deswegen sei es weniger ein statischer Nachweis vom Ingenieur als ein formbestimmender Vorweis gewesen. Sie hätten dieselbe Geschwindigkeit im Denken gehabt, so Polónyi – wobei er hinzufügt, dass Neufert doch noch etwas schneller war, weil er eben ein Flieger war.6 

Anmerkungen
1, 4, 6 «Aber die Kurve, die Neufert gezeichnet hatte, war schöner als eine geometrische Kurve, das leuchtete mir sofort ein», Gespräch von Stefan Polónyi mit Ursula Kleefisch-Jobst, in: Dies. (Hrsg.): Tragende Linien – Tragende Flächen, Fellbach 2012, S. 48.
2 Zitiert nach Anka Ghise-Beer: Das Werk des Architekten Peter Neufert, Diss, 2004, S. 99, Anm. 21.
3 Zitiert nach Anka Ghise-Beer: Konzept Keramion, 8.8.1972, S. 150.
5 Keramion, Frechen bei Köln, in: Ursula Kleefisch-Jobst (Hrsg.): Tragende Linien – Tragende Flächen, Fellbach 2012, S. 65.


Peter Neufert

Peter Neufert kommt am 11. April 1925 in Freyburg/Unstrut als erster Sohn von Prof. Ernst Neufert und Alice Spies- Neufert zur Welt. Nach einem kurzen Internatsbesuch absolviert er einige Jahre in der Rudolf-Steiner-Schule in Dresden. Als die Institution durch die Nationalsozialisten geschlossen wird, wechselt er 1941 zur Dreikönigschule Dresden. Nach dem Abitur 1943 muss er ins Militär und beginnt eine Pilotenausbildung. Es folgen von 1945 bis 1949 ein Architekturstudium an der Technischen Hochschule Darmstadt und eine teilzeitliche Anstellung im Architekturbüro seines Vaters. 1950 heiratet er Renate Stahl und zieht nach Köln, wo er als Projektarchitekt im Büro Peter Friedrich Schneider arbeitet und 1952 zum Chefarchitekt befördert wird. Im Jahr darauf gründet er mit seinem Vater das Architekturbüro Neufert + Neufert in Köln. Nach dem baldigen Austritt des Vaters aus dem Büro 1955 führt er es unter dem Namen Atelier Neufert Köln allein weiter. Drei Jahre später heiratet er in zweiter Ehe Marys Stüssgen. 1961– 1963 unternimmt er Reisen nach Südamerika, Japan und Südostasien. Als Folge der Konjunkturkrise im Bausektor führt Neufert 1967 Neuerungen ein, formuliert die sogenannte «Systemische Architektur» und entwirft obendrein das Logo «PN» für Peter Neufert.

1972 gründet er eine Niederlassung des Büros in Lissabon und 1973 die Planungs AG Neufert & Cie mit Siegfried Richter und Peter Mittmann. 1983 wird anlässlich der Architekturausstellung «30 Jahre Neufert Planung» in Köln sein Werk gewürdigt. Zwei Jahre später zieht er nach Portugal um und erhält 1988 das Bundesverdienstkreuz für seine interkulturellen Bemühungen um Portugal und Deutschland. 1990 folgt der Rückkauf des Neufert-Hauses in Gelmeroda bei Weimar und der Einzug des Neufert-Planungsbüros in die Räumlichkeiten.

Peter Neufert stirbt am 27. Dezember 1999 nach schwerer Krankheit in Köln.

Eine ausführliche Biografie mit Werkliste findet sich auf www.neufert-stiftung.de

 

Magazine

Verwandte Beiträge