In­tel­li­gen­ter Schach­zug

Die Wiedereröffnung von Kongresshaus und Tonhalle ist nach einer dreijährigen Umbauphase für Spätsommer 2020 geplant. Die Architekten Elisabeth und Martin Boesch sowie das Büro Diener & Diener überführen den Bau vom 1980er-Jahre-Groove in die Neuzeit.

Publikationsdatum
06-12-2018
Revision
13-12-2018

Seit 2011 plant und arbeitet die Arbeitsgemeinschaft am Kongresshaus. Neun Jahre werden es gewesen sein, wenn das Kongresshaus und die Tonhalle 2020 ihren Betrieb wieder aufnehmen. Das Tonhalle-Orchester hat mit der Tonhalle Maag einen attraktiven Ausweichspielort, der offenbar ein neues Publikum anlockt und daher schon Begehrlichkeiten zur Weiternutzung auslöst, doch die Rückkehr der Kongresse und sonstigen Veranstaltungen duldet keinen weiteren Aufschub.

Die architektonische Lösung wird von zwei ­Architekturbüros gemeinsam entwickelt und umgesetzt, die sich lang kennen und schon verschiedentlich miteinander gearbeitet haben. Federführend bei der Planungsphase waren Elisabeth und Martin Boesch, in der Ausführungsphase ist es das Büro Diener & Diener. Verglichen mit den neun Jahren für die Realisierung des aktuellen Umbauprojekts wirken die zwei Jahre, die Haefeli Moser Steiger bis zur Eröffnung 1939 zur Verfügung standen, schlicht unvorstellbar.

Gewiss, ­Anforderungen hinsichtlich Erdbebensicherheit oder Brandschutz waren damals leichter zu erfüllen. Aber komplex war das Unternehmen auch seinerzeit. Denn die Architekten hatten nicht auf einer Tabula rasa einen Neubau errichtet, sondern in ihr Projekt die beiden wichtigsten Innenräume des Trocadéro von 1895 integriert: die Tonhalle sowie den Kleinen Tonhallesaal. Dabei verfolgten Haefeli Moser Steiger eine überaus spannende Strategie, Alt und Neu zu verschränken und gegenseitig zu aktivieren.

Die Architekten verstanden den Bestand nicht als Spolie; vielmehr wählten sie eine Strategie, die kein Nebeneinander, geschweige denn ein Gegeneinander zur Folge hatte. Mit dem grossen Kongresshausfoyer schufen sie einen Raum parallel zur Tonhalle, durch den der Weg führt, wenn man vom unteren Tonhallevestibül zur Saalebene gehen möchte. Aber die Verschränkung zeigt sich auch in den Eingriffen in den vorhandenen Sälen selbst. Die Architekten purifizierten den Prunk des Historismus nur an wenigen Stellen, aber sie modulierten die Farbigkeit. Über Blattgoldpartien wurde ein Firnis gelegt, der Grauanteil an der Gesamtfarbigkeit verstärkt.

Derzeit gehört der Innenraum der Tonhalle den Restauratoren, die die Ablagerungen aus mittlerweile 80 Jahren entfernen. Grundsätzlich sind kantonale Denkmalpflege und Nutzer übereingekommen, sich im ­Bereich des grossen Tonhallesaals von Fellner & Helmer eher am Ursprungs­­bestand zu orientieren. In der Konsequenz bedeutet das: we­niger Beige, mehr Gold, mehr Prunk des Fin de Siècle. Gewiss eine anfechtbare Entscheidung, doch ein endgültiges Urteil wird man erst fällen können, wenn Gerüste und Arbeitsebene unter der Decke entfernt sind und der Raum mit seiner veränderten Farbfassung gesamthaft zu erleben ist.

Freilegen und befreien

An anderen Stellen hingegen kommen Haefeli Moser Steiger wieder zu ihrem Recht. Das gilt beispielsweise für die Ritzmuster in den Foyers, bei denen sich diagonal kreuzende Strichraster mit ondulierenden Linienführungen überlagern. Ursprünglich in Sgraffitotechnik mit einer gelben Farbschicht über einer grauen Putzschicht realisiert, wurden die Wandflächen später überstrichen. In mühsamer Arbeit werden die späteren Farbschichten derzeit entfernt, wobei aber auch der Putzuntergrund in Mitleidenschaft gerät. Eine neue gelbliche Lasur homogenisiert die etwas versehrte Oberfläche, und den verblassten dunkelgrauen Linien muss durch Farbauftrag nachgeholfen werden.

Eine Trouvaille beim Rundgang über die Baustelle ist der einstige Kammermusiksaal mit seinem geschwungenen Bühnenprospekt, der von entstellenden Verbauungen befreit wird. Beim Kongresshaussaal mit seiner in den 1950er-Jahren transformierten Bühne bleibt die Veränderung bewahrt – nicht zuletzt, weil die Betreiber den Istzustand aus betrieblichen Gründen erhalten wollen.

Blick auf den See

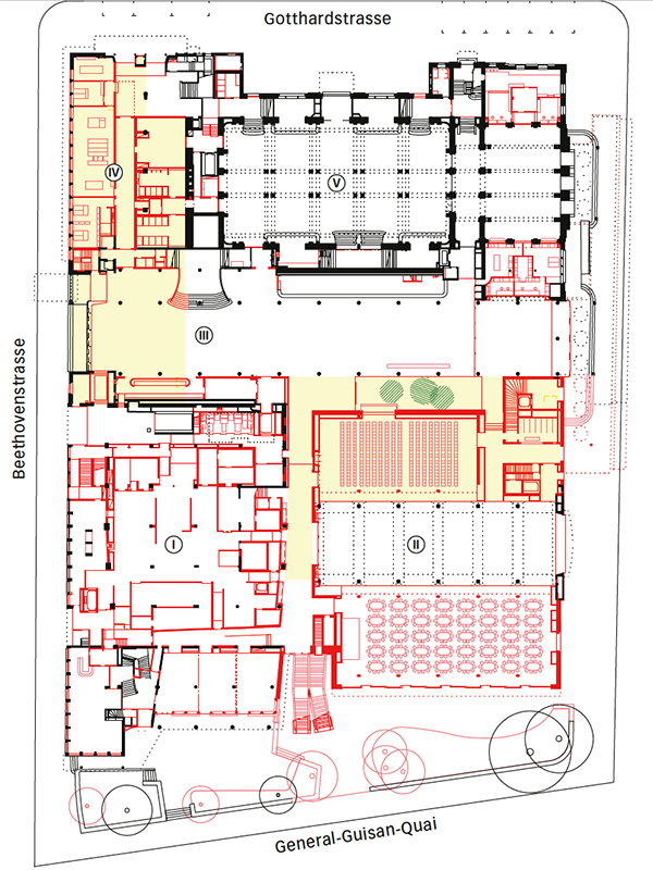
Entfernt hingegen wird die Zeitschicht aus den 1980er-Jahren. Es sind die Umbauten, die noch von Peter Steiger, einem Sohn Rudolf Steigers, in die Wege geleitet und dann von Atelier WW umgesetzt wurden. Markantestes und von aussen wie innen unüberseh­bares Element war der auf der ursprünglichen Terrasse errichtete Panoramasaal, der den Bezug vom grossen doppelgeschossigen Foyer zum See zerstört hatte.

Die Eingriffe gingen jedoch viel tiefer. Wo in den 1980er-Jahren interveniert worden war, wurde die ­Bausubstanz der 1930er-Jahre zerstört. Nach dem ­Abbruch stiess man also nicht mehr auf die frühere Schicht. Doch genau diese Tatsache bietet jetzt im Neubaubereich die Möglichkeit, das Raumprogramm funktional optimiert zu organisieren. Der Panoramasaal auf der Terrasse ist mittlerweile abgebrochen, der Blick zum See wieder frei.

Vom Haefeli-Moser-Steiger-Bestand ist nach dem Rückbau nur das Tragwerk samt der Front des Gartensaals zur Claridenstrasse übrig geblieben. Hier entsteht das neue Gartensaalfoyer, an das sich seitlich zwei Säle anlagern: der eine Richtung See – hier ist der einzige Bereich, mit dem der Neubauteil über den bestehenden Perimeter ausgreift –, der andere Richtung Haefeli-­Moser-Steiger-Foyer. In kleineren Dimensionen findet sich auch der verschwundene Gartenhof wieder. Das Restaurant zieht von seiner etwas versteckten Lage unter dem Kongresssaal auf die Terrasse um, wo es als filigraner verglaster Pavillon ausgebildet ist und auch vom grossen Pausenfoyer sowie von aussen leicht zu erreichen ist. Der frei werdende Platz unter dem Kongresssaal nimmt weitere Konferenzräume ­sowie Bereiche für das Catering auf.

Die Architekten sprechen von einer Rochade, und in der Tat ist die Neustrukturierung ein überaus intel­ligenter Schachzug. Konferenz- und Tonhallenbetrieb lassen sich in Zukunft räumlich gut trennen, unterschiedliche Veranstaltungen nebeneinander abzuhalten ist ohne Einschränkung möglich. Schliesslich konnte auch noch das Problem der Tonhalle-Infrastruktur ­gelöst werden, indem im Bereich der beiden Clubs aus den 1980er-­Jahren Garderoben sowie Räume für die Mu­sikerinnen und Musiker entstehen. Es profitieren also viele – und insbesondere das Gebäude von Haefeli Moser Steiger, das sich in Zukunft wieder Richtung See und Landschaft öffnet.
 

Am Umbau Beteiligte


Bauherrschaft
Kongresshaus-Stiftung Zürich, vertreten durch das Amt für Hochbauten der Stadt Zürich
 

Denkmalpflege
Kantonale Denkmalpflege Zürich
 

Architektur
ARGE M. und E. Boesch, Zürich; Diener & Diener, Basel
 

Gesamtleitung
Hämmerle Partner Zürich, ab 1. Oktober 2018: OAP Offermann Architektur & Projekte, Zürich
 

Baumanagement
Jaeger Baumanagement, Zürich
 

Tragwerksplanung
Conzett Bronzini Partner, Chur
 

HLKKS-Planer
Gruenberg + Partner, Zürich
 

Elektrotechnik
HKG Engineering, Schlieren
 

Landschaftsarchitektur
Vogt Landschaftsarchi­tekten, Zürich
 

Bauphysik
BWS Bauphysik, Winterthur
 

Brandschutzplaner
Basler & Hofmann, Zürich
 

Akustikplaner
Müller BBM, München, und Kahle Acoustics, Brüssel
 

Lichtplaner
Bartenbach, Zollikon
 

Signaletikplaner
bivgrafik Zürich und iart Münchenstein/Basel
 

Gastroplaner
H Plus S Gastronomie­fachplanung, Ittigen
 

Restaurierungsarbeiten
ARGE Team ToKo, Zürich

Verwandte Beiträge