Mo­der­nes Woh­nen im Tes­sin

Drei aktuelle Beispiele beweisen, dass der Begriff des Wohnens im Tessin eine erweiterte Bedeutung gewinnt. Mit unterschiedlich grossen Mehrfamilienhäusern greifen Remo Leuzinger, Inches Geleta und Studio Buzzi in bestehende Wohngegenden ein und bieten Räume für Kommunikation.

Publikationsdatum
12-03-2021

Bisher hatten Tessiner Architekten wenig Gelegenheit, sich mit dem Mehrfamilienhaus auseinanderzusetzen – Objekte mit Miet- oder Eigentumswohnungen werden meist direkt von Generalunternehmern geplant. Es gibt jedoch auch einen Gegentrend mit Ansätzen, die einer näheren Betrachtung Wert sind.

Die gewählten Beispiele bilden genau die drei Mass­stabsebenen ab, auf denen aktuelle Projekte in Tessiner Städte eingreifen: Der kleinformatige Palazzo Pioda (S) von Inches Geleta Architetti in Solduno bei Locarno nutzt die im urbanen Umfeld knappen Platzverhältnisse aus. Die Casa agli Orti von Buzzi in Locarno repräsentiert die für Tessiner Mehrfamilienhäuser typische mittlere Grössenordnung (M) mit 10 bis 30 Wohnungen. Die Wohnüberbauung Radice von Remo Leuzinger in Massagno bei Lugano schliesslich repräsentiert eine grossmassstäbliche Interventionsebene (L), auf der bisher im Tessin kaum gearbeitet wurde, die nun aber durch die neue kantonale Raumplanungsstrategie und durch Grossanleger, die getrieben von den Negativ­zinsen in den Immobilienmarkt drängen, zunehmend Beachtung findet.

Die Stärke dieser Werke liegt nicht etwa darin, dass sie die Typologie des Mehrfamilienhauses neu erfinden wollen. Sie zeichnen sich vielmehr dadurch aus, dass sie die Regeln dieser Typologie für die Erarbeitung ­verschiedener Lösungen nutzen, die das Potenzial und die Schwächen im baulichen Kontext ans Licht bringen. Ausserhalb der historischen Zentren besteht der öffentliche Raum in Tessiner Städten hauptsächlich aus Strassen, die mit Zäunen, Mauern und Hecken vom privaten Raum abgetrennt sind. Hinter der Einfriedung folgen eine winzige Rasenfläche und schliesslich das Wohngebäude. Diese Konstellation ist typisch für die vom Einfamilienhaus geprägten periurbanen Räume Europas, in den urbanen Zentren aber hemmt sie die Nutzung des öffentlichen Raums.

Lesen Sie auch: Weitere Beiträge zur Tessiner Baukultur

Hier gibt es keine Laubengänge, Höfe, Plätze und Parks, sondern nur Privatgebäude und die erwähnten kleinen, eingefriedeten Grünflächen, die das Ganze erträglicher machen, aber ohne Inhalt bleiben. Dieses Modell ist ein Produkt des Richtplans und entspricht den Vorstellungen von Investoren und Bewohnern, die der Privatsphäre und dem Privateigentum grosses Gewicht zumessen. Die grösste Herausforderung beim Bau von Mehrfamilienhäusern besteht darin, dieses Modell zu überwinden und stattdessen auf eine Bereicherung des gemeinsamen Lebensraums hinzuarbeiten.

Überbauung Radice: beherzte Intervention

Unter diesem Gesichtspunkt ist die von Remo Leuzinger entworfene Überbauung Radice in Massagno zweifellos das ehrgeizigste Projekt. Dank einem in Abstimmung mit der Gemeinde erarbeiteten Quartierplan konnte die maximale Ausnutzungsziffer (1.2) mit 1.1 eingehalten werden. Anstelle der üblichen Gebäudehöhe von 12 m durfte das höchste Gebäude hier aber 30 m auf­ragen, zugunsten der Erhaltung einer möglichst grossen Frei­fläche. Im Gegenzug musste der vormals private Park im urbanen Quartier, in dem es an nutzbaren ­Grünflächen mangelt, nun öffentlich zugänglich werden.

Die wichtigsten Meldungen aus der Baubranche: Abonnieren Sie jetzt unseren wöchentlichen Newsletter!

Die Überbauung gliedert sich in verschiedene Körper, deren Grösse durch Diagonalen und offene ­Winkel aufgebrochen wird. Die drei Hauptvolumen bestehen aus zwei unterschiedlich hohen Türmen und einem dazwischen liegenden Mitteltrakt mit einem gemeinsamen Dachgarten. Die Wohnungen lassen sich vereinfacht in zwei Typologien einteilen: Diejenigen mit nicht orthogonaler Form, die sich in mindestens zwei Richtungen öffnen, machen den Grossteil der Einheiten aus; die nach Norden orientierten Wohnungen haben wenig direktes Tageslicht, dafür entschädigt aber der Blick in den Park.

Die nach Süden und zur Strasse gerichteten Wohnungen schützt der hohe Baumbestand. Eine Variante dieser Typologie findet sich im höchsten Turm. Überhohe Wohnräume unterstreichen die Dimension des zehnstöckigen Baukörpers und bieten im Innern einen Freiraum, wie er bei Mietwohnungen selten anzutreffen ist. Die zum zweiten Typus gehörenden Wohneinheiten befinden sich in den zentralen Körpern zwischen den beiden Türmen und öffnen sich in Querrichtung sowohl zur Via Lepori als auch zum Park. Sie zeichnen sich durch zwei Terrassen und einen langen, beidseitig belichteten Wohnraum aus.

Die grossen Eingangshallen mit ihren Frei­treppen bilden einen angenehmen Übergang zwischen der öffentlichen Umgebung des Parks und der privaten der Wohnungen. Die Möglichkeit, im Erdgeschoss Geschäfte und andere allgemein zugängliche Einrich­tun­gen mit Anbindung an den Park vorzusehen, wurde leider nicht genutzt. Eine derartige Aktivierung dieser Bereiche wäre sicher interessant gewesen.

Das Landschaftsarchitekturbüro officina del paesaggio, Lugano, gestaltete die grosse Grünfläche. Sie umschliesst verschiedene Aufenthaltsbereiche sowie Velo- und Fusswege, die von der verkehrsreichen Strasse wegführen. Im Zentrum des Parkprojekts standen die Rettung mehrerer hundertjähriger Bäume und die Schaffung von Begegnungszonen für Familien, darunter drei von Weidengeflecht umgrenzte «Nester», ein Spielplatz, urbane Gärten, Tische zum Picknicken und ein auf den Erhalt der Artenvielfalt ausgerichteter Obstgarten.

Überbauung Radice, Massagno

 

Bauzeit: 2017–2020

Verfahren: Direktauftrag Swiss Life

Volumen: 85 720 m3, 167 Wohnungen

Kosten: 75 Mio. Fr.

Architektur: Remo Leuzinger, Claudia Casaroli, Nicholas Bordoli, Reto Calignano, Céline Lachelin, Lugano

Ingenieurplanung: AF Toscano, Lugano

HLKS-Planung: Visani Rusconi Talleri, Lugano

Elektroplanung: Tecnoprogetti, Camorino

Landschaftsarchitektur: officina del paesaggio, Lugano

Bauphysik: Andrea Roscetti, Lugano


Casa agli Orti: durchlässiges Wohnen

Wie die Überbauung Radice setzt auch die Casa agli Orti in Locarno auf eine Architektur, die Synergien zwischen den Bewohnern fördert. Das Projekt des Architekturbüros Buzzi nutzt den Baulinienbereich des Grundstücks für Begegnungsflächen. In diesem Punkt verfolgen die beiden Werke einen ähnlichen Ansatz wie Genossenschaftsprojekte, bleiben aber in der Hand von privatwirtschaftlichen Investoren.

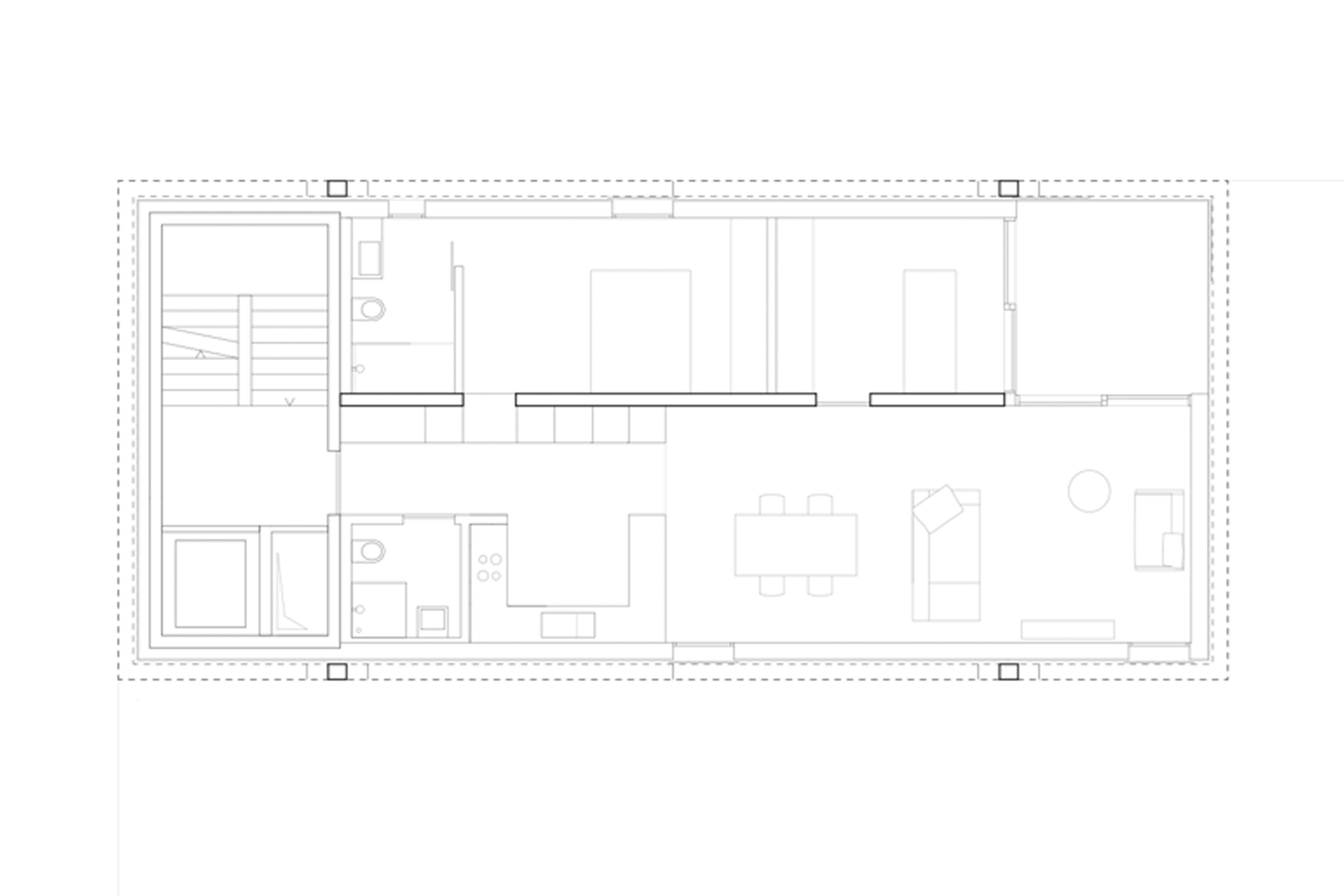
In der Casa agli Orti entsteht die Interaktion zwischen den Bewohnern über die Volumetrie. Der Grundriss des Mehrfamilienhauses besteht aus zwei grossen Quadraten, die wiederum in je einen Raster aus neun Quadraten gegliedert sind. An einer Ecke ­überschneiden sich die beiden Hauptquadrate und teilen sich ein Rasterelement, das der Begegnung und der Innenerschliessung dient. Die mittleren Rasterelemente der beiden Quadrate sind fensterlos und bilden einen innen liegenden Kern. Sie beherbergen die Badezimmer, während der Wohnraum darum herum angeordnet und zu allen Seiten ausgerichtet ist.

Interessant ist dabei, dass der privilegierte Raum mit der Terrasse jeweils für die Küche reserviert ist. Das Grundrissschema ­ermöglicht Ausblicke in alle Richtungen. Gleichzeitig stärkt der direkte Sichtkontakt zwischen den Wohn­einheiten das Gefühl des Zusammenlebens. Die Dach­terrasse ist allen Bewohnern zugänglich.

Die Logik des Gartens bleibt die eines privaten Raums, aber anstatt der üblichen Grünflächen bietet er einen gemeinschaftlich zu bewirtschaftenden Ort. Die 16 Gemüsegärtchen schaffen Momente der Begegnung und des Teilens unter den Bewohnern des Gebäudes. Diese Gärten, einer für jede Wohnung, sind eingefasst von einer Kiesfläche, die das Motiv der benachbarten Ufer der Maggia aufnimmt. Mit dem Hochparterre setzen die Architekten eine leichte Zäsur zwischen dem gemeinschaftlichen Aussenraum mit den Gemüsegärten und den untersten Wohnungen, lassen aber gleichzeitig den Sichtkontakt zwischen öffentlichem und privatem Raum zu.

Casa agli Orti, Locarno

 

Bauzeit: 2016–2019

Verfahren: Wettbewerb privat

Volumen: 6686 m3, 16 Wohnungen

Kosten: 5.4 Mio. Fr.

Architektur: Buzzi studio d’architettura, Locarno

Landschaftsarchitektur: Martino de Tomasi, Lugano

Tragwerksplanung: Monotti, Locarno

HLKS-Planung: Protec, Ascona

Bauphysik: Andrea Roscetti, Lugano

Elektroplanung: Sped, Locarno

Palazzo Pioda: minimale Vernetzung

Der Palazzo Pioda, der von der Architektur der Moderne, dem italienischen Rationalismus und den Tessiner Meistern inspiriert ist, wirkt eher introvertiert. Dem Aussenraum kommt hier eine untergeordnete Rolle zu. Der Bau steht auf einem kleinen Grundstück inmitten anderer Privatliegenschaften. Genau dieser Ansatz zeigt eine Variante neuer Wohnformen auf und macht seinen Modellcharakter aus. Das als Parkplatz genutzte Erdgeschoss ist frei und zur Stras­se hin geöffnet. Eine lange Stahlbetonbank kann einerseits als architektonische Barriere gelesen werden, andererseits als Einladung, den privaten Raum zu nutzen.

Der Bau kehrt das Tragwerk – ein ehrgeiziges Spiel mit nur zwei Stützen als Auflagerpunkten – nach aussen und stellt damit einen klaren Bezug zum Werk von Livio Vacchini her. Die Stützen werden nach oben hin breiter und bilden mit einem Knick sich verjüngende Träger, von denen jeweils zwei seitlich auskragen und zwei sich in der Mitte zu einer Brücke verbinden. Im Innern teilt ein wandartiger Träger aus Stahlbeton das Gebäude in Längsrichtung und gliedert jede Wohnung in einen Tag- und Nachtbereich, mit der Loggia als verbindendem Element. Dieser Träger stützt die Decken, sodass das Erdgeschoss stützenfrei bleibt. Diese Tragstruktur wiederholt sich in allen Geschossen und betont so die Unabhängigkeit der einzelnen Stockwerke, auf denen sich jeweils eine einzelne Wohnung befindet.

Palazzo Pioda, Locarno

 

Bauzeit: 2018–2019

Verfahren: Direktauftrag privat

Volumen: 2782.5 m3, überbaute Fläche 149 m2, 6 Wohnungen

Kosten: 2.82 Mio. Fr.

Architektur: Inches Geleta, Locarno

Ingenieurplanung: Jelmoni, Ascona

HLKS-Planung: Arben Gashi, Lugano

Tragwerksplanung: EcoControl, Locarno

Verbindende Materialisierung

Die Fassaden der Casa agli Orti und der Überbauung Radice, um noch einmal auf diese beiden Werke zurückzukommen, scheinen von der italienischen Nachkriegsarchitektur beeinflusst, was sich besonders an der Keramikverkleidung zeigt. Was sie unterscheidet, ist die Art, wie sie das Tragwerk sichtbar machen: Während bei der Überbauung von Remo Leuzinger die Position der Decken mit Gurtgesimsen aus vorgefertigten Betonelementen ablesbar ist und so den horizontalen Charakter des lang gestreckten Gebäudekomplexes hervorhebt, behält Francesco Buzzi für die Casa agli Orti die Einheit des keramischen Baustoffs bei und setzt Lisenen und Gesimse ein, um das im Innern sichtbare Tragwerk an der Fassade abzubilden.

Rhythmisiert wird Buzzis Fassade von zwei Komplementärfarben, dem Grün der Keramik und dem Orange der Fensterlaibungen. Diese Materialisierung, die in den letzten Jahren vor allem in der Deutschschweiz viele Neubauprojekte inspiriert hat, scheint nun wieder in Richtung Süden zu wandern. Die beiden Werke nehmen also zwei unterschiedliche Einflussrichtungen auf, sind einmal von Mailand und einmal von Zürich her inspiriert. Man könnte sagen, es handelt sich um einen Einfluss, der aus der Lombardei übers Schweizer Mittelland ins Tessin zurückfedert.

Mögliche Lösungsansätze

Als Alternative zum Genossenschaftsmodell, das sich im Tessin immer noch nicht durchsetzen kann, erscheint es sinnvoll, zunächst die Qualität privater Immobilienprojekte zu fördern. Wenn vermehrt Architekturbüros in die Überlegungen zur Verbesserung der baulichen Umgebungen einbezogen werden würden, könnte in der Folge das Interesse an derartigen Investitionen durch die öffentliche Hand steigen.

Heute stellen aus dem Kontext gelöste Wohnbauten, die durch eine private Grünfläche, den ­«fa­zoletto verde», abgeschottet sind, immer noch den Standard dar. Dabei könnten die Erdgeschosse als Kommunikationsbereich zwischen Öffentlichkeit und Rückzug die Gebäude ins städtische und soziale Gefüge einbinden. Wie die Beispiele zeigen, gibt es dafür keine pauschalen Lösungen. Sie müssen in den Besonderheiten der jeweiligen Situation gesucht werden.

Die drei Projekte, die auf verschiedenen Massstabsebenen und mit unterschiedlichen Ansätzen in die Stadt eingreifen, sind gute Beispiele dafür, wie der städtische Raum und das gemeinschaftliche Leben bereichert werden können und welche Bedeutung den Architektinnen und Architekten beim Bau von Mehrfamilienhäusern in diesem Zusammenhang zukommt. Alle drei Beispiele rufen uns den berühmten Lehrsatz des kürzlich verstorbenen Luigi Snozzi in Erinnerung: «Baust du einen Weg, ein Haus, ein Quartier, dann denke an die Stadt.»

Die ausführliche Version dieses Artikels ist erschienen in TEC21 7/2021 «Made in Ticino».


Aus dem Italienischen: Wulf Übersetzungen.

Magazine

Verwandte Beiträge