Der ge­wöhn­li­che Stein kehrt zu­rück

In Zürich-Schwamendingen hat die Genossenschaft Sunnige Hof mit Galli Rudolf Architekten ein Wohnhaus realisiert, das einen vergessenen Baustoff in den Alltag zurückholt. Die Fassade aus lokalem Bollinger Sandstein überrascht, gerade wegen ihrer Selbstverständlichkeit.

Publikationsdatum
22-10-2025

Selbstbewusst steht das «Wohnhaus für alle Generationen» an der stark frequentierten Dübendorfstrasse. Es bildet einen schützenden Rücken zur Tram­haltestelle Mattenhof und vermittelt zwischen grossmassstäblichen Ersatzneubauten und feingliedrigen Gartenstadtanlagen. Mit seiner mineralischen Hülle knüpft der «Mattenhof III» an die benachbarte Siedlung «Mattenhof I» von Bachelard Wagner Architekten (2017) an – mit einem wesentlichen Unterschied: Statt Klinker ummantelt massiver Bollinger Sandstein das Haus.

Der Stein, bekannt von Bauten wie dem CS-Hauptsitz am Paradeplatz oder der Stiftskirche St. Gallen, wirkt hier ganz unspektakulär. Die vorgehängte Steinfassade erhielt weder einen Graffitischutz noch ist sie geschlemmt. Sie scheint «gewöhnlich» und genau deswegen fügt sie sich harmonisch ins Stadtbild ein, wo Naturstein am Bau zur Seltenheit geworden ist. 

Ursprünglich war eine vorgehängte Beton- und Klin­kerfassade vorgesehen. Erst die späte Suche nach einer klimafreundlicheren Alternative führte zum regionalen Sandstein aus den Hügelzügen des oberen Zürichsees. Dieser wurde in dieselben Formate zugeschnitten, mit dem Vorteil, dass die zu diesem Zeitpunkt bereits fortgeschrittene Detailplanung beibehalten werden konnte und die Anpassungen trotzdem kostenneutral blieben.

«La pierre banale»

Eine letzte grosse Blüte erlebte der Naturwerkstein als Massivkonstruktion in Frankreichs Nachkriegszeit. Die Wiederaufbaujahre waren von Wohnungsnot und Ressourcenknappheit geprägt: Stahl, Zement und Kohle waren rar; die Umstände verlangten nach ökonomischen, rasch umsetzbaren Lösungen. Architekten wie Fernand Pouillon (1912–1986) machten aus der Not eine Tugend, indem sie den Kalkstein, der im Pariser Becken zur Genüge vorhanden war, als Baustoff zurückbrachten. Sie rationalisierten die traditionellen Konstruktionsmethoden und Bauprozesse, setzten den vermeintlich «veralteten» Naturstein für preiswerte Konstruktionen ein und normalisierten seinen Einsatz im sozialen Massenwohnungsbau.

Anhand einer Sammlung von Grosswohnbauprojekten, die in den Jahren 1948 bis 1973 im Grossraum Paris entstanden, zeigen die Architekten Marie Le Dréan und Jonas Kuratli in ihrem Buch «la pierre banale» eindrucksvoll auf, wie der Naturwerkstein als konkrete Antwort auf einen Mangel zum gewöhnlichen Bauteil wurde. Sie schätzen die Anzahl der so entstandenen Wohnungen in dieser Region auf weit über 15 000. Naturstein war kein exklusives Merkmal sakraler oder herrschaftlicher Bauweise mehr und wurde zum Alltagsbaustein einer modernen, pragmatischen Architektur.

Einfaches Material, komplexe Hülle 

Langfristig konnte sich Naturstein aber nicht gegen Beton behaupten. Ausschlaggebend dafür waren die gestiegene Verfügbarkeit fossiler Energieträger, die hohe Produktionskapazität und Erfahrung der Betonindustrie im Infrastrukturbau sowie ideologische Überlegungen: Beton galt als Symbol für Fortschritt und technische Präzision, wohingegen Naturstein als rückständig betrachtet wurde. Beton wurde zum universellen Baustoff der zweiten Hälfte des 20. Jahrhunderts. 

Auch der Mattenhof III hat ein Tragwerk aus Stahlbeton. Um dessen Anteil zu reduzieren, suchten Galli Rudolf paral­lel zur Überarbeitung der Fassade ebenfalls nach klimafreundlicheren Alternativen. Diese hätten jedoch wenig überraschend zu erheblichen Mehrkosten geführt, vor allem auf Grund der bereits stark fortgeschrittenen Planung.

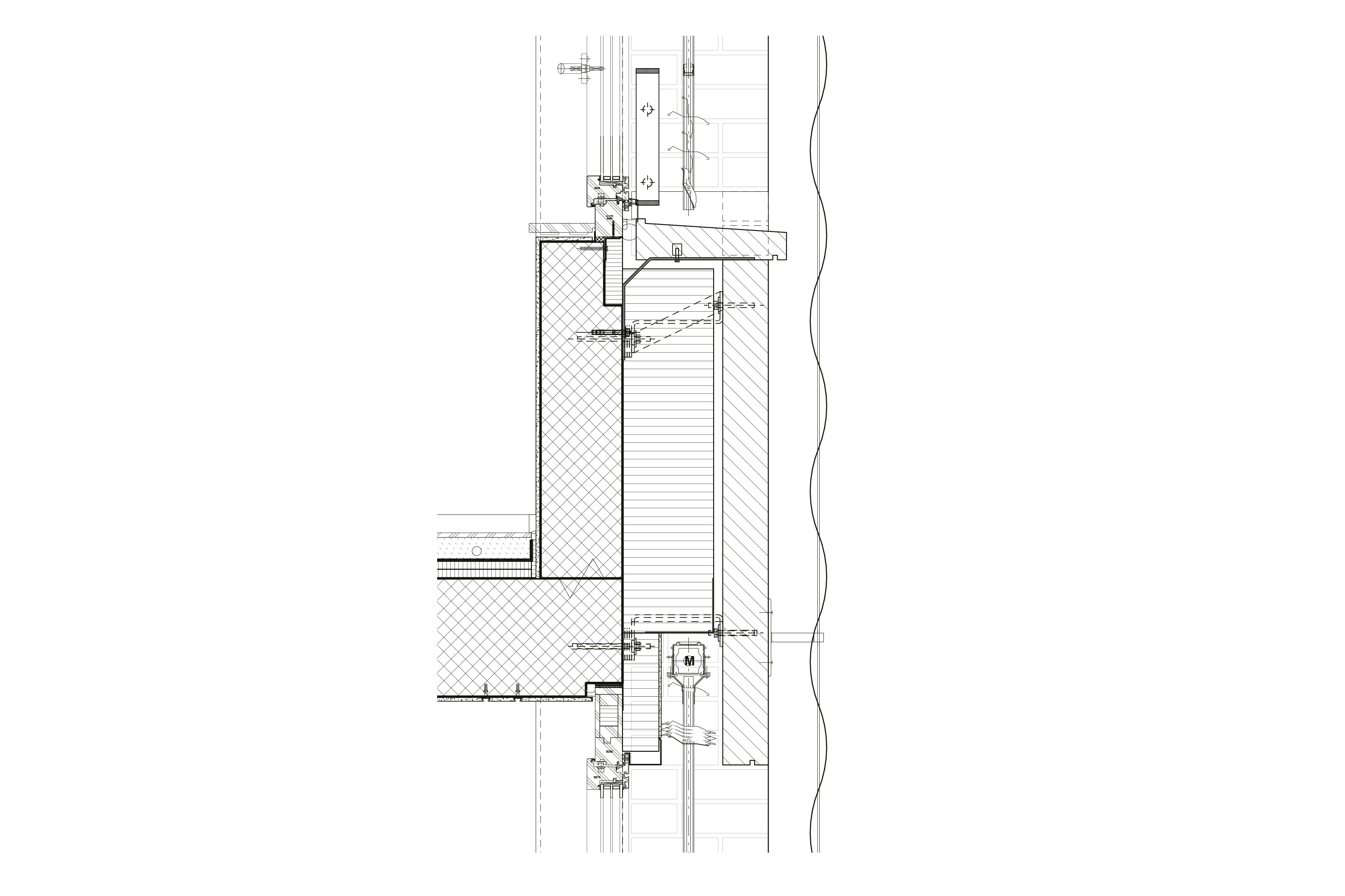
Heute erschweren Bauvorschriften und Wärmeschutzanforderungen tragende Natursteinfassaden. «Man könnte Naturwerkstein so einsetzen wie Sichtbeton», so Jonas Kuratli. «Er kann tragen und gleichzeitig die Fassade ausbilden. Aus bauphyikalischen Gründen werden aber Systeme dieser Art heute gerne vermieden.» Hybride Konstruktionen sind die Folge: tragendes Skelett, Dämmschicht, vor­gesetzter Stein. 

So auch beim Mattenhof III: Ab dem ersten Obergeschoss sind grosse Sandsteinplatten in die Deckenstirnen rückverankert und tragen lediglich die kleinen Steine darüber. Das Dilemma reduziert die Funktion des sichtbaren Steins, bis er zuletzt nur noch die wetterschützende Schicht bildet und auf seine repräsentative Funktion reduziert wird.

Naturstein und die Stadt von morgen

Gerade weil Naturstein ohne energieintensive Brennprozesse auskommt, gewinnt er im Klimadiskurs an Bedeutung. Der Bollinger Sandstein wurde rund 40 km entfernt abgebaut, zugeschnitten, zum Mattenhof gefahren und direkt verbaut. Er ist witterungsbeständig, kann Jahrhunderte überdauern und an seinem Lebensende wiederverwendet werden.
Im Verhältnis zur grauen Energie des ganzen Gebäudes ist der Effekt der Fassadenmaterial-Anpassung zwar klein, aber sichtbar – zumindest im Stadtraum. Die haptische Qualität, der Bezug zur Region und die beständige Wirkung schaffen einen Wert, der über Ökobilanzen hinaus geht. 

Für die Bewohnenden selbst wird der Sandstein allerdings nur bedingt Teil der Alltagserfahrung: Der der zehnjährigen Planungsgeschichte mit veränderten Paradigmen geschuldete Sichtbeton und verputzte Leichtbauwände prägen das Bild im Inneren des Hauses zusammen mit farbigen Küchen, Türen und Fensterrahmen. Einzig in den Balkonen kann der Sandstein als Teil der Fassade erlebt werden.

Naturwerkstein kann CO2-Bilanzen verbessern, regionale Wirtschaftskreisläufe stärken und das Stadtbild prägen – vorausgesetzt, er wird gestalterisch und konstruktiv klug integriert. Der Mattenhof III zeigt, dass der Werkstein – wie schon in der französischen Nachkriegsmoderne – wieder als selbstverständlicher Baustoff denkbar ist. Nicht als nostalgisches Zitat, sondern als Teil einer hybriden, zukunftsfähigen Bauweise. 

Gelingt es, technische Hürden weiter zu überwinden, könnte der «gewöhnliche Stein» erneut zum alltäglichen Baustein der Stadt werden – robust genug, um zu tragen, sinnlich genug, um den Stadtraum zu prägen, und klug genug eingesetzt, um die ökologischen Herausforderungen der Gegenwart mit der Baukultur von morgen zu verbinden.

Mattenhof III, Zürich, 2025

 

Bauherrschaft
Siedlungsgenossenschaft Sunnige Hof, Zürich

 

Architektur
Galli Rudolf Architekten, Zürich

 

Bauingenieur
K2S Bauingenieure, Wallisellen

 

HLKS-Planung
Concept-G, Winterthur

 

Elektroplanung
Mettler + Partner, Zürich

 

Unternehmung
Gross Generalunternehmer, Wallisellen

 

Weitere Beteiligte
Baltensberger, Winterthur;
Murtec, Kölliken;
Bautec Sichtmauerwerk, Kölliken; 
Boxler Engineering, Jona;
Bakus Bauphysik & Akustik, Zürich;
Albiez de Tomasi, Zürich;
Müller + Müller, Zürich; Bresta Fenster, Egnach;
Herzog Küchen, Gossau;
Norm-Shrank Ebmatingen, Ebmatingen;
Schreiner Breu, Rüti;
Pascal Seiler, Gampel

 

Steinbezug
Müller Naturstein, 
Neuhaus SG

Magazine

Verwandte Beiträge