Im­pro­vi­sa­ti­on an der Fas­sa­de

Neue Fassade Universität Luzern; Fassadenplanung: gkp Fassadentechnik AG, Aadorf

Improvisationen sind im Bauwesen oft unvermeidlich. Trotzdem haftet ihnen häufig der Makel des Behelfsmässigen, Unfertigen an. Nicht so in der Musik, wo die Fähigkeit, sich des vorgegebenen Rhythmus und der Grundmelodie zu bedienen und daraus spontan neue Kreationen zu schaffen, eine hohe Kunst darstellt. Dass Improvisation auch am Bau gelingen kann, beweist die neue Universität Luzern. Deren Fassade, die das Kunst- und Kongresshaus nicht übertönt, aber einen nicht zu überhörenden Kontrapunkt zu dessen dominanten Akkorden setzt, entstand in einem dynamischen Entwicklungsprozess.

Publikationsdatum
12-01-2012
Revision
01-09-2015

Improvisationen sind im Bauwesen oft unvermeidlich. Trotzdem haftet ihnen häufig der Makel des Behelfsmässigen, Unfertigen an. Nicht so in der Musik, wo die Fähigkeit, sich des vorgegebenen Rhythmus und der Grundmelodie zu bedienen und daraus spontan neue Kreationen zu schaffen, eine hohe Kunst darstellt. Dass Improvisation auch am Bau gelingen kann, beweist die neue Universität Luzern. Deren Fassade, die das Kunst- und Kongresshaus nicht übertönt, aber einen nicht zu überhörenden Kontrapunkt zu dessen dominanten Akkorden setzt, entstand in einem dynamischen Entwicklungsprozess. Das herausragende Merkmal der im ehemaligen Postbetriebsgebäude hinter dem Kunst- und Kongresshaus Luzern (KKL) untergebrachten Universität, deren Abmessungen weit­gehend jenen des Vorgängerbaus entsprechen, ist die neue, vor die bestehenden Aussenwände vorgehängte Fassade. Im Gegensatz zu den Visualisierungen des Wettbewerbsprojekts wirkt die realisierte Fassade wie aus einem Guss. Das liegt daran, dass im Laufe der Projektierung von der ursprünglich geplanten Bekleidung mit Betonfertigelementen, die durch zahlreiche Fugen getrennt gewesen wären, abgerückt werden musste. Der Weg zu dieser speziellen, nun aus hinterlüfteten Putzträgerplatten bestehenden Hülle führte weg von den Betonelementen hin zu Faserzementplatten und Abkantblechen bis hin zu Konzeptstudien mit Fiberglas. Alle diese Materialien hätten mit einer hohen Anzahl an sichtbaren Dilatationsfugen versehen werden müssen, was das Erscheinungsbild weniger grosszügig hätte ausfallen lassen. Angenehmer Nebeneffekt der fugenlosen Putzfassade: Durch den Wechsel von den massiven Betonelementen zur dünnen Aussenhaut wurde das Fassadengewicht um mehr als das Zehnfache verringert. Das kam der statischen Über­prüfung der bestehenden Rohbaustruktur entgegen, und die Verankerungen der Fassaden wurden entsprechend kleiner.

Wettbewerb im Wettbewerb

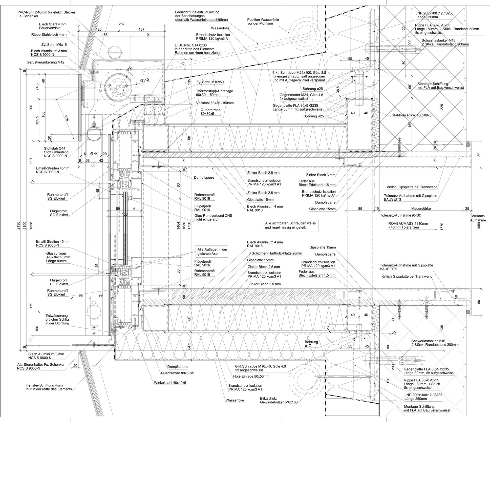
Wohl wurde zunächst für die Erstellung der Fassaden aus Betonelementen gemäss dem Wettbewerbsprojekt nicht mit relevanten Erschwernissen gerechnet. Die Kombination aus umlaufenden, stockwerksweise gegenläufigen Keilformen bei den Fensterbändern mit verbindenden Tetraedern dazwischen schien einfach umzusetzen, und die optische Wirkung versprach ein faszinierendes Spiel von Licht und Schatten. Letzteres war gewiss, aber der Übergang vom Projekt zur Machbarkeit brachte immer neue Fragen und konstruktive Schwierigkeiten mit sich. Die grossen Fensterflächen in Structural-Glazing-Technik (vgl. Kasten) waren dabei noch vergleichsweise einfach zu planen, und die Unterkonstruktionen zum Schrägstellen der Glasebenen boten kaum technische Schwierigkeiten. Auch die ­seitlich dazwischenliegenden opaken Verbindungsplatten in der Form von Keilen konnten problemlos geplant werden. Anders bei den opaken Fassadenbereichen unter und über den Fensterbändern. Diese Oberflächen mussten mit Dreiecken belegt resp. die Volumen mit Tetraedern gebildet werden, um die übereinander gegenläufigen Fensterebenen in ihren Schnittkanten zu verbinden. Auch das ist geometrisch keine Herausforderung, denn es wurden nur je eine Tal- und eine Bergflucht in Bezug auf die Rohbauflucht definiert. Doch eine Unterkonstruktion zu planen, die eine dünne, fugenlose Aussenhaut trägt, um damit einen 120 m langen, 50 m breiten und 20 m hohen Rohbau nahtlos zu umschliessen, offenbart ein ernst zu nehmendes Risiko von Folgeschäden. Deshalb entschieden sich Enzmann + Fischer Architekten in Zusammenarbeit mit gkp Fassadentechnik AG, bei den opaken Fassadenbereichen Unternehmerlösungen in der Submission einzufordern. Dieses Vorgehen führte zu einem guten Resultat. Es wirft aber Fragen bezüglich der Honorierung der Planerleistungen auf, denn Architekten und ­Planer integrieren in der Regel auch in solchen Fällen die entsprechenden Bauteile in die honorarberechtigte Bausumme – obwohl die ausgeführte Lösung vom Unternehmer selbst projektiert und detailliert ausgearbeitet wird und dieser dafür auch die Verantwortung trägt. Wenn Architekten und Fachplaner, wie in diesem Fall geschehen, die Unternehmerlösung in vollem Ausmass mittragen und nach bestem Wissen und Gewissen begleiten, ist auch ihr Honoraranspruch gerechtfertigt.

Basisprodukt und Improvisation

Die favorisierte Unternehmerlösung wurde von der Arbeitsgemeinschaft Circelli AG, Ebikon, und Gebr. Odermatt AG, Dallenwil, präsentiert. Die beiden Firmen haben sich bereits in der Submissionsphase intensiv mit den hohen Anforderungen beschäftigt und das zusätzlich notwendige Fachwissen von den Firmen Sto AG, Niederglatt (Putzträgerplatten), Gasser Fassadentechnik AG, St.Gallen (Alu-UK), und feroplan engineering ag, Zürich (Fassaden­statik), frühzeitig beschafft. Die Qualität der Lösung liegt im Kombinieren von Standardprodukten zu einer Gebäudehülle mit neuen Eigenschaften. Für die Aussenhaut wurden hinterlüftete Putzträgerplatten verwendet. Diese werden normalerweise relativ grossflächig in einer Flucht auf Aluminium-Holz-Unterkonstruktionen montiert. Dabei sind Verarbeitungsrichtlinien einzuhalten, welche zulässige UK-Abstände, Querschnittswerte, Dehnfugen etc. beschreiben. Durch die Transformation auf die notwendigen Keil- und Tetraederformen ergab sich der glückliche Umstand, dass keine offenen Dehnfugen mehr eingebaut werden mussten. Diese existieren zwar, liegen aber unsichtbar hinter den Gratlinien der diversen Ebenen. Der Schlüssel dazu ist der Umstand, dass jede einzelne Ebene in ihrer Mitte am Rohbau fixiert und an ihrer Peripherie gleitend rückverankert ist. Dadurch werden Längenänderungen durch Feuchte und Temperaturdifferenz in viele, relativ kleine Bereiche gesplittet und nicht über weite Strecken aufsummiert. So ist der spezielle Putzaufbau (s. Kasten unten) in der Lage, die geringen Ausdehnungen ohne sichtbare Wulste oder Risse zu übernehmen. Eine wichtige Grundlage für das Funktionieren dieses Szenarios ist auch der bestehende Stahlbetonrohbau. Durch sein Alter sind Deformationen von Baugrundsetzungen und Kriechen praktisch ausgeschlossen. Die Aluminium-UK zur Applikation der Putzträgerplatten ist ein Konstrukt aus Spezialprofilen und Abkantblechen. Sämtliche Profilformen wurden speziell für diesen Bau entworfen und laufend mit den Vorgaben des Plattenlieferanten und den statischen Berechnungen des Fassadeningenieurs optimiert und verfeinert. Das Strangpressen von objektbezogenen Aluminiumprofilen ist heute problemlos möglich, und die Werkzeugkosten relativieren sich schon bei verhältnismässig kleinen Mengen. Über ein genau geplantes Raster mit Fix- und Gleitlöchern sind die einzelnen Profile und Abkantbleche mit Alu/Nirosta-Blindnieten untereinander verbunden. Das fertige Produkt erinnert ein wenig an das beliebte Meccano-Spielzeug. Die für den Laien unsichtbaren Finessen mit Fix- und Gleitpunkten, Steckver­bindungen, Montagehilfen etc. belegen jedoch die hohen Anforderungen der Praxis und ­attestieren den erwachsenen Spielern Fortgeschrittenenstatus.

Feintuning am Bau

Bei derartigen Prototypen ist das Risiko von unerwarteten Problemen am fertigen Produkt immer höher als bei der Wahl von langjährig bewährten Systemen. So zeigte sich auch an dieser neuen Fassade nach dem Fertigstellen der ersten Bereiche ein gravierendes Problem: Über die Schnittstelle zwischen Fensterkrone und darüberliegender Fassadenschicht gelangte partiell viel Meteorwasser hinter die Putzträgerplatten. Dies führte in den entsprechenden Bereichen zur sichtbaren Ablösung der Putzschicht. Deshalb wurde nach eingehender Untersuchung beschlossen, an diesen Bereichen Wasserabweisbleche einzubauen. Damit wurde das Problem gelöst, ohne den formalen Eindruck zu stören.

Am Bau Beteiligte (Fassade)


Projektierung
Enzmann + Fischer AG, Zürich; gkp Fassadentechnik AG, Aadorf


Realisierung
Fenster: Surber Metallbau AG, Zürich; Reynaers AG, Frauenfeld
Fassade: Gasser Fassadentechnik AG, St.Gallen; Sto AG, Niederglatt; ARGE Circelli AG, Ebikon/Gebr. Odermatt AG, Dallenwil


Statik Fenster und Fassade
feroplan engineering ag, Zürich

Tags
Magazine

Verwandte Beiträge