Ge­brauchs­an­wei­sung für ei­ne Lü­cke

Die Erweiterung zwischen zwei Häusern von Biolley Pollini und M-AP architectes am Chemin du Risoux in Lausanne ist eine Lektion im Umbauen. Und sie ist der Beweis dafür, dass gerade kleine Projekte Anlass dazu geben können, auf lustvolle und kühne Art neue Lebensformen zu erfinden.

Publikationsdatum
08-06-2022

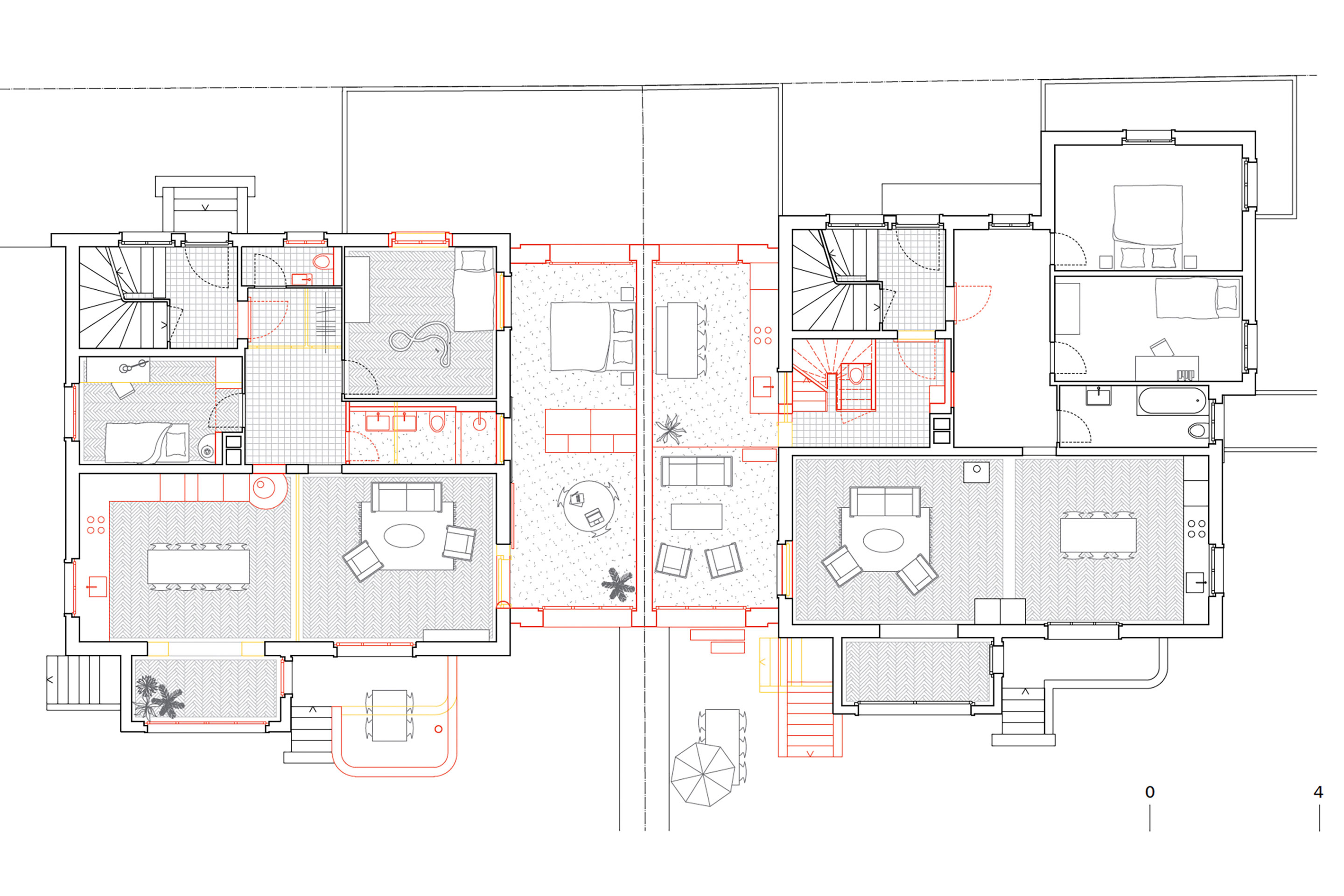
Der Chemin du Risoux befindet sich in einem Quartier mit in den 1930er-Jahren innerhalb von sechs Jahren erbauten Wohngebäuden, die sich an den Park Valency anschmiegen. Grösstenteils verfügen die drei- oder viergeschossigen Baukörper über ein Walmdach, das von einer Gaube durchbrochen wird. Der Bebauungsplan versteht sie als Punktbauten. Nur zwei kompaktere «Kuben», die auf zwei kleineren Grundstücken stehen – die Nummern 3 und 5 mit strassenseitigen Erschliessungen –, werden als zusammengehörige Einheit behandelt. Diese Eigentümlichkeit ist auf den Bebauungsplan der 1990er-Jahre zurückzuführen: Bei dessen Erarbeitung wurde davon ausgegangen, dass ein einzelner Bauträger beide Grundstücke aufkaufen, die bestehenden Häuser abreissen und darauf ein einzelnes Gebäude erbauen würde, das besser zu den restlichen Gebäuden passt. Der Grund zwischen den beiden grossen Villen sowie auf zwei Metern aufseiten des Gartens war also Bauland.

2018 erwarben drei Familien – darunter die Architekten – das Haus Nummer 5 mit der Absicht, darauf eine Erweiterung im Miteigentum zu erstellen. Die Nachbarinnen und Nachbarn im Haus Nummer 3 hingegen hatten vor, das Gebäude aufzustocken. In der Folge beschlossen sie, ein gemeinsames Projekt zu entwickeln und die kleine Bauzone zwischen den Häusern auszunutzen – also wortwörtlich die Gesetzeslücke zu bewohnen. Die Architekten konzipierten ein zusätzliches Volumen, das die beiden Villen verbindet, und entwickelten die Typologien für sieben Wohnungen.1

Typologie von Nr 5: die Enfilade

Ursprünglich verfügten die beiden Stadtvillen an der Strasse über je eine 3-Zimmer-Wohnung pro Geschoss bzw. über sechs Wohnungen insgesamt. Im Haus Nummer 5 sind die Wohnungen übereinandergestapelt. Durch die Erweiterung, in der ein Zimmer und eine Küche untergebracht sind oder je nach Stockwerk gleich mehrere Zimmer, werden die 3-Zimmer-Wohnungen zu 4.5-Zimmer-Wohnungen. Die Eingriffe im Bestand beschränken sich auf ein Minimum: Die Küche wurde abgebrochen, um ein zusätzliches Zimmer auf der Nordseite und ein Wohnzimmer auf der Südseite zu schaffen. Die Böden blieben erhalten, wie auch die Türen, Heizkörper und Hohlkehlen an den Oberkanten der Wände, die in Lausanne für die 1930er-Jahre typisch sind.

Die Nasszellen im ersten und zweiten Stockwerk – in den Wohnungen der Architekten und Architektinnen unter den Miteigentümern und Miteigentümerinnen – lohnen eine Besichtigung. Die erste weist eine gebogene Wandscheibe aus Metall auf, die sich, durchbrochen von einem Bullauge, zum Esszimmer öffnet. Von der Dusche geht der Blick direkt in die Bäume im Garten. Die zweite Nasszelle ist japanisch angehaucht und verspricht eine Erhebung sowohl physischer wie spiritueller Natur durch eine Abfolge von Terrazzo-Elementen, die in einer Badewanne münden. Diese ist genauso breit wie tief und wird zenital beleuchtet. Alles in allem sind die Eingriffe nicht sehr kostspielig – eine Öffnung in der Mauer, ein Boden wird zur Badewanne – und doch bestechen die Badezimmer durch ihre Originalität und Poesie.

In den Wohnräumen hielt zwischen Wohnzimmer, Esszimmer und Erweiterung eine Enfilade Einzug. Für den Durchbruch zur Erweiterung wurde die Fassade buchstäblich durchgesägt, wodurch die Küche eine Umrahmung erhält. Die Küche wird durch die grossen, raumhohen Öffnungen, deren Wände sich seitlich zusammenfalten lassen, nahezu zu einer Loggia. Die Erweiterung wirkt dadurch wie ein losgelöster, verwirrender Raum zwischen den beiden Häusern, der zwischen innen und aussen oszilliert.

Typologischer Erfindergeist

Die Typologie von zwei Wohnungen zeigt eine Lösung für ein aktuelles soziologisches Problem auf: Eines der Paare trennte sich mitten im Bau. Um den Kindern eine möglichst stabile Wohnsituation bieten zu können, entschieden sich die Eltern, unter einem Dach, aber unabhängig voneinander zu leben.2 Zwei neue Treppenhäuser lösen das Problem der Erschliessung. Das grenzt zwar ans Absurde, erlaubt dem ehemaligen Paar aber, friedlich mit den Kindern zusammenzuwohnen. Ein Elternteil bewohnt das Erdgeschoss und das erste Obergeschoss, das andere das dritte Ober- sowie das Dachgeschoss. Die Kinder wohnen in einer Suite im zweiten Stock und nutzen während einer Woche die «Mamatüre» und die Woche darauf die «Papatüre».

Natürlich resultiert diese typologische Lösung in erster Linie aus einer Notsituation. Allerdings bietet sie auch zu einem späteren Zeitpunkt viel Flexibilität und ermöglicht vielfältige Szenarien, sollte die Familie eines Tages wegziehen: Die Suite der Kinder könnte an die eine oder an die andere Wohnung angeschlossen, für die Miteigentümer zum Zusatzzimmer umfunktioniert, zu einer eigenständigen Wohnung umgebaut oder sogar dem zweiten Obergeschoss des Hauses Nummer 5 zugeschlagen werden, wodurch eine grosszügige Wohnung entstehen würde.

Die Tektonik der Lücke

«Die Denkmalschutzbeauftragte forderte für den Anbau eine mineralische Fassade. Um dieser Vorgabe nachzukommen, schlugen wir eine hinterlüftete, mit Fliesen verkleidete Fassade vor. Sie hatte etwas ganz anderes erwartet, aber durch unsere Argumentation und die Diskussionen wurde unser Vorschlag schlussendlich akzeptiert», erklärt Priscille Biolley, eine Architektin des Projekts.

Der Entscheid, den Bestand nicht imitieren zu wollen, verleiht der Erweiterung eine eigenständige Adresse, obschon sie eigentlich durch eine innere, vertikale Zweiteilung beiden Häusern zusätzliche Fläche zuspielt. Die Farbgebung – ein dunkler Farbton, der sich vom hellen Verputz der Bestandshäuser abhebt – sowie die zurückversetzte Fassade unterstreichen diese Haltung. Die Modenaturen und Schattenfugen akzentuieren das Bild einer Erweiterung, die sich zwischen die beiden bestehenden Baukörper schiebt, wohingegen die Umbauten der bestehenden Gebäude den Bestand weiterführen. Es entsteht ein Hin und Her zwischen dem, was man sieht – drei unabhängige Körper –, und der gelebten Realität: sieben Wohnungen, die die Bauten durchdringen.

Vielleicht bringt das heutige Architekturschaffen genau in solch kleinen Projekten, die sich mit dem Alltäglichen beschäftigen, die grössten Neuerungen hervor – mehr als in grossen Raumprogrammen, die starr und normiert sind. Denn das Bauen im Bestand ist eine Praxis für sich, die zur typologischen und poetischen Auseinandersetzung ermutigt, gerade weil es auf Einschränkungen reagieren muss.

Anmerkungen

 

1 Obwohl das Projekt einer Lücke im Bebauungsplan entspringt, könnte es eine Vorreiterrolle in der Verdichtung der Stadt Lausanne einnehmen, die vor allem aus kleinformatigen, freistehenden Bauten besteht.

 

2 Genau wie im Film «L’amour flou», der die Geschichte von Romane Bohringer und Philippe Rebbot erzählt, einer Regisseurin und eines Regisseurs, die sich trennten und weiterhin mit ihren Kindern unter einem Dach wohnten, aber in separaten Räumen (2018).

Erweiterung zwischen zwei Gebäuden, Lausanne (VD)
   

Bauherrschaft
privat

 

Architektur
biolley pollini architectes, Lausanne
M-AP architectes, Lausanne

 

Tragkonstruktion
Gex & Dorthe Ingénieurs, Bulle

 

Heizungsplanung
Perenzia Ingénieurs, Nyon

 

Planung Holzbau
schaerholzbau, Altbüron

 

Planung
2018–2019

 

Bauzeit
2020–2021

 

Bruttogeschossfläche
414 m2 + 486 m2

 

Kosten (ohne BKP2)
2 165 000.– Fr.

 

Tags

Verwandte Beiträge