Kom­po­nie­ren mit dem, was ist

Umbau einer Autowerkstatt in Lausanne zur Musikschule

Westlich des Lausanner Quartiers Flon wirft die Umnutzung einer ehemaligen Garage in eine Musikschule zahlreiche technische, aber auch soziale Fragen auf. Sébastien Tripod Architecte und Jean-Michaël Taillebois Architecte beantworten sie mit präzisen baulichen Lösungen.

Publikationsdatum
26-03-2024

Entlang der Schneise, die das baldige Comeback des Trams in der Stadt Lausanne erahnen lässt, beginnt sich die bereits aufgerissene Rue de Genève diskret zu verwandeln. Renovationen, Umbauten, Abbruch, Wiederaufbau – ein Bauvorhaben löst das andere ab, um für eine neue Bevölkerung und neue Raumprogramme Platz zu schaffen. Vor dem Hintergrund dieser Gentrifizierungsdynamik werden an die Verkehrsachse angrenzende Garagen und Tankstellen nach und nach durch mehr oder weniger geglückte Bauten ersetzt. 

Hin und wieder schafft es ein Projekt, sich dem Wandel hinzugeben und dennoch die Geschichte des Orts zu wahren. So auch der Umbau eines Gebäudes, das nach drei Generationen von Garagisten seit Kurzem das Ensemble Albertine beherbergt. Die Musikschule war bereits vorher in der Strasse ansässig, in einem Wohnhaus, das der Besitzer zu einem Hub für Start-ups umbauen wollte, um die Räume teurer vermieten zu können. Das Team der Musikschule nutzte diese Verdrängung und hatte die Idee, in einem nahegelegenen Gebäude einen Ort für Proben und Auftritte zu schaffen.

Wegerecht als Schutz

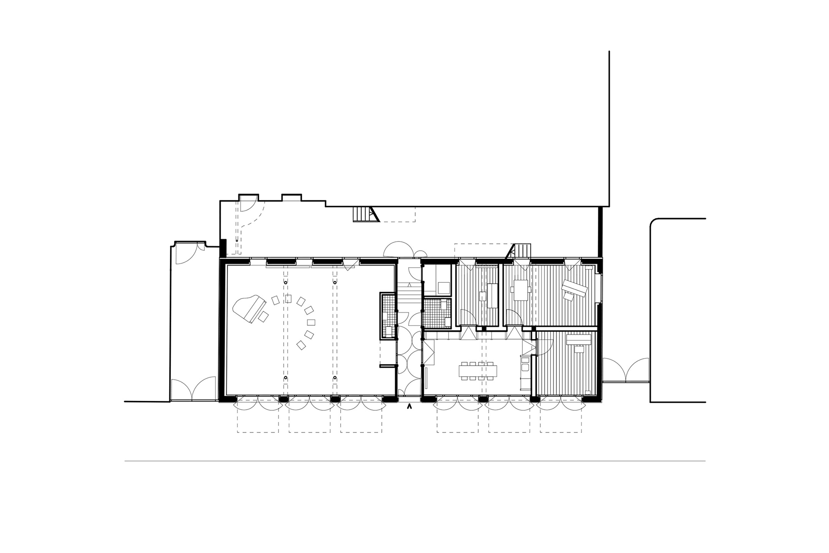
Vermutlich fiel die kleine eingeschossige Baute am Fuss einer Böschung aufgrund ihrer Lage vor einem mit einer Dienstbarkeit belegten Wohngebäude nicht dem Abbruch zum Opfer: Wegen des Wegerechts hätte bei einem Neubau mitten durch die Parzelle ein Durchgang führen müssen. Das Gebäude entstand zu Anfang des 20. Jahrhunderts während der Erstellung der Rue de Genève, die entlang des Tals des Flusses Flon aus der Stadt führt. Aus denkmalpflegerischer Sicht ist es jedoch nicht schützenswert. Ursprünglich befanden sich darin sechs entlang dem Gefälle höhenversetzte Autostellplätze. Diese Anordnung lässt sich noch an den sechs Öffnungen ablesen, die die Fassade beidseitig der zentralen Erschliessung prägen; die Innenräume hingegen wurden weitestgehend eingeebnet. 

Im Zuge des aktuellen Umbaus wurde die Bodenplatte im tiefergelegenen westlichen Bereich erhalten und von oben gedämmt, um den Boden des künftigen Auditoriums auf das Niveau der zentralen Erschliessung anzuheben. Auf der gegenüberliegenden Seite wurde der Boden abgesenkt: Punktuell erschliessen jetzt Rampen das Foyer sowie die drei Proberäume. Zusammen mit den bestehenden Öffnungen erzeugen die neuen Bodenniveaus ganz unterschiedliche Strassenbezüge. Während die schmale Einfassung in den Proberäumen ein Gefühl von Schutz vermittelt, verleitet die als Sitzfläche konzipierte Stufe des Auditoriums dazu, die Sonne zu geniessen. 

Der direkte Strassenbezug wird von den grossen Fenstern, die sich vollständig öffnen lassen, noch verstärkt. Beim Vorbeigehen lässt sich ein Blick auf die Proben erhaschen und man kann sich gut vorzustellen, dass hier Konzerte bis auf das Trottoir schwappen. Ganz anders als in intimen Konzertkellern oder schummrigen Lounges exponiert sich hier die Musik und stellt sich der Geräuschkulisse und den Lichtverhältnissen des Aussenraums.

Wärme, Kälte und Klänge orchestrieren

Die Schule, die sich ungewöhnlichen Unterrichtsformen verschrieben hat, erschuf ebenso unkonventionelle Räume, in denen die Akustik zur architektonischen Herausforderung wird. Der Baukörper wurde von den angrenzenden Bauten entkoppelt, um jegliche Übertragung von Körperschall zu verhindern. In den Innenräumen spielen die Architekten mit verschiedenen Materialien. So gewährleistet eine mit zementgebundenen Holzfaserplatten verkleidete Schicht Steinwolle auf den Aussenwänden die Schallabsorption. Die Dichtheit der strassenseitigen Stahlfenster dämpft die niedrigen Frequenzen. Massive Lehmsteinwände absorbieren den Luftschall zwischen den einzelnen Räumen. 

Die Schallübertragung zwischen den verschiedenen Materialien wird von mit Mineralwolle ausgestopften und mit Schnur abgedeckten Fugen unterbrochen – eine Alternative zu elastischen Fugen und damit zu Produkten auf Erdölbasis. Die Wahl der Materialien, Oberflächen und Ausführungstechniken reduziert nicht nur den ökologischen Fussabdruck, sondern bestimmt auch die Ästhetik des Projekts und bereichert das Raumprogramm. Je nach Grösse und Anordnung bieten die Räume unterschiedliche Qualitäten hinsichtlich der Akustik und der Beleuchtung, die sich auf die gespielte Musik auswirken und das pädagogische Konzept mitbestimmen.

Für die Raumakustik sind Materialwahl und Anordnung der Innenwände deshalb so wichtig, weil die Architekten Wert darauf legten, die bestehende Betonrippendecke sichtbar zu lassen. Denn auch wenn deren Relief letztlich den Raumklang nur wenig beeinflusst, trägt sie doch zur architektonischen Identität des Orts bei. Allerdings bleibt sie ein rein dekoratives Element, denn angesichts der heutigen Normen ist ihre tragende Funktion hinfällig. Um den neuen begrünten Dachaufbau zu tragen, musste eine Stahlkonstruktion auf die Betondecke gesetzt werden, die auf den Aussenwänden und auf den unter den bestehenden Balken angebrachten Trägern abgestützt ist. 

Doch wie lässt sich so ein harmonisches Ensemble erschaffen? Indem mit Farbe gespielt wird: Die neuen tragenden Elemente sind in einem dunklen Blau gehalten, das den Farbton der Metallteile der Garage aufnimmt und mit den graubeigen Tönen und der Struktur der übrigen Oberflächen kontrastiert. Die Oberflächenbeschaffenheit erzählt vom Material und von den einzelnen Konstruktionsschichten. Es ist ein bewusster Eingriff, der betont, dass die Betonkonstruktion obsolet ist. Die Rippen werden zum Motiv, zum Zeugen der Vergangenheit.

Abgesehen davon ermöglicht die Decke die Integration eines ausgeklügelten einfachen Abluftsystems, das nach dem Unterdruckprinzip funktioniert: Die Luft strömt über das Dach durch Schwanenhalsrohre in den Innenraum und zirkuliert dann in den Rippen an das nördliche und südliche Deckenende, wo Heizungsrohre die Frischluft temperieren. Der unterirdische Tank der ehemaligen Tankstelle dient zur Versorgung der im Boden eingelassenen Kühlschlangen und ergänzt so die natürliche Belüftung. 

Arbeiten im Modell

Die Vertrautheit der Architekten mit dem Ort liegt im Planungsprozess selbst begründet, denn im Vorfeld der Baustelle richteten die Architekten in der geräumten Garage ihr Büro ein. Etwas mehr als ein Jahr lang wurde das Projekt in situ entwickelt, im Baukörper der künftigen Räume und Nutzungen – gewissermassen in einem 1:1-Mock-Up. Nach und nach kristallisierten sich Themen heraus, wie die Notwendigkeit, die Rippendecke zu erhalten oder mit einer Querströmung zu arbeiten. 

Im zukünftigen Auditorium neben dem Arbeitsraum der Architekten fanden von Zeit zu Zeit Veranstaltungen wie Filmvorführungen, Fermentationskurse oder Workshops für Studierende statt. Diese wirkten mitunter direkt auf das Projekt ein. So wurde entschieden, die Stützen im Auditorium zu verschieben, um die Raummitte nach einem Konzert freispielen zu können. Die Veranstaltungen führten auch zu Überlegungen, die weit über das Konzept und die Baustelle hinausgingen und die sich direkt auf die Nutzung der Räumlichkeiten auswirkten, indem den Nutzenden viel Spielraum eingeräumt wurde. 

Über die Zweckmässigkeit für die Planung und den Austausch mit der Bauherrschaft hinaus verankerte der Residenzaufenthalt der Architekten das Gebäude im Quartier und fungierte gewissermassen als Teaser für die Nachbarschaft. Die Zwischennutzung der leerstehenden Räume war hier ein bewusster Akt zugunsten der Experimentierfreude und im Dienst der Architektur.

Umbau einer Garage zu einer Musikschule, Lausanne VD

 

Bauherrschaft 
privat

 

Architektur 
Sébastien Tripod Architecte, Lausanne, und Jean-Michaël Taillebois Architecte, Fribourg

Tragkonstruktion
Demierre consulting, Neyruz


Akustik
Décibel Acoustique, Genf

 

Bauphysik
Perenzia ingénieurs, Lausanne


Verfahren
Direktauftrag


Planung
2021-2022


Realisierung
2022-2023


SIA-Volumen
1000 m3


Gesamtkosten des Umbaus (BKP1-9)
1.45 Mio. Franken


Kosten pro m3 nach SIA (BKP2)
1350 Franken/m3

 

Tags

Verwandte Beiträge