Der Lo­gis­tik­gar­ten

Neue Blumenbörse, Kerzers

In Kerzers im Kanton Freiburg ist die neue Blumenbörse der Architekten Kuník de Morsier eröffnet worden. Anstatt eine rein funktionale Lösung für ein komplexes Logistikprogramm zu wählen, schafft das von Losinger Marazzi realisierte Projekt ein stimmiges Ganzes, das Rationalität, Gastfreundschaft und regionale Verwurzelung miteinander verbindet. 

Publikationsdatum
21-05-2025

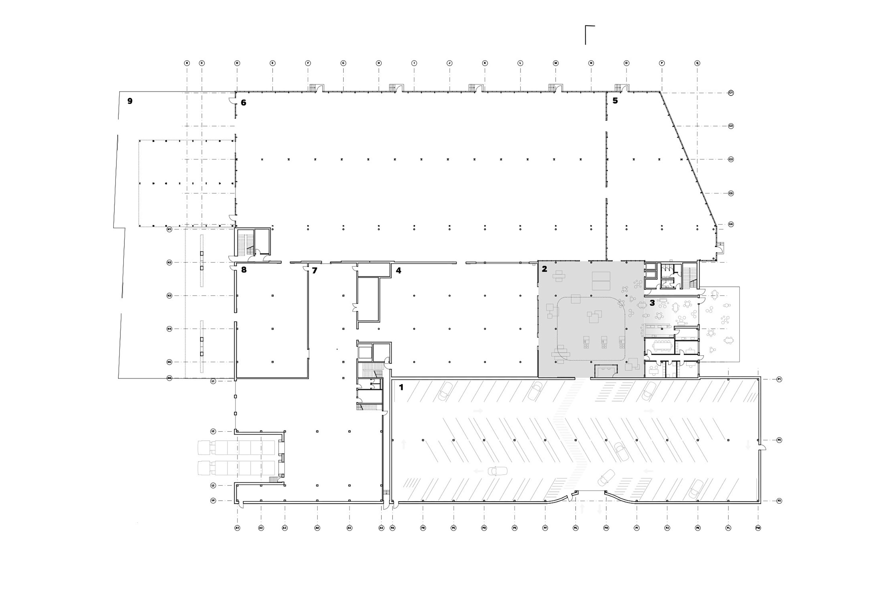
Am Rand der Stadt und der Felder fügt sich das Gebäude diskret in seine Umgebung ein. Sein begrüntes Dach und seine niedrige Silhouette wirken wie eine angehobene Ackerfläche. Das Ensemble besteht aus zwei benachbarten, rund 70 × 35 m Volumen und einem angrenzenden Gewächshaus mit zwei Traufen und bietet eine Vielzahl von Nutzungsmöglichkeiten und Raumfolgen in verschiedenen Massstäben. Dank seiner strategisch günstigen Lage – in gleicher Entfernung zu Bern, Biel, Neuenburg und Freiburg – ist es die zentrale Blumenplattform für die Region.

Das Projekt sorgt für einen sanften Übergang zwischen landwirtschaftlichen Flächen und Gewerbegebieten. Durch die Berücksichtigung der Höhe der benachbarten Gebäude und die Übernahme der Proportionen der bewirtschafteten Parzellen fügt es sich harmonisch in den Standort ein. Es beherbergt eine Vielzahl von Funktionen: Logistikzentrum, Gewächshaus, Baumschule, Zubehörgeschäft, Büros, Café, Schulungsräume sowie einen ebenerdigen Parkplatz, der für gelegentliche Veranstaltungen umgebaut werden kann.

Die Gestaltung entspricht den strengen Anforderungen des Blumensektors. An der Nordfassade beherbergt ein temperiertes Gewächshaus mehrjährige Pflanzen in einem schlichten, von der Landwirtschaft inspirierten Baukörper. Im Westen schützt die direkt mit der Baumschule verbundene Laderampe die Blumen vor Wind und direkter Sonneneinstrahlung. Das gesamte Gebäude berücksichtigt die Abstandsauflagen zur Hochspannungsleitung, die südlich des Geländes verläuft.

Diese peripheren Elemente rahmen den Zugang zum Herzen des Projekts ein: den Marktplatz. Dieser helle, von den Architekten hinzugefügte Ort, der im ursprünglichen Programm nicht vorgesehen war, ist unter einem gewölbten Holzgerüst mit Oberlicht angeordnet. Der von aussen nicht einsehbare zentrale Raum wird zu einem Knotenpunkt der Verkehrswege, die insbesondere zum 900 m² großen Kühlraum für Schnittblumen führen.

Die Materialität des Projekts spiegelt die Balance zwischen Technik und Wohnlichkeit wider. Der vor Ort gegossene Betonsockel trägt ein grosses Fichtenholzgerüst, dessen Längs- und Querbalken mit identischem Querschnitt ein regelmässiges Muster bilden. Mit Ausnahme des Atriums ist diese Struktur mit vorgefertigten Holzpaneelen verkleidet, die auch als Windverband dienen.

Die Fassaden des Parkhauses und des Bahnsteigs bestehen aus einer Beton-/Metallkonstruktion, die mit einer vertikalen Holzverkleidung mit variabler Geometrie verkleidet ist, was interessante Schattenspiele ergibt. Das begrünte Dach fügt sich in die umgebende Landschaft ein.

Im Erdgeschoss bestehen mehrere Trennwände des Cafés aus selbsttragenden Lehmziegeln. Dieses noch seltene Material setzt die organische Atmosphäre der Technikbereiche fort und bietet gleichzeitig einen bemerkenswerten Raumkomfort.

Von aussen unscheinbar, offenbart die Blumenbörse im Innern Räume von ungeahnter Qualität. Ihr zentraler, lichtdurchfluteter und von einer skulpturalen Struktur überdachter Platz verkörpert den öffentlichen und gastfreundlichen Charakter des Projekts. In einem logistischen Kontext beweist es, dass Nachhaltigkeit, Komfort und Raumfreude durchaus miteinander vereinbar sind.

Der Originalartikel «Le jar­din lo­gis­tique»  wurde von Alexandre Barrère verfasst und kann in der Aprilausgabe 2025 der Zeitschrift TRACÉS nachgelesen werden. 

 

Diese Zusammenfassung wurde von KI Claude erstellt, von DeepL übersetzt und von den Redaktionsteams von espazium - Der Verlag für Baukultur überprüft.

Neue Blumenbörse, Logistik- und Verkaufszentrum für Floristen, Kerzers FR

 

Bauherrschaft
Genossenschaft Berner Blumenbörsen

 

Immobilienentwickler und Generalunternehmung
Losinger Marazzi, Bern

 

Architektur
Kuník de Morsier, Lausanne

 

Tragkonstruktion 
Baechtold & Moor, Bern

 

HLK-Planung
Marcel Rieben Ingenieure, Bern-Liebefeld

 

Elektroplanung
Bering, Bern

 

Bauphysik
Zeugin Bauberatungen, Münsingen

 

Holzbau
Création Holz, Herisau 
Bois Initial, Morges

 

Bruttogeschossfläche: 17 000 m²
Kosten: 35 Mio. Fr.

Verwandte Beiträge