Le jar­din lo­gis­tique

Nouvelle bourse aux fleurs, Chiètres (FR)

La nouvelle bourse aux fleurs de Chiètres (FR), dessinée par les architectes Kuník de Morsier, est une opération délicate : au lieu de livrer une réponse purement technique à ce programme complexe, le bâtiment développé et réalisé par Losinger Marazzi lie des entités aux formes et aux contraintes variées. Visite d’un centre logistique et administratif aux airs de grand jardin d’hiver.

Date de publication
08-04-2025

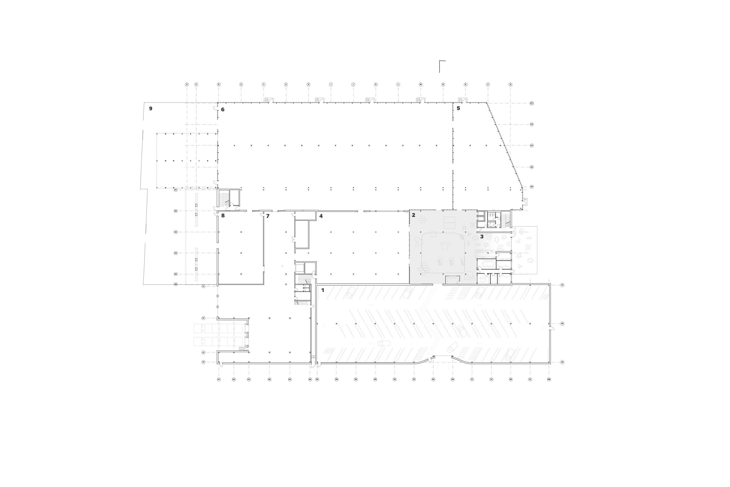
Intégré en toute discrétion entre les cultures et la ville, le bâtiment à la toiture végétalisée pourrait passer pour un champ extrudé verticalement. Composé de deux volumes accolés d’environ 70 × 35 m et d’une serre à double travée attenante, le projet articule de multiples séquences spatiales, à différentes échelles : il fournit une série de services liés au commerce floral entre la Suisse romande et la région bernoise ; il est un lien physique entre une activité agricole et des espaces urbains ; il abrite sous son vaste toit les conditions successives de réception, stockage, gestion et vente de fleurs aux professionnels.

Un trait d’union articulant les usages…

Destiné à succéder aux anciens locaux de la coopérative Berner Blumenbörsen, c’est tout d’abord la localisation du projet qui le singularise. Situé aux franges de la commune agricole de Chiètres (Kerzers en allemand), à équidistance de Berne, Bienne, Neuchâtel et Fribourg, le bâtiment s’adresse aux acteurs du monde floral de différentes aires urbaines et géographiques. Cet emplacement charnière semble avoir inspiré l’ensemble du projet architectural, à commencer par son inscription territoriale. L’édifice présente une hauteur similaire aux constructions industrielles et commerciales voisines, tandis que ses proportions rappellent les champs tout proches, créant une transition douce entre zones agricoles et industrielles.

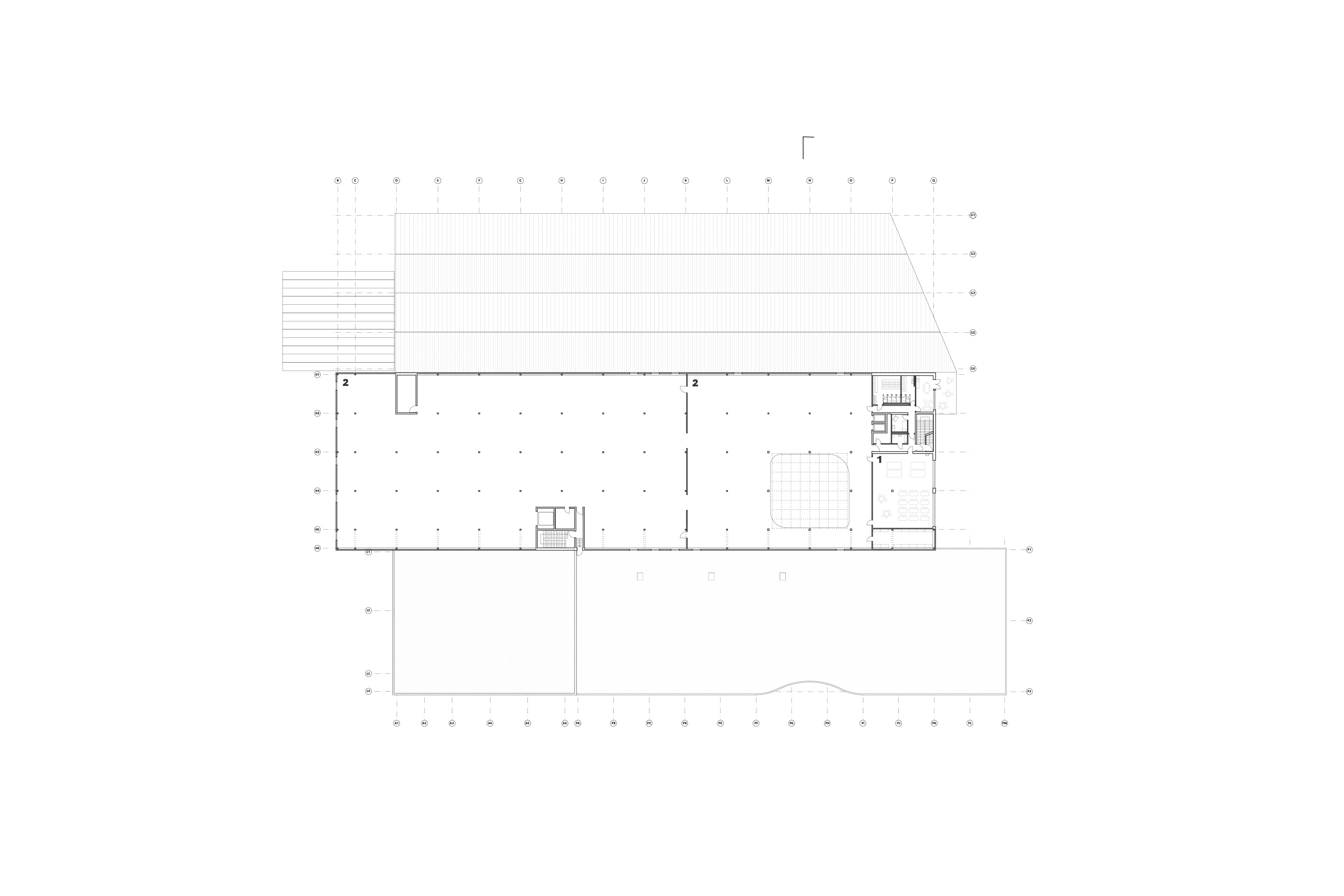
À l’intérieur de ces généreux volumes converge une grande variété d’usages : centre logistique, serre, pépinière, magasin d’outils et accessoires de jardinage ; mais aussi bureaux, café, espaces de formation professionnelle, ainsi qu’un important parking de plain-pied (pensé pour être alloué à des manifestations ponctuelles hors des jours ouvrés). Ce programme protéiforme s’inscrit dans une séquence d’espaces climatiques différenciés, requise par le strict cahier des charges du programme.

Sur toute la longueur du flanc nord, les plantes vivaces sont conservées dans la serre tempérée (non dessinée par les architectes) dont la forme générique reprend le langage constructif industriel des bâtiments agricoles. Le quai de déchargement à l’ouest du corps bâti central et le parking au sud de celui-ci établissent un lien direct entre les parcages et la pépinière. Cette organisation protège les fleurs de l’éclairage direct et du vent, depuis le stockage jusqu’à l’acheminement aux véhicules. Elle permet également de répondre à une contrainte majeure de la parcelle : l’obligation de prévoir les zones de vente et d’activités à distance du périmètre des lignes à haute tension jouxtant la limite sud.

Le programme technique du rez-de-chaussée est complété par une cafétéria, sur la face est, dont la terrasse ouvre sur les aménagements paysagers.

Ces éléments forment ainsi un filtre périphérique entre l’extérieur et le centre névralgique du projet, appelé la « place du marché ». Ce point de rencontre, imaginé par les architectes en complément du cahier des charges initial, se situe sous l’impressionnante courbure de la charpente et son puits de lumière, accentuant l’effet de la double-hauteur. Depuis ce point de rencontre lumineux et presque insoupçonné depuis l’extérieur (car caché de tous côtés en façade), les flux d’usagers se croisent, s’attardent, puis se dispersent à nouveau vers les multiples fonctions du lieu. Ainsi, la place centrale dessert notamment, au cœur du volume construit, l’espace réfrigéré de 900 m2 recevant les fleurs coupées.

Cette approche combinant livraison, commerce, formation mais aussi convivialité fait de la nouvelle bourse aux fleurs un élément urbain à part entière, lié aussi bien à la zone industrielle de Chiètres qu’aux champs environnants et au transport des marchandises.

… et les matériaux

Le pragmatisme du monde logistique et la variété des usages semblent avoir inspiré la conception architecturale à différents niveaux. Car si le projet est ambitieux au regard de son impact sur l’environnement, de multiples matériaux ont été choisis pour des usage précis.

Le socle est réalisé en béton coulé en place. Il supporte la partie supérieure et sa généreuse charpente ondulante en épicéa. Les poutres porteuses (dans la longueur) sont complétées d’éléments de section identiques (dans la largeur) pour obtenir un effet visuel uniforme [lire l’encadré consacré à la structure porteuse], ainsi que d’un système de contreventement latéral imposé par l’atrium et, là aussi, généralisé au reste du bâtiment. À l’exception de la zone éclairée zénithalement, la charpente est recouverte par des panneaux de bois préfabriqués, qui participent aussi au contreventement de l’ouvrage.

Au sud, le parking et le quai de déchargement des marchandises présentent une structure mixte apparente béton/métal, des panneaux sandwich à finition métallique, et un bardage extérieur vertical en bois dont les sections à géométrie variable sont pensées pour générer des ombres portées irrégulières et amener un effet de vibration le long de la façade borgne du parking. Enfin, la toiture (non accessible) arbore une végétalisation extensive renforçant le lien visuel avec les champs alentour.

Au rez-de-chaussée, dans le café situé à proximité directe de la « place du marché », plusieurs cloisons sont réalisées en briques de terre crue autoportantes. Celles-ci prolongent l’atmosphère brute et végétale caractérisant les zones techniques et de vente, et contribuent aussi à mettre en avant un matériau vertueux encore peu utilisé1. Leur mise en œuvre dans le cadre de la bourse aux fleurs présente une petite victoire pour les architectes, qui la valorisent par le détail. On pense par exemple aux linteaux exécutés avec une plaque d’acier galvanisé reprenant l’épaisseur exacte du joint entre les briques, et filant dans la continuité de celui-ci, appuyant le contraste entre le caractère organique et chaleureux de la terre, et l’univers industriel et patiné du transport de marchandises.

La nouvelle bourse aux fleurs se distingue donc par la discrétion de la forme construite – exception faite de la « place du marché » nichée en son centre, et son atrium à l’imposante charpente bombée. L’apparente simplicité du projet n’empêche pas une grande ambition, notamment dans la qualité des espaces créés et dans le choix des matériaux. Le travail des architectes instille une notion de chaleur et de bien-être, et d’ouverture au public dans un contexte, celui d’une zone commerciale et industrielle, où le plaisir de l’espace ne va (malheureusement) pas de soi.

Lisez l'article de Fabrice Meylan consacré à la partie structurelle du projet:Structure : entre ambition et pragmatisme

 

Notes

1. Malgré de nombreux avantages – le bilan carbone favorable, l’origine locale, l’absence de solvants responsables de pollutions de l’air intérieur, ou encore la participation à la régulation hygrométrique des pièces –, le coût supérieur de la BTC par rapport aux cloisons standards, les contraintes de mise en œuvre et le manque de références construites freinent encore l’usage de la terre crue en parois intérieures.

Nouvelle bourse aux fleurs, centre logistique et de vente pour les fleuristes, Chiètres (FR)

 

Maîtrise d’ouvrage : Coopérative Berner Blumenbörsen

 

Développeur immobilier et entreprise totale :Losinger Marazzi

 

Architecture : Kuník de Morsier

 

Ing. structure : Baechtold & Moor

 

Ing. CVCS : MRI

 

Ing. E : Bering

 

Physique du bâtiment : Zeugin Bauberatungen

 

Ing. bois : Création Holz + Bois Initial

 

Surface brute de plancher : 17 000 m2

 

Coût CFC 2-4 : 35 mio CHF

Sur ce sujet