Re­por­ta­ge à la ca­ba­ne du Trient

Au mois de juin dernier, TRACÉS est allé visiter le chantier de la rénovation de la cabane du Trient (VS), à l’extrémité orientale du massif du Mont-Blanc, en compagnie de Laurent Savioz, associé du bureau savioz fabrizzi achitectes.

Data di pubblicazione
27-12-2023

Lors du premier chantier de la cabane du Trient, dans les années 1930, ce sont des mulets qui ont acheminé le bois nécessaire à sa construction. Aujourd’hui, la bête de somme est mécanique. L’arrivée de l’hélicoptère sur le parking du téléphérique de la Breya, à Champex-Lac (VS), ne passe pas inaperçue parmi les randonneur·euses qui se lancent dans une nouvelle étape de leur tour du Mont-Blanc. Nous sommes un lundi: couvreurs, menuisiers et plâtriers préparent le matériel dont ils auront besoin pour la semaine à venir en vue de son transport par la voie des airs avant de prendre place dans la machine. Avec l’architecte Laurent Savioz, qui se rend à la réunion de chantier, nous attendons notre tour.

Casque sur les oreilles, sanglé·es au siège, nous voilà parti·es pour une rapide montée vers la cabane, 1600 m plus haut. Passée la Fenêtre d’Arpette, nous survolons le glacier du Trient avant de nous poser légèrement en contrebas de la cabane. En quelques minutes, nous avons été projeté·es à une altitude qui se gagne normalement en plusieurs heures. La transition est rude: malgré une altitude encore relativement modeste, le manque d’oxygène se fait sentir au moment où nous entamons la visite du refuge.

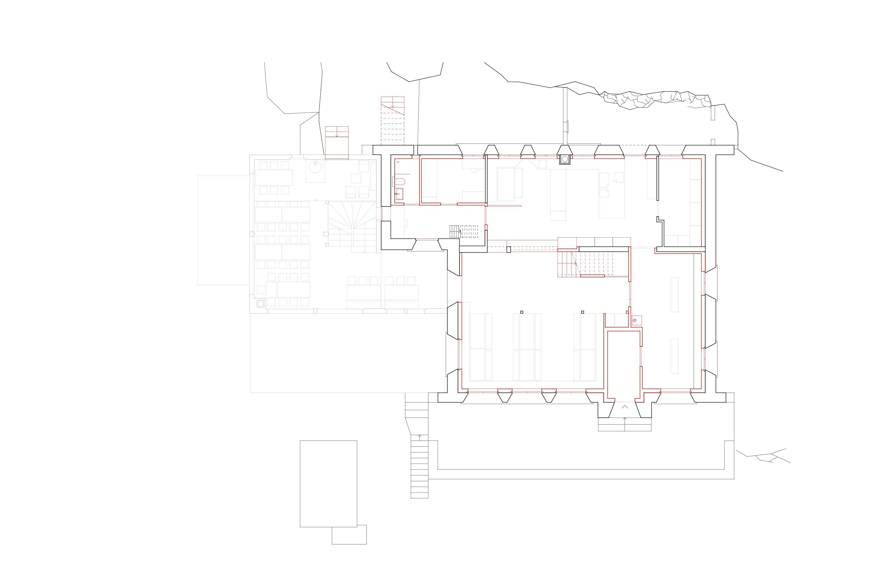
La cabane historique de l’époque Heimatschutz est dotée de lourds murs de moellons extraits de la roche du lieu, d’un toit à deux pans et de volets rouge et blanc. À ses côtés, l’extension cubique de 2006 conçue par Michel Perraudin campe sa silhouette trapue, faite d’une structure bois protégée de métal sur un socle en béton. Mais couler ce matériau est un exercice particulièrement difficile à réaliser à 3000 m d’altitude, selon Laurent Savioz – les architectes en ont fait l’expérience à la cabane de Moiry (Grimentz, VS), pour laquelle ils ont effectué la direction de travaux entre 2008 et 2009. «En haute montagne, il faut faire le minimum du minimum en béton.»

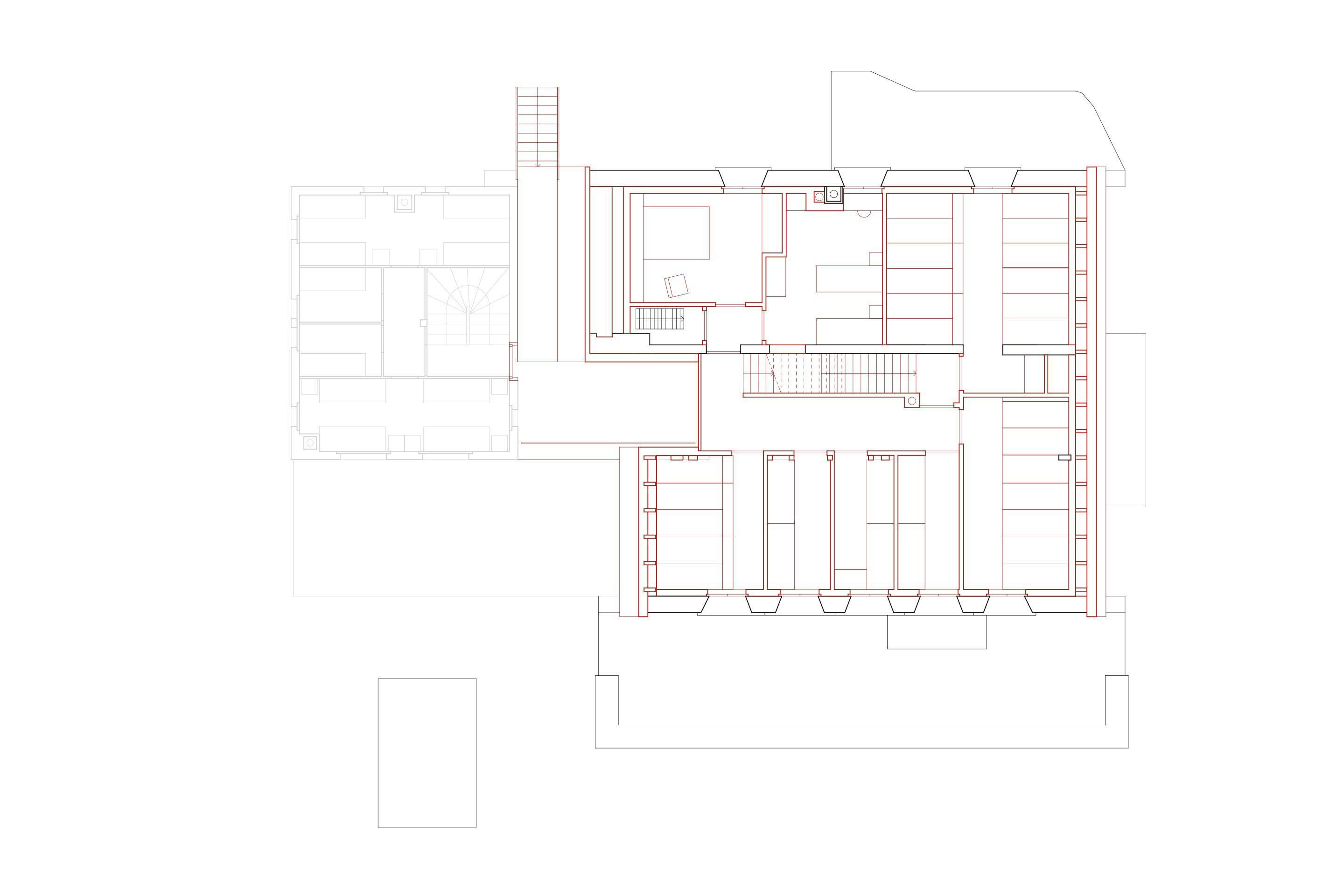
Le mandat exigeait ici de rénover et d’isoler la partie historique et de corriger certains éléments de sécurité de l’extension. Les murs en pierre ont été doublés à l’intérieur avec 16 à 20 cm d’isolation et de nouvelles fenêtres en triple vitrage ont été posées. La toiture, partiellement abîmée par une tempête en 2018, a été entièrement désossée : les pannes ont été conservées, mais les chevrons démontés et utilisés comme bois de feu. Alors que l’hélicoptère effectue au-dessus de nos têtes une nouvelle rotation pour acheminer les nouveaux bancs des vestiaires (transformables en couchettes pour le local hiver), on imagine comment les éléments préfabriqués de la toiture (650 kg chacun) ont été transportés.

Ce jour-là, étancheurs et architecte discutent des finitions des pans, couverts désormais de panneaux solaires photovoltaïques à l’ouest (150 m2) et de panneaux solaires thermiques à l’est (30 m2), qui approvisionneront la cuisine et les douches en eau chaude. Sur ce même pan, une nouvelle lucarne a été aménagée pour amener de la lumière dans les dortoirs, dont le confort a été amélioré grâce à la séparation en chambres plus petites de quatre personnes. Pour répondre aux normes incendie, un nouveau chemin de fuite sécurisé a été pratiqué en ménageant une ouverture côté ouest.

Une fois la réunion de chantier achevée, nous rencontrons Olivier Genet, gardien de la cabane et maître des lieux. Il vient d’entamer une nouvelle saison dans un bâtiment encore en chantier, une cohabitation pas toujours évidente. Il nous raconte cet hiver passé ici, à travailler sur le chantier – car c’est une particularité de ce projet d’avoir essentiellement eu lieu entre deux saisons de gardiennage, d’août 2022 à juin 2023. L’isolement, le huis-clos, la crainte de voir un épisode de mauvais temps empêcher les ouvriers de rejoindre la plaine le temps d’un week-end: malgré la beauté du lieu, la plupart se réjouissent de voir le chantier arriver à son terme.

Rénovation de la cabane du Trient, Trient (VS)

 

Maître d’ouvrage
CAS, section Les Diablerets

 

Architecture et DT
savioz fabrizzi architectes, Sion

 

Génie civil
Kälin & associés, Lausanne

 

Ingénieur CVS-physicien
Acrowatt, Martigny

 

Ingénieur sécurité incendie
ECOfireconcept, Venthône

 

Ingénieur en gestion des eaux usées
Vuna, Dübendorf

 

Altitude
3170 m

 

Dates
Concours: 2019; ­réalisation: 2022-2023

 

Volume SIA 416
1290 m3

 

Coûts
3 mio CHF

Articoli correlati