Casa a Muzzano
Giulia & Hermes Killer architetti su Piero Conconi
«Le case degli altri» è un dossier che invita gli architetti al dialogo: espazium.ch ha sottoposto a ogni partecipante – tutti progettisti attivi nella Svizzera italiana – tre case realizzate nella regione, chiedendogli di sceglierne una e commentarla, senza lesinare analisi e critiche. Sono quindi, questi, testi di architetti su architetti, che portano avanti, nello spazio pubblico di una rubrica virtuale, una riflessione sulla progettazione in Ticino. La serie continua con Giulia Augugliaro e Hermes Killer che commentano un progetto di Piero Conconi.
La casa è opera dell’architetto Piero Conconi e si trova a Muzzano, lungo la strada che dal nucleo storico conduce al cimitero. Benché le immediate vicinanze siano dominate da alte siepi e brutte costruzioni, il sito è di grandissimo interesse paesaggistico. L’edificio è infatti posizionato in cima al dosso che divide il bacino del Ceresio, a ovest, dal laghetto di Muzzano, a est.
A questa simmetria territoriale, data dalla contrapposizione tra i due specchi d’acqua, il progetto risponde con una struttura a sua volta simmetrica. La casa non ha un fronte e un retro, bensì due fronti tra loro speculari. Entrambe queste facciate sono caratterizzate dalle solette aggettanti che formano le ampie terrazze. La casa si distanzia in questo modo dal linguaggio residenziale per stabilire un dialogo con una scala più vasta, quella del territorio.
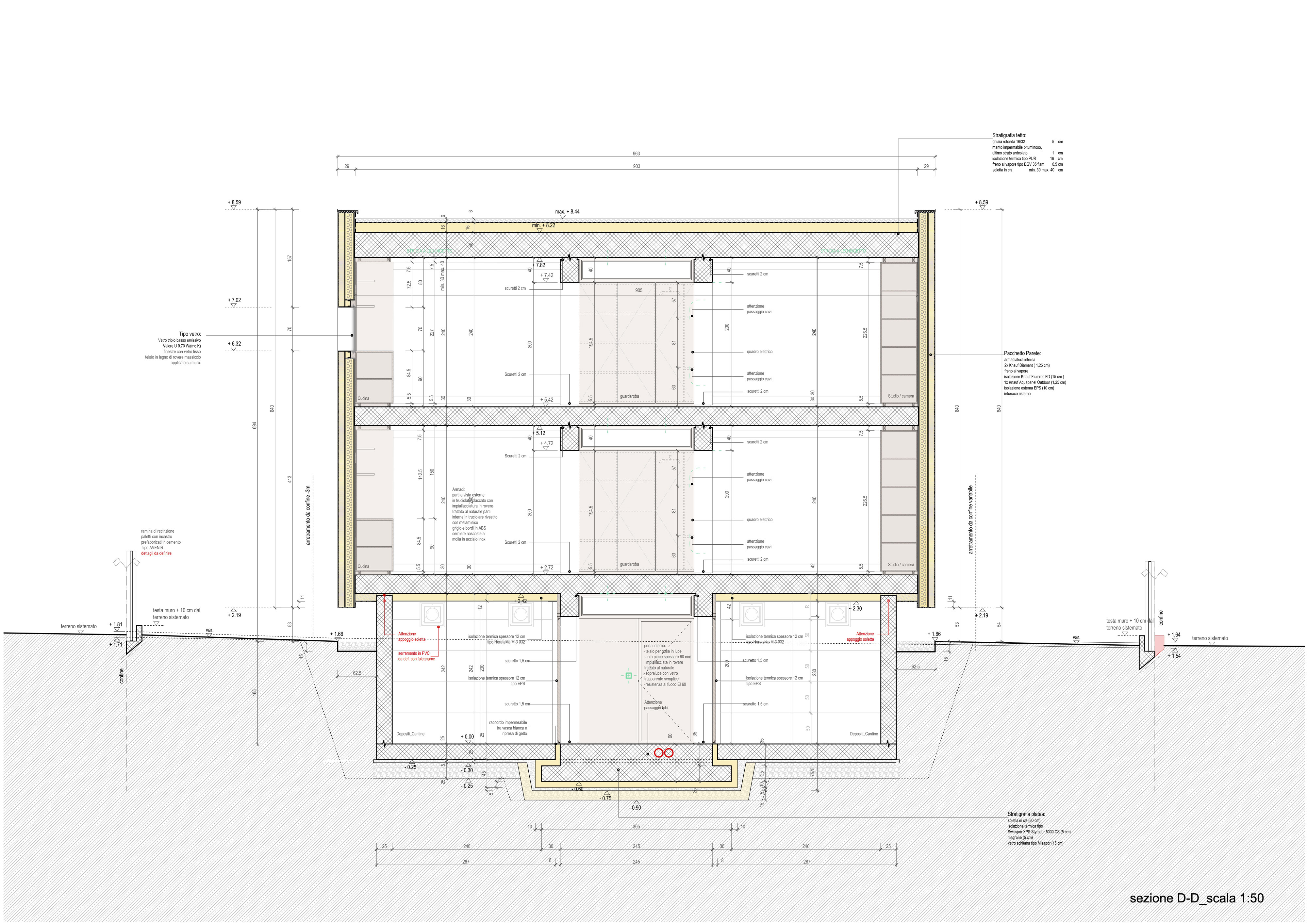
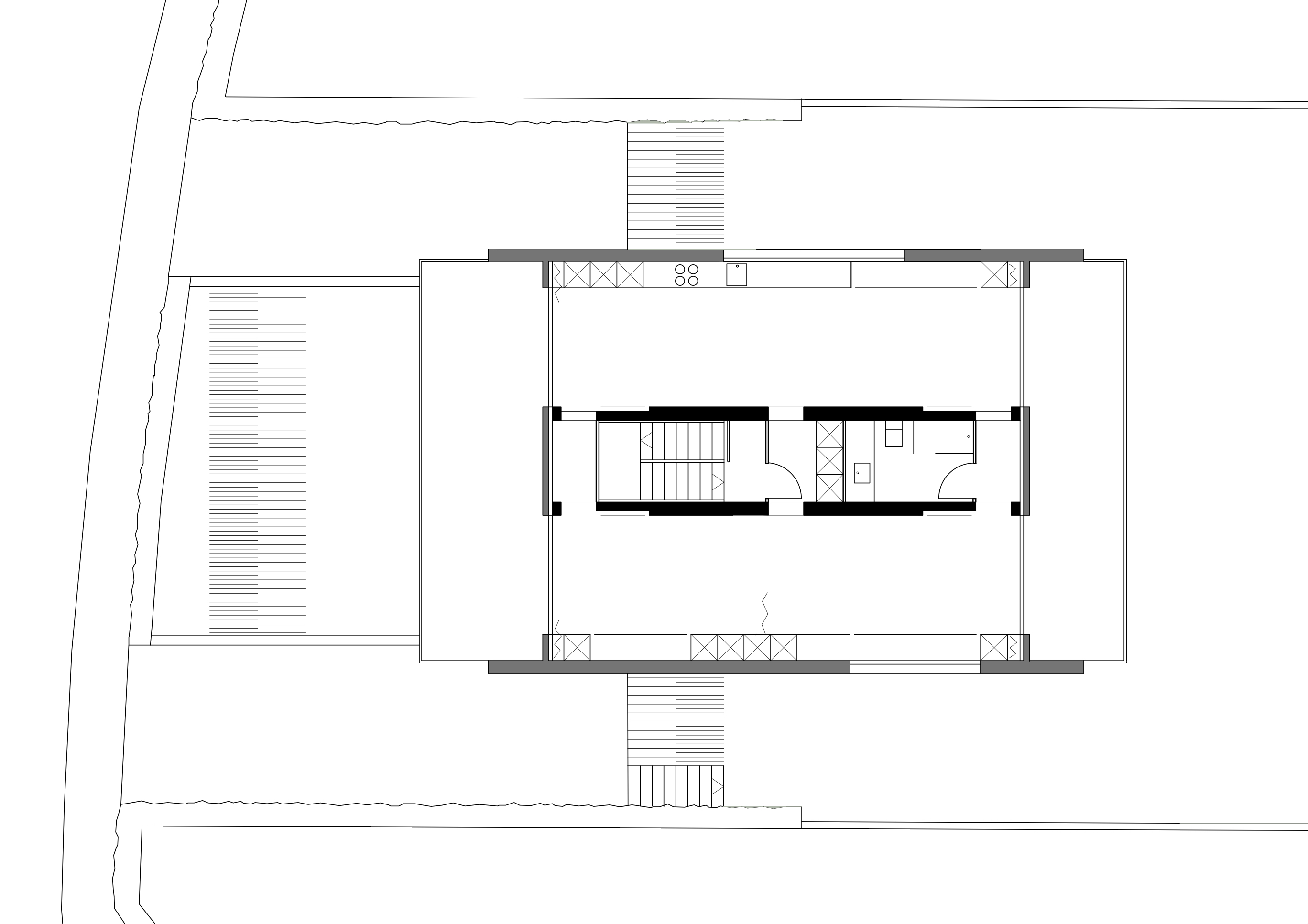
Questa specularità, che è tipica dei ponti più che delle case, si estende e si intensifica negli spazi che attraversano longitudinalmente la struttura. Le unità abitative, disposte una per piano, si dividono in due spazi identici tra loro, due tunnel di sezione pressoché quadrata, orientati sull’asse est-ovest: da un lato la zona giorno e dall’altro la zona notte, suddivisa in due da una parete a soffietto. La scala, l’ingresso e i bagni sono raccolti in una fascia centrale delimitata dalle due pareti in calcestruzzo che da sole sorreggono l’intera casa.
La suddivisione longitudinale tra spazi primari e spazi di servizio, gli uni ampi e passanti, gli altri racchiusi e introversi, rafforza la relazione che la casa ha con il suo contesto. Una relazione che va ben oltre il rapporto visivo e che influenza il modo con cui ci muoviamo all’interno dell'edificio. A partire dal momento in cui si accede all’abitazione, nell’esatto centro geometrico del piano, l’orientamento degli spazi si allinea e si sovrappone all’orientamento degli elementi che marcano il territorio circostante. La fenomenologia dell’abitare si intreccia così con la geografia delle colline luganesi.
La costruzione della casa segue la logica dell’assemblaggio. I diversi elementi costruttivi sono separati tra loro da un preciso sistema di fughe e giunti. Ciascun elemento, sia esso una parete, una soletta o un parapetto, appare come un corpo concreto, che si distingue per il suo materiale, il suo peso, la sua estensione e la sua profondità. Esposti per ciò che sono, questi elementi illustrano quasi didatticamente la loro funzione costruttiva. I pavimenti, che non sono altro che la superficie levigata delle solette in calcestruzzo, rivelano la natura minerale della struttura. L’involucro, costituito da due pareti intonacate sospese a due spanne dal terreno, dichiara invece la propria leggerezza. Da questi aspetti deduciamo che l’immagine cristallina della costruzione non è il frutto di complicati escamotages tecnici, bensì il risultato di un processo di sintesi tra il disegno geometrico e lo studio approfondito degli odierni criteri costruttivi, imposti dalle norme e dal mercato.
La casa di Muzzano incarna la sperimentazione di un rigore costruttivo proprio e contemporaneo in grado di emanciparsi dal linguaggio tardo moderno che ancora oggi domina la più rinomata architettura ticinese.
Della casa di Muzzano non critichiamo né il concetto iniziale, né la sua costruzione, se osservati isolatamente, ma il rapporto dissonante tra questi due aspetti, che nel contesto progettuale rimangono indipendenti e isolati tra loro. Da un lato, le idee precise, emerse dalla lettura del luogo, vengono contraddette dall’impostazione della struttura verticale, la quale viene trattata più come un nucleo che come un sistema di pareti parallele. Dall’altro, l’elaborato linguaggio tettonico, dove struttura, tamponamento e involucro si differenziano per forma e materiale, parrebbe rispondere a un progetto diverso, in cui gli elementi che descrivono lo spazio sono liberi e persino in contrasto con la struttura primaria.
Questa incongruenza si manifesta in maniera evidente se contrapponiamo all’edificio finito la fotografia di cantiere a struttura grezza ultimata. In quest’immagine le piastre dei piani, in aggetto sui quattro lati, sembrano fluttuare magicamente nell’aria. Gli angoli liberi, privi di alcun supporto, reclamano a gran voce un’apertura ampia e non direzionata. Il considerevole sforzo statico viene però nascosto dietro le due facciate che fiancheggiano la struttura grezza, annullando così il suo potenziale di dare slancio e compressione agli spazi ristretti delle abitazioni. Proprio perché ininfluente nel rapporto tra struttura e spazio architettonico, tale sforzo viene di fatto gettato al vento, dimenticato.
Il riverbero della dissonanza tra concetto e costruzione si sente anche negli ambienti interni. Lo osserviamo nella volontà di nascondere la parete perimetrale con il blocco cucina-guardaroba, il quale viene forzatamente esteso su tutta la lunghezza dello spazio. Se seguiamo con lo sguardo il movimento che ambisce a fare da ponte tra i due laghi, notiamo che questo flusso si incaglia e si inceppa nelle nicchie del mobilio fisso. Questo elemento ligneo viene infatti concepito come se lo spazio fosse direzionato verso la parete, come accade ad esempio in una controfacciata, e non lungo la parete, come dovrebbe accadere in questi spazi passanti.
L’incompatibilità tra il concetto spaziale e la strategia costruttiva rivela un disinteresse sempre più diffuso verso l’indispensabile rapporto di consequenzialità che tiene insieme le diverse scelte architettoniche, altrimenti sparse e sconnesse, a formare quella complessa rete di idee che chiamiamo progetto.
Giulia & Hermes Killer architetti
Luogo Muzzano (Lugano)
Committenza Privata
Architettura Studio Piero Conconi Architetto, Lugano
Collaboratori Piero Conconi, Lorenzo Spozio
Ingegneria civile Ingegneri Pedrazzini Guidotti, Lugano
Fisica della costruzione Andrea Roscetti
Date 2014-2016
Qui si possono leggere tutti i testi del dossier «Le case degli altri», e qui l'editoriale. Questo scritto fa parte della seconda "stagione" della serie, composta da tre puntate:
- Mihail Amariei su Michele Arnaboldi Architetti: Casa Bacciarini a Gorduno
- Anne-France Aguet su Pesenti Quadranti Hubmann: Case a Collina d’Oro
- Giulia & Hermes Killer architetti su Piero Conconi: Casa a Muzzano
Questo dossier è concepito come un luogo di riflessione comune; per commenti, suggerimenti, critiche si può scrivere a web [at] espazium.ch (questo indirizzo).