Ei­ne Büh­ne für Aa­rau

Mit der Wiederbelebung der Alten Reithalle Aarau als Aufführungsort verwandeln sich die schmalen Gassen drumherum allabendlich in ein Foyer. Durch die Einbeziehung der Umgebung gelingt es Barão-Hutter, den kolossalen Innenraum uneingeschränkt zu erhalten und zur Stadt zu öffnen.

Data di pubblicazione
02-12-2022
Hella Schindel
Innenarchitektin und Fachjournalistin, Korrespondentin Architektur/Innenarchitektur

Mit dem Wettbewerbsgewinn für den Umbau der Alten Reithalle in Aarau gründeten die frisch diplomierten Architekten Ivo Barão und Peter Hutter ihr Atelier und stürzten sich in ein Projekt, das die ersten Jahre ihres Berufslebens entscheidend prägte. Umgekehrt ist nun der Enthusiasmus, den sie in ihr Erstlingswerk investierten, dem Bau eingeschrieben.

Dabei waren sich die beiden Architekten zuerst keineswegs sicher, ob ihr Beitrag überhaupt zugelassen werden würde, denn sie setzten sich über die Forderung nach zwei unabhängig und gleichzeitig nutzbaren Veranstaltungssälen hinweg. Letztlich überzeugte die Idee, zwei Bühnen zu bieten, die wechselweise bespielt werden können. Der Raumeindruck der stützenfreien Halle, den die Architekten als grundlegende Qualität erkannten, liess sich nur unter Verzicht auf eine starre und damit akustisch wirksame Trennung in zwei Bereiche aufrecht erhalten. Indem die Bauherrschaft dem unkonventionellen Ansatz folgte, bewies auch sie Mut. 

Konzentrierte Interventionen

Im Austausch mit den zukünftigen Nutzergruppen, die den Raum ab 2011 provisorisch bespielten, kristallisierten sich neben den räumlichen Qualitäten auch inhaltliche Werte heraus, die die Planenden in ihre Konzeption einfliessen liessen. Allem voran stand der Erhalt und die Wiedererkennbarkeit der Reithalle.
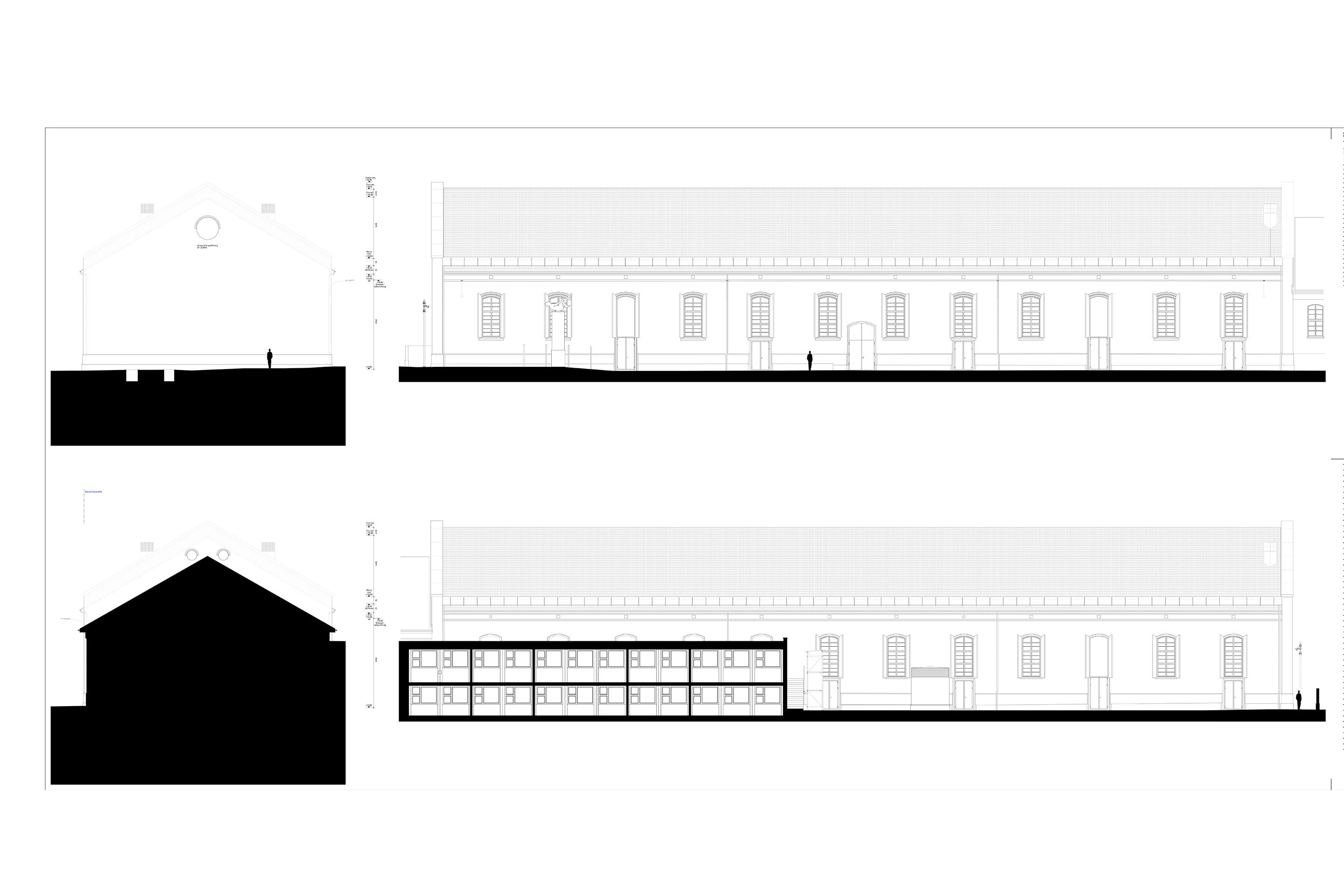
Die einen Meter dicken Aussenmauern aus Jurakalkstein und ein mächtiger Dachstuhl mit offenem Gebälk umschliessen die Halle, die noch bis 1974 von der Kavallerie der Aarauer Garnison genutzt wurde. Um diese Atmosphäre zu erhalten, haben die Planenden massive Eingriffe auf die Bereiche unter dem Boden und über dem Dachstuhl konzentriert.

Ein Husarenstück war das Aufbringen eines neuen Dachs über dem bestehenden. Mit gleicher Neigung, auf den überdimensionierten Aussenmauern aufgelagert, aber von den Fassaden leicht zurückgesetzt, nimmt es die Wind- und Schneelasten auf. Es trägt die neue Wärmedämmung und schalltechnisch wirksame Schichten. Das von der Deckung befreite und dadurch entlastete Gebälk des Bestands kann nun seinerseits die schwere Bühnentechnik aufnehmen, die über vier Schwerlastträger im ganzen Raum zugänglich ist. An und in den Trägern lassen sich 64 Kettenzüge verschieben.

Der andere «unsichtbare», aber bedeutende ­Eingriff betrifft den Boden. Anstelle des weichen Gemischs aus Spänen, Lehm und Schmutz wurde eine Sandschicht eingebracht, in der ein Netz aus Versorgungsleitungen sowie die Fussbodenheizung für eine Grundtemperierung verlegt sind. Unter dem Sand befindet sich eine extrem belastbare Ortbetonplatte. Den oberen Abschluss bildet ein traditioneller Bühnenboden aus schwarz gestrichenen Pitch-Pine-Dielen. Dieser zieht sich – analog zu dem früheren «Anreitschutz», einer pferderückenhohen Verblendung – mit einer leichten Neigung an den Aussenwänden entlang.

Den Hohlraum dahinter nutzten die Planenden für die Leitungsführung von Abluft und Zuluft. Grosszügige Dimensionen ermöglichen die geräuschlose Luftbewegung darin, sodass die für den Konzertbetrieb so wichtige Stille nicht beeinträchtigt wird. Der direkte Zugang durch zehn hohe, durchaus theatrale Tore an beiden Längsseiten gewährleistet eine schwellenlose Verbindung nach aussen. Als Symbol für ein demokratisches Miteinander benutzen Bühnenmitarbeitende und Publikum die gleichen Wege, die je nach Positionierung der Bühnen an entsprechender Stelle geöffnet werden.

Als eingestellte Gerüste sind sowohl die Zuschauertribünen als auch die Bühnenpodesterie mobil. Ein Komplex ist in der akustischen Ausarbeitung für den Theaterbetrieb, der andere für den Konzertbetrieb optimiert. Die sechs Zuschauertribünen können bewegt, verbunden oder auch ganz herausgeräumt werden. Ihre Materialität orientiert sich an temporären Bauten und setzt sich von der Massivität der Raumschale ab.
Masse für die Bodenhaftung

Damit die konstruktive Hülle des Bestands unverkleidet und frei von technischen Einrichtungen bleiben kann, konzentrieren sich die Nebenräume in zwei eingestellten Volumen. Sie stehen als Kuben aus schwarz gefärbtem Ortbeton vor den kurzen Seiten im Saal, ohne dabei die Decke oder Wände der Halle zu berühren. Um sie eingiessen zu können, mussten das bestehende Dach geöffnet, einzelne Sparren nummeriert und ausgebaut,  dann wieder eingebaut und anschliessend das Dach wieder geschlossen werden. In ihrem Inneren nehmen sie im Erdgeschoss Sanitäranlagen, in den zwei Obergeschossen akustisch entkoppelte Einspielräume und Garderoben auf.

Ein stimmbarer Saal

In der Halle bilden die Kuben das optische Rückgrat der beiden Bühnen und sind auch schalltechnisch bedeutend. Ihre äussere Schale ist zur Bühne hin in leicht aus der Flucht gedrehte Felder unterteilt, die die Schall­wellen diffus reflektieren. Zusätzlich sind insgesamt 15 akustisch wirksame, individuell steuerbare Textilien entlang der Mauerwände und 12 Deckensegel über der Konzertbühne verteilt, die sich je nach betrieblicher Situation – die Anforderungen bei Konzerten und Bühnenstücken fallen höchst unterschiedlich aus – justieren lassen. In Abstimmung mit dem Akustiker Martin Lachmann, der einen Sinn für unorthodoxe Lösungen hat, haben die Architekten das bestehende Mauerwerk nicht mal vom Staub befreit – denn auch diese kleinteilige Oberfläche könnte zur angenehmen Streuung der Schallwellen beitragen.

Um den Saal schallschutztechnisch abzugrenzen und zu verdunkeln, lassen sich die aussenliegenden Läden zuklappen. Dieser Vorgang hat sich zugleich als Ersatz für den «dritten Gong» und das Herunterdimmen des Kronleuchters etabliert, wie es in traditionellen Theaterhäusern Usus ist. Die Möglichkeit, integrativ mit dem Tageslicht zu arbeiten, ist ein anregende Alternative und eröffnet den Bühnenschaffenden Freiraum für ungewöhnliche Formate.

Zwischen den beiden Zuschauertribünen befindet sich ein Raum, der als Empfang und Bar benutzt werden kann. Durch bewegliche textile Wände grenzt er sich von den Rückseiten der Zuschauertribünen ab. Mit der veränderlichen Position und Breite, die theoretisch bis auf einen Meter zusammengeschnurrt werden kann, wandert auch ein grosses Tuch mit, das an Schwer­lastträgern unter der Decke montiert ist. Es verleiht dem Zwischenraum eine eigene Atmosphäre mit gedämpfter Akustik.

Die konsequente Ergänzung des Bestands mit schwarzen Textilien, feuerverzinktem Stahl, blankem Aluminium und zwei kompakten Technikkörpern, die in der Dunkelheit des Spielbetriebs verschwinden, spricht in ihrer Zurückhaltung die Sprache der Bühnen. In architektonischer Hinsicht bleibt der grosse Auftritt weiterhin dem Saal selbst überlassen. Bemerkenswert ist die flexible Bespielbarkeit und die unkonventionelle weil so nahbare Öffnung in die Stadt.

Die ausführliche Version dieses Artikels ist erschienen in TEC21 39/2022 «Die Zi­vi­li­sie­rung der Ka­ser­nen». Jetzt bestellen!

Kaserne Aarau

 

Bauherrschaft
Stadtbauamt Aarau


Architektur, General­planung
Barão-Hutter, St. Gallen


Gesamtleitung, Generalplanung
Ghisleni Partner, Zürich


Tragwerksplanung
Borgogno Eggenberger + Partner, St. Gallen


HLKS-Planung
Anex Ingenieure, Zürich


Konzertakustik
applied acoustics, Gelterkinden


Holzbau und Brandschutz
Makiol Wiederkehr, Beinwil am See


Theatertechnik
Theaterplanung, Baar


Medientechnik
Tingo, Muri


Beleuchtung
Bartenbach, Aldrans (A)


Auftragsart
Offener einstufiger Projektwettbewerb 2012, erster Platz


Fertigstellung
2021


Baukosten (BKP 1–9)
20.45 Mio. Fr.


Grösse und Volumen Halle
2000 m² / 25 000 m³

Etichette

Articoli correlati