Me­na­ge­rie in Mu­ri

Architektin Tilla Theus hat die Gasthöfe Ochsen und Adler in Muri AG ­instand gesetzt und zum Hotel Caspar erweitert. Das Projekt liest sich wie eine Reise durch Zeit, Massstäbe und Bedeutungsebenen. Aussergewöhnliche Handwerkskunst und der Blick fürs Detail sind die über­geordneten Klammern dieser gestalterischen Tour de Force.

Data di pubblicazione
08-09-2022
Tina Cieslik
Head of Multimedia | espazium digital lab; Korrespondentin Architektur/Innenarchitektur TEC21

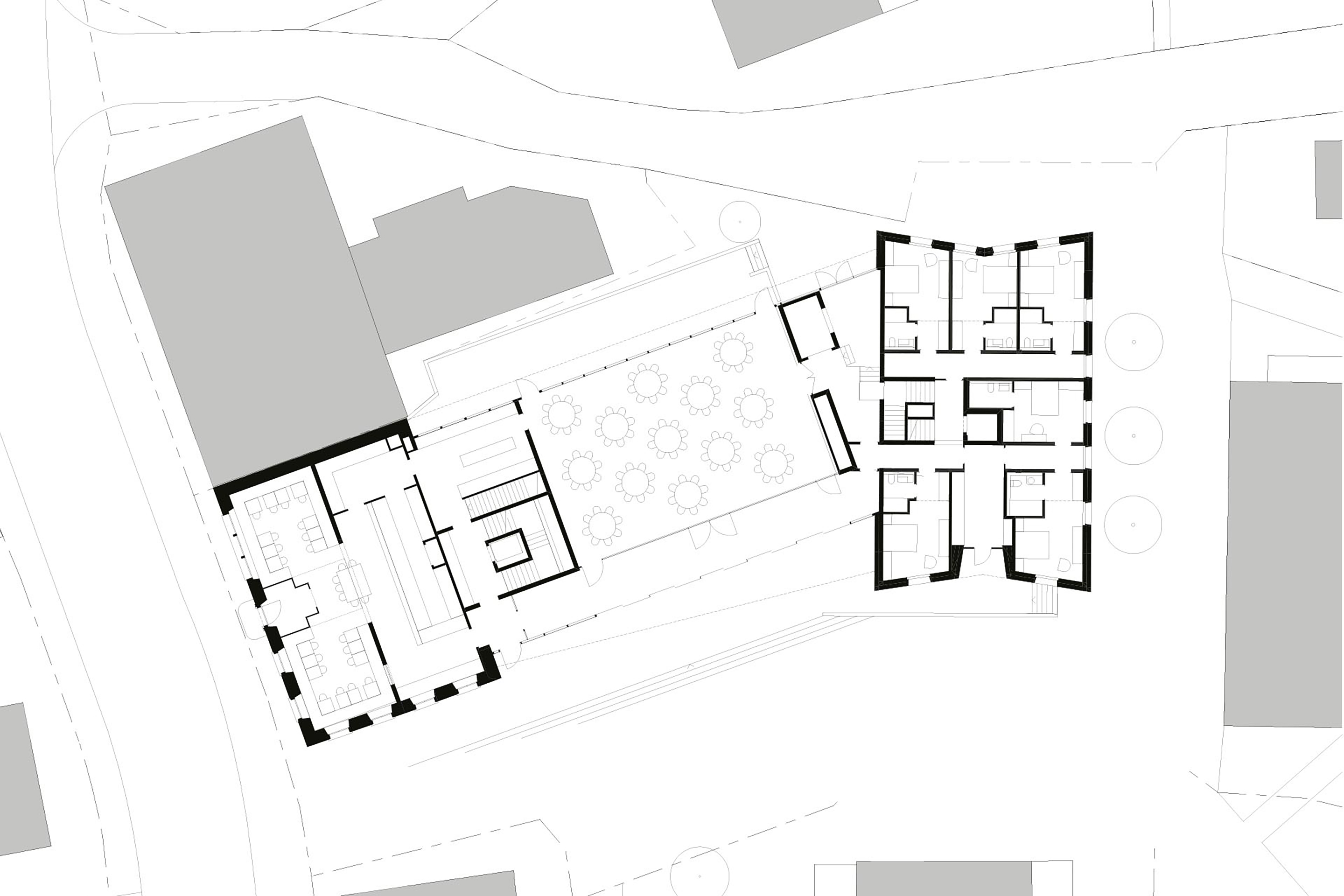
In der Schweiz gibt es 108 Ochsen, 104 Adler und mindestens zwei Wölfe. Aber nur einen Caspar. Die Rede ist natürlich nicht von einheimischer Fauna, sondern von Gasthöfen, Restaurants und Hotels, benannt nach ebenjenen Tieren. Das im Mai 2022 eröffnete Drei­sternehotel Caspar im aargauischen Muri ist in dieser Runde eine Besonderheit. Es ist ein Ensemble aus den beiden alteingesessenen Gasthöfen Adler (Baujahr 1575) und Ochsen (Baujahr 1726). Ergänzt werden die beiden historischen Betriebe durch das neu erbaute Haus Wolf. Allerdings ist der Name des Letzteren doppeldeutig – wie so einiges an diesem Projekt: Der Neubau steht am Ort des Geburtshauses des Malers Caspar Wolf (1735–­1785), einem Pionier der Hochgebirgs­malerei.

Die Geschichte der Gasthöfe ist eng mit dem Kloster Muri verknüpft. Die 1027 von Ita von Lothringen, der Stammmutter der Habsburger, gegründete Benediktinerabtei war einst das reichste Kloster der Schweiz und ist noch heute die Grablege der Habsburger. Bekannt ist sie jedoch weithin für ihr reichhaltiges Kulturprogramm, auch das örtliche Pflegeheim ist hier untergebracht. Kurz: Das Kloster ist nach wie vor ein wichtiger Teil des öffentlichen Lebens im Freiamt.

Rund 8000 Menschen leben in Muri, mehr als zehn Restaurantbetriebe kümmern sich um das leibliche Wohl von Einheimischen und Gästen. Trotz seiner langen Geschichte kam der Gasthof Adler in den letzten Jahren in finanzielle Schwierigkeiten. Lokale Akteurinnen und Akteure, darunter der ehemalige ­ Dorf- und Bezirksarzt und ein hotelerfahrenes Unternehmerpaar, entwickelten daraufhin die Idee, die ­beiden eigentlich konkurrierenden Gasthöfe Ochsen und Adler unter einer Leitung zusammenzufassen und zwecks Rentabilität um einen Neubau mit Hotelzimmern zu ergänzen – das Haus Wolf.

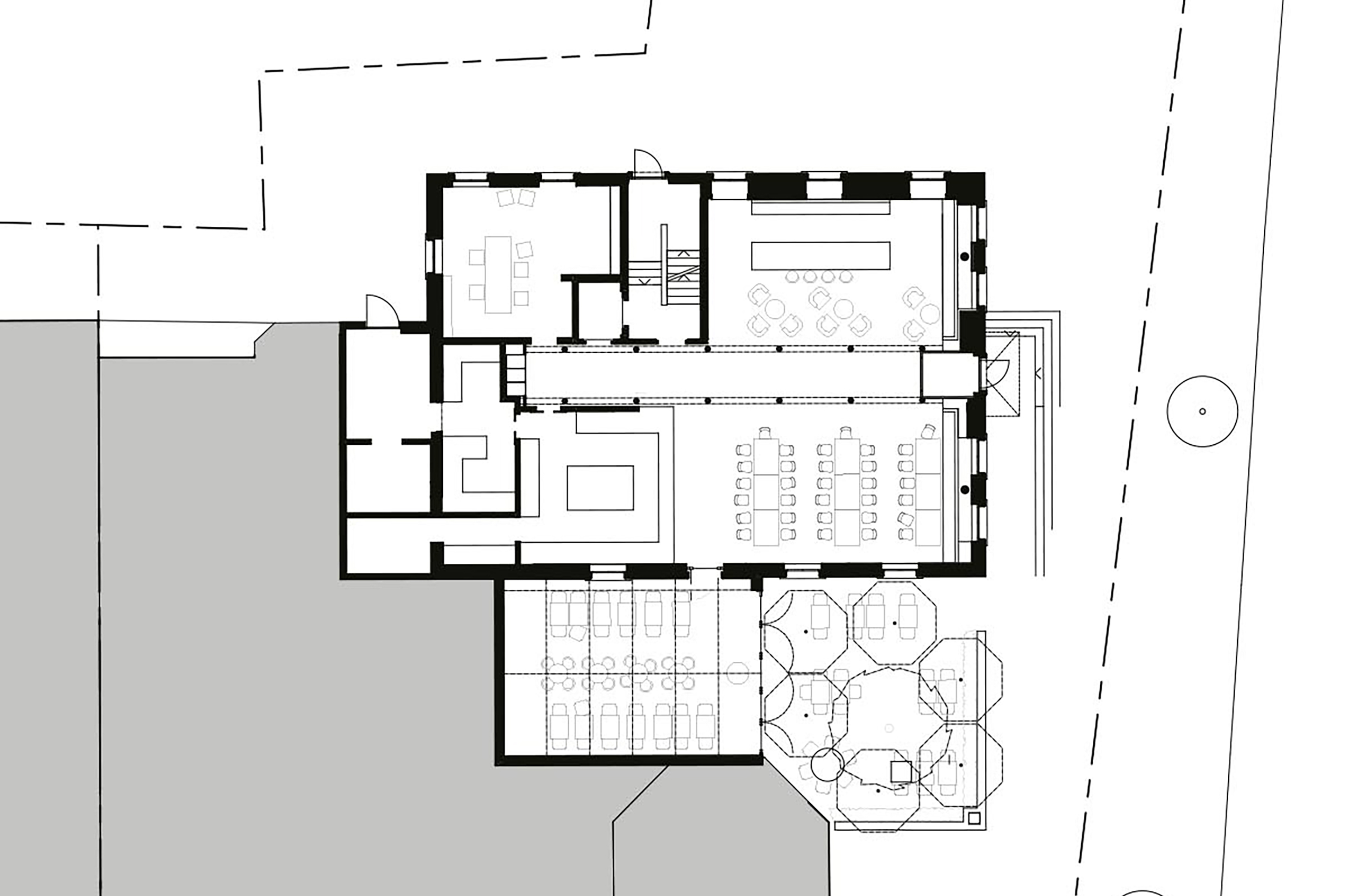
Der Neubau steht nun westlich des Gasthofs Ochsen, verbunden sind die beiden Gebäudeteile mit einem Pavillon, in dem ein Veranstaltungssaal untergebracht ist. Der Gasthof Adler liegt in Sichtweite an der Marktstrasse und beherbergt ein Restaurant, Hotelzimmer sowie die Rezeption für alle drei Häuser. Insgesamt sind mit der von Tilla Theus und Partner realisierten Umgestaltung 50 Hotelzimmer entstanden, verteilt über die drei Häuser Adler (21), Ochsen ( 4 ) und Wolf (25). Die beiden Restaurants im Ochsen und im Adler ergänzen sich mit unterschiedlich ausgerichteter Küche, der Veranstaltungssaal komplettiert das Angebot.

Haus Adler: überraschende Entdeckungen

Die umfangreiche und langfristige Investition der Bauherrschaft in das neue Hotelensemble entstand auch aus dem Wunsch heraus, Gästen und Beteiligten des Kulturprogramms im Kloster ein ansprechendes Gastronomie- und Übernachtungsangebot bieten zu können.

Diese Verbindung zum Kloster geht weit zurück, auch wenn sie nicht immer so harmonisch war. Der dortige Abt war einst auch für die Schankrechte zuständig. Diese Macht wusste er zu nutzen: Dem Gasthof Adler, vis-à-vis des Klosters gelegen, waren Fensteröffnungen lediglich im Erdgeschoss erlaubt. Die Obergeschosse blieben vermauert – zu gross waren die ­Befürchtungen, niederes Volk könnte über die Klostermauern schauen und die mönchische Kontemplation stören.

Die eigenwillige Gestaltung, immerhin an der repräsentativen Fassade zur Marktstrasse hin, machte der Wirt durch Kreativität im Innern wett: Malereien aus der Barockzeit zeigen in den Gästezimmern an der Nordseite stilisierte Fenster. Nach der Klosteraufhebung 1841 bekam die Nordostfassade ­echte Fenster; die Malerei im Innern blieb teilweise erhalten.

Lesen Sie auch: «Wir gehen den Spuren der Geschichte nach – wie Detektive» – Interview mit Tilla Theus über das Drei-Häuser-Hotel Caspar in Muri

Malereien waren auch ein bestimmendes ­Element beim jetzigen Umbau – zum Teil unerwarteterweise. Ursprünglich sahen die Planerinnen und Planer vor, das unter Volumenschutz stehende Haus Adler mit einer Kernsanierung instand zu setzen. Projektleiter Holger Widmann erzählt: «Ich war auf dem Weg zur Baustelle beim Haus Wolf und entdeckte beim Vorbeigehen zufällig die historischen Decken im entkernten Haus Adler.» Die barocken Malereien waren der Denkmalpflege nicht bekannt. Ihr Fund führte zunächst zu einem Baustopp und dann zur Neukonzeption der Innenarchitektur. Heute sind die restaurierten Decken in zwei Zimmern im 1. Ober­geschoss zu sehen.

Adler, Restaurant: fremder Wolf und Faux-Marmor

Neben den historischen gibt es im Adler auch neue Malereien zu sehen. Das Haus beherbergt neben Gästezimmern und Restaurant die Rezeption für das gesamte Hotel, seiner prominenten Lage an der Marktstrasse geschuldet. Die Rezeption ist in die Bar inte­griert, das Restaurant mit offener Küche, Bar, einem Wintergarten und einer Terrasse bietet verschiedene Aufenthaltsmöglichkeiten.

Die Wände zieren hoch­skalierte und zu einem Motiv zusammengesetzte Landschaf­ten aus Bildern von Caspar Wolf. Sie wurden zunächst auf Tapeten gedruckt, dann übermalt und anschlies­send mit einer weiteren Schicht aus auf­gemalten Rasterpunkten noch stärker verfremdet. So entsteht ein umlaufendes Motiv, das die Malerei Wolfs gleichzeitig referenziert und in einen zeitgenössischen Bezug setzt.

Das Zusammenspiel von Farben, Formen, Materialien und Zeitschichten wirkt mitunter recht dicht, ist aber durchaus komponiert, wie Widmann betont: «Wir wollten nicht, dass das Gebäude dekoriert wirkt, sondern dass es einen Charakter hat.»

Gasthof Ochsen: Variationen in Holz

Das ist gelungen. Etwa 50 m südwestlich des Adler liegt der Gasthof Ochsen, je nach Standpunkt in Sichtweite. Aus den einstigen Konkurrenten sind Kollegen gewordenDie Gaststube im Ochsen ist dreigeteilt, der Eingang liegt zentral an der Südostfassade zur Seetalstras­se. Links davon befindet sich ein Gastraum, rechts sein gespiegeltes Pendant. Im hinteren Raumteil liegt neu die offene Küche. Der Bau von 1726 steht unter Sub­stanzschutz, was für den Umbau bedeutete, dass die Architektinnen und Architekten den Bestand, wo sinnvoll und möglich, erhielten.

Die beiden Stuben sind verwandt, aber nicht identisch: Beide holzgetäfert und mit umlaufenden ­flaschengrünen, ledergepolsterten Bänken traditionell eingerichtet, unterscheiden sie sich in den Details: In der Stube links vom Eingang stammt der Täfer aus den 1940er-Jahren. Er blieb weitgehend erhalten, die Planerinnen und Planer frischten ihn lediglich auf. Ein bei den Umbauarbeiten entdecktes Stück Tapete mit einem floralen Motiv diente als Inspiration für eine flächendeckende Schablonenmalerei in Bronzetönen. Ein irisierendes Pigment sorgt darin für einen subtilen Schimmer.

Zusammen mit der Kassettendecke aus den 1980er-Jahren, die von der anderen Seite in diese ­Stube gezügelt wurde, entstand aus den Bauteilen ­verschiedener Epochen eine bemerkenswerte gestal­terische Einheit. Komplettiert wird sie durch die ­Gaststube rechterhand, die das Muster in einem kleineren Massstab variiert. Die Rahmen der Täfer spielen einmal mehr mit der Wahrnehmung: Mittels traditioneller Biermalerei wirkt das verwendete Nadelholz wie edler Nussbaum.

Haus Wolf und Veranstaltungssaal

Verbindung zum Haus Wolf und gleichzeitig Herzstück des Ensembles ist der 170 m2 grosse Veranstaltungssaal. Von aussen ist er mit schimmernden Schindeln aus eloxiertem Aluminium bedeckt, im Innern beeindruckt die flächige Gestaltung aus geknickten Eiche­nlamellen – über 21000 Elemente sind es. Sie verbergen die Technik und schaffen eine angenehme Akustik.

Der eigentliche Clou liegt aber in ihrer Herstellung. Durch Zuschnitt mit der CNC-Säge gelang es dem beauftragten Unternehmer, praktisch keinen Abfall zu produzieren. Der Verbindungsgang neben dem Saal dient wahlweise als Foyer oder als Durchgang zum neu gebauten Haus Wolf. Kubatur und Ausrichtung des dreigeschossigen Neubaus orientieren sich an seinem Nachbarn, dem Ochsen, ebenso wie Lage und Grösse der Fensteröffnungen.

Der auffällige Knick an der Achse der Ostfassade und der nach vorn geneigte Giebel sind eine Neuinterpretation des Giebels des Ochsen mit seinen Volumen aus Krüppelwalmen und dem konkaven Dachunterseiten­abschluss. Im Innern ordneten die Planer die Zimmer entlang zweier kurzer Korridore an – es sollten kein endlos langen Hotelfluchten entstehen.

Auch sonst erinnert nichts an 08/15-Hotels, obwohl die heute üblichen Standards in allen drei Häusern natürlich eingehalten werden. Im Gegenteil: Die Räumlichkeiten sind vielschichtig im besten Sinn; sie überraschen, inspirieren, überfordern punktuell vielleicht auch – kurz: Sie bilden eine ungewöhnliche und mutige Ausnahme unter den heutigen oft bis zur Austauschbarkeit glatt gestylten Hotellandschaften.

Die ausführliche Version dieses Artikels ist erschienen in TEC21 28/2022 «Das Drei-Häuser-Hotel».

Hotel Caspar, Muri

 

Bauherrschaft
Hotel Muri, Muri AG

 

Architektur
Tilla Theus und Partner, Zürich

 

Baumanagement
HG Baumanagement, Winterberg

 

Örtliche Bauleitung
Langenegger Architekten, Muri

 

Tragkonstruktion, Bauphysik /Akustik
Walt Galmarini, Zürich

 

Landschaftsarchitektur
Hager Partner, Zürich

 

HLKS-Planung
Jungenergie, Zürich

 

Elektroplanung
Bürgin & Keller, Adliswil

 

Lichtplanung
Lichtdesign Robert Gratzel, Innsbruck (A)

 

Geschossfläche
Ochsen, Saal, Wolf 3375 m2; Adler 1542 m2

Articoli correlati