Gewinn im Klei­nen

Der Studienauftrag «Tiny House» für eine Parzelle am Zürcher Zollikerberg läutet ein Umdenken der privaten Investoren ein: Nicht die modulare und damit möglichst effiziente Konstruktion gab den Ausschlag für das ­Siegerprojekt von Jakob Steib mit Gmür & Geschwentner Architekten, ­sondern die gelungene ­topografische Einpassung.

Data di pubblicazione
06-01-2020
Hella Schindel
Innenarchitektin und Fachjournalistin, Korrespondentin Architektur/Innenarchitektur

Es ist ungewöhnlich, dass die städtebauliche Setzung bei den Bewertungskriterien eines privaten Studienauftrags an erster Stelle steht. Zumal es sich um eine überschaubare Wohnbebauung für neuartige, bodennahe Mikrowohn­einheiten am Rand der Stadt handelt. Die Investoren haben ein individuelles Anforderungsprofil ausarbeiten lassen, dessen explizites Ziel es war, eine «… zukunftsorientierte Arealnutzung im Sinne einer nachhaltigen Verdichtung mit einer starken Identität auf dem Areal zu realisieren», wie es im Jurybericht heisst. Sie setzen auf gut gestaltetes Wohnen, verbunden mit einem schonenden Flächenverbrauch als einem langfristig tragfähigen Konzept (Interview: «‹Wir wollen keinen Hype befriedigen›»).

Damit reagieren sie auf Interessierte, denen ein kontrolliertes, energieeffizientes Konsumverhalten wichtig ist und die zugunsten von durchdachten Mietwohnungen mit Naturbezug auf ein eigenes Haus verzichten. Im weiteren städtischen Raum von Zürich gibt es genügend Nachfrage nach derartigen Wohnformen. Ein entsprechendes Angebot ist allerdings noch mager, sodass das Konzept des «Tiny House» als Pilot einer neuen Sparte der Immobilienentwicklung zu betrachten ist.

Gefragt war eine Übertragung der Idee eines Einfamilienhauses auf die Lebensqualität in einer ­Mikrowohnung im verdichteten Kontext. Neben der topografischen Einbindung standen vielfältig nutz­barer Raum im Innen- und Aussenbereich sowie ein ausgewogenes Verhältnis zwischen Privatsphäre und Gemeinschaft im Fokus. Die ein- bis zweigeschossigen Wohnungen sollen kostengünstig realisierbar und entsprechend vermietbar sein.

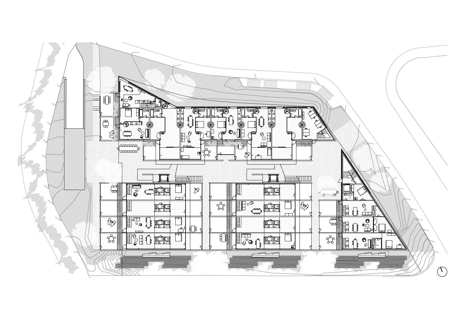
Diese Maxime brachte fünf deutlich verschiedene Entwürfe zum Thema «Tiny House» hervor. Allen gemeinsam ist eine starke architektonische Aussage – und das ist für sich genommen schon ein Erfolg. Das Gewinnerprojekt, das die Jury zur Weiterbearbeitung empfiehlt, entwickelt sich aus der Betonung des Aussenraums, der einen Mehrwert sowohl für das Quartier als auch für die Bewohner der neuen Bebauung darstellt. Sie wartet mit 39 Wohnungen und einer Hauptnutzfläche von rund 2200 m2 auf, was je nach Belegungsvariante – ob Singles, Paare oder sogar Kleinfamilien – zu einem individuellen Wohnflächenverbrauch von 40 bis 56 m2 führt. Verglichen mit der inländischen Wohnstatistik ist das massvoll: Einpersonenhaushalte beanspruchten 2017 eine durchschnittliche Wohnfläche von 80 m2; Mehrpersonenhaushalte knapp 40 m2 pro Kopf.

Ausnutzung von Luftraum

Zurück zum Sieger der Zolliker «Tiny House»-Studie: Ein eingerückter riegelartiger Baukörper schirmt die Parzelle von der viel befahrenen Forchstrasse ab. Zwischen ihm und drei weiteren kleineren Häusern bilden Grünflächen, Wege und Plätze einen auch vertikal ­vielfältig gegliederten Raum. Das von den Gebäuden umschlossene Areal ist als teils privater, teils gemeinschaftlicher Kommunikationsbereich für die Bewohnerschaft angelegt. Direkt von den Patios führen aussen liegende Treppen in die oberen Wohnungen. In der Geometrie der Dachlandschaft spiegelt sich das Thema der vertikalen Bezüge wider und macht die einzelnen Wohnungen ablesbar, ohne sie voneinander abzugrenzen.

Der auf diese Weise in Module gegliederte lange Wohnriegel korrespondiert in seiner Dimension mit den kompakten Häusern, die ihm gegenüberstehen, und auch mit der umgebenden Bebauung aus Einfamilienhäusern. Durch den geschickten Umgang mit Abgrenzungen und Sichtbezügen über die Diagonale und die ­Vertikale entsteht trotz den relativ engen Platzverhältnissen eine grosszügige Anlage. Die Metallverkleidung, die auch die Dächer überziehen soll, verbindet die drei Baukörper zu Teilen eines rhythmisierten Ganzen, das sich gegen aussen öffnet.

Aus diesem gestalterischen Ansatz resultiert auch die Qualität der Grundrisse im Innern. Die Häuser bergen eine ganze Reihe unterschiedlicher Typologien: Die geschossweise verdreht orientierten Grundrisse sind mal quadratisch kompakt, mal über die ganze Länge durchgestreckt mit einem Versorgungskern in der Mitte und zwei zum Aussenraum orientierten Bereichen. Mittels Schiebetüren lassen sich Rückzugsräume abtrennen. Soweit möglich, sind die Zimmer ­keiner spezifischen Nutzung zugeordnet, sodass die Wohnungen relativ unabhängig von zukünftigen Markt­entwicklungen funktionieren.

Grundrisse, die aus dem orthogonalen Raster ausscheren, sind der topografischen Anpassung der Häuser zu verdanken: Die aussen liegenden Wohnungen reagieren auf die Parzelle und bilden zum Teil dreieckige Raumformen. Eine Nutzung als Atelier oder Büro wäre an diesen exponierten Orten denkbar. Expressive Oberlichter im ersten Obergeschoss schaffen in den Räumen bewegte Tageslichtverhältnisse. Gerade diese mit wenigen Mitteln erreichbare Individualität stärkt den Entwurf. Aufgrund dieser «Ausnahmen von der Regel» spielt das Thema der Vorfabrikation beim Gewinnerprojekt keine besondere Rolle.

Das Modul als Ausgangspunkt

Der Entwurf von Beat Rothen Architektur hingegen zeigt einen konträren Ansatz: Er beruht ganz auf einer einfachen, modularen Systematik, die bereits in diesem frühen Stadium stark ausgearbeitet und nachvollziehbar dargestellt wurde. In seiner Konsequenz führt genau er aber trotz der für sich genommen hohen Qualität zu einer Lösung, die einen eigenständigen Ausdruck, eine individuelle Gestalt des Baufelds vermissen lässt. Ein flacher Riegel entlang der Forchstrasse lässt keine Verbindung zu den zwei anderen Baukörpern erkennen, die gegen Süden vorgelagert sind. Der Erschliessungsraum zwischen den Gebäuden scheint keine besonderen Merkmale zu haben. Hohe Hecken umschliessen die privaten Gärten und machen die Durchwegung zu einer monotonen Angelegenheit.

Die Wohnungen erstrecken sich über zwei oder drei Geschosse. Im Südteil öffnen sie sich zu mehreren Seiten, sodass angenehm belichtete Bereiche entstehen. Auffallend sind die in die Wohnräume integrierten Treppen, die trotz dem ökonomischen Umgang mit dem Platz teilweise raumprägend und grosszügig ausfallen. Die offene Beziehung der Räume in der Vertikalen lässt die gewünschte Atmosphäre eines Einfamilienhauses entstehen. Die Kritik der Jury, die den Entwurf als hoch attraktiv, qualitätvoll und gut vermarktbar bezeichnet, richtet sich hauptsächlich gegen die städtebauliche Setzung. Durch die Abgrenzung von privaten gegen gemeinschaftliche Flächen ist das Angebot von Aussenräumen konventionell und einer besonderen nachbarschaftlichen Kommunikation nicht förderlich.

Die Werte verschieben sich

Auch bei den drei weiteren Ansätzen galt das Augenmerk der Jury mehr der Einbettung der architektonischen Gestalt und dem ausgewogenen Verhältnis zwischen Privatheit und gemeinschaftlichen Bereichen als einer wirtschaftlichen Realisierbarkeit.

Galli Rudolf Architekten konnten mit einer gut gegliederten Grossform durchaus überzeugen. Die Verbannung der gemeinschaftlich nutzbaren Aussenbereiche auf «Restflächen» an den Enden der Parzelle und die Wege zu den südlicheren Häusern, die in Sackgassen enden, anstatt sich mit der Umgebung zu verknüpfen, haben den Entwurf aus dem Rennen geworfen.

Bei den zwei weiteren Teilnehmenden, Bauart Architekten und Office Hartori/Winhov, schlug das Pendel in die andere Richtung: Hier wurde unter anderem eine zu geringe Abgrenzung der Bereiche untereinander kritisiert. Die Wohnungen liegen hier so dicht und die Aussenräume sind dadurch so kompakt, dass Blickbeziehungen und Wege die Gemeinschaft über das individuelle Wohnen stellen. Dies geht der Bauherrschaft zu weit – jedenfalls im Moment noch. Denn Entwicklungen in dieser Richtung erfahren immer mehr Interesse und könnten zukünftig auch marktfähig werden.

Architektur als Argument

Repetitive Entwurfsansätze dienen einer wirtschaftlich interessanten Umsetzbarkeit, brauchen aber im zweiten Schritt eine Anpassung an die jeweilige städtebauliche Situation. Räumliche Qualitäten und mitgestaltete Umgebungen sind überzeugende Argumente bei der Vermarktung von Immobilien. Dass private Investoren diese Qualitäten ernst nehmen und einen Studienauftrag ausschreiben, ist positiv und eine Chance für die Stärkung der Rolle der Planenden. Als Hürde erweisen sich hingegen die baurechtlichen Rahmenbedingungen, die auf konventionelle Wohnformen ausgerichtet sind. So werden beispielsweise Mindestraumgrössen gefordert oder Lärmschutzvorgaben angesetzt, die nur bei Wohnungen mit vielen Zimmern umsetzbar wären. Hier gilt es, sich entsprechend den demografischen Realitäten zu öffnen.

Ein Glossar zur Flächeneffizienz finden Sie hier.

«Tiny House», Zollikerberg,  zweistufiger Studienauftrag 2019


Teilnehmer


Empfohlen zur Weiter­bearbeitung:

Projekt «Tiny House»
Jakob Steib mit Gmür & Geschwentner Architekten, Zürich

Projekt «Small World»
Beat Rothen Architektur, Winterthur

Projekt «Kondominium»
Office Haratori mit Office Winhov, Zürich / Amsterdam

Projekt «Patchwork»
Bauart Architekten und Planer, Zürich

Projekt «Gartenansichten»
Galli Rudolf Architekten, Zürich


Fachjury

Anouk Kuitenbrouwer, Partner KCAP Architekten, Zürich; Christian Inderbitzin, Partner EMI Architekten, Zürich; Barbara Neff, Neff Neumann Architekten AG, Zürich; Caspar Schärer, Generalsekretär, Bund Schweizer Architekten


Sachjury

Valentin Müller, CEO, Niels Lehmann, Projektentwicklung, UTO Real Estate Management, Zürich; Michael Blaser, Präsident Blaser Gränicher, Küsnacht

 

Mit Unterstützung von energieschweiz sind bei espazium –Der Verlag für Baukultur folgende Sonderhefte erschienen:

Nr. 1/2018 «Immobilien und Energie: Strategien im Gebäudebestand – Kompass für institutionelle Investoren»
Nr. 2/2019 «Immobilien und Energie: Strategien der Vernetzung»

 

Die Artikel sind im E-Dossier «Immobilien und Energie» abrufbar.

Articoli correlati