Au­shän­ge­schil­der aus Be­ton

Die beiden Hallen des neuen Sportzentrums auf dem Campus Sursee zeichnen sich durch den intelligenten Einsatz von vorgefertigten Betonteilen aus. Die Spannbetonkonstruktion erforderte besonderes Augenmerk vonseiten der Konstrukteure, insbesondere wegen der korrosiven Umgebung der Schwimmhalle.

Data di pubblicazione
04-12-2019
Thomas Ekwall
MSc. EPFL Bau-Ing., MAS ETHZ Arch., Korrespondent TEC21

Im Jahr 1972 zog der Schweizerische Baumeisterverband (SBV) in den Westen von Sursee LU. Sein Berufsbildungszentrum – der Campus Sursee – wurde zum grössten der Schweiz und bietet heute eine breite Palette an Dienstleistungen in den Bereichen Sport und Gastronomie an. Da das Schwimmbad nach über 40 Jahren Nutzung veraltet war und der Schweizerische Schwimmverband neue Räumlichkeiten suchte, wurde 2014 ein eingeladener Architekturwettbewerb für die Realisierung eines Sportzentrums mit Schwimmkomplex und Dreifachsporthalle ausgeschrieben.

Synthese der Disziplinen

Der Auftrag ging an die Gewinner des Wettbewerbs, das Team um den Architekten Rolf Mühlethaler, Bern, und die Ingenieure von Schnetzer Puskas, Basel. Sie entwarfen zwei architektonisch und baulich verwandte Hallen mit an die jeweilige Nutzung angepasster Dimensionierung.

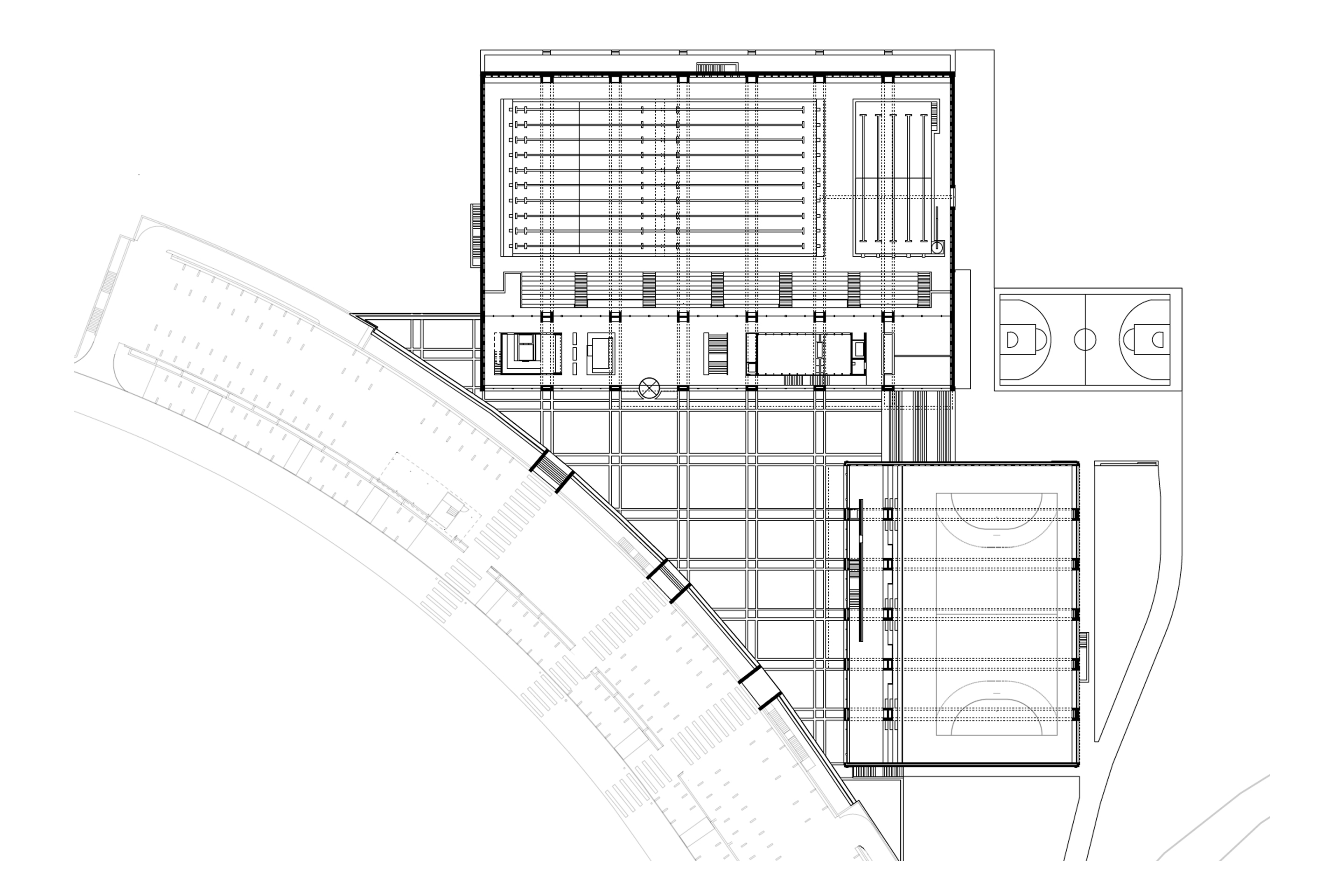
Berücksichtigt wurden für die Schwimmhalle eine Tribünenkapazität von 700 Personen, erweiterbar auf 1500, ein olympisches Schwimmbecken mit zehn Bahnen à 50 m sowie ein halbolympisches Becken mit fünf Bahnen à 25 m und integriertem, 5 m tiefem Tauchbecken. Für die Sporthalle plante man Tribünen für 300 Personen und ein Multifunktionssportfeld.

Die beiden Hallen bilden eigenständige Volumen von monolithischem Charakter, der durch die fugenlose Fassade unterstrichen wird. Sie sind im rechten Winkel versetzt zueinander angeordnet und fassen einen dreieckigen Platz ein, der sich gegen Südwesten zur Landschaft öffnet. Als geometrisches Leitmotiv fungieren die Konstruktionsraster der Hallen, die sich in den Zwillingsträgern und in der nicht tragenden Fassade fortsetzen und im Bodenbelag des Platzes wiederfinden, wo sie schachbrettartig ineinander greifen. Architektur, Konstruktion und Landschaft wirken so als Einheit.

Konstruktive Intelligenz

Die Konstruktion liest sich wie eine Überlagerung von separaten und komplementären Strukturelementen, die ihr eine narrative Qualität verleihen und sie unmittelbar nachvollziehbar machen. Die Hauptbedeutung des Tragwerks liegt jedoch in seiner Ausführung in Spannbeton.

Als ob sie die Leistungsfähigkeit der Hauptträger beweisen wollten, lassen die Ingenieure diese nicht nur das Dach über dem Schwimmbecken, sondern auch über den Tribünen tragen. So wird eine maximale Spannweite von 40 m erreicht. Die Träger verlaufen hinter den Tribünen noch weitere 12 m über dem Foyer. Dieses statische Prinzip eines Durchlaufträgers mit weicher Einspannung in drei Auflagern (Stützen in der Nord- und Südfassade sowie Innenstützen) verringert die Biegebelastungen und Verformungen der Hauptspannweite.

Im Querschnitt zeigt sich, dass es sich bei den Hauptträgern in Wirklichkeit um Zwillingsträger handelt, zwischen denen ein begehbarer Technikbereich von 1.25 m Breite und 2 m Höhe für Rauch- und Wärmeableitung, Beleuchtung, Sanitär-Fallrohre, Lüftung und Beschallung vorhanden ist. Diese Eingliederung der Gebäudetechnik zwischen die Zwillingsträger spielt den Raum umso mehr frei.

Die Bedachung besteht aus vorfabrizierten Rippenplatten, die durch den Überbeton einen Membraneffekt bei horizontaler Beanspruchung gewährleisten. Die H-Profile der Stützen können zusammen mit den Zwillingshauptträgern bei Erdbeben horizontale Längsbeanspruchungen aufnehmen. Die Rahmentragwirkung der Träger und Stützen stellt die Stabilisierung in Querrichtung sicher.

Mit Blick auf das tragische Unglück von Uster im Jahr 19851 legten die Konstrukteure besonderes Augenmerk auf die Korrosionswirkung des sauren und stark chlorhaltigen Schwimmbadklimas. So sind die sekundären und tragen­den Bauteile aufgelagert und nicht aufgehängt, und die Befestigungs­elemente bestehen aus den vom ­Korrosionspezialisten empfohlenen Chrom-Nickel-Molybdän-Stahl (1.4529).

Die Betonoberfläche ist mit einer wasserabweisenden Imprägnierung versehen, die schlaffe Bewehrung in mindestens 4 cm Beton eingebettet, und die Hüllrohre der Vorspannkabel bestehen aus Kunststoff. Schliesslich begrenzt die Vorspannung die nominelle Rissbreite auf 0.2 mm.

Die Fundamente sind entsprechend den Stütztiefen sowie den hydrologischen und geologischen Bedingungen ausgelegt: Im Allgemeinen widersteht die dichte Bodenplatte von 40 cm bis 60 cm Dicke dem Auftrieb. Unter den Tauchbecken waren zur Auftriebssicherung zusätzliche Mikropfähle nötig. Bis auf eine Tiefe von 22 m gebohrt, leiten sie auf beiden Seiten der Hauptspannweite die vertikalen Lasten der Stützen in der Grössenordnung von 1000 t in den Boden ab.

Aufwendige Vorfertigung

Die Ingenieure entschieden sich für eine maximale Vorfertigung des Tragwerks. Dadurch konnten sämtliche Rohbauarbeiten ab Boden­platte innerhalb von neun Monaten fertiggestellt werden – eine Zeit­verkürzung von rund zwei Monaten gegenüber einer herkömmlichen ­Lösung mit Ortbeton.

Die Zwillingshauptträger mit einer Länge von bis zu 22 m und einem Gewicht von bis zu 44 t führte man in sechs bewehrten Elementen aus, die man auf der Baustelle einzeln im Spannbett vorspannte. Dort montierte der Bau­unternehmer sie auf provisorischen Gerüsten vor, sodass anschliessend die Montagestösse ausbetoniert und in einem weiteren Bauvorgang die Träger vorgespannt werden konnten.

Die Vorspannkabel zog man in die dafür vorgesehenen Hüllrohre in den drei hintereinander angeordneten Trägerelementen und spannte sie dann kraftschlüssig vor. Dank dieser Vorspannung auf der Baustelle verhält sich der aufgeteilte Träger im Endzustand wie ein monolithischer ­Träger von 52 m Länge.

Die vorgefertigten Rippenplatten mit integrierten Akustikplatten konnten durch Dornen passgenau nebeneinander versetzt werden. Miteinander verbunden sind sie durch einen 8 cm starken Überbeton, der den Membraneffekt der Bedachung gewährleistet. Insgesamt wurden rund 4700 t vor­gefertigte Träger-, Stützen- und Plattenelemente auf die Baustelle geliefert und montiert.

Gebäude und Infrastruktur

Was soll man von diesen Hallen mit grosser Spannweite und einer Dachkonstruktion aus Spannbeton halten? Stellen sie einen Präzedenzfall dar, der sich auch in einem anderen Kontext anwenden lässt?

In einem Interview2 gibt der Ingenieur Ti­va­dar Puskas eine Antwort: «Es existieren natürlich bewährte und wirtschaftliche Lösungen aus Stahl oder Holz. Mit dieser mineralischen Konstruktion wollten wir jedoch den SBV und seine Werte darstellen. Denn was liegt näher, als sich für die Philosophie eines Auftraggebers zu interessieren, der einen Architekturwettbewerb initiiert, anstatt direkt auf einen Totalunternehmer zurückzugreifen? Diese Konstruk­tion erhebt den Anspruch, ein Aushängeschild für das Know-how der schweizerischen Betonbauunternehmen zu sein.»

Auf dieses Wissen zurückzugreifen ist daher eine bewusste Wahl, die sich hier nicht darauf beschränkt, die übliche Inszenierung des Sichtbetons zu wiederholen, die die hiesige Architektur kennzeichnen. Insbesondere durch den Einsatz der Vorfertigung im grossen Massstab vereint das Bauwerk die Grosszügigkeit eines klaren Raums mit der Monumentalität einer Konstruktion, deren Proportionen eher an die Kunstbauten erinnern, die unsere Landschaften durchziehen.


Anmerkungen
1 Am 9. Mai 1985 stürzte die Decke des Hallenbads in Uster ZH ein und begrub die Badegäste unter sich. Zwölf Menschen starben, 19 wurden schwer verletzt. Die Untersuchung, deren wissenschaftlicher Teil der Empa übertragen wurde, kam zu dem Schluss, dass der Einsturz des Dachs auf die Korrosion der zugbeanspruchten Bügelbewehrung zurückzuführen war. Der Edelstahl, aus dem sie bestanden, ist besonders anfällig für dieses Phänomen, wenn er mit einer korrosiven Atmosphäre wie jener in einem Schwimmbad in Kontakt kommt, was die Fach­leute beim Bau des Schwimm­bads Anfang der 1970er-Jahre noch nicht wussten.
2 «Werkstattgespräche» (mit Rolf Mühlethaler, Jürg Rehsteiner, Tivadar Puskas, Florian Riegler, Silke Langenberg und Toni Häfliger), in: Rolf Mühle­thaler – fragile ordnung – fragile order; Park Books, 2017.

Übersetzung: Zieltext, Zollikofen.
Der Artikel erschien zuerst in Tracés 14–15/2019.

Am Bau Beteiligte

 

Bauherrschaft
Stiftung Campus Sursee, Oberkirch

Projektmanagement, Projektleitung Bauherrschaft
Butscher Projektsteuerung, Aarau

Architektur und Generalplanung
Rolf Mühlethaler Architekt, Bern

Tragkonstruktion
Schnetzer Puskas Ingenieure, Basel

Baugrund
Kost + Partner, Sursee

Koordination Gebäudetechnik
W & Partner Fachkoordination, Otelfingen

Elektroplanung
HHM, Bern

HLKS-Planung
Abicht, Zug

Fachplanung Schwimmbadtechnik
Kannewischer Ingenieurbüro, Cham

Landschaftsarchitektur
w + s Landschaftsarchitekten, ­Solothurn

Geologie
Keller + Lorenz, Luzern

Beratung Korrosionsschutz
SCE Korrosions- und Oberflächenschutzberatung, Hombrechtikon

Articoli correlati