Sei­smo­graf des Him­mels

Architektur aktuell

Ästhetik versus Effizienz? huggenbergerfries Architekten haben im Sommer 2017 ein Wohnhaus fertiggestellt, das diese Frage obsolet erscheinen lässt. Der Neubau an der Seestrasse in Zürich Wollishofen hat eine All-over-Hülle aus braun schimmerndem profiliertem Glas. Dass diese ­Solarstrom produziert, fällt auch beim zweiten Blick nicht auf.

Data di pubblicazione
16-11-2017
Revision
22-11-2017
Judit Solt
Fachjournalistin BR, Chefredaktorin espazium magazin

Von aus­sen ist nicht zu erkennen, dass das Haus ein aktuelles Beispiel für solares Bauen ist. Die rostbraun schimmernde All-over-Hülle aus geripptem Gussglas wirkt urban und elegant, und selbst bei näherem Hinsehen lässt sich nicht vermuten, dass sich Photovoltaikzellen dahinter verbergen. «Die Fassade erfüllt eine Reihe von Funktionen», so ­Adrian Berger von huggenbergerfries Architekten, «und zwar seit Jahrtausenden immer die gleichen: Klima­regulierung, Schutz, städtebauliche Kontrastierung oder Einordnung, Repräsentation, Identifikation … Wir haben uns gefragt, ob sie nicht eine weitere Aufgabe übernehmen und elektrische Energie erzeugen könnte. Das heisst aber nicht, dass wir unsere städtebauliche und architektonische Haltung über Bord werfen. Die Stromproduktion soll als zusätzliche Qualität hinzukommen, nicht andere Qualitäten beeinträchtigen.» In der Tat ist die Produktion von erneuerbarer Energie bei Weitem nicht der einzige Vorzug dieses Hauses.

Mehrfach optimiertes Volumen

Der Neubau steht in Zürich Wollishofen, zwischen der verkehrsreichen Seestrasse und dem ebenfalls viel befah­renen Bahndamm, am Übergang zwischen der dichten Stadt des 19. Jahrhunderts und einem lockerer bebauten, von Villen und Solitären geprägten Quartier. Er ersetzt ein Mehrfamilienhaus, das ursprünglich der Seidenfirma von Gustav Henneberg als Investitionsobjekt diente – die gleiche Firma, die 1892 auch die gegenüber liegende Rote Fabrik erbaut hatte. Auch der Neu­bau enthält Mietwohnungen, dahinter steht allerdings eine leicht andere Intention. Die Architekten haben das Grundstück in Eigeninitiative entwickelt – und ein Stück weit auch als Forschungsfeld betrachtet.

Das orthogonal zur Seestrasse stehende Haus enthält zehn Wohnungen, was eine beträchtliche Verdichtung darstellt. Trotzdem wirkt es nicht erdrückend. Das Volumen folgt dem leichten Gefälle des Grundstücks, und seine Grundfläche evoziert eine leicht asymmetrische Sanduhr, sodass ein horizontal wie vertikal mehrfach geknickter, eher kleinmassstäblich strukturierter Baukörper entsteht.

Diese Volumetrie dient nicht nur der städte­baulichen Eingliederung, sondern schafft auch in Bezug auf die Wohnqualität mehrere Vorteile. Durch die taillierte Gebäudeform haben alle Wohnungen, die jeweils entweder in der vorderen oder hinteren Hälfte des Hauses untergebracht sind, nicht weniger als fünf Expositionen; das beschert ihnen abwechslungsreiche Grundrisse, ganztägige Besonnung, vielfältige Ausblicke inklusive Seesicht und vor allem auch zwei lärmabgewandte Fassaden zum Lüften. In der schmalen Mitte ist das Treppenhaus angeordnet; wegen der Staffelung der Gebäude­hälften entsteht eine Split-­Level-Erschliessung, sodass es auf jedem Halbgeschoss nur einen Eingang gibt. Die bewegte Abwicklung des Vo­lumens schliesslich ermöglicht eine verhältnismässig grosse, vielfältig orien­tierte Photovoltaikfläche.

Das Innere des Hauses ist geprägt von wenigen, schlichten Materialien. Eingangshalle und Treppenhaus sind mit Holzdielen aus dem Vorgängerbau ausgelegt, die ausgebaut und wiederverwendet wurden. Sie sind aus pitch pine, einer  nordamerikanischen Sumpfkiefer, deren Holz ähnlich hart ist wie Eiche, die jedoch wegen der Trockenlegung vieler Sümpfe zur Rarität geworden ist. Die Wohnungen wiederum haben Böden aus dunklem Asphalt-Terrazzo, weisse Wände sowie Decken und Dachschrägen aus Sichtbeton; die roh gehauenen Eiben­stützen sind aus dem ursprünglichen Baumbestand des Grundstücks gefertigt.

Unsichtbares Kraftwerk

Mit dem Neubau stieg nicht nur die bauliche Dichte, sondern auch die der Bewohner: Der Wohnflächen­verbrauch von 37 m2 pro Person liegt leicht unter dem Stadtzürcher Durchschnitt. Dafür haben die Architekten auf eine Renditemaximierung verzichtet und die Wohnungen rund 15 % unter dem quartierüblichen Preisniveau vermietet, um eine nachhaltige Nutzung der Immobilie durch eine gemischte, stabile Haus­gemeinschaft zu ermöglichen. In der Miete ist auf Wunsch auch die Nutzung des hauseigenen Elektro­autos inbegriffen, das per WeShare-App reserviert ­werden kann – neun von zehn Parteien machen mit. Die Produktion von Solarstrom ist lediglich ein Element eines ganzheitlichen, an Nachhaltigkeit orientierten Gesamtkonzepts. Geheizt wird indes nicht mit elektrischen Wärmepumpen, sondern mit Biogas.

«Wir sind nicht gekommen und haben gesagt, wir bauen jetzt ein Solarhaus», so Berger. «Am Anfang war die Atmosphäre des Orts: Die ephemeren, changierenden Lichtstimmungen am See, das Schimmern und Spiegeln des Wassers haben uns fasziniert. Wir dachten über eine Glasfassade nach, die solche Phänomene aufnehmen könnte. Floatglas kam nicht infrage, es ist zu nüchtern. Während wir mit verschiedenen Gussgläsern experimentierten, stellten wir die Frage nach der Photovoltaik. Könnte die Fassade wie ein Seismograf des Himmels funktionieren, optisch und technisch? Eine bestimmte Technologie didaktisch abzufeiern lag uns dagegen fern. Wir gaben dem Projekt den Arbeitstitel ‹Unsichtbares Kraftwerk›.» Dazu gehörte auch, dass die Photovoltaikelemente weder gerahmt noch sichtbar befestigt sein sollten.

Die schlichte All-over-Hülle ist das Ergebnis einer langen Entwicklungsarbeit, an der die Hochschule Luzern sowie fünf in einem Konkurrenzverfahren beteiligte Photovoltaikhersteller mitgewirkt haben. Ermöglicht hat dies wiederum der Investor. Berger betont: «Wenn wir jedes Quartal vor einer Baukommission oder einem Stiftungsrat hätten Rechenschaft ablegen müssen, ­hätten die das Projekt irgendwann gestoppt. Wir ­wussten ja nicht, wohin die Reise geht. Die Photovoltaikhülle ist ein Prototyp, ihre Entwicklung war ein iterativer Prozess mit vielen Rückschlägen.» Das Er­gebnis erscheint dennoch verblüffend einfach – und ­könnte heute, da die Entwicklungsarbeit geleistet ist, auch verhältnismässig günstig produziert werden.

Standardkomponenten neu kombiniert

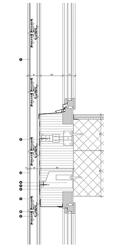
Die äussere Schicht besteht aus profiliertem Gussglas in einem handelsüblichen Format. Auf dessen glatte Rückseite wurde mittels Keramikdigitaldruck ein Muster angebracht, das die dahinter liegenden Solarzellen verbirgt, ohne sie übermässig zu verschatten. «Digitaldruck ist eine neue Technologie, Keramik da­gegen ist bewährt», erläutert der Architekt. «Die emaillierten Glasfassaden an Bauten von Werner Stücheli zum Beispiel sehen seit den 1960er-Jahren wie neu aus, während die Kunststoff­farben der 1980er-Jahre mit der Zeit auskreiden.» Bei den Solarzellen handelt es sich um monokristalline Siliziumzellen, «wie man sie mittlerweile fast auf jedem Scheunendach findet», in zwei Reihen. An das Glas befestigt werden sie mit einer im Vakuumverfahren angebrachten schwarzen PVP-Folie – eine Technologie, die aus dem Fassadenbau für Hochhäuser bekannt ist. Die Folie ist chemisch stabil und altert praktisch nicht. Die Module bestehen also aus Standardkomponenten, die mittels Standardverfahren zusammengefügt wurden. Ihre Kombination dagegen ist neu.

Berger schildert den Entstehungsprozess: «Unsere Module wurden im Labortest untersucht, um zu wissen, wie viel Licht durchgeht und wie viel reflektiert wird. Sie haben so schlecht abgeschnitten, dass der Ingenieur fand, wir könnten gleich aufhören. Trotzdem haben wir auf einen Freilufttest bestanden, und der hat bestätigt, was wir als Laien vermutet haben: Das prismatische Glas kann erstaunlich viel Streulicht auf die Solarzellen leiten – genau das Streulicht, das in der Realität immer vorkommt. Ausschliesslich zenitales Licht wie im Labor gibt es draussen ja nie. Das Ergebnis: Die Transmission des profilierten Glases ist nur 1.5 % schlechter als die des besten handelsüblichen Solarglases! Hinzu kommt der Druck, der einen Teil des Lichts abhält. Unter dem Strich hat die Praxis erwiesen, dass die Abschattung unserer Module ca. 15 bis 20 % beträgt. Damit erreichen sie einen Wirkungsgrad von ca. 13 bis 14 %. Zum Vergleich: Zellen, die für die Raumfahrt produziert werden, haben einen Wirkungsgrad von ca. 22 %, die besten Zellen am Bau kommen auf ca. 17 bis 18 %. So viel zum Thema Ästhetik und Effizienz.»

Mittlerweile liegen die ersten gemessenen Kennzahlen vor. Sie belegen, dass die unsichtbare Photovoltaikanlage rund 56 000 kWh Strom pro Jahr produzieren kann, was über dem erwarteten Eigenverbrauch liegt (%%gallerylink:33810:vgl. Grafik%%). Der gewonnene Strom dient in erster Linie dem Eigengebrauch; dank der vielfältigen Ausrichtung der Oberflächen ist der Ertrag über den Tag bzw. das Jahr relativ ausgeglichen. Der Überschuss wird in einer 10-kW-Batterie und in der Batterie des Elektroautos zwischengespeichert. Was dann noch ­übrig ist, wird gegen Rückvergütung ins öffentliche Netz ein­gespiesen.

Daten und Fakten zum Projekt
Planung und Ausführung: 2011–2017
Raumprogramm: 10 Wohnungen + Atelier
Hauptnutzfläche Wohnungen gesamt: 814 m2
Personenbelegung: 22 Personen (Familien, WG, ältere und jüngere Paare)
Wohnflächenverbrauch: 37 m2/Person
Stromproduktion PV-Anlage: ca. 56 000 kWh/Jahr
Stromverbrauch: ca. 30 000 kWh/Jahr
Heizenergieverbrauch: 38 000 kWh/Jahr, 100 % Biogas
Gesamtkosten (BKP 1–9): 6.6 Mio. Fr.
Baukosten (BKP 2/m3): 1250 Fr.
Nachhaltigkeitsstandard: ohne

Am Bau Beteiligte
 

Bauherrschaft: hbf futur, Zürich


Entwicklung, Architektur, Bauleitung: huggenbergerfries Architekten ETH SIA BSA, Zürich
 

Forschungsteam PV-Anlage
 

Forschungspartner: Hochschule Luzern CC Envelopes & Solar Energy


Photovoltaik-Engineering: SunDesign, Stallikon


Photovoltaik-Einbindung: Sun Technics Fabrisolar, Küsnacht


Fassadenplanung: Gasser Fassadentechnik, St. Gallen


Photovoltaik-Lieferant: Ertex Solartechnik, Amstetten


Gebäudehülle: Scherrer Metec, Zürich

 

Bauingenieur: Synaxis, Zürich


Koordination: Pfenninger & Partner, Zürich


Elektroingenieur: Ruckstuhl Elektrotech, Adliswil


Heizungsingenieur: Guyer Wärme und Wasser, Zürich


Lüftungsingenieur: Meier-Kopp, Mönchaltdorf


Sanitäringenieur: Sada, Zürich


Geometer: Pöyry Schweiz, Zürich


Bauphysik, Akustik: Kopitsis Bauphysik, Wohlen

Articoli correlati