«Bo­bois»-Ar­chi­tek­tur

In der sich rasch wandelnden nördlichen Agglomeration von Paris hat das Architekturbüro Tectône 2015 ein Mehr­familienhaus aus Holz fertiggestellt. Die Materialwahl prägt die Bauweise und den architektonischen Ausdruck. 

Data di pubblicazione
17-11-2017
Revision
28-11-2017

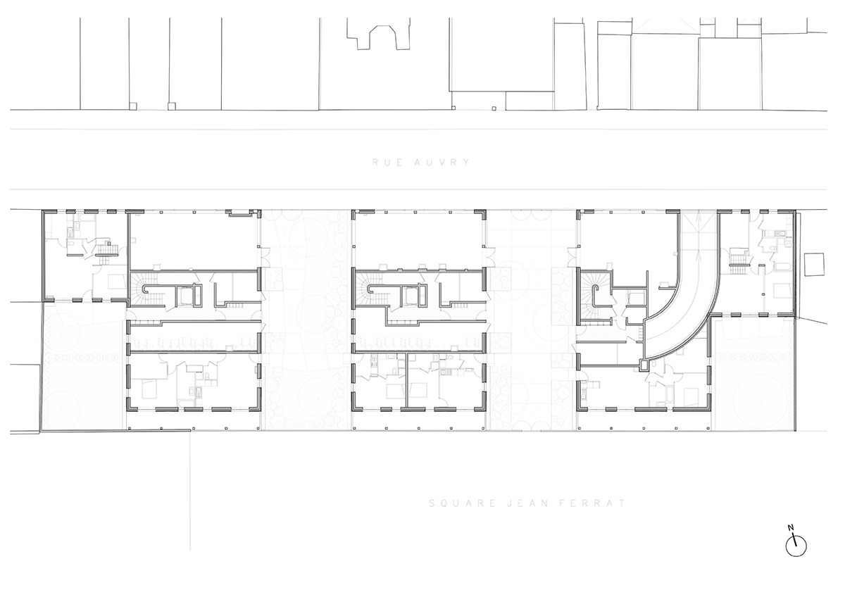
In den bevölkerungsreichen Vororten nördlich von Paris werden seit zwei Jahrzehnten zahlreiche Stadterneuerungsprojekte in ausgewiesenen Sanierungszonen, den Zones d’aménagement co­ncerté (ZAC), durchgeführt. Ein interessantes Beispiel ist die ZAC Auvry-Barbusse in Aubervilliers. Mitten im typischen Vorstadtgeflecht mit kleinen Werkstätten und zwei- bis dreigeschossigen, not­dürftig verputzten Wohnbauten ist ein wildes Durcheinander an architektonischen Ausdrucksformen entstanden: mit Aluminiumwellblech bedeckte Sattel­dächer, mit perforiertem Edelstahl verkleidete Fassaden, hochkant vermauerte schwarze Backsteine, apfelgrüne und ­zi­tronengelbe Schiebeläden, Fensterbrüstungen mit Blumenmuster oder ­Ma­sch­rabiyya-Dekor – für jeden Geschmack etwas. Aus dieser riesigen Materialsammlung, diesem architektonischen Spra­chen­gewirr stechen die drei schraffierten Holzblöcke des Architekturbüros Tectône wohltuend zurückhaltend heraus.

Die Stadtvilla 

Zwei die Parzelle durchquerende Fuss­wege erschliessen die drei Mehrfami­lien­häuser mit je 13 Wohnungen. Diese von den traditionellen Vorstadtgässchen in­spirierten Passagen machen die Über­bauung durchlässig und transparent. Auf der Nordseite, an der Rue Auvry, ­befinden sich hinter einem Sockel aus vorgefertigten weissen Betonelementen Werkstätten mit grossen Fenstern gegen das Trottoir und die Fusswege. Beton ist ein Material, das die bauliche Umgebung der Nachbarschaft prägt. Südlich, gegen den begrünten Square Jean Ferrat, sind die Balkone und Loggias in allen Geschossen in eine zweischichtige Fassade aus Holz eingelassen. Im Gebäudeinnern befinden sich Anspielungen auf die Typologie der klassischen Stadtvilla: Über grosse Fenster dringt Tageslicht in die Gemeinschaftsräume wie Eingangszonen mit Briefkästen und Treppenabsätzen.

Die Architekten haben auch die gros­sen Maisonettewohnungen in den obersten Geschossen wie kleine Häuser konzipiert: Neben den Balkonen und Loggias, gegen Süden, bieten ins Dach eingelassene Terrassen einen vor Blicken geschützten Rückzugsort. Ein stufenweiser Übergang zu den benachbarten Häusern entsteht durch die beiden um zwei Geschosse niedrigeren Aussenflügel des Ensembles. In diesen Seitentrakten befinden sich zwei weitere «Stadthäuser» mit Blick über den Platz und die Strasse. Sie verfügen über einen Garten auf der Südseite und einen separaten Eingang.

Hybride Struktur, Ausdruck Holz

Der Bauträger und der ZAC-Planer machten die Vorgabe, Holz als Baumaterial zu verwenden, deshalb zogen die Architekten bereits in der Wettbewerbsphase ein Holzbauunternehmen hinzu. Die Tragwerke vereinen zwei Bauweisen: Die Unter- und Erdgeschosse sowie die Zirku­lationskerne und auch die Stützen und Decken der ersten beiden Obergeschosse sind aus Beton. In den zwei obersten Geschossen jedoch besteht das gesamte, auch in den Wohnungen sichtbare Tragwerk aus Holz. Die teils zweischichtige Fassade wird durch ein Holzskelett aufgespannt, das mit unbehandeltem Douglasien-Kernholz verkleidet ist. Der Orangeton wird sich mit der Zeit durch Witterung und Sonneneinstrahlung un­regelmässig gräulich verfärben. Der Betrachter steht dann – je nach seiner Position – vor einer sich verändernden, lebendig wirkenden Fassade. 

Ein Bewohner im mittleren Gebäude beschreibt seine Maisonettewohnung wie folgt: «Wir haben das Gefühl, in einem richtigen Holzhaus zu leben, das nach mehreren Seiten ausgerichtet und nach aussen erweitert ist und in allen Räumen über Tageslicht verfügt. In diesem etwas schwierigen Viertel nennt man uns die Bobois – die Holzies.» Der Begriff «Bobois» – aus bobo (Yuppie, ­Hip­ster) und bois (Holz) – spielt auf die widersprüchlichen, gleichzeitig fortschrittlichen und rückwärtsgewandten Gegebenheiten an: auf einen bürgerlichen Lebens­stil, auf die Gentrifizierung eines Quartiers, auf die Typologie der Stadt­villa und den ­Baustoff Holz.

Am Bau Beteiligte


Bauherrschaft
Bouygues Immobilier, Agence Seine Saint-Denis Nord, Direction Régionale IDF Est, Paris


Architektur
Tectône, Paris


Tragwerk und Fassade Holz
Charpente Houot, Sainte-Marguerite


Rohbau
VFB construction, Saint-Maur-des-Fossés


Landschaft
Dufaÿe Mandre, Chevry-Cossigny

Weitere Informationen
 

Gebäude
Anzahl Wohnungen: 39
Nutzfläche: 2450 m2
Label: Bâtiment Basse Consommation Norm Française BBC NF, Wohnungen Option HQE
 

Holz und Konstruktion
Fassade: Verkleidung Douglasie (Frankreich),
Bau A = 30 m3 / Bau B = 27 m3 / Bau C = 30 m3
Tragwerk: Nadelholz C24 (Deutschland),
Bau A = 50 m3 / Bau B = 49 m3 / Bau C = 48 m3
 

Daten
Planung und Ausführung: 2011–2015
 

Kosten
Kosten Arbeit: 5.7 Mio EUR exkl. MwSt

Der Artikel ist erschienen im Sonderheft «Stadt aus Holz III – Megatrends als treibende Kräfte», ein Projekt im Auftrag des Bundesamtes für Umwelt (BAFU) und in Zusammenarbeit mit Wüest Partner.

Weitere Artikel mit zusätzlichen Bildern und Plänen sowie weitere Beiträge zum Thema Holz haben wir in einem E-Dossier zusammengestellt.

Articoli correlati