Un si­ste­ma di abi­ta­zio­ni so­ste­ni­bi­li ed eco­no­mi­che per le cit­tà afri­ca­ne

Su mandato della Direzione dello sviluppo e della cooperazione, Skat Consulting ha sviluppato strategie sostenibili e a basso costo per l'edificazione di abitazioni nella Regione dei Grandi Laghi, ideando nuovi sistemi costruttivi da mettere a disposizione della manodopera locale.

Data di pubblicazione
02-04-2020

Dal 2013, la Direzione dello sviluppo e della cooperazione (DSC), supporta una trasformazione sostenibile del settore edile nella regione africana dei Grandi Laghi. Skat Consulting ha avuto un mandato da DSC per sbloccare il potenziale economico e i benefici sociali dell’urbanizzazione,  riducendo al contempo il suo impatto ambientale negativo. Gli architetti Daniel Wyss e Fatou Dieye sviluppano soluzioni economiche e «verdi» per la realizzazione di abitazioni costruite con la manodopera dell’industria edile locale.

Attraverso una collaborazione attiva con il settore privato locale, con imprese, autorità e con il mondo accademico nazionale e internazionale e con la guida strategica della DSC, il team PROECCO ha sviluppato la produzione di materiali edili e soluzioni costruttive per piccole e medie imprese.

Background: le sfide di una delle zone con la più rapida espansione urbana al mondo

Le aree metropolitane della regione africana dei Grandi Laghi crescono del 5-7% all’anno. Essendo questa la parte più densamente popolata del continente, le zone agricole sono limitate e possono sfamare soltanto meno della metà della popolazione che le coltiva, obbligando molti giovani abitanti delle zone rurali a emigrare verso le vicine città di Kigali, Bukavu, Goma e Bujumbura. In tal modo, queste città vedranno triplicare la loro popolazione entro il 2050 e dovranno dare un alloggio a circa un milione di nuovi abitanti, ogni anno, in un’area grande all’incirca come la Svizzera.

Anche se molti esperti concordano nel ritenere l’urbanizzazione come una benedizione per l’economia africana, le autorità e il settore privato della regione dei Grandi Laghi sono poco preparati ad affrontare una simile situazione edilizia. L’80% delle nuove abitazioni sono costruite in modo informale, con materiali precari, esponendo gli abitanti a pericoli come terremoti, inondazioni e incendi. Inoltre, l’industria delle costruzioni tradizionale consuma milioni di alberi delle poche foreste rimaste, mentre le terre agricole e i letti dei fiumi sono distrutti dalle cave di sabbia e argilla.

Smart Tafali Etage, lo Swiss Cube made in Rwanda

Nell’agosto 2017, alla 20a edizione della Rwanda International Trade Fair è stata presentata una nuova tipologia abitativa, «verde» ed economica, denominata «Smart Tafali Etage, lo Swiss Cube made in Rwanda». Si tratta della risposta pensata da DSC e Skat alla sfida per la realizzazione di abitazioni a basso costo in questa zona dell’Africa.

Grazie all’introduzione di nuovi sistemi costruttivi per i quartieri informali, è possibile infatti limitare il consumo del cemento fino a 1/3, ricorrere a muratori locali per costruire parte delle abitazioni, usare metà del terreno e vendere il resto, creare giardini sul terreno e sul tetto, e ridurre i costi di costruzione fino al 30%.

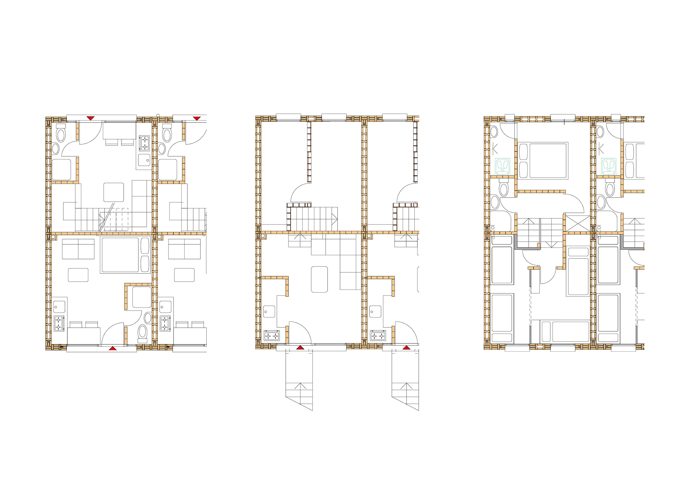
Sottolinea Daniel Wyss: «Da una prospettiva svizzera, si tratta di una tipologia duplex molto semplice, combinata con una grande flessibilità interna, qualcosa di simile a quanto fatto da Metron negli anni Novanta. Abbiamo soltanto preso gli elementi più appropriati della storia del progetto di residenze economiche e li abbiamo adattati alle necessità del luogo. In questo modo, abbiamo cercato di rimanere strettamente «funzionali», come imparato da Jacques Blumer durante la mia esperienza all’Atelier 5».

Il prodotto chiave di questo sistema di costruzione è un mattone moderno chiamato Rowlock, un’unità di muratura portante, cava e rinforzata (Rowlock Bond). I nuovi mattoni possono essere prodotti localmente, in cantiere, in murature artigianali o in piccole fabbriche semimeccanizzate. Questi elementi sono prodotti con un bilancio quasi neutro di CO2 (bruciando i rifiuti organici invece che gli alberi).

Nelle tre settimane della Fiera, lo Swiss Cube è stato visitato da 35.000 persone. Nei 24 mesi successivi all’inaugurazione dello Swiss Cube, sono state costruite più di 1800 abitazioni urbane utilizzando un simile sistema costruttivo. Altre 6.000 abitazioni sono attualmente in progettazione per una varietà di sviluppatori real-estate. Anche il Massachusetts Institute of Technology MIT, con il professor Rafi Segal, ha sostenuto il Swiss Cube System, costruendo con gli studenti una serie di variazioni per un prototipo residenziale semi-urbano.

Questo processo porterà nei prossimi anni alla costruzione di decine di migliaia di nuovi posti di lavoro riconosciuti nel settore della produzione di materiali edili e nella costruzione di abitazioni economiche e di qualità.

Bukavu, Repubblica Democratica del Congo

Bukavu è una città con più di un milione di abitanti, dove ogni giorno vengono costruite dalle 30 alle 50 case e dove l’edilizia informale continua a densificare e a ingombrare quartieri urbani sempre più inaccessibili. Nonostante il deterioramento della qualità della vita nei quartieri, i prezzi dei terreni sono in costante aumento e spingono i residenti a costruire edifici multipiano. Tuttavia, l’industria edile locale non sempre soddisfa gli standard richiesti per il dimensionamento delle strutture portanti e le norme antisismiche. Inoltre, i materiali da costruzione non sono in grado di esaudire gli standard di qualità necessari per una struttura duratura.

Su richiesta del sindaco di Bukavu, Skat ha creato una versione dello Swiss Cube per il contesto locale, che offre a investitori, autorità e professionisti dell’edilizia un esempio di casa urbana moderna e antisismica. Concepita come casa modulare per piccoli appezzamenti, questa tipologia permette la costruzione di quattro case con giardino privato e la possibilità di terrazze verdi sul tetto su una superficie di 12 x 18 m. Ciò permette una densificazione ben strutturata che crea spazi verdi che producono ossigeno in aree altrimenti polverose e fangose. Le case duplex o triplex possono essere realizzate con lastre di legno a basso costo, più leggere e più sicure rispetto alle lastre di cemento, spesso costruite senza un adeguato adeguato rinforzo. In maniera simile alla versione del Rwanda, la casa modello congolese può essere combinata in edifici di qualsiasi forma immaginabile e si adatta bene alla topografia accentuata di Bukavu.

Al fine di fornire i mattoni richiesti per la costruzione di migliaia di edifici in via di realizzazione, sono stati costruiti o ammodernati circa 40 stabilimenti, portando la loro capacità annuale da 21 milioni a 59 milioni di Rowlock. Per rispondere alla domanda di abitazioni urbane nella regione dei Grandi Laghi per i prossimi tre decenni, SDC e Skat continuano a lavorare sugli ulteriori sviluppi delle locali catene di produzione, che includono la creazione di progetti modulari pre-ingegnerizzati per investitori e famiglie nei tanti contesti informali e negli slums.

Progetto Proecco, Promoting Climate Responsive Building Material Production and Off-farm Employment in the Great Lakes Region
Committenza: Direzione dello sviluppo e della cooperazione DSC
Direzione: Skat (Swiss Resource Centre and Consultancies for Development), San Gallo
Architettura: Daniel Wyss, Fatou Dieye, Skat Consulting, San Gallo
Ingegneria: Martin Liesch, Malans
Paesi interessati: Regione dei Grandi Laghi, Rwanda, Burundi e provincia del Kivu Sud, Repubblica Democratica del Congo
Durata del progetto: 2012-2024

«Archi» 2/2020 può essere acquistato quiQui puoi invece leggere l'editoriale con l'indice del numero.

Articoli correlati