Quar­tie­re Adret, Lan­cy (GE)

TRIBU architecture

Il nuovo quartiere progettato da TRIBU, frutto di un concorso, offre agli abitanti una molteplicità di servizi (un asilo, un negozio, uno studio di fisioterapia, un centro medico, un ristorante…) e punti di incontro.

Data di pubblicazione
07-07-2021
Andrea Roscetti
Ingegnere, fisico della costruzione, redattore espazium quaderni

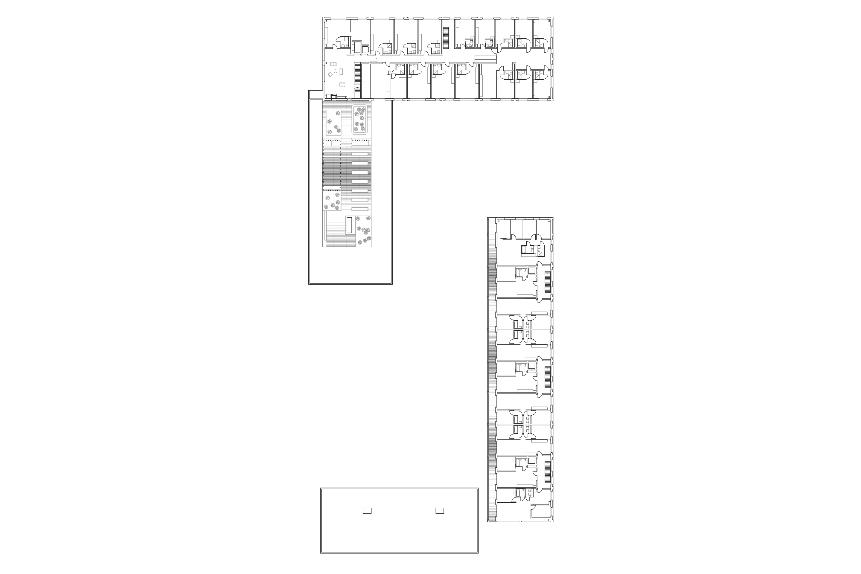
Il lotto A del quartiere Adret fa parte del piano che prevede l’urbanizzazione a ovest del tracciato ferroviario CEVA. È il risultato di un concorso organizzato dalla Fondazione per la promozione dell’alloggio a basso costo e dell’alloggio cooperativo (FPLC), dalla Fondazione municipale per l’alloggio degli anziani (FCLPA) e dalla Fondazione immobiliare municipale di Lancy (FCIL).

I manufatti che costituiscono il lotto A definiscono un isolato, aperto verso la Promenade des Crêtes e la via della stazione: gli edifici L14, L15 e L1 fanno da testata al nuovo quartiere. Al piano terra hanno una funzione prevalentemente pubblica, con locali commerciali che si affacciano verso la stazione. L’edificio L2 è invece legato al sistema del piano di quartiere localizzato (PLQ): la parte residenziale è rivolta verso il parco, che integra i lotti B e C del nuovo quartiere, in via di sviluppo. La corte-giardino centrale svolge una funzione di collegamento, sia spaziale sia sociale.

Il gruppo degli edifici L14 + L15 (FCLPA) risponde a due questioni complementari: garantire un ambiente protetto e aprirsi agli altri (riferimenti istituzionali, servizi, sostegno comunitario). Diverse tipologie di alloggio sono distribuite nello stabile. L’ingresso all’edificio avviene attraverso un atrio luminoso, che riprende la materialità delle facciate per conferirgli lo status di spazio pubblico protetto. Una scala comune collega i due volumi e offre prospettive sulle abitazioni; la distribuzione al piano terra rende leggibile la disposizione interna.

Al piano terra, il grande atrio centrale porta agli spazi comuni: il centro diurno, un negozio locale, la lavanderia, uno studio di fisioterapia e un centro medico, un ristorante aperto al pubblico. L’atrio permette l’accesso agli spazi esterni delimitati dagli edifici del lotto, a tutti i livelli e in particolare alla terrazza collettiva del sesto piano. La ventilazione naturale degli spazi comuni sfrutta l’effetto camino della distribuzione verticale. L’asilo nido occupa l’ala di L15. Un ufficio condiviso, per la fondazione e l’asilo, funge da ricezione. Il corridoio di distribuzione è caratterizzato da un arredo che è allo stesso tempo guardaroba, biblioteca, parete di separazione, ludoteca: anima il percorso e conduce al giardino dell’asilo.

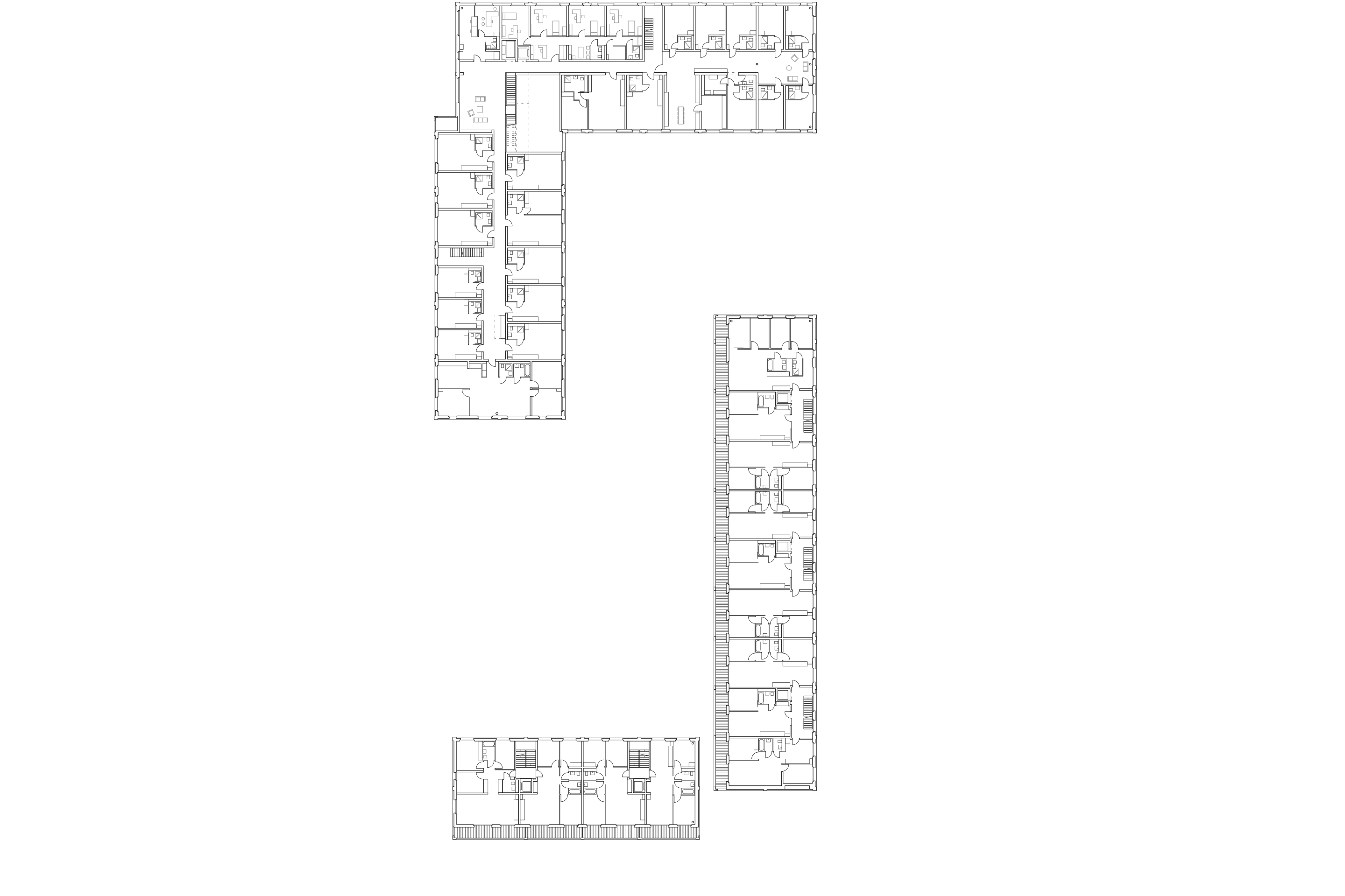
Gli edifici sono molto profondi (18 metri) e la distribuzione interna è realizzata con corridoi centrali che portano a uno spazio comune presente in ogni piano. Questi spazi si aprono sui diversi punti di vista caratteristici del sito: Ginevra e la Salève a est, la collina verde di Lancy a ovest, il giardino.

I percorsi interni si ampliano per definire piccole piazze conviviali, collegate tra i piani e valorizzate dalla luce zenitale. L’apporto di luce naturale, filtrata, risulta adeguato ai problemi visivi di cui soffrono molte persone anziane. Per analogia con la facciata esterna, le vie interne hanno pareti in calcestruzzo. Al centro delle due ali dell’edificio sono presenti due scale che servono come vie di fuga, portano luce naturale alla distribuzione interna e offrono varie viste sull’esterno.

I due edifici L1 e L2 (FCIL) danno accesso al cortile-giardino condiviso, che contribuisce all’incontro tra le residenze e tra i servizi al piano terra e protegge anche l’accesso all’edificio in caso di incidente ferroviario. Lo spessore ridotto dei volumi permette di creare appartamenti con doppio affaccio. L’edificio L1 è in relazione con due ambienti contrastanti, uno urbano e rumoroso, l’altro protetto e tranquillo.

Le facciate dei quattro edifici usano un linguaggio comune. Un telaio prefabbricato in calcestruzzo in diversi toni di beige è in primo piano e definisce le volumetrie: un riferimento al carattere «urbano» del contesto di Lancy-Pont-Rouge utile a supportare i balconi «alla francese» che offrono una piacevole estensione esterna anche dove non previsto dal piano di quartiere. In secondo piano rispetto alla trama in calcestruzzo, si differenzia grazie alla scelta cromatica l’involucro termico in pannello sandwich di cemento. Le aperture vetrate garantiscono qualità agli spazi e vista sull’esterno.

La stazione di smistamento, la strada Grand-Lancy e il futuro quartiere di Lancy-Pont-Rouge sono attive e quindi fonte di disturbo: la soluzione di facciata scelta dai progettisti offre una protezione dall’ambiente relativamente ostile (rischi OPIR, rumore, sole, vista ecc.) e risponde al bisogno crescente di protezione degli anziani. Per soddisfare i rischi OPIR, la facciata sud dell’edificio L1 e la facciata est dell’edificio L2 sono completamente chiuse.

«Archi» 3/2021 «Complessi residenziali e sostenibilità» può essere acquistato quiQui si può leggere l'editoriale con l'indice del numero.

Luogo Lancy

Committenza FCIL, FCLPA

Architettura TRIBU architecture, Losanna

Architettura del paesaggio Interval paysage, Renens

Ingegneria civile Perreten et Milleret, Carouge

Progetto impianti RVCS, impianti elettrici e fisica della costruzione CSD Ingénieurs, Carouge

Acustica AcouConsult, Ginevra

Illuminotecnica REGENT Lighting

Geologia Karacas Français, Losanna

Polizia del fuoco Inexis, Paudex

Impianti elettrici Bouygues Intec

Riscaldamento Thermex

Ventilazione CGC Energies

Sanitario Consortium MST – Pilote Martin Sanitaires

Fotografia Michel Bonvin, Losanna

Fotorender Loomn, Gütersloh (D)

Date concorso 2014, progetto 2014-2017, realizzazione 2017-2020

Certificazione o Standard energetico edifici L14/L15 Minergie GE-1428 + n°48867, edificio L2  Minergie GE-1426 e GE-1427 + n°48866, edificio L1 - Minergie GE-1423, GE-1424, GE-1425 + n°48865

Intervento e tipo edificio nuova costruzione, superficie netta = 18115  m2, volume SIA 116 = 74290 m3

Categoria edificio (Ae) L14-L15 ristoranti 371m2, scuole 503 m2, amministrazione 632 m2, abitazione plurifamiliare 9071 m2; L2 abitazione plurifamiliare 2x 2391 m2; L1 abitazione plurifamiliare 3x 5736 m2, commerciale 3x 307 m2

Fattore di forma (Ath/Ae) L14,L15: Ath/Ae=0.74; L2: Ath/Ae=1.14, L1: Ath/Ae=1.01

Riscaldamento e acqua calda teleriscaldamento (>50% rinnovabile)

Requisito primario involucro dell’edificio L14-L15: 19.1 kWh/m2a, edificio L2: 24.2kWh/m2a; edificio L1: 23.8 kWh/m2a

Indice Energetico Complessivo (da certificazione) L14-L15: 31.0 kWh/m2a; L2: 31.4 kWh/m2a; L1: 33.6 kWh/m2a

Particolarità: edifici L14,L15: pompa di calore; edificio L14: 3 sistemi di ventilazione a doppio flusso con scambiatore di calore a piastre per gli appartamenti, la cucina e il ristorante; edificio L15: 2 sistemi di ventilazione a doppio flusso con scambiatore di calore a piastre per gli appartamenti e l’asilo nido; edifici L1,L2: pompa di calore e sistema di ventilazione a doppio flusso con scambiatore di calore a piastre per gli appartamenti.

Articoli correlati