FLUGT – Re­fu­gee Mu­seum of Den­mark

Con un invitante gesto architettonico, gli architetti di BIG Architekten uniscono due immobili per realizzare un museo. Nell’area dell'ex campo profughi per tedeschi sfollati di Oksbøl, questo museo ora serve a trasmettere conoscenze sui flussi dei profughi a livello locale e generale. Il pezzo forte dell'esposizione resta il territorio.

Data di pubblicazione
31-05-2023

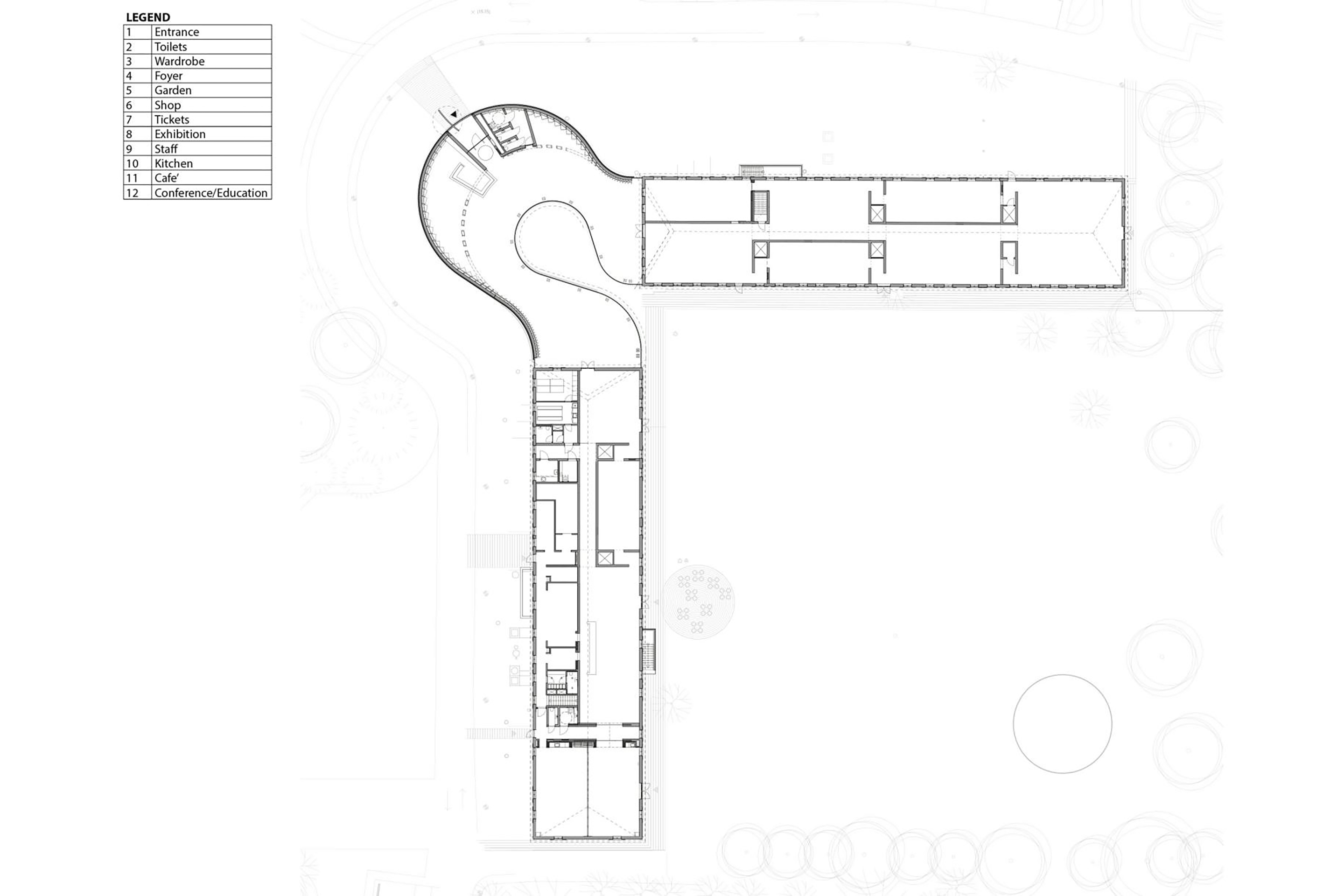
Due costruzioni di mattoni di un solo piano con tetto a padiglione, tra le quali si trova un edificio di collegamento rivestito con lastre d’acciaio Corten che si incurva verso l'esterno come un’ansa: «Flugt» è il nome di uno dei musei più recenti della Danimarca. È stato inaugurato il 25 giugno 2022 alla presenza della regina Margherita II e del vice cancelliere tedesco Robert Habeck. Ci troviamo nella parte sud-ovest dello Jütland, a quasi 100 chilometri dal confine tedesco. La responsabilità della progettazione architettonica è stata affidata a BIG, la scenografia a Tinker Imagineers di Utrecht.

Nell’ambiente boscoso che circonda Oksbøl non c’è molto che ricordi che qui, nell’immediato dopoguerra, si trovava un campo profughi di quattro chilometri quadrati. Il campo di Oksbøl ha assunto un significato storico nel corso dell'evacuazione della popolazione civile tedesca dai territori orientali del Reich tedesco nella primavera del 1945. Anche se la situazione nella Prussia orientale era già delineata da tempo, con l’incessante avanzata dell'Armata Rossa e i territori tedeschi a est sempre più accerchiati, il governo del Reich a Berlino per molto tempo non fece nulla per proteggere la sua popolazione.

L'evacuazione fu avviata in fretta e furia solo nella primavera del 1945. A partire da febbraio di quell’anno iniziò una drammatica e caotica operazione di soccorso delle persone accerchiate in Pomerania e nella Prussia orientale, attraverso il Mar Baltico. Due milioni di persone fuggirono in questo modo; 350.000 di esse, come era stato concordato a febbraio con il plenipotenziario del Reich, arrivarono nei porti del Mar Baltico della Danimarca occupata, come Copenaghen o Apenrade. Da lì furono trasferiti nei campi profughi, quello di Oksbøl era il più grande. Poco dopo il campo, che ospitava fino a 35.000 persone, arrivò ad essere considerato come la quinta città più grande della Danimarca. Flugt intende commemorare quell'epoca, ma l'ambizione è più grande: porta infatti il sottotitolo di «Refugee Museum of Denmark» (museo dei rifugiati della Danimarca). Questo chiarisce l’intento di dare spazio anche alle problematiche delle storie di migrazione attuali.

Tra le poche strutture storiche rimaste sul posto ci sono due costruzioni in muratura del 1941 che ospitavano un ospedale militare. I volumi perpendicolari tra loro, che un tempo si trovavano nell'angolo a nord-est del campo, sono serviti prima come alloggio per gli obiettori di coscienza danesi, poi per molti anni come ostello della gioventù. Ora sono le due ali espositive del museo Flugt.

Accesso a un nuovo mondo

Originariamente le due costruzioni avevano ingressi separati ed erano collegate tra loro solo per mezzo di una tettoia angolare. Al suo posto ora c’è l'edificio di collegamento di BIG, che amplia la superficie utile di circa 1000 metri quadrati degli edifici esistenti con ulteriori 540 metri quadrati, creando lo spazio necessario per una serie di funzioni aggiuntive. Riprendendo la linea di colmo dell'edificio ospedaliero situato a nord, la nuova costruzione compie una curva in avanti, poi si ritrae per agganciarsi alla struttura ad ovest. Dall'esterno, la lieve asimmetria dovuta alla disposizione sfalsata degli edifici esistenti è a malapena percettibile.

L’involucro esterno squamoso e striato in acciaio Corten, con cui sono rivestite le pareti e le superfici del tetto, appare inizialmente quasi come una fortezza, come se si trattasse di un piccolo baluardo senza finestre e simile a una torre; tuttavia, BIG riesce a creare un’interazione convincente a livello di texture (laterizio e scaglie d’acciaio), oltre che di materialità e colore. Il cancello girevole con supporto verticale centrale garantisce l’accesso durante gli orari di apertura del museo e subito ci si ritrova in uno spazio interno luminoso e dai dettagli estremamente curati, che ospita non solo la reception e la zona della biglietteria, ma anche il negozio del museo, il guardaroba e i servizi igienici. Dato che la capriata del tetto è aperta, l'altezza è sorprendente e lo è altrettanto, dopo il frontale esterno chiuso, la vista posteriore sul paesaggio attraverso un cortile interno completamente circondato da vetri, stretto a forma di goccia, accessibile solo dall'esterno e dotato di una piccola vasca riflettente.

110 strutture di pilastri in legno chiaro che si aprono in travi su entrambi i lati formano la struttura portante dall’orientamento radiale; negli spazi intermedi, la costruzione si declina in modo decorativo in listelli di legno più stretti, che creano un contrasto cromatico con il soffitto interno nero che si trova dietro. A sinistra del vestibolo ci sono i servizi igienici e il guardaroba, mentre sulla destra sono disposti la biglietteria e il negozio del museo. Organizzata come un’ansa, la zona del foyer si estende verso i due edifici storici con un pavimento in legno chiaro e mattoni gialli in stile tipicamente scandinavo. Il contrasto tra vecchio e nuovo è chiaramente visibile, non da ultimo grazie a uno spazio di luce che separa i tetti. La contrapposizione, però, qui non appare forzatamente artificiosa; come all'esterno, i diversi strati temporali restano riconoscibili, ma allo stesso tempo si collegano tra loro.

Acquisizione di conoscenze tramite l'architettura

All’interno, BIG ha rimosso in gran parte la struttura suddivisa in piccole camere per fare spazio ad ambienti più ampi, mantenendo però ove possibile gli elementi delle pareti esistenti per la suddivisione degli spazi e sfruttando così la costruzione preesistente. Anche le capriate storiche sono state mantenute, quantomeno nell'ala nord in cui il tema della migrazione e della deportazione è affrontato globalmente in una sequenza di sette aree espositive. Nell’ala ovest, invece, il tema centrale è il campo storico di Oksbøl.

Purtroppo, i filmati proiettati in loop non vanno al di là di qualche luogo comune. Tinker Imagineers, come già al Tirpitz, punta su una trasmissione meramente acustica dei contenuti tramite audioguida. Sapere che nel campo ci fossero anche scuola, cinema e teatro non permette certo di comprenderne con chiarezza la realtà. Chi cerca informazioni «di sostanza» le troverà solo nel negozio del museo.

Purtroppo, sul posto non si apprende praticamente nulla: solo un tour con l'audioguida attraverso l'ex area del campo, ormai invasa dalla vegetazione e di cui si è conservata solo la struttura del sentiero, fornisce qualche informazione in più. Anche nell’ala nord, dedicata alle migrazioni attuali, Tinker Imagineers punta piuttosto sull’emotività che sulla trasmissione delle conoscenze. Muovendosi attraverso la mostra si sentono ripetutamente le voci di rifugiati di varie epoche e regioni. Ma come si può raccontare la biografia di un migrante in 90 secondi al massimo? Non c’è molto più di alcuni aneddoti o luoghi comuni, che non rendono giustizia ai rispettivi destini. L’allestimento della mostra risulta superficiale, poiché il livello di complessità della narrazione è del tutto insufficiente.

Connessioni regionali

La scenografia di Flugt non piacerà molto a chi non è a proprio agio con una trasmissione puramente acustica delle informazioni e preferirebbe leggere alla vecchia maniera. Dal punto di vista architettonico, invece, il museo è un progetto riuscito a 360 gradi. BIG ha trovato una contrapposizione e una coesistenza efficaci di vecchio e nuovo e anche il bar, adiacente alla sala di proiezione sulla storia del campo, risulta invitante e convincente con il suo allestimento interno e gli arredi creati da Hay, un’azienda della vicina Horsens. Tornando verso il confine tedesco si può visitare un altro progetto realizzato da BIG nella regione: la Marsk Tower, inaugurata nel 2021 e progettata come una doppia elica in acciaio Corten, che offre una magnifica vista sul mare di Wadden danese.

Articoli correlati