Une ar­chi­tec­tu­re em­blé­ma­tique pour fé­dé­rer l'ad­mi­nis­tra­ti­on du sport, la for­ma­ti­on et la re­cher­che de poin­te

Le jury du concours d'architecture a désigné à l'unanimité comme lauréat le projet «La Ruche», des architectes Ünal Karamuk et Jeannette Kuo, basés à Zurich. Ce projet exprime la volonté du canton d'offrir au monde sportif international une plate-forme de compétences unique dans les sciences du sport.

Publikationsdatum
29-10-2013
Revision
08-05-2018
Cedric van der Poel
Codirecteur d'espazium.ch, espace numérique des éditions pour la culture du bâti

Au mois de septembre, le jury a examiné les 25 projets rendus dans le cadre du concours à un seul tour et en procédure ouverte anonyme. Au terme de la procédure, il a désigné à l'unanimité le projet «La Ruche», du bureau zurichois Karamuk*Kuo. Les deux architectes qui le composent ont collaboré à des bureaux de renommée internationale, et réalisent actuellement une école en Thurgovie. Ils sont actifs en outre dans le milieu académique, notamment à l'Université de Berkeley, le MIT, la Harvard University et les EPF. 
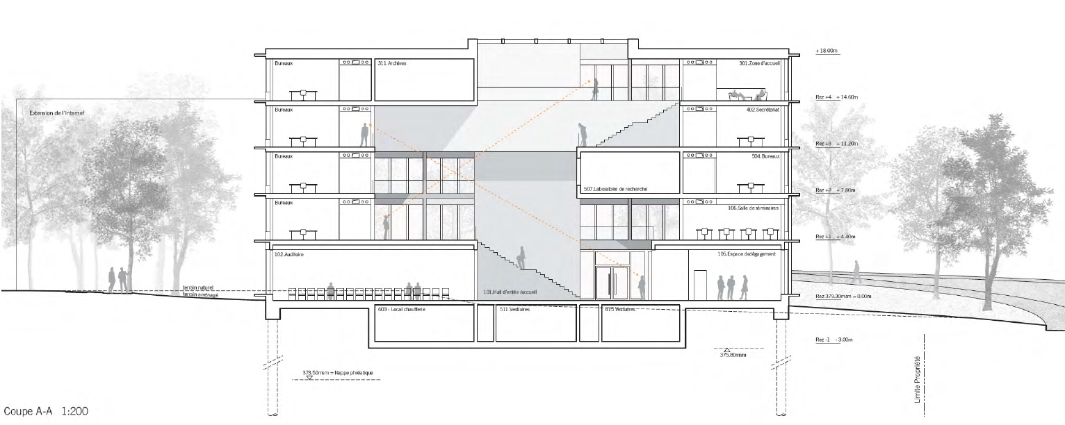
Présidé par l'architecte cantonal Emmanuel Ventura du Service immeubles, patrimoine et logistique, le jury a particulièrement apprécié la clarté des lignes des façades qui s'intègrent harmonieusement dans le site de l'UNIL. Il a souligné également que le concept, d'une grande qualité spatiale, offre une distribution claire des différentes entités tout en favorisant les échanges à travers ses espaces communs. 
Les autorités universitaires ont baptisé le futur bâtiment "Synathlon". Inspiré par les activités qu'il va abriter, ce nom fait directement référence aux joutes sportives, tout en évoquant les synapses et, par là, la rencontre des différents partenaires. Le "Synathlon" s'intègre dès lors aux appellations des autres bâtiments de l'UNIL, fondées sur le principe de mots-valises reflétant les propriétés physiques des bâtiments ou les activités qu'ils abritent. 
Doté d'une enveloppe budgétaire d'environ 23 millions, le nouveau bâtiment se situera à proximité des infrastructures sportives du campus universitaire de Dorigny. Il réunira sous le même toit les compétences scientifiques de l'UNIL et de l'AISTS, la vocation universitaire de la FISU ainsi que le Cluster du sport international. Il constituera ainsi une interface unique en Europe entre le monde du sport international et celui de la formation et de la recherche de pointe dans ce domaine. 
Le Conseil d'Etat vient d'adopter un crédit d'étude de 3 millions qu'il soumet au Grand Conseil afin de poursuivre le développement et finaliser le projet. Il devrait solliciter le crédit d'ouvrage l'an prochain, et la phase de construction pourrait débuter au printemps 2015 pour une mise en service à la fin 2016. 

Pour le palmarès complet consultez notre page "résultat de concours" ici

Verwandte Beiträge