Pa­ris, rue Mou­zaïa

168 logements étudiants et jeunes travailleurs, 14 logements-ateliers pour artistes et espace de coworking.

Publikationsdatum
27-07-2022
Isabel Concheiro
Architecte, professeure et responsable du Joint Master of Architecture Fribourg, HEIA-Fribourg

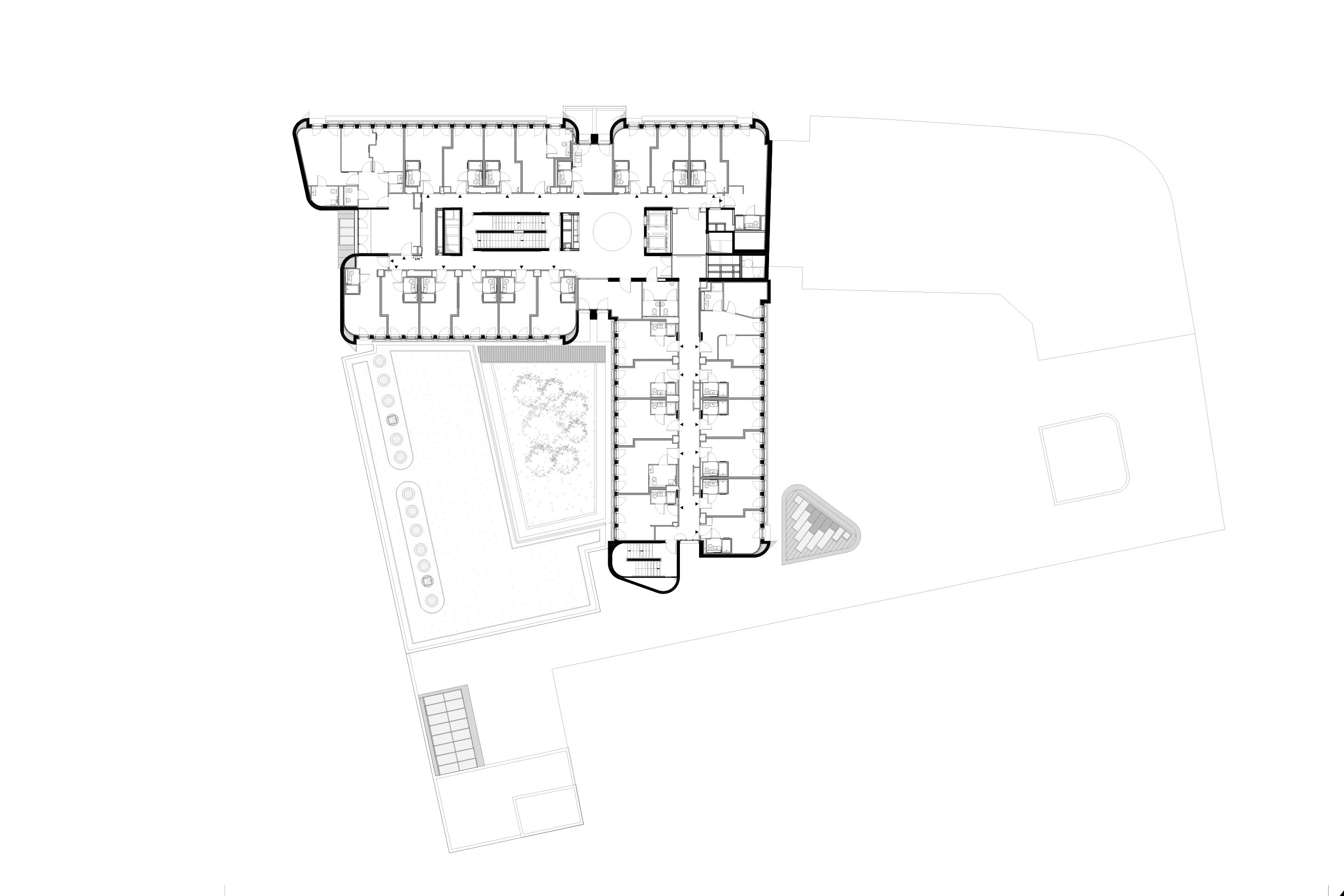
L’immeuble de la rue Mouzaïa à Paris, témoin de l’architecture brutaliste des années 1970, a été construit par les architectes Claude Parent et André Remondet pour accueillir le siège de la direction régionale de la Sécurité sociale en 1974. Ses 8000 m2, propriété de l’État, d’abord abandonnés puis squattés par un collectif d’artistes1, ont été récemment transformés en logements abordables à destination d’étudiants et de jeunes travailleurs. Le projet lauréat du concours propose de ne pas détruire et de valoriser le bâtiment d’origine qui n’avait pas de protection patrimoniale. Suite à cette transformation, il bénéficie désormais d’une protection ville de Paris, Patrimoine 20e siècle et du label Architecture Contemporaine Remarquable du ministère de la Culture, montrant que ces processus peuvent redonner de la valeur à des bâtiments obsolètes et changer le regard qu’on porte sur eux.

«Un bon diagnostic, c’est la moitié du projet», estime l’architecte Patrick Rubin de l’agence Canal architecture, responsable de la maîtrise d’œuvre dans le projet de reconversion de l’immeuble de la rue Mouzaïa. Selon lui, cette première phase permet «d’apprendre de la qualité du bâtiment d’origine, de ses principes constructifs, pour ensuite travailler avec eux». Pour ce projet, l’architecte relève que «l’intelligence du plan d’origine, le système constructif et la position des circulations ont révélé un bâtiment conçu pour être modifiable et capable d’absorber un changement d’affectation».

L’intervention dans l’enveloppe est double: la façade de béton, caractérisée par sa texture et son expression fortes, est réparée et nettoyée in situ et la relation entre les différentes couches de protection thermique et acoustique est réinterprétée. Les menuiseries simples en aluminium sont remplacées par des fenêtres en chêne et des couches de protection extérieures et intérieures qui introduisent un caractère de domesticité dans la puissante structure d’origine.

Au niveau typologique, la transformation en logements étudiants et de jeunes travailleurs implique, d’une part, la définition de typologies d’environ 20 m2 qui s’adaptent à la structure de bureaux avec peu de modifications, et, d’autre part, la création d’espaces communs et de rencontre dans les espaces du hall d’entrée et les circulations des anciens bureaux. Les typologies des logements-ateliers, avec un système de patios en lien avec le premier sous-sol, constituent les prémices de l’exploration de futurs scénarios d’intervention pour la transformation des 6000 m2 en sous-sol, réservoir majeur d’espace et de carbone contenu dans sa structure.

Pour Patrick Rubin, au-delà de l’importance de conserver des bâtiments et d’encourager leur transformation, deux questions fondamentales se posent. La première concerne l’évolution des méthodes: «Comment pourrait-on aller plus loin dans ce type d’intervention en évitant toujours de détruire pour reconstruire à nouveau, de sorte qu’on puisse transformer avec, par exemple, des systèmes préfabriqués qui viendraient s’insérer dans la structure d’origine?» La deuxième question concerne la conception et la construction réversible de projets «afin d’anticiper et de réduire l’effort de transformation dans le futur. Comment faire converger deux marchés et deux cultures constructives différentes, celle des bureaux et celle des logements, jusqu’à présent cloisonnées mais amenées de plus en plus à se concilier?»2

Paris, 58 Rue Mouzaïa

 

Maîtrise d’ouvrage
Régie immobilière de la Ville de Paris (RIVP)

 

Maîtrise d’œuvre
Canal architecture

 

Consultation
2015

 

Études
2015-2016

 

Chantier
2017-2020

Notes

 

1 Collectif «le bloc» (bâtiment libre occupé citoyennement)

 

2 Pour plus d’information sur ces questions voir: Construire réversible (Canal architecture, 2017) et Transformation des situations construites (Canal architecture, 2019)

Tags

Verwandte Beiträge