Drei­mal gut und güns­tig

Wohnraum wird in Basel immer rarer. Das Projekt am Hirtenweg ist ein erster Baustein des Wohnbauprogramms 1000+ des Kantons Basel-Stadt. Die Holzmodulbauweise und eine kluge Etappierung ermöglichen einen schnellen Bau sowie sozial und ökonomisch verträglichen Wohnraum.

Publikationsdatum
06-05-2021
Alexander Felix
Dipl.-Ing. Arch. TUM; Mitglied des Stiftungsrats Architektur Dialoge, Basel

In Riehen bei Basel entstehen im Zuge des Basler Wohnbauprogramms 1000+ drei neue Wohnbauten in Holz­modul­bau­weise. Den Gesamtleistungswettbewerb von 2018 für preisgünstigen Wohnraum gewannen das Team Harry Gugger Studio mit Erne Holzbau und Fontana Landschaftsarchitektur. Ziel war es, möglichst günstigen, zugleich jedoch qualitativ hochwertigen Wohnraum zu schaffen. Tanja Soland, Vorsteherin des Finanzdepartements ­Basel-Stadt, sagte gegenüber der Basler Zeitung, sie erhoffe sich eine «Vorbildfunktion für andere Investoren», in der sich günstige Mieten und Rendite nicht ausschliessen. So lässt sich einer Verdrängung der angestammten Bewohnerschaft entgegenwirken.

Durch eine clevere Etappierung des Bauablaufs muss die Bauherrin keine Kündigungen gegenüber der Mieterschaft aussprechen: Vor dem Abbruch eines der Altbauten ziehen die Mieter in einen bereits fertig­gestellten Neubau um. Die ursprüngliche Bebauung des Areals besteht aus fünf Sozialwohnbauten der Stadt Basel, von denen drei saniert und zwei ersetzt werden. Die erste Etappe der Erneuerung der Siedlung am ­Hirtenweg ist mit dem kleinsten der drei Gebäude nun abgeschlossen. Insgesamt entstehen – nach Abschluss aller Bauarbeiten 2022 – 43 neue Wohnungen.

Effiziente Holzmodulbauweise

Da die Eigentümerin Immobilien Basel-Stadt den Wohnraum zur Kostenmiete vermieten will, war es wesentlich, die Kosten für die Ersatzneubauten zu begrenzen. Hier spielt die von Gugger und Erne vorgeschlagene Holzmodulbauweise eine entscheidende Rolle: Als hochindustrielle Sparte in der Baubranche spielt der Holzbau seine Vorteile durch die wettergeschützte Präfabrikation im Werk aus. Durch die komplett planbaren Arbeiten in präzise vorgefertigten Einheiten konnten auch alle ­weiteren beteiligten Gewerke entscheidend günstiger anbieten als beim Einsatz auf der Baustelle. ­Darüber hinaus sprechen guter Schallschutz und die saubere Trennung von Primär-, Sekundär- und Tertiärstruktur1 für den Holzmodulbau.

Mehr zum Thema Holz gibts in unserem E-Dossier.

Alle Module werden im Werk in Stein komplett mit Fenstern und Bädern ausgebaut und per Tieflader auf die Baustelle gebracht. Die bis zu 15 m langen, 3.85 bis 4.15 m breiten und 13 bis 21 t schweren Module wurden per Autokran drei Geschosse hoch auf den Ortbetonkeller gestapelt. In nur vier Tagen stand so der erste Neubau aus 18 Modulen. Der Innenausbau dauerte dann noch zweieinhalb Monate. Die beiden grösseren Nachfolger werden – inklusive Attikageschoss – aus je 38 Modulen zusammengesetzt. Die kurze Bauzeit und die damit einhergehenden geringeren Lärmemissionen sind ganz im Sinn der Nachbarschaft.

Zeitrafferfilme des Modulbaus finden Sie hier und hier.

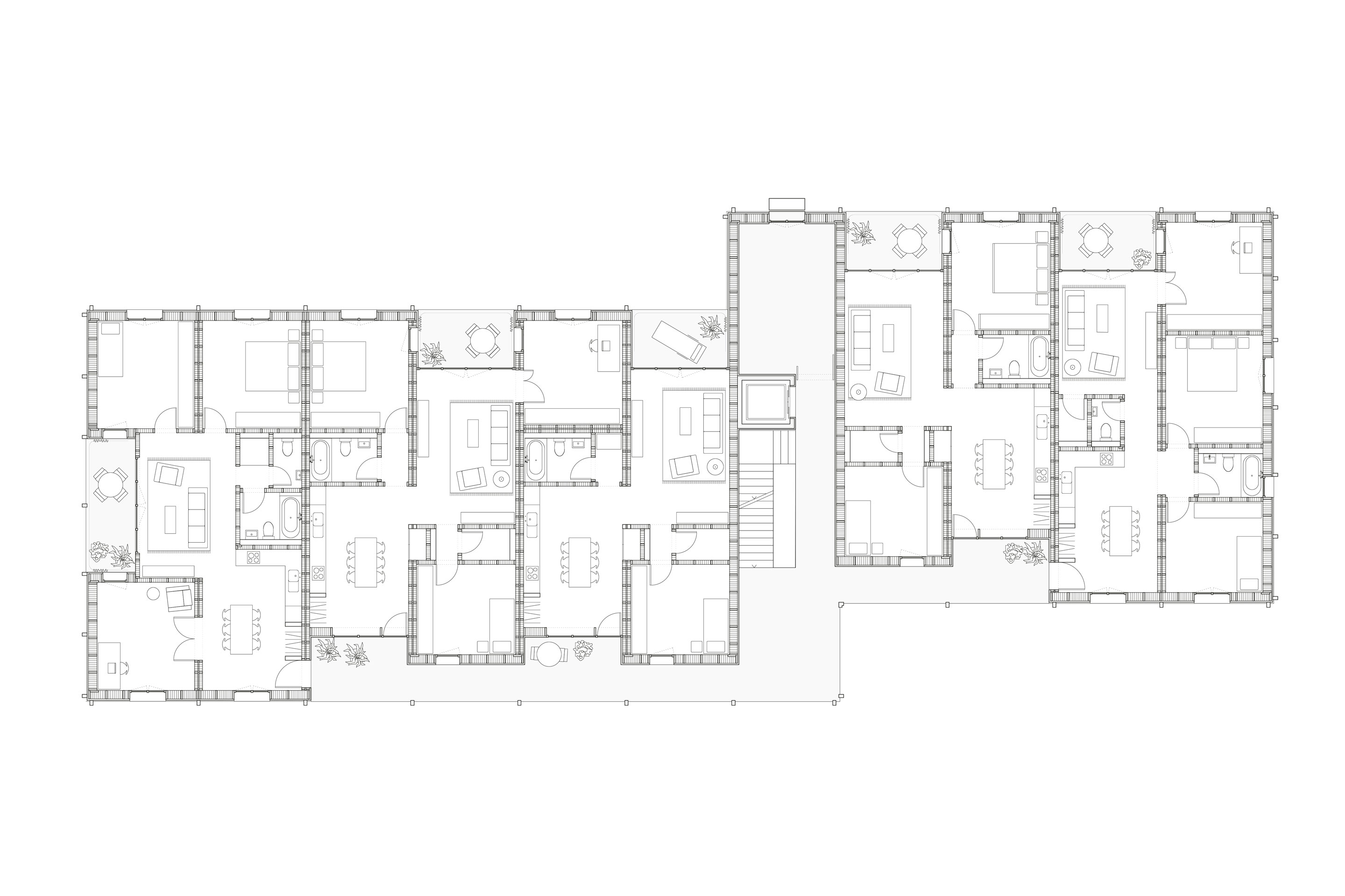
Dabei formuliert Architekt Harry Gugger durchaus Respekt vor den Eigenheiten der grossformatigen Vorfertigung: «Oft wirkt der Modulbau wie eine monotone Stapelung von Kisten, die auch innen durch eine strenge Struktur beengte Räume produziert. Das wollten wir durch möglichst viele diagonale Raumbeziehungen vermeiden und haben den Holzbauern maximale Öffnungen in den Modulen abverlangt.» Der Blick in die Wohnungen überzeugt, dass dieses Vorhaben gelungen ist: Alle Wohnungen sind mit raumhohen Fenstern zu mindestens zwei Seiten orientiert, und grosszügige Öffnungen im Innern überspielen gekonnt die strenge Grundstruktur. Der Öffnungsgrad der Wände erwies sich aber besonders beim Transport der Holzmodule als Herausforderung, da Verwindungen die fertigen Innenräume beschädigen könnten.

Verkehrsflächen erhöhen den Mietpreis

Um die Wärmebezugsfläche möglichst gering zu halten, sind die Neubauten über Laubengänge mit jeweils ­einem offenen Treppenhaus erschlossen. Beim ersten Haus sind drei Wohnungen pro Etage angegliedert, während bei den weiteren Häuser jeweils fünf Woh­nungs­zugänge auf jeder Etage liegen. Die Wohnungen zeichnen sich durch effiziente Grundrisse ohne klas­sische Verkehrsflächen aus – zum Beispiel sind die 4.5-Zimmer-Wohnungen auf 85 m² organisiert. Man betritt die Wohnungen direkt über einen kombinierten Küchen- und Wohnraum. Charakteristisch ist ein versetztes Durchwohnprinzip: Der eigentliche Wohnbereich mit Loggia ist um eine Achse versetzt angeordnet.

Die ausführliche Version dieses Artikels ist erschienen in TEC21 14 /2021 «Günstig wohnen mit Holz».

Wettbewerbsergebnis

Im Rahmen des Wohnbauprogramms 1000+ schrieb der öffentliche Bauträger Immobilien Ba­sel-­Stadt 2018 einen Gesamtleistungswettbewerb für preisgünstigen Wohnraum für die Ersatzbauten am Hirtenweg aus. Die Siedlung grenzt westlich direkt an den Friedhof am Hörnli und befindet sich in unmittelbarer Nähe zum deutschen Grenzach-­Wyhlen – vom Rhein durch eine schmale deutsche Neubauzone, die Bahn­trasse und die Verbindungsstrasse getrennt.

 

Fünf Teams aus federführender Bauunternehmung, Architektur-, Landschaftsarchitekturbüros und Fachingenieuren machten sich auf die Suche nach der optimalen Strategie, um die Siedlung preisgünstig zu erneuern und zu verdichten, da das Potenzial der Parzelle durch die vorhandenen fünf Gebäude noch nicht ausgenutzt war. Dabei schlugen die Teams sehr unterschied­liche städtebauliche Konzepte vor, um die Struktur aus kurzen Zeilenbauten zukunftsfähig umzukrempeln.

 

Sowohl aus ökonomischer Sicht als auch im Umgang mit dem alten Baum- und Gebäudebestand stach der Entwurf von Harry Gugger Studio und Erne Holzbau aus dem Bewerberfeld heraus: Die städtebauliche Setzung der drei Neubauten ergibt sich aus der Über­schneidung von Abstandsflächen, dem Erhalt prägender Baumgruppen, optimaler Orientierung der Wohnungen, rationaler Erschliessungstypologie, der Nutzung bestehender Untergeschosse und der notwendigen Etappierung. Als einziger Vorschlag ermöglicht die Etappierung des Bauablaufs ihres Entwurfs den Verbleib aller Bewohnerinnen und Bewohner. Geschickt besetzen sie den vorhandenen Freiraum mit einem ersten kleineren Neubautyp, in den die Personen aus dem Bestandshaus umziehen, das anschliessend rückgebaut wird. An dessen Stelle entsteht ein zweiter, grösserer Neubau, der wieder­um die Bewohnerschaft der nächsten Rückbau­etappe aufnimmt. Der erste Bau wurde im Januar 2021, der zweite Bau wird im Herbst 2021, der dritte 2022 fertiggestellt. Die Gebäude sind mit ihren Teilunterkellerungen so angeordnet, dass sie sich mit den Volumen der bestehenden Untergeschosse decken, um das Aushub­volumen zu reduzieren und so Transportkosten und Emissionen wesentlich zu mindern.

 

Die östlichste Zeile aus drei Häusern war aus dem Wettbewerb ausgeklammert, da sie sich in einem besseren baulichen Zustand befand. Sie wird zurzeit von anderen Planern aktualisiert.

Wohnbauprogramm 1000+ Kanton Basel-Stadt

2019 hat der Kanton Basel-Stadt als Reaktion auf die Verfassungsinitiative «Recht auf Wohnen» beschlossen, das Wohnbauprogramm 1000+ aufzulegen, um dringend benötigten zusätzlichen preisgünstigen Wohnraum im stark nachgefragten Stadtkanton zu schaffen. Bis 2035 will der Kanton so über 1000 neue Wohnungen bauen und sie preisgünstig vermieten. Die Mietzinsen sollen 15 – 20 % unter der durchschnittlichen Marktmiete einer vergleichbaren Wohnung liegen. Erreicht werden soll dies durch optimierte und gut konzeptionierte Projekte mit kompakten Wohnungsgrundrissen sowie dem In­strument der Kostenmiete, wie sie etwa seit 2018 in der Wohnüberbauung Maiengasse von Esch Sintzel Architekten angewendet wird: Der Mietzins richtet sich nicht nach Marktpreisen, sondern nach den Kosten der Vermieterschaft.

Bauherrschaft: Einwohnergemeinde der Stadt Basel, vertreten durch Immobilien Basel-Stadt (Finanzvermögen)

 

Bauherrenvertretung: Bau- und Verkehrs­departement des Kantons Basel-Stadt, Hochbauamt

 

Totalunternehmer: Erne Holzbau, Laufenburg

 

Architektur: Harry Gugger Studio, Basel

 

Landschaftsarchitektur: Fontana Landschafts­architektur, Basel

 

Elektroplanung: R + B engineering, Brugg

 

HLKS-Planung: Kalt + Halbeisen Ingenieurbüro, Basel

 

Geologie: Holinger, Basel

 

Ingenieur Massivbau: Gruner, Basel

 

Bauvolumen BV: 15 371 m³

 

Geschossfläche GF: 5012 m²

 

Vermietbare Fläche: 3364 m² ohne Balkone

 

Geschosse: 3 Vollgeschosse plus Attika

 

Nutzung:
43 Wohnungen
Haus A: 9 Wohnungen
Haus B: 17 Wohnungen
Haus C: 17 Wohnungen

 

Wohnungsmix: 9 × 2.5-Zimmer-Wohnungen, 10 × 3.5-Zimmer-Wohnungen, 24 × 4.5-Zimmer-Wohnungen

 

Mieten:
2.5-Zimmer-Wohnungen mit 60 m² ca. 1035 Fr. plus Nebenkosten
4.5-Zimmer-Wohnungen mit 86 m² ca. 1475 Fr. plus Nebenkosten

 

Holzdaten:
Haus A 210 m³ (275 m³ inkl. EGSP und Lisene und Fassade)
Haus B 470 m³ (580 m³ inkl. EGSP und Lisene und Fassade)
Haus C 470 m³ (580 m³ inkl. EGSP und Lisene und Fassade) Schätzung

 

Bauzeit: April 2020 – Januar 2021


Anmerkung
1 Primärsystem – lange Lebensdauer (50 – 100 Jahre); z. B. Erschliessung, Tragstruktur, Gebäudehülle. Sekundär­system – mittlere Lebensdauer (15 – 50 Jahre); z. B. Innenwände, Decken und Böden, feste Installationen (Ausbau). Tertiärsystem – kurze Lebensdauer (5 – 15 Jahre); z. B. Apparate, Einrichtungen, Mobiliar.

Verwandte Beiträge