Va­ria­ti­on in Ton

Erweiterung Schulanlage Gönhard, Aarau; Architektur: Boltshauser Architekten, Zürich

Dass Ton in seiner ältesten Verwendungsform, gebunden im Baustoff Lehm, auch heute noch genutzt werden kann, belegen die Erweiterungsbauten der Schulanlage Gönhard in Aarau, die 2012 fertiggestellt werden. Boltshauser Architekten aus Zürich haben die äussere Schale der Baukörper als Trasskalkwände realisiert. Die Zugabe von Trasskalkmörtel verbessert die Eigenschaften des Lehms – ein Beispiel dafür, wie der Lehmbau weiterentwickelt wurde. Gleichzeitig spannt die Innengestaltung mit der Verwendung von Keramikfliesen den Bogen zu einer der feinsten Verarbeitungs-varianten von Ton.

Publikationsdatum
16-01-2012
Revision
25-08-2015

Die Schulanlage Gönhard ist das grösste Primarschulhaus der Stadt Aarau. 1952 als Ensemble aus Pavillonbauten von Hans Hauri errichtet, gliedern die Baukörper Pausenhöfe und Grünbereiche und zeugen damit vom Geist ihrer Entstehungszeit. Die Stadt Aarau hatte 2006 infolge einer notwendig gewordenen Instandsetzung der heute denkmalgeschützten Schule sowie der Anpassung an veränderte Bedürfnisse im Schulbetrieb fünf General-planerteams beauftragt, Lösungsvorschläge nach einem vorgeschalteten Studienauftrag mit Präqualifikation zu erarbeiten. Das Konzept der siegreichen Zürcher ­Architekten überzeugte durch die schlüssige Zuordnung der unterschiedlichen Nutzungen, die sensible Positionierung der Neubauten, einen respektvollen Umgang mit den Altbauten sowie durch seine Wirtschaftlichkeit. Dabei wurde das Angebot in den bestehenden Klassentrakten und Lehrerbereichen durch Neuorganisation und die dadurch mögliche Bereitstellung zusätzlicher Räume verbessert. Zudem ergänzen eine neue, unterkellerte Aula, zwei eingeschossige Gruppenräume und zwei Pausenunterstände das Ensemble. Die Baumassnahmen fanden bei laufendem Betrieb statt. Jeweils ein Klassentrakt wurde umgebaut, während der Unterricht in ein Provisorium auf dem Gelände ausgelagert war. Die Massnahmen erfolgten in enger Abstimmung mit der Denkmalpflege. Während die neuen Anbauten bereits fertig sind, wird die dritte Sanierungsetappe 2012 abgeschlossen. Sowohl die erneuerten bestehenden Bauten als auch die Erweiterungen erfüllen die Anforderungen des Minergiestandards.

Miteinander von Alt und Neu

Steht man vor der Schule, wird die Qualität der Ergänzungsbauten nachvollziehbar. Die ­Körper sind präzise platziert und ergänzen das bestehende Ensemble sinnfällig. Das Spiel zwischen Gebäuden und Freiräumen, die Gliederung der Aussenbereiche in eine Folge von Höfen und angrenzenden Grünflächen, wird durch die Neubauten gestärkt. Die Gruppen­räume sind gelenkartig über schmale Flurbereiche an die Kopfenden der Klassentrakte ­angebunden und bilden den Abschluss der Pausenhöfe, während die unterkellerte Aula an der Stelle der ehemaligen, nicht mehr genutzten Hauswart-wohnung direkt neben dem Hauptzugang liegt und diesen räumlich fasst. Sie wird über die bestehende Eingangshalle erschlossen und bildet mit dem Verbindungstrakt und der Sporthalle einen ­rückwärtigen Hof. Die beiden Pausenunterstände stehen mit Abstand zu den Höfen und markieren die Übergänge zum angrenzenden Strassenraum. Die Gliederung der Fassaden ist eine Reaktion auf den Kontext und das Raumprogramm: Die dem Lernen gewidmeten Gruppenräume liegen mit geschlossenem Rücken zum Strassenraum. Sie betonen die konzentrierte Nutzung im Inneren und die Intimität der Höfe, zu denen sie sich mit einem grossen Fenster öffnen. Ausserdem schaffen sie Blickbezüge zu den Klassentrakten. Die Aula dagegen öffnet sich auch an der zur Strasse orientierten Längsseite mit grossformatigen Fenstern und stellt ihr Innenleben aus. Die bewusste Platzierung der Öffnungen ist eine Reaktion auf den baulichen Kontext. Die aus dem rechten ­Winkel geneigten Wände der Neubauten verweisen auf die Volumen des ehemaligen Singsaals sowie der Windfänge zwischen den Verbindungsbauten.

Trasskalkwände – Ausdruckskraft des rohen Materials

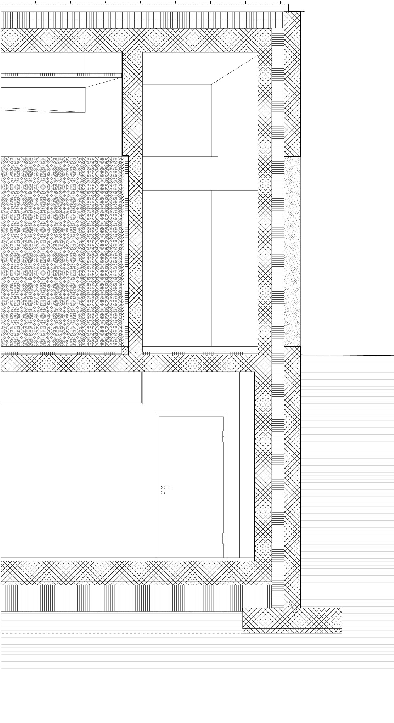
Die Fassaden der Gruppenräume und der Aula sind zweischalig, mit zwischen den Betonschalen liegender Dämmung ausgeführt. Die innere Schale besteht aus Stahlbeton, die ­äussere Schale aus 22 cm starken Trasskalkelementen. In der Oberfläche der gestampften Wände zeichnen sich die schräg angeordneten Latten der Schalungselemente ab. Die Wände (60–420 cm × 22 cm × 275 cm) wurden im Werk produziert und jeweils in einem Stück hergestellt. Aufgrund des Gewichtes mussten sie jedoch für den Transport auf die Baustelle in Elemente mit einem maximalen Gewicht von 5.86 t geteilt werden. Dazu wurden in die Schalung vertikale Metallbänder eingelegt, die nach dem Ausschalen als «Sollbruchstellen» die Teilung erlaubten. Die einzelnen Elemente wurden vor Ort wieder zusammengesetzt. Die horizontale Schichtung, die das lagenweise Verdichten durch das Stampfen erzeugt, bleibt so erhalten. Die aus der Herstellung bedingte Oberfläche wird damit zum Gestaltungselement. Einerseits unterstreicht das lebendige Material den massiven Eindruck der Wände, andererseits erzeugt seine beinahe stoffliche Wirkung eine Leichtigkeit, die mit den pavillonartigen Fassaden der Klassentrakte harmoniert. Das Nebeneinander von Trasskalkwänden, Putzflächen und hölzernen Brüstungen ist verblüffend selbstverständlich. Die Sorgfalt, die einst Hans Hauri in die Ausführung der Fassade legte, prägt auch die Ergänzungsbauten. Die Proportionen sind stimmig, die Details überlegt. So sind Sockel und Attika in Ortbeton ausgeführt und formulieren einen massiven Rahmen für die Trasskalkschalen, der die sich aufdrängende Analogie zu einem Vorhang noch betont. Gleichzeitig schaffen sie präzise Gebäudekanten, die die Plastizität der Volumen herausarbeiten. Auch die zu ihrem Fuss hin konisch zulaufenden Fertigteilstützen, die die Dachkonstruktion der Pausen­unterstände und das Eingangsdach mittragen, erhalten allein durch diese Formgebung ihre Präsenz und der unter den Dächern entstehende Raum seinen Abschluss.

Veredelter Ton – aussen roh, innen fein

Diese gewissenhafte Detaillierung setzt sich im Inneren fort. Die sorgfältige Materialisierung, die sich im Altbau findet, die Korridore mit den Natursteinböden und die holzverkleideten, in Teilen bemalten Decken, das grosse Wandmosaik in der Eingangshalle sowie die Mosaik- und Sgraffitoarbeiten an den Wänden der Flurbereiche zeugen von hoher gestalterischer Qualität. Die Neubauten spiegeln diesen Anspruch wider. Während die beiden Gruppenräume entsprechend ihrer Nutzung zurückhaltend ausgestattet sind, übersetzt die Aula den Gestaltungsanspruch in eine zeitgemässe Ausführung. Die Wände sind mit dreidimensionalen, ornamentalen Keramikfliesen verkleidet, die die Wandflächen zwischen den grossen Fensterelementen füllen. Die 25 × 25 cm grossen Fliesen sind eigens für die Aula in Handarbeit angefertigt worden. Sie wurden vor Ort zu grösseren Wandelementen von 75 × 75 cm verklebt, anschliessend vor die Unterkonstruktion geklebt und stellenweise verschraubt. Die dahinter durchschimmernden, rot gestrichenen Gipskartonplatten sind zur Verbesserung der Raumakustik entweder absorbierend (gelocht) oder schallhart (glatt) ausgeführt. Auch im Bodenbelag finden sich Keramikfliesen, sie sind – versehen mit einem Blättermus-ter, das von den Schulkindern in Zusammenarbeit mit der Keramikkünstlerin Marta Rauch entwickelt wurde – im Estrich eingelegt. Das Muster steht aus den Platten hervor, die in vier Feldern im Bodenaufbau eingepasst sind. Die abschliessende Lehm-Kasein-Spachtelung lässt abgeschliffen von den Platten nur das Motiv sichtbar, das sich als dezentes Muster abzeichnet. Die Lage der Platten gibt zudem Hinweis auf die Tragstruktur der frei spannenden Deckenkonstruktion. Die kreuzförmig diagonal durch den Raum laufenden Unter­züge gliedern den Raum und betonen dessen eigenen, durch die aus dem rechten Winkel gedrehten Wände entstehenden Charakter.

Vielfalt des Materials

Gestaltfindung, Materialwahl und räumliche Disposition zeichnen die Ergänzungsbauten der Schulanlage Gönhard aus. Die feinen Keramikarbeiten in der Aula stellen den rauen, geschalten Oberflächen der Trasskalkelemente im Aussenbereich eine weitere Stufe der Materialverarbeitung zur Seite. Die Plastizität der Fassaden – die durch Tageslicht und Witterung bedingten Veränderungen der Oberflächen aussen wie die stoffliche Wirkung der Keramikarbeiten innen – geben dem Begriff «Wand» eine eigene Betonung. Die Elemente zeugen von der intensiven Auseinandersetzung mit den Eigenschaften, der Verarbeitung und den Einsatzmöglichkeiten von Ton. Um das Material so vielfältig anzuwenden, bedarf es der Neugier: Das Ausloten der Möglichkeiten ist dafür ebenso eine Voraussetzung wie die Kenntnis um die Eigenschaften des Baustoffs. Die Erweiterungsbauten in Aarau sind vor diesem Hintergrund auch ein Beispiel für die Kooperation zwischen dem Architekten Roger Boltshauser und dem Lehmbauspezialisten Martin Rauch.

Am Bau Beteiligte


Bauherrschaft
Einwohnergemeinde Aarau vertreten durch Stadtbauamt, Aarau
Sebastian Busse (Projektleiter) Kantonale Denkmalpflege, Aarau
Reto Nussbaumer


Architektur
Boltshauser Architekten AG, Zürich
Roger Boltshauser, Jan Schlüter (Projektleiter)


Tragkonstruktion
ARP Rotzetter + Partner AG, Aarau
Ralf Betschart


Elektrotechnik
IBG Graf AG, Winterthur
Patrick Allenspach


Heizungs- und Lüftungstechnik
Todt Gmür + Partner AG, Zürich
Nicole Hilgendorf
Marcel Laube


Haustechnik (Sanitär)
BLM Haustechnik AG, Zürich
Marco Riniker


Bauphysik
Mühlebach Akustik + Bauphysik, Wiesen­dangen
Stefan Schwyn


Landschaftsarchitektur
4d AG, Bern; Maurus Schifferli, Christian Früh

Lehmbau und Keramikarbeiten


Trasskalkfassade und Lehm-Kasein-Boden
Martin Rauch, Lehm Ton Erden Baukunst GmbH
Schlins und ERDEN Lehmbau GmbH, Rötis


Keramikarbeiten
Marta Rauch mit Sebastian Rauch

Magazine

Verwandte Beiträge