Ur­ba­ne En­sem­bles

Terrassenhaussiedlungen revisited

Der Architekt Hans Ulrich Scherer hat mit seinen Entwürfen für Terrassensiedlungen in den 1960er-Jahren eine dichte, urbane Typologie entwickelt, die überzeugt. Zwei seiner Entwürfe, die Siedlungen Mühlehalde und Brüggliacher, zeigen beispielhaft, dass dieser Bautyp einen Beitrag zur Nachverdichtung leisten kann.

Publikationsdatum
31-08-2017
Revision
31-08-2017

Die Zeitschrift «Schöner Wohnen» veröffentlichte in ihrer Ausgabe 10/19661 einen Beitrag zur Siedlung Mühle­halde in Umiken, Brugg. Darin schreibt die Redaktion, dass die Qualität einer Hangsiedlung auch davon lebe, dass das einzelne Haus nicht ablesbar sei. Sie nennt noch einige weitere Punkte, die eine gute Terrassensiedlung auszeichnen. Darunter etwa ihre Lage im und nicht auf dem Hang, die die Planung der Anlage mit den topografischen Gegebenheiten des Areals bedinge und eine Verschränkung der einzelnen Wohnungen mit sich
bringe; sowie die Verschränkung von öffentlichen Bereichen mit Hauszugängen, Spielplätzen und der Erschliessung. Das Wohnen in der Terrassensiedlung gleicht in einer solchen räumlichen Konfiguration dem Wohnen in einem Quartier. Dabei entsteht das räumliche Gesamtbild aus dem Zusammenspiel der einzelnen Elemente. Die Hangsiedlung ist in diesem Sinn ein durchaus dichtes, städtisches Ensemble.

Beide Aspekte spielen bei heutigen Planungen leider zu selten eine Rolle. Sogenannte «Terrassensiedlungen», die so manche Landschaft in den Agglomerationen unserer Städte und Gemeinden verschandeln, sind oftmals als voneinander abgeschottete «Einfamilienhäuser» geplant und realisiert. Damit dies möglich ist und die sich in der Regel auf einem Geschoss ausbreitenden Wohnungen untereinander nicht einsehbar sind, werden die Wohnungen im immer gleichen Winkel auf die Hänge gestapelt. Entsprechend autistisch stehen die Anlagen gegen den Hang, auf dem sie sitzen.

Das Tragische ist, dass sie nicht als Ensemble geplant und entwickelt sind und keinerlei aussenräumliche Qualitäten aufweisen, die zuvor beschriebenen Aspekte also ignorieren. Öffentliche Räume fehlen in diesen Strukturen. Hinzu kommen eine gewisse Ignoranz gegenüber dem unmittelbaren Umfeld und die daraus resultierende bauliche Zersetzung unserer ohnehin bedrängten Landschaftsräume sowie die fehlende Dichte. Derartige Anlagen haben nichts mit dem Typ der Terrassensiedlung zu tun, den Scherer propagierte. Sie stellen vielmehr eine verkümmerte Auslegeordnung derselben dar. Dass sie in die Kritik geraten, ist verständlich.

Dabei kann die Typologie einen Beitrag leisten zur Schaffung von Wohnraum in dichten Strukturen, sofern man sie als städtisch-räumliches Gefüge auffasst und entwickelt. Die Siedlungen Mühlehalde in Umiken (1963–1971) und Brüggliacher in Oberrohrdorf (1966–1971/72) sind Beispiele gelungener Planungen, die einer solchen Haltung verpflichtet sind.

Alternative Wohnmodelle

Fährt man mit dem Zug von Zürich Richtung Basel, fällt der Blick des Reisenden nach dem Halt in Brugg und vor dem Passieren der Aare auf die Siedlung Mühle­halde am Hang über dem Fluss. Federführend für ihren Entwurf war Hans Ulrich Scherer. Der Absolvent der ETH Zürich und ehemalige Mitarbeiter von Alfred Roth wollte mit seinen Projekten der in den 1960er-Jahren einsetzenden Zersiedelung der Landschaftsräume im Aargau entgegenwirken. Die Mühlehalde ist gebautes Ergebnis des von Scherer initiierten Projekts «Brugg 2000», das er mit seinen Partnern Strickler und Weber als «team brugg 2000» entwickelte und zunächst in einer Ausstellung der Bevölkerung präsentierte.

Städte­baulich gliederten die Architekten Brugg in Alt, Mittel- und Neustadt und definierten neue, verdichtet bebaute Wohngebiete an den Hängen des Bruggerbergs und Lindhofs. Die zwischen 1963 und 1966 (1. Etappe) bzw. 1971 (2. Etappe) von team 2000 in Kooperation mit ­Metron Architekten realisierte Siedlung wurde von den Architekten vor diesem Hintergrund als Modellplanung für verdichteten Siedlungsbau verstanden.

Für Scherer sind Terrassensiedlungen gegenüber grossformatigen Wohnsiedlungen und den sich ausbreitenden Einfamilienhausgebieten als kompakte Wohntypologie mit privaten wie öffentlichen Aussenräumen eine attraktive Alternative. Entsprechend ist die Siedlung Mühlehalde ein Beitrag zur Diskussion um alternative Wohnformen. Dass die Beschäftigung mit derartig (verdichteten) Wohnmodellen in die Zeit gehörte, zeigen auch Publikationen wie die vom Darmstädter Architekten Ot Hoffmann zu «Neuen urbanen Wohnformen», die 1965 erschienen ist und in der sich der Herausgeber neben Gartenhofhäusern und Teppichsiedlungen auch mit Terrassenanlagen befasst.2

«Spinnweb urbaner Lebensform»

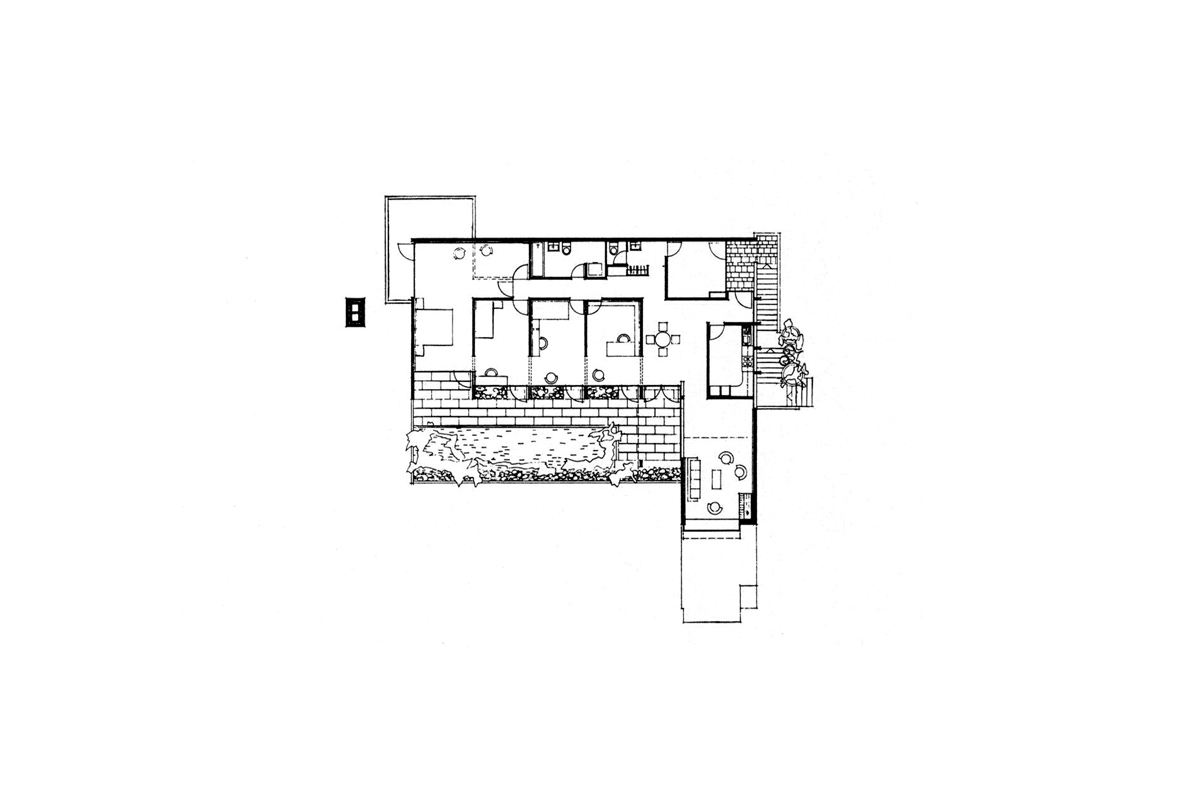
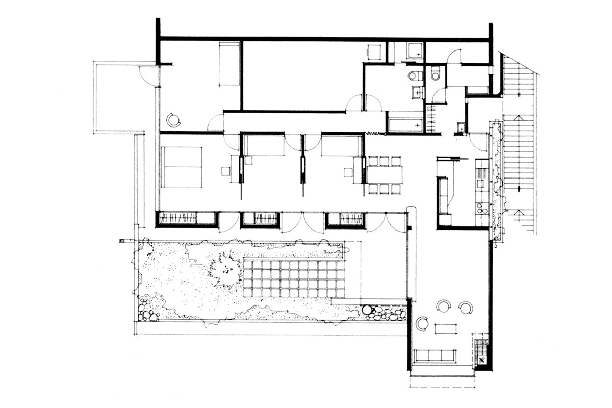
In der Publikation sind Pläne und Modelle der Siedlung Mühlehalde abgebildet. Hoffmann zitiert die Archi­tekten, die ihre Planung als «Spinnweb neuer urbaner Lebensform» beschreiben. Dass sie die Siedlung als «urban» bezeichnen, spricht für ihr Verständnis gegenüber dieser Wohnform, die auch das Zusammenleben der Bewohner in einem räumlich-städtischen Gefüge umfasst. Was die Siedlung auszeichnet, ist die Varia­tion  des Terrassentyps, die mit dem relativ steilen Hang verknüpft ist, in dem sie liegt.

Der «Städtebau» entwickelt sich aus einer netzartigen Erschliessungsstruktur. Dies kam dem in zwei Etappen ausgeführten Bau der Anlage zugute und hätte zudem mögliche spätere Erweiterungen begünstigt. Die Siedlung umfasst heute 30 Wohnungen und Ateliers. Rückgrat der Erschliessung ist ein in die Erde gelegter Schräglift, davon ausgehend spannt sich ein Netz aus Wegen und Treppen auf, an das die Wohnungen angebunden sind. Die Treppenstrassen erinnern mit der kompakten Wohnbebauung an städtebauliche Strukturen in Bergregionen.

Von den Treppen aus sind die Wohnungen unmittelbar erschlossen, wobei die Bauten der zweiten Etappe mit Vorplätzen über eine grosszügigere Zugangssituation verfügen. Die Wohnungen sind ausgehend von einem Typengrundriss variiert. Nasszellen und dienende Räume sind in den Hang gesetzt und bilden eine rückwärtige Spange. Zur Aussicht nach Süden sowie an den Schmalseiten nach Westen und Osten sind Zugang, Wohn- und Schlafräume angeordnet. Die Raumaufteilung erfolgte entsprechend den Bedürfnissen der Bewohner. Je nach Grösse verfügen sie über Einliegerwohnungen. Zudem sind Ateliers und Kleinwohnungen als zweigeschossige Maisonette ohne Terrassen in die Hangsiedlung integriert.

Öffentlicher und privater Raum

Dass die Häuser als solche in einem Ensemble aufgehen, hat einerseits mit der Struktur der Erschliessung zu tun, andererseits mit der Ausbildung der privaten Aussenbereiche. Die Wohnterrassen sind schmal. An den Kopfenden der lang gezogenen Wohnungen liegen teils loggienartige ausgebildete Sitzplätze. Sie schaffen vor Blicken geschützte Zonen mit Ausblick auf die Aare. Da jedoch keine tiefen Aussenbereiche die gesamten Wohnbreiten überspannen, dominieren nicht die einzelnen Wohnungen das Ensemble, im Gegenteil, sie treten als Bauteile der Siedlung zurück. Dieser Effekt ist heute umso stärker, als die begrünten Terrassen und Pflanztröge die Anlage als grüne Oase erscheinen lassen.

Die Siedlung ist gelungenes Beispiel einer mit der Topografie entwickelten Typologie, deren räumliche Wirkung sich erst im Durchwandern der Anlage entfaltet. Die Verschränkung von Treppen, Wegen, den angegliederten Gemeinschaftsräumen sowie den Vorgärten und Eingangsbereichen schafft Abstufungen öffentlicher Bereiche, die gleichzeitig eine gewisse Intimität ausstrahlen. Die Wohnungen liegen als Rückzugsbereiche mit ihren privaten Terrassenzonen dazwischen als Teile eines homogenen Ensembles. Offensichtlich wird die Qualität dem Zugreisenden, der sie eingekeilt zwischen Hangsiedlungen jüngeren Datums erblickt, die nicht mit dem Hang, sondern gegen den Hang gebaut wurden und sich folglich über ihm erheben. Die Siedlung Mühlehalde ist dazwischen – und das sagt viel über ihre räumlichen Qualitäten aus – erst auf den zweiten Blick auszumachen.

Städtisches Gefüge

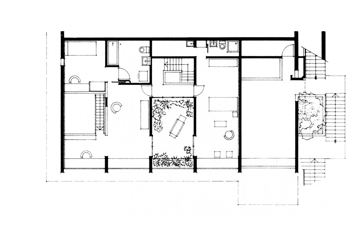
Noch während in Umiken gebaut wurde, arbeitete Hans Ulrich Scherer an einer weiteren Terrassensiedlung in Oberrohrdorf am Rohrdorferberg bei Baden. Auch bei dieser Anlage stand der Wunsch nach einem verdichteten, in sich stimmigen Ensemble im Zentrum des Entwurfs. Die Siedlung ist dabei für den deutlich flacheren Hang entwickelt, in dem sie sitzt. Er ermöglichte zudem die Ausbildung eines zentralen Platzes. Während in Umiken zuerst eine Wohnsiedlung ent­standen ist, erreichte die Siedlung in Oberrohrdorf zudem erstmals jene Grösse, die Scherers Vorstellung von einem städtischen Gefüge mit Gemeinschaftsnutzungen entsprach.

Das in der Mitte der Siedlung angeordnete Freibad mit Liegewiese und überdachtem Hallenbad (das heute allerdings nicht mehr in Betrieb ist) schliesst an den zentralen Platz an, den «Dorfplatz», und bildet zusammen mit diesem und einem Kinderspielplatz das Zentrum der Anlage. Sind in Umiken Treppen und Podeste die Orte eines informellen Austauschs zwischen den Bewohnern, so hat die Siedlung in Oberrohrdorf mit der Anlage des Platzes und den zugeordneten Nutzungen dezidiert öffentliche Räume erhalten.

Die Ausbildung einer zentralen, gemeinschaftlichen Plattform als Treffpunkt erinnert an die Siedlung Halen in Bern von Atelier 5 (1957–1960). Auch die Integration der oben beschriebenen öffentlichen Nutzungen macht Scherers Anspruch deutlich, die Anlage als in sich funktionsfähiges Ganzes, als städtisches Gefüge zu gestalten. Die Organisation der Anlage reagiert auf diesen zentralen Bereich, indem die einzelnen Wohnungen so angeordnet sind, dass die privaten Aussenbereiche geschützt liegen. Die Siedlung umfasst heute 50 Wohnungen, davon 39 Terrassen- und Atelierwohnungen.

Qualitäten des öffentlichen Raums

Über den unteren beiden Hausgruppen liegt der «Dorfplatz» mit den beiden Schwimmbädern und dem Kinderspielplatz. Erschlossen sind sie, wie in Umiken, durch eine zentrale Treppenstrasse. In Oberrohrdorf heisst sie Trittligasse, benannt nach einer Namens­vetterin in der Zürcher Altstadt. Die Auswahl des Stras­sennamens verrät viel über die Vorstellung Scherers vom Charakter der Siedlung.

Dichte Strukturen mit einem unmittelbaren Aufeinandertreffen von öffentlichem und privatem Raum schaffen eine kompakte urbane Situation. Die Treppenanlage bildet zwischen den Wohnungen Be­gegnungsorte der Bewohner. Entsprechend sorgfältig hat Scherer sie orchestriert: gestaffelte, sich in die Höhe entwickelnde Abfolgen von Raum- und Platzsituationen mit zu den Wohnungseingängen überleitenden privaten Vorbereichen oder gesondert ausgebildeten Zugängen. Die Treppenanlage wird dadurch zu einer sich in die Höhe entwickelnden Landschaft, gegliedert mit Pflanztrögen, die die Abstufung von Raum, die Übergänge von öffentlich zu privat begleiten. Die oberen Hausgruppen fassen den Dorfplatz und bilden zur oberen Strasse einen räumlichen Abschluss.

Wie in Umiken gibt es für die einzelnen Wohnungen Grundtypen, die je nach Bedarf der Bewohner variiert werden können. Auch hier sind die dienenden Räume in den Hang gesetzt, während die Aufenthaltsräume zum Ausblick nach Südwesten ausgerichtet sind. Dabei liegen – und auch hier sind die Typologien vergleichbar – die Essbereiche zu den öffentlichen Erschliessungswegen bzw. -treppen. Sie öffnen sich zum dahinter geschützt liegenden privaten Aussenbereich, den Terrassen, die auch in Oberrohrdorf schmal sind und damit das Gesamtbild der Anlage nicht dominieren.

Beide Siedlungen sind autofrei, Parkgaragen bzw. Parkmöglichkeiten befinden sich an den erschlies­senden Strassen, von denen aus die Anlagen wenig einsehbar sind. Obwohl die Anzahl der Wohnungen die der umliegenden Bebauung bei Weitem übersteigt, verschwinden die beiden Hangsiedlung beinahe in ihrer Umgebung. Der geschickte Umgang Scherers mit den topografischen Gegebenheiten wird hier deutlich.

Und heute?

Die Siedlung Mühlehalde wird von ihren Bewohnern geschätzt und liebevoll gepflegt. Das Grün, das wie in der Siedlung Brüggliacher die Gliederung des Wege- und Treppennetzes begleitet, hat sich den Raum erobert und unterstützt die angelegte räumliche Gliederung, schafft Orte unterschiedlicher Qualität und Öffentlichkeit. Die in die Jahre gekommenen Betonoberflächen haben den Charakter von Fels angenommen, das Grün bringt sie an so mancher Stelle zum Verschwinden. Die Verzahnung mit dem Hang wird am oberen Ende der Siedlung geradezu sinnbildlich, wo die begrünten Dächer scheinbar nahtlos in die angrenzenden Wiese übergehen.

In Oberrohrdorf führt eine Sanierung der Betonoberflächen in Verbindung mit einer deutlich übersichtlicheren Bepflanzung zu einem beinahe nüchternen Gesamteindruck, dennoch sind die räumlichen Qualitäten der Anlage bestechend. Sein Gespür für den Ort, das Ensemble, hat Scherer auch hier unter Beweis gestellt.

Anmerkungen
1 «Häuser am Hang», in: Schöner Wohnen 10/1966, «Wie werden wir morgen Leben?», S. 126–131.
2 Ot Hoffmann, Christoph Repenthin, Neue urbane Wohnformen, Berlin, Frankfurt am Main, Wien 1966 (2. Auflage), S. 132.
 

Verwandte Beiträge