In al­ter Fri­sche

Orientierung nach Farben ist für Kinder ein Leichtes. Bei der Instandsetzung eines Zürcher Kindergartens legten Bischof Föhn Architekten die Farbe als Leitmotiv zugrunde.

Publikationsdatum
17-03-2020

Der Kindergarten Farenweg in Zürich Wollishofen ist eine typologische Besonderheit: 1928 vom Zürcher Stadtbaumeister Hermann Herter (1877–1945) errichtet, ist er einer der ersten frei stehenden Kindergärten, die zu jener Zeit in Zürich gebaut wurden. Vor Beginn der Instandsetzung 2017 war er nicht denkmalgeschützt. Die Stadt Zürich beabsichtigte, ihn nach der Erneuerung ins Inventar schützenswürdiger Bauten aufzunehmen. Dies geschah im Frühling 2019.

Klare Raumstruktur

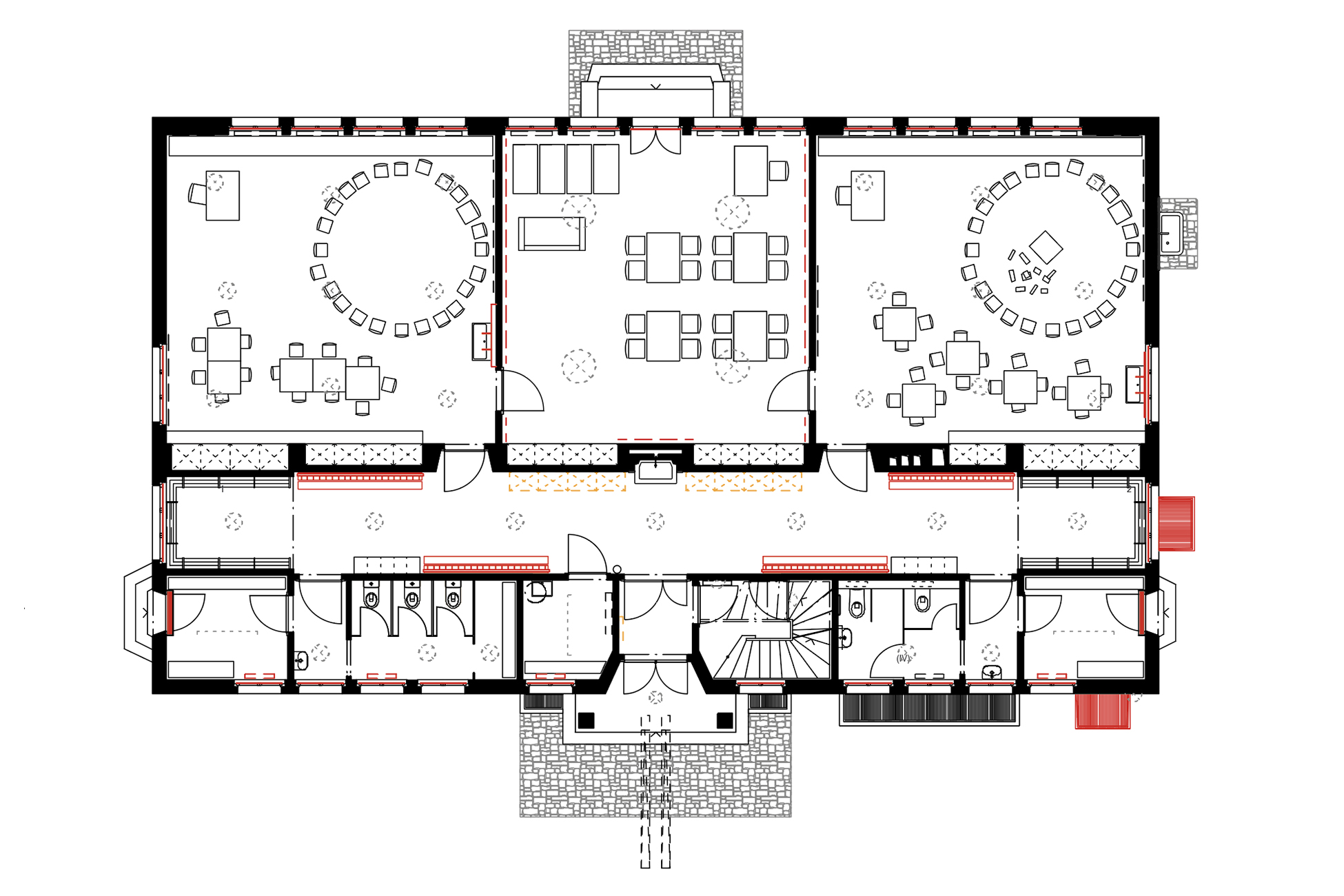
Das Gebäude ist einfach gegliedert. Die drei 60 m² grossen Räume sind nach Süden ausgerichtet. An den Aussenseiten liegt je ein Kinder­garten-Hauptraum, dazwischen ein Spielzimmer, das von beiden Gruppen benutzt werden kann. Die Sequenz der Räume ist durch eine Enfilade verbunden. Nördlich der Haupträume schliesst sich ein grosszügiger Korridor an, der sich über die ganze Gebäudebreite erstreckt. Hier sind die Kleiderhaken, Sitz­bänke und Schuhregale für die ­Kinder untergebracht. In einer darauf folgenden, nördlicheren Raumschicht befinden sich der Haupt­zugang zum Gebäude sowie die Nebenräume mit Küche, Toiletten, Technikraum und Lagerflächen. Vom gepflasterten Vorplatz erreicht man den Haupt­eingang über ein zweistufiges ­Podest.

Vom Eingangsbereich führt eine einläufig halbgewendelte Holz­treppe ins Obergeschoss. Ursprünglich gab es dort eine ­Wohnung für eine Kindergarten-Lehrperson. Sie wurde später als Büro um­genutzt, und heute, nach der Sanierung, ist hier ein Hort mit zwei Gruppenräumen, Küche und Bad untergebracht.

Das rechte Mass

Die Instandsetzung des Kindergartens wurde nötig, da die Kellerdecke − eine Ton-Hourdisdecke über einem Kriechkeller, der die Räumlichkeiten gegen den Baugrund isolieren sollte − in marodem Zustand war. Die Stadt entschied sich für eine komplette Instandsetzung des Gebäudes und führte 2015 ein Planerwahlverfahren durch, bei dem die Teilnehmenden auch einen Vorschlag für den Umgang mit der historischen Decke machen sollten. Ursprünglich forderte die Denkmalpflege einen Erhalt, doch nach eingehender Begutachtung stellte sich heraus, dass die Decke nicht mehr zu retten war.

Bischof Föhn Architekten aus Zürich setzten sich mit ihrem Entwurf im Wettbewerb durch. Bereits im Konzept kamen sie zum Schluss, dass die Kosten-Nutzen-Relation beim Erhalt der Decke unverhältnismässig und wenig nachhaltig wäre. Sie schlugen vor, den Luftraum aufzuschütten und eine neue Beton­decke einzuziehen, die die Installation einer Bodenheizung ermöglichte. Die alten (noch funktionstüchtigen) gusseisernen Radiatoren konnten so erhalten bleiben. Dank der neuen Fussbodenheizung stört es nicht, wenn sie eines Tages ausfallen.

Die Architekten ergriffen weitere Massnahmen zur Verbesserung der Energiebilanz wie die Aufdopplung der alten Fenster, und sie ersetzten die Ölheizung durch eine Luft-Wasser-Wärmepumpe. Zudem erneuerten sie die Sanitärinstallationen, die Gebäudetechnik und die Fassade. Aufsteigende Feuchtigkeit im Mauerwerk hatte den ursprünglichen Putz beschädigt, im unteren Fassadenbereich hatten sich Abplatzungen und Hohlstellen gebildet. Nach Erstellen eines Rissprotokolls wurde klar, dass man den Putz im unteren Fassadenbereich nicht erhalten konnte. Er wurde entfernt, der Sockel gegen Feuchtigkeit geschützt und nach historischem Befund neu verputzt und gestrichen.

Zudem wurde das zum Kindergarten zugehörige Areal aufgefrischt mit einer neuen Umzäunung, Belagsarbeiten, Ergänzungen an der Bepflanzung und einer Erneuerung des Kiesplatzes bei den Spielgeräten.

Von Farben und Tieren

Zum Zeitpunkt der Ausschreibung des Planerwahlverfahrens wies der Bau im Innern eine monotone Farbgebung auf; weisse und gelbe Wände dominierten. Diese Farbgebung stammt aus den 1980er-Jahren, in denen auch ein Linoleumfussboden und grosse Fliesen in einem hellen Petrolblau im Bereich des Flurs verlegt wurden. Von dem ursprünglichen Farbkonzept Hermann Herters war nicht mehr viel übrig. Auch hierfür war eine neue Idee gefordert.

Im mittleren Spielzimmer existierten noch bauzeitliche Malereien von heimischen und exotischen Tieren des Kinderbuchillustrators Eugen Hartung (1897–1973). Die nachträglich aufgebrachte Wandfarbe aus den 1980er-Jahren war an den jeweiligen Stellen kreisförmig um die Tiere ausgespart worden, sodass diese wie in Seifenblasen eingeschlossen auf der Wand zu schweben schienen.

Bischof Föhn Architekten wollten die Farbigkeit des Spiel­zimmers möglichst nah an den Originalzustand zurückführen, einen ockergelben Ton. Gemeinsam mit der Farbgebung des Holzwerks (ein dunkleres Ocker) bildet dies den Ausgangspunkt ihres Farbkonzepts. An der Restaurierung der Wandmalereien arbeiteten bis zu drei Restauratoren über einen Monat.

In ihrem Gestaltungskonzept mussten die Planer abwägen, wie tief sie in die Bausubstanz und die nachträglichen Einbauten eingreifen wollten und konnten. Aus gestalterischer Sicht, aber auch aus Kostengründen liessen sie gewisse Dinge, wie sie waren. An anderen Stellen betrieben die Architekten einen hohen Aufwand – zum Beispiel bei der Farbsondage der Innenwände, um Informationen zum Originalzustand zu erhalten. Mithilfe der Ergebnisse entwickelten sie ein eigenes Farbkonzept, das sie an «die ‹malerische Promenade› der Schweizer Architekturbewegung der 1920er-Jahre (Lux Guyer, Hermann Herter u. a.)»1 anlehnten.

Der Flur erstrahlt heute in Blautönen. Die Grundlage dafür bilden die eingangs erwähnten blauen Fliesen, die noch intakt waren und nicht rückgebaut wurden. Die Wände sind in einem hellen, die Holz­arbeiten und -einbauten in einem dunkleren Blauton gestrichen. Einige Elemente wie Schuhregale, Hut­ablage oder Kleiderhaken waren erhalten geblieben und wurden von den Architekten in das Konzept integriert. Die wandmontierten Sitzbänke der 1980er-Jahre ergänzten sie mit einer neuen Sitzplatte aus Eichenholz.

Beide Kindergartenräume waren ursprünglich in dunklen Grüntönen gehalten; nun ist eines der beiden Zimmer wieder in grüne Farbe getaucht. Wie im Flur erhielten die Wände einen hellen Grünton, die Holzarbeiten einen dunkleren. Das zweite Zimmer bekam eine Rosétönung. Auch hier ist die Abstufung von hell nach dunkel konsequent umgesetzt.

Bischof Föhn Architekten haben die sanfte Instandsetzung des Baus gekonnt mit der Rückführung an Herters ursprüngliches Farbkonzept kombiniert. Die unterschiedliche Farbigkeit der Zimmer ermöglicht auch den Kleinsten eine gute Orientierung. Auch wenn die Nutzer selbst ein buntes Allerlei an Bildern, Basteleien und Spiel­sachen mitbringen, ergänzen diese die Räume auf sympathische Weise. Die Instandsetzung und die Aufnahme des Gebäudes ins Inventar der schützenswerten Bauten von kommunaler Bedeutung führen den Bau zurück zu seinen Wurzeln und gleichzeitig in die Zukunft.

Anmerkung
1 «Lux Guyers Einfamilienhäuser können als malerische Promenade durch einzelne Farbräume erlebt werden, wobei die sich ändernden Durchblicke für das Erlebnis der Architektur ent­scheidend sind. Ihr Einsatz von Farbe ist atmosphärisch und unterstützt die Definition einer räumlichen Sequenz oder Promenade.» (Lino Sibillano und Stefanie Wettstein, in Coviss, Ausgabe 2015/2 – April/Mai)

Am Umbau Beteiligte


Bauherrschaft:
Stadt Zürich, Amt für Hochbauten

Architektur:
Bischof Föhn Architekten, Zürich

Bauleitung:
Mathias Scholl, Architekt, Zürich

Tragwerksplanung:
Aerni + Aerni Ingenieure, Zürich

Landschaftsarchitektur:
Haag Landschaftsarchitektur, Zürich

Restaurationsarbeiten:
IGA Konservierung, Zürich

HLS-Planung:
HLS Engineering, Zürich

Bauphysik:
Raumanzug, Zürich

Elektroplanung:
Schmidiger + Rosasco, Zürich

Grundstücksfläche: 2801 m²

Geschossfläche: 991 m²

Gebäudevolumen: 2436 m³

Baukosten: 2.9 Mio. Fr.

Verwandte Beiträge