Trag­werk und Raum­form in Gru­ben­manns Kir­chen

TEC21 zeigt die spannendsten Tragwerkskonstruktionen von Kirchenbauten der Gebrüder Grubenmann

Zwischen 1723 und 1780 bauten die Gebrüder Grubenmann in der Ostschweiz zahlreiche Brücken und Kirchen. Der einflussreichste von ihnen war Hans Ulrich Grubenmann, dessen Geburtstag sich 2009 zum dreihun­dertsten Mal jährte. In ihren Kirchenbauten nutzten die Zimmermänner aus Teufen AR ihr Wissen aus dem Brückenbau. Ihre im Kirchenhimmel verborgenen innovativen Dachstuhlkonstruktionen ermöglichten grosse stützenfreie Räume. Besonders eindrücklich ist die Wechselwirkung von Tragwerk und Raumform in der reformierten Kirche Wädenswil.

Publikationsdatum
23-01-2012
Revision
01-09-2015
Reto Gadola
Architekt; dipl. HLK Ing. FH, Sach­bearbeiter SIA 384/2

Zwischen 1723 und 1780 bauten die Gebrüder Grubenmann in der Ostschweiz zahlreiche Brücken und Kirchen. Der einflussreichste von ihnen war Hans Ulrich Grubenmann, dessen Geburtstag sich 2009 zum dreihundertsten Mal jährte. In ihren Kirchenbauten nutzten die Zimmermänner aus Teufen AR ihr Wissen aus dem Brückenbau. Ihre im Kirchenhimmel verborgenen innovativen Dachstuhlkonstruktionen ermöglichten grosse stützenfreie Räume. Besonders eindrücklich ist die Wechselwirkung von Tragwerk und Raumform in der reformierten Kirche Wädenswil.
Zwischen 1723 und 1780 bauten die Brüder Jakob (1694–1758), Johannes (1707–1771) und der berühmteste der drei, Hans Ulrich Grubenmann (1709–1783), neben zahlreichen Brücken auch 27 Kirchen in der Ostschweiz.1 Gemeinsamer Nenner dieser scheinbar gegensätzlichen Bauaufgaben ist ihre strukturelle Verwandtschaft. Im Brücken- wie im Kirchenbau geht es darum, möglichst effizient grosse Spannweiten zu überbrücken.
Eine wissenschaftlich begründete Tragwerkslehre im heutigen Sinn gab es zu Zeiten der Gebrüder Grubenmann noch nicht, exakte Berechnungen waren nicht möglich. Ihre Konzepte, Projekte und Realisationen beruhten auf der Wechselwirkung von Erfahrung und Ausprobieren, also einer Art «handwerklicher Intelligenz», die sich von Bau zu Bau perfektionieren liess. Erstaunlich ist, wie es den Grubenmanns damit gelang, in ihren grossmassstäblichen Bauten so schwer abzuschätzende Faktoren wie Winddruck, Aussteifung des Systems oder konstruktiver Witterungsschutz zu einem kohärenten Ganzen zu vereinigen. Ähnlich wie die genialen Empiriker Antonio Gaudì (1852–1926) oder Heinz Isler (1926–2009) testeten die Grubenmanns ihre Ideen an massstäblichen Modellen, mit denen sich der Kräftefluss und die räumlichen Verbindungen untersuchen liessen – und die zugleich ein anschauliches Kommunikationsmedium waren.
Ihre technisch-konstruktive Souveränität setzten die Grubenmanns sehr bald in Form einer Alles-aus-einer-Hand-Philosophie um. Gegenüber Auftraggebern traten sie als eigentliche Totalunternehmer auf.2 Neben der Planung und der Koordination der Bauarbeiten brachten sie auch gleich alle Handwerker mit. Für den Bau einer mittelgrossen Kirche brauchten die Grubenmanns mit ihren Trupps von Maurern und Steinmetzen, Zimmerleuten, Gipsern und Stuckateuren, Dachdeckern usw. nur acht bis zehn Monate. Meist stellten die Kirchgemeinden das Baumaterial zur Verfügung, und Hundertschaften von Männern und Pferden leisteten Fronarbeit, um das Budget zu entlasten. Nach getaner Arbeit gab es ein grosses Fest. Von der Kirchweihe in Wädenswil am 23. August 1767 wird berichtet: «Über vierzig Schiffe legten in Wädenswil an. Es sollen zu diesem Anlasse 12 Stück Vieh, 117 Schafe, 6 Kälber und 8 Schweine geschlachtet worden sein.»3

Kirchenhimmel konstruieren

Eine Grubenmann-Kirche fällt nicht durch ihr Äusseres auf: einfache Volumen, schlichte Gestaltung, Schutz bietende, grosse Dachflächen – einzig ein vielleicht gar spitzer und hoher Turm lässt die waghalsige innere Struktur erahnen. Auch die Gestalt des Kirchenraums ist konventionell und entspricht dem Wunsch bzw. der Konfession der Auftraggeber: üppiger Barock wie im katholischen St. Gallenkappel (1751) oder protestantische Nüchternheit wie in Oberrieden (1761), wo nur eine flüchtig wirkende Dekorationsschicht mit Stuck-Rocaillen dem schlichten Raum eine gewisse «Oberflächenspannung» verleiht.4 Die eigentliche Schönheit der Grubenmann-Kirchen liegt jedoch im Innenleben, das dem wahrnehmenden Auge verborgen bleibt: im kühnen Tragwerk des Dachstuhls, das auf der strukturellen Logik der Brückenbauten gründet, oder in der atemberaubenden handwerklichen Präzision, mit der die Holzverbindungen konzipiert und ausgeführt sind.
Mitte des 18. Jahrhunderts war es in der Ostschweiz Mode, einfache, langrechteckige Kirchenräume mit einem gewölbten Kirchenhimmel abzuschliessen. In den meisten Fällen sind auch die Grubenmann-Kirchen durch hohe, flache Wandscheiben gefasst. Im Vergleich zum gotischen Prinzip der Strebepfeiler und deren dominanter Ästhetik handelt es sich um ein modern anmutendes, ausgemagertes konstruktives Dispositiv. Um solche Gebäudevolumen zu schliessen, gab es alledings kaum Alternativen zu einem hölzernen Dachstuhl. Eine gewölbte Decke – paradigmatischer Ausdruck des Bauens mit Stein – provozierte wegen der horizontalen Krafteinwirkung auf die dünnen Wände einen konstruktiven Widerspruch. Er liess sich allenfalls durch Zugstangen auflösen, die die Horizontalkräfte kurzschliessen, doch derartige Elemente störten auch damals das ästhetische Empfinden.  

Grössere Spannweiten

Um grosse Kirchenräume ohne störende Zugstangen zu überbrücken, entwickelten die Grubenmanns verschiedene Dispositive.5 Zum einen sind es liegende Dachstühle mit Strebebindern und Hängesäulen, an denen die Decke des Kirchenraums aufgehängt ist, wie etwa in der Kirche Hombrechtikon von 1758 (Abb. 7). Liegende Dachstühle finden sich auch in Gossau SG (1732), St. Gallenkappel (1751), Eschenbach (1753), Hombrechtikon (1758), Mollis (1761) und Trogen (1780). Im Gegensatz zu diesem handwerklich zwar perfekten und in ihren Dimensionen beeindruckenden, aber konventionellen Prinzip überrascht der Dachstuhl der Kirche in Grub AR (1752) mit einer unkonventionellen Konstruktion. Die Primärstruktur liegt nicht in Quer-, sondern in Längsrichtung: Wie bei einer Brücke liegen zwischen Innengewölbe und Dachfirst zwei gewaltige, nach unten gespreizte Stabbogenträger. Bemerkenswert auch die formale Logik des mehrfach geknickten, kassettierten Gewölbes: Es schmiegt sich exakt an die darüberliegenden Streben, Spannriegel und Kehlbalken an. Ein solcher Firstträger in Längsrichtung kam auch in Brunnadern SG (1763) zur Anwendung. 
Einen dritten Lösungsansatz mit diagonal verstrebten, eng liegenden Bindern in Querrichtung entwickelten und perfektionierten die Grubenmanns in zahlreichen Beispielen, unter anderem auch in Oberrieden. Bei diesem Prinzip sind die beiden Dachflächen im First gewissermassen biegesteif miteinander verbunden und nehmen so den Dachschub auf. 
An diesem verschränkten Stabwerk ist von unten eine Holzlattung befestigt, die zum Gewölbe geformt und vergipst ist und nach Bedarf mit Stuckaturen verziert werden kann. Zusammen mit den ebenfalls vergipsten Wänden entsteht so eine innere Raumhülle, die homogen über massive Wände wie  über filigrane Holzstrukturen gelegt wird. Dachstühle mit diagonal verschränkten Streben finden sich unter anderem in den Kirchen von Neukirch TG (1727), Häggenschwyl SG (1728), Eggersriet SG (1738), Steinach SG (1742), Stein AR (1749), Sulgen TG (1751), Oberrieden ZH (1761) und Ebnat SG (1762).

Verborgene Schönheit – strukturelles «Poché»

Das Meisterwerk unter den Grubenmann-Kirchen ist die reformierte Kirche von Wädenswil (1764–1767). Ein riesiger, stützenfreier, weisser Kirchenraum von 18 m Breite und 35 m Länge ist von 12 m hohen Wänden gefasst, die über eine sanfte Rundung nahtlos mit der flachen Decke verschliffen sind. Die Wände sind von drei bzw. fünf Fensterpaaren durch-brochen: Über einer hohen stehenden Öffnung ist jeweils eine ovale angeordnet, die die Deckenrundung durchstösst und den Übergang von Wand zu Decke in einen Spannungszustand versetzt.
Typologisch stellt die Wädenswiler Kirche einen ersten Höhepunkt des Querraumprinzips dar, das in der protestantischen Zürcher Landschaft zu jener Zeit aufkam.6 Das Layout beruht auf Vorgaben und Plänen des Untervogts Hans Caspar Blattmann und des Wädenswiler Pfarrers Johann Heinrich Hofmeister.7 Der kirchliche Versammlungsraum ist in einem breiten Rechteck organisiert und vollkommen auf die Kanzel in der Mitte der Längswand – also auf die Predigt – ausgerichtet. Steile Emporen an der gegenüberliegenden Längswand und an beiden Querwänden verdoppeln nahezu das Fassungsvermögen der Kirche. Im geometrischen Mittelpunkt steht das Taufbecken. 
Ein kühnes Brückenbauwerk überspannt den Kirchenraum: In Längs- und in Querrichtung kreuzen sich zwei 6.50 m hohe Hauptbinder, die als Stabpolygon ausgebildet sind und durch komplex geformte Grat-, Kehl- und Zwischenbinder ergänzt werden. Erstaunlich ist, mit welcher konzeptuellen, konstruktiven und handwerklichen Intelligenz die naturgegebenen Dimensionen von Schnittholz überwunden werden. Den Kirchgängerinnen und Kirchgängern jedoch präsentiert sich der Kirchenhimmel als abstrakte, weiss getünchte Form mit applizierten Verzierungen. Sein Innenleben bleibt verborgen – im ausgehenden 18. Jahrhundert galt kühne Technik noch nicht als schön. Legt man den Fokus allerdings auf das Verhältnis zwischen dem inneren Kirchenraum und der äusseren Form der Kirche – also auf den dazwischen aufgespannten Raum –, wird deutlich, dass der Dachstuhl als eine Art strukturell motiviertes «Poché»8 gelesen werden kann. 
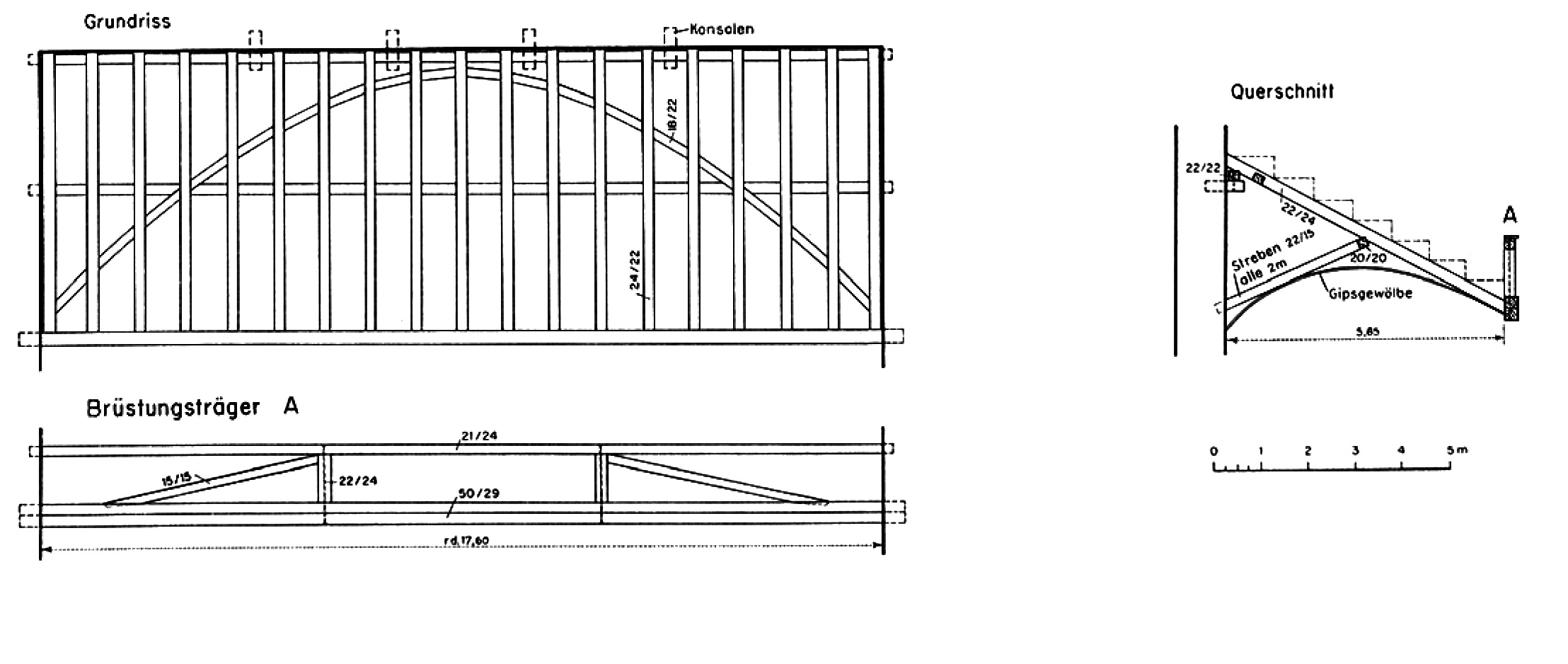
Doch nicht alle Schönheit bleibt dem unsichtbaren Himmel vorbehalten. Bei den Emporen entfalten die strukturellen Phänomene magische plastische Qualitäten, die ihresgleichen suchen. Die Emporen sind stützenfrei von Wand zu Wand gespannt. Ein in die Brüstung integriertes Sprengwerk bildet den vorderen Abschluss. Der geneigte Emporenboden besteht aus einer mittig über Streben gestützten Balkenlage und einem Stabbogensystem, das über eine Scheibenwirkung den schrägen Schub statt in den Brüstungsträger in die seitlichen Wände leitet.9 Auch dieses geniale Dispositiv findet nur über formale Umwege den Weg an die Oberfläche: Der Brüstungsträger ist vergipst, und auch die Emporenuntersicht ist mit elegantem Schwung verkleidet – erst die detaillierte Analyse offenbart, dass auch dieser Schwung, ähnlich wie bei den erwähnten Kirchengewölben, in engem Verhältnis zur dahinter verborgenen Struktur steht. Die Verbindung der Emporen in den Ecken, ihre gewölbten Untersichten und die formalen Spannungen bei den Fenstern – deren Anordnung eigenen Gesetzmässigkeiten gehorchen muss – lassen expressive Formen von einzigartiger Plastizität entstehen.

Magazine

Verwandte Beiträge