Strom­li­ni­en­för­mi­ge En­er­gie­ma­schi­ne

Umgeben von ästhetisch meist anspruchslosen Gewerbebauten hebt sich die Umwelt Arena in Spreitenbach durch ihre kristalline Form deutlich von ihren Nachbarn ab. Unter dem dominanten, komplett mit Photovoltaikmodulen eingedeckten Dach verbirgt sich indes ein offener Mehrzweckkomplex.

Publikationsdatum
10-11-2017
Revision
10-11-2017
Paul Knüsel
Fach- und Wissenschaftsjournalist bei Faktor Journalisten

Das Limmattal ist eine Versorgungsader für ­Mil­lionen; zwischen Dietikon und Spreitenbach sind die grossen Warenlager und Einkaufszentren für die Agglomeration Zürich angesiedelt. Hier wurde vor über 40 Jahren mit dem Tivoli Spreitenbach das ­erste Shoppingcenter der Schweiz erstellt. Nun hat der ehrwürdige Bau vor Kurzem eine Andockstelle erhalten, die einen direkten Zugang zur Zukunft verspricht.

Nur knapp 100 Meter lang ist die Metall­passerelle, die den Konsum­tempel mit der Umwelt Arena Spreitenbach verbindet. Jeder fünfte der fast 20'000 Tivoli-Tageskunden würde ­reichen, um die neuartige Ausstellungs- und Veranstaltungsplattform zu füllen. Doch die Arena ist nicht zur Massenversorgung ­gedacht, sondern liefert ein qualitatives Statement: Inhalt und Form sind als Beleg gedacht, was die aktuelle Energietechnik zur Nachhaltigkeit bei­tragen kann. Mit einer Gesamt-Eigenenergiepro­duktion von 560'150 kWh/a versus einem Gesamt­energie­bedarf von 404'941 kWh/a präsentiert sich die ­Umwelt ­Arena als Plusenergiebau.

Gefaltetes Photovoltaikdach

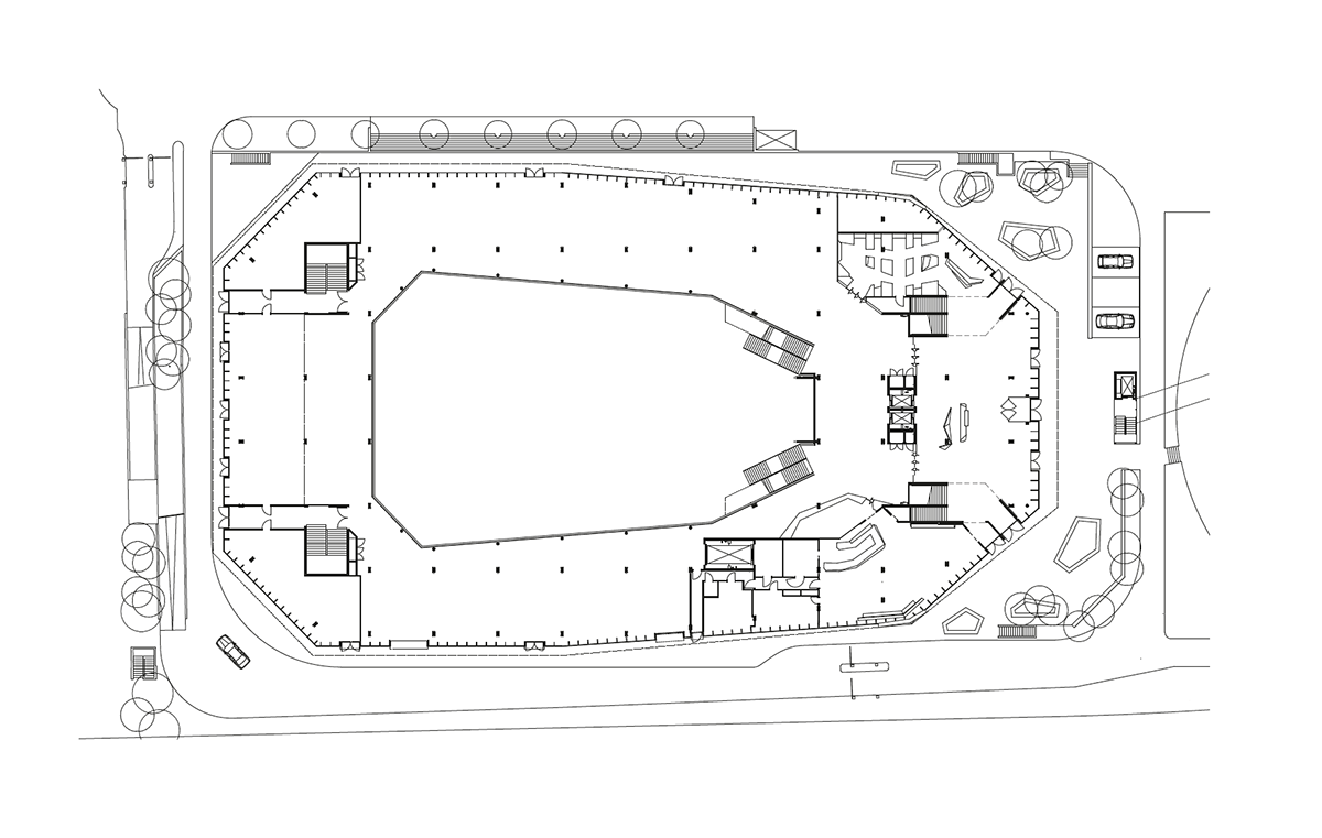
Das von René Schmid Architekten entworfene Gebäude ist ein schwarz glänzender Solitär, der den benachbarten Industriehallen und Bürohäusern zu trotzen hat. Herausragend wirkt der Komplex weniger durch seine Dimension, die vergleichsweise bescheiden ist, als durch seine Stromlinienform. Erkennungsmerkmal ist das schiefwinklig gefaltete Dach, das bisweilen fast bis zum Boden reicht. Es besteht aus 5500 Photovoltaikmodulen, von denen 1000 in spe­ziellen Formen gefertigt wurden.

Obwohl der Tageslauf der Sonne nicht das zentrale Gestaltungkriterium für das solare Dachschild war, hat sich das vollständige Eindecken energetisch gelohnt: Die Neigungswinkel wurden so lange am Computer simuliert, bis auch die nördlichen und östlichen Flanken einen Strombeitrag erzeugen konnten. Gemäss Plan soll die Solaranlage deutlich mehr Strom liefern, als für den Ausstellungsbetrieb, die Lüftung und die Wärmepumpen benötigt wird.

Vor Sonne geschützt

Doch das Solardach dominiert nicht nur die übrige Technik; seine geduckte, streng symmetrische Form definiert auch die äussere Erscheinung des Gebäudes. Es fehlen äussere Orientierungspunkte, eine offene Flanke gibt es nicht. Die ­steile Ostseite des Dachs schirmt den Haupteingang derart ab, dass dieser ohne die Tivoli-Passerelle schwer zu finden wäre. Zudem ist das Besucherrestaurant – im Gegensatz zu den anschliessenden Büroräumen – in einem dunklen Seitenwinkel untergebracht.

Dass ­Tageslicht in der Arena nur beschränkt willkommen ist, verlangt jedoch das Nutzungsprogramm: Ausstellungshalle und Konferenzsäle bedürfen meist ­einer eigenen Inszenierung und brauchen Kunstlicht. Den Kontrast zur abschirmenden Aussenhülle bildet das Innenleben, das der grosszügigen Arena­situation entspricht. Die Haupthalle beginnt im Untergeschoss; die Treppen zum Erdgeschoss lassen sich wie Landungsbrücken heben, damit das Ge­lände für Testparcours, Bankette oder Grossveranstaltungen freigegeben wird. Darüber gibt es zwei Galeriegeschosse mit kranzförmig angeordneten Ausstellungsräumen, die spannende Ein­blicke insbesondere in die rohe Gebäudestruktur ermöglichen.

Das Design zur schönen neuen Energiewelt bleibt den Ausstellern überlassen. Die Grundmatrix haben die Architekten schlicht gehalten: Die riesigen Dachträger und das Raster aus vertikalen und diagonalen Betonstützen erinnern an eine ­Fabrik. Dieser Eindruck wird durch den weitgehenden Verzicht auf das Überdecken der Betonwände und -böden sowie den Holzdecken betont.

Ökonomische Konstruktionsprinzipien

Die Umwelt Arena gibt sich aussen schnittig und ­gestylt; innen ist sie ein offener Mehrzweckkomplex mit Ecken und Kanten. Konstruktiv und technisch stand eine Kombination bewährter Elemente und ökonomischer Prinzipien im Vordergrund, wie sie nur dank digitaler Planung und industrieller Vorfertigung möglich ist. Die Tragstruktur inklusive Galerien, Parkdeck und zwei Untergeschossen besteht aus Stahlbeton.

Die massiven Bauteile bilden eine Speichermasse, um das Raumklima ausgeglichen zu ­halten. Eine leichte Stahl-Holz-Konstruktion trägt das solare Dach. Im überhohen Konferenzbereich kommen das Trag­geflecht und die Holzträger als be­sondere Kulisse ­unter dem Dach zum Vorschein. 

Auch die Gebäudetechnik wird nicht versteckt: Unter dem Dach hängen gewaltige Absaug- und Lüftungsrohre, und in den Ausstellungsetagen sind alle Rohre und Leitungen abdeckungsfrei geblieben. Zudem sind die Lüftungszentralen, die zur ­Versorgung der Arena mit Wärme und Frischluft ­dienen, auf der Dachterrasse zu besichtigen.

Nicht benötigte Wärme wird in unterirdischen Tanks gespeichert und bei Bedarf an die Nachbarschaft ­abgegeben. Die Umwelt Arena ist als Energieinsel konzipiert, die erneuerbare Energieträger integriert und sich im ­Betriebsalltag mit der Aussenwelt vernetzt. Der ­überschüssige Strom wird ins öffentliche Netz ein­gespeist. 

Was aber macht nun die Umwelt Arena zum ­Symbol für die unbedenkliche Energie­zukunft? So sehr der schwarze Solarmantel und der enorme Energieüberschuss beeindrucken, viel entscheidender ist die Komposition der Technik da­hinter: Sie demonstriert, dass die vielen Möglich­keiten, auf die ein selbstversorgtes Gebäude an­gewiesen ist, heute schon einsetzbar sind.

Bauprojekt: Umwelt Arena, Spreitenbach AG

Baujahr: 2012

Am Bau Beteiligte
 

Bauherrschaft
Umwelt Arena AG, Spreitenbach AG 

 
Architektur
rené schmid architekten ag, Zürich   


Bauingenieur
Tantanini & Partner AG, Bülach ZH 

 
Holzbauingenieur
Menig AG, St. Gallen 

 
Verkehrsplaner
Enz & Partner GmbH, Zürich   


Photovoltaik-Ingenieur
Basler & Hofmann, Zürich 

 
Fassadenplaner
Pro Optima AG, Elgg ZH  


Elektroingenieur
Büchler & Partner AG, Zürich

Technische Angaben
 

Energiebedarf   
Heizung: 124 793 kWh/a
El. Hilfsenergie: 91 685 kWh/a
Warmwasser: 114 606 kWh/a
Beleuchtungsstrom: 73 857 kWh/a
Gesamtenergiebedarf: 404 941 kWh/a
 

Eigen-Energieversorgung
Solarwärme (18 m2): 20 150 kWh/a
Solarkollektorentyp: Flachkollektoren, Vakuumröhre, Hybridkollektor
Photovoltaik Dach (5300 m2): 540 000 kWh/a
Solarzellentyp: mono- und polykristalline Zellen, Dünnschichtzellen    
Gesamtproduktion: 560 150 kWh/a
 

Auszeichnungen
Europäischer Solarpreis 2012,
Schweizer Solarpreis 2012, Watt d’Or,
Zürich-Klimapreis Marktregion Mitte     
 

Zertifizierung:
Plusenergie (Minergie-P-zertifiziertes Ausstellungsgebäude)

Verwandte Beiträge