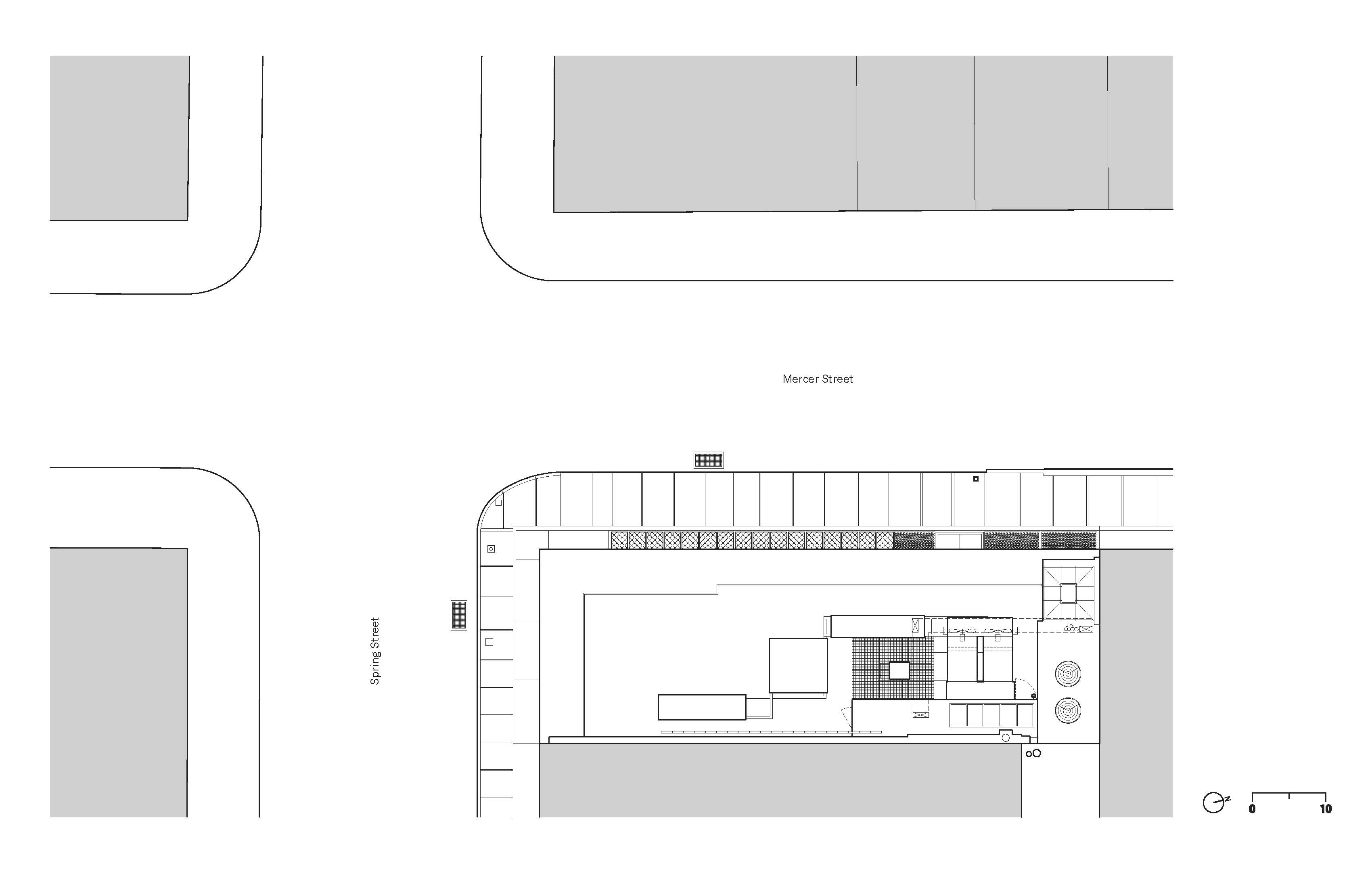
Spring Street 101, NYC: Guss­ei­sen­haus als Holz­scha­tul­le

Der im Zentrum des Quartiers SoHo liegende «Cast-Iron Historic District» in New York ist nach den prägenden Bauten aus Gusseisen benannt. Sie entstanden in der Zeit um 1850, heute sind noch rund 250 derartige Bauten erhalten. So auch das markante Eckhaus Spring Street 101 (Ecke Mercer Street), ehemals Atelier und Wohnort des Architekten, Künstlers und Publizisten Donald Judd (1928–1994).

Publikationsdatum
20-11-2018
Revision
29-11-2018

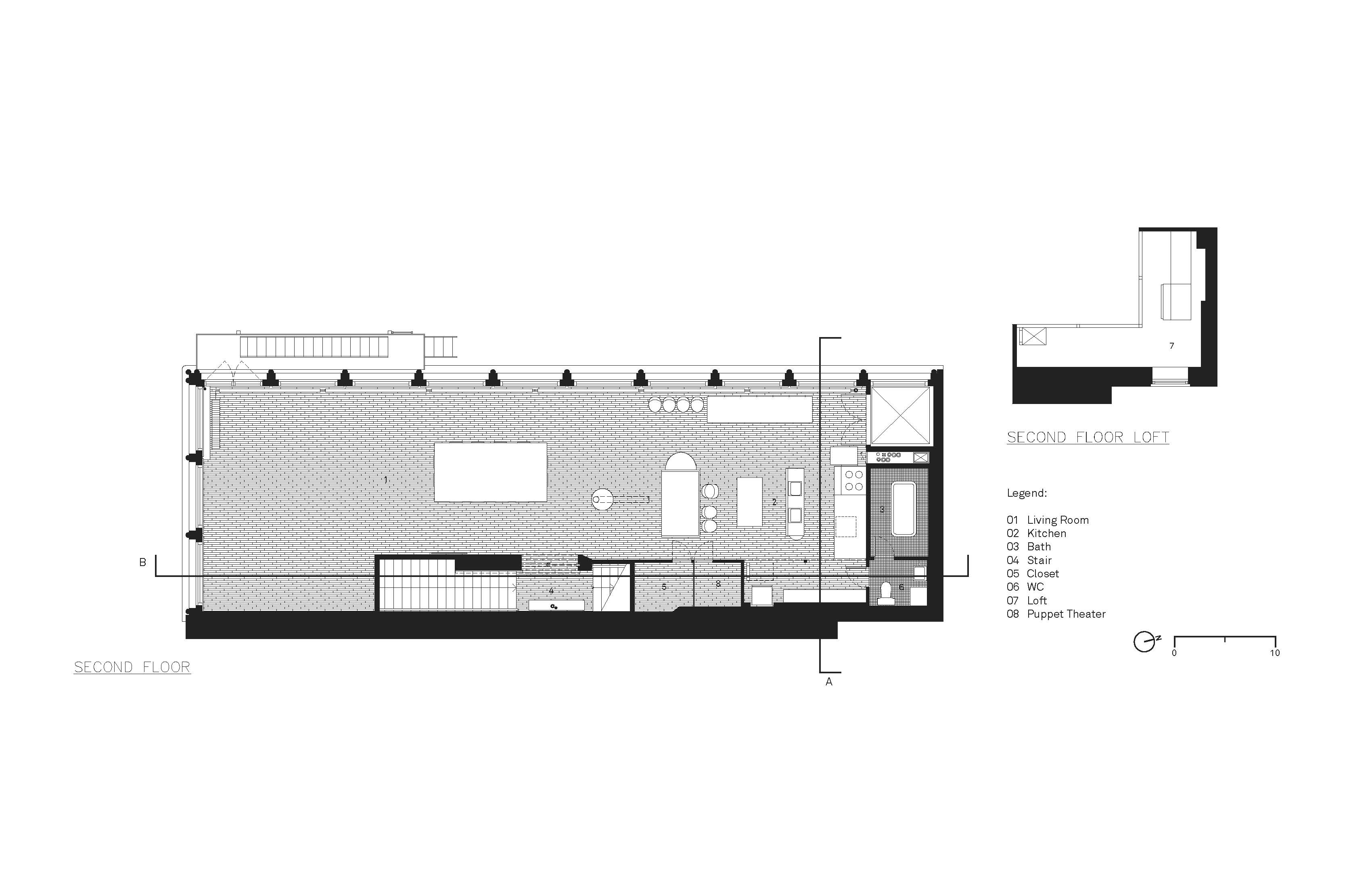
Die Gusseisenhäuser mit ihren grossen Fensterflächen dienten oft auch als Produktionsstätten, z.B. für die Textilindustrie. Und genau dieses architektonische Konzept der stützenfreien Räume mitgrosszügigem Lichteinfall liegt auch dem 25 Fuss breiten und 75 Fuss langen (7,6 x 22,8 m) Eckbau Spring Street 101 zugrunde. Das 1870 von Nicholas Whyte entworfene und gebaute Gebäude umfasst fünf Geschosse über Strassenniveau und zwei Untergeschosse.

Donald Judd kaufte den Bau 1968 und nutzte Erdgeschoss und 1. Obergeschoss als Atelier und Architekturstudio, die übrigen drei Stockwerke als Wohnräume. Er räumte ganze Schichten von Verkleidungen radikal aus und befreite die Räume von Einbauten. In den beiden unteren Etagen konnte der hölzerne, aus breiten Riemen gebaute Boden erhalten bleiben, die oberen Stockwerke waren neu auszubauen. Allein die Renovation der teilweise beschädigten Fassade bedingte die Reproduktion von rund 400 der etwa 1300 Gusseisenteile.

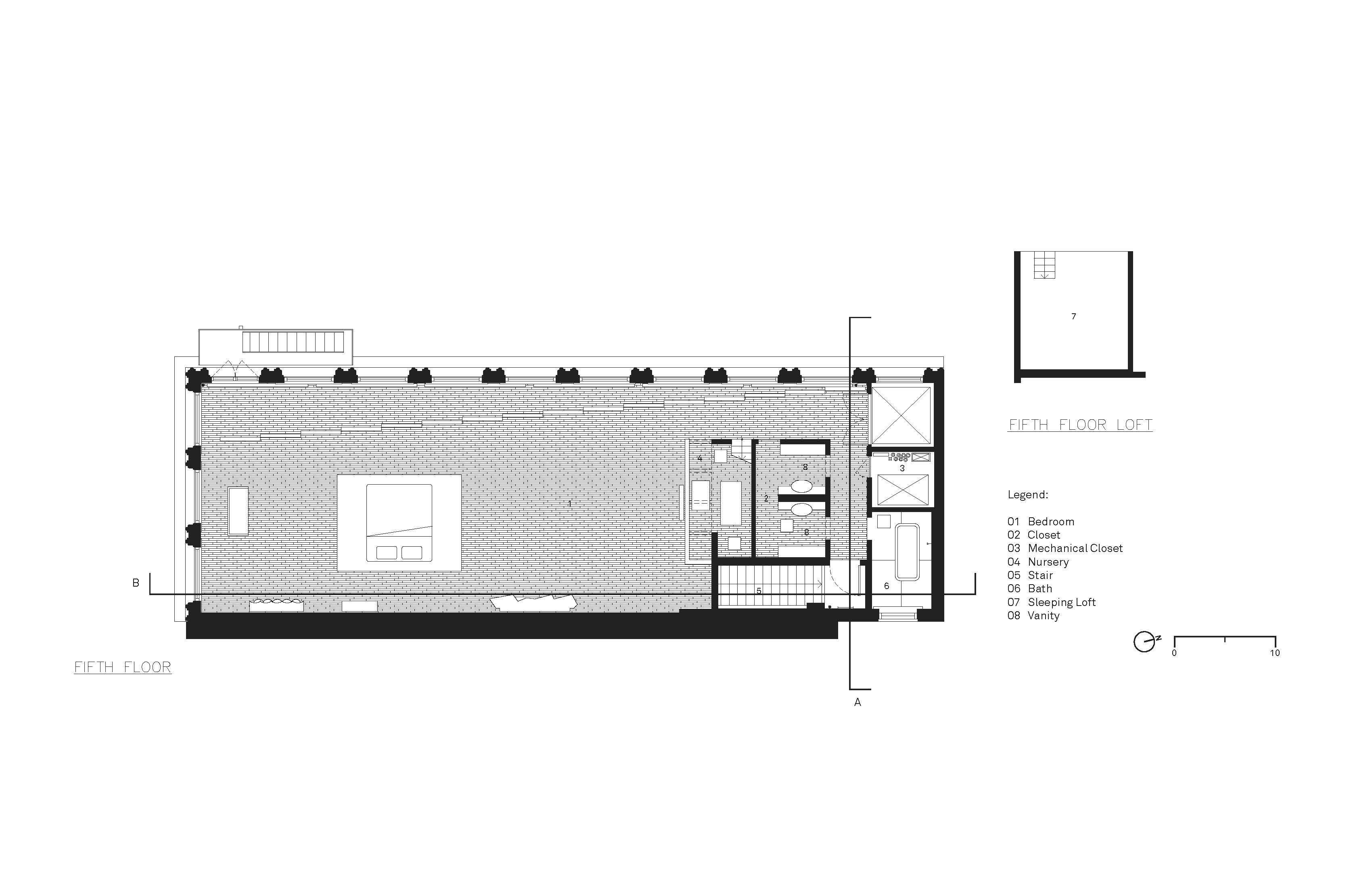
Im Zuge dieser Renovation und Möblierung mit Stücken wie dem Zig-Zag-Stuhl von Gerrit Rietveld, Bugholzstühlen von Thonet und Sesseln von Alvar Aalto begann Judd damit, eigene ebenso radikal reduzierte Möbel herzustellen. Es handelt sich um Tische, Stühle, Hocker, Bänke und Liegen aus Holz. Sein Bett im Schlafraum im obersten Geschoss besteht einfach aus einem aus Brettern gebildeten Quadrat, das knapp über dem Boden schwebt.Die hintere, südöstlich gelegene Ecke birgt einen Aufzug aus der Bauzeit, und in jedem Stockwerk sind dort Nassräume installiert – Küche, WC und Bad. Die Treppe verläuft an der Rückwand und zeigt noch die alten Holzstufen und schöne gedrechselte Handläufe. Judds Kunstsammlung ist derart eingefügt, dass sie wie ein Teil des Gebäudes wirkt: Besonders eindrücklich wirkt das bei der rund 20 m langen Installation einer gelb oder rot leuchtenden Skulptur von Dan Flavin. 

Der von aussen grau-grün schimmernde, eher kühl wirkende Bau aus Gusseisen und Glas birgt ein warmes Innenleben mit neuen und antiken Holzeinbauten und Möbeln. Alltagsgeräte und Kunst verschmelzen zu einem faszinierenden Gesamtkunstwerk. Es handelt sich um einen Kraftort, der heute wie eine Zeitkapsel eingefroren wirkt. Der Schöpfer dieser Welt, Donald Judd, ist hier auch nach seinem Tod noch stark präsent.

Wer das Haus besuchen möchte, sollte sich unbedingt vorher anmelden. Es werden nur Gruppen von max. 6 Personen eingelassen, und Kleinkinder sind nicht gestattet. Besuche nur Dienstag und Donnerstag bis Samstag zu festgelegten Zeiten. https://web.ovationtix.com/trs/cal/34321
 


Donald Judd und die Schweiz

Die Beziehungen von Donald Judd zur Schweiz sind vielfältig. Er hatte bereits 1973 eine Ausstellung bei der Galerie Verna in Zürich und beteiligte sich 1984 an der Skulpturenausstellung in Riehen. Produzent der Skulpturen war die Firma Alu-Menziken. Die Firma Lehni in Dübendorf produzierte ab 1984 Alumöbel nach Entwürfen von Judd, eine Weiterentwicklung der bestehenden Holzmöbelserie. Beim Peter Merian Haus am Bahnhof Luzern (Architektur Zwimpfer Partner) plante Judd die gesamte Fassade aus grün schimmernden Glaselementen. Planungsbeginn war 1987, Baubeginn 1994 (siehe auch «Kunst als Bau» von Philippe Cabane, TEC21 Nr. 46/2000).

Ab 1991 plante Judd im Auftrag der Stadt Winterthur eine Brunnenanlage in der Steinbergstrasse. Es handelt sich um drei elliptische, unterschiedlich hohe Brunnen aus Beton, die sich auf den ehemaligen Stadtbach beziehen. Das Werk wurde 1997 fertiggestellt. Ab 1989 besass Donald Judd ein Haus in Küssnacht am Rigi (Eichholteren), ein ehemaliges Gasthaus, das er 1992/93 mit Architekt Adrian Jolles (Zürich) umbaute.


Literatur

  • Donald Judd, Writings. 2. Auflage 2017, 1054 Seiten, Judd Foundation NYC + David Zwirner Books, NYC. Distrib. By Thames and Hudson Ltd., London (ISBN 978-941701-35-5)
  • Donald Judd Furniture (2017) Judd Foundation, Spring Street 101, NYC. Ohne Pagina. Mit Zeichnungen von Architekt Claude Armstrong und einer eingelegten Farbtabelle.

Weitere Infos finden Sie hier.

Verwandte Beiträge